▲ 更多精品,关注“搜建筑”

随着深圳人口和城市的快速增长,城市建设用地和发展空间变得日益紧张,导致中小学及幼儿园学位供应面临巨大挑战。为了应对土地资源有限、人口规模扩大以及对高质量基础教育的需求,如何在集约用地的基础上设计符合未来教育发展且“有趣”、“高颜值”的高密度校园成为热门议题。
As Shenzhen's population and urban development continue to expand rapidly, the availability of land for construction and growth is becoming increasingly constrained, presenting significant challenges in providing adequate school and kindergarten seats. To address these challenges, designing high-density campuses that efficiently utilize land while meeting future educational needs has become a critical topic.

设计师通过创新的平面布局、密中有疏的活动空间,以及与自然相融合的“谷地游园”设计,为孩子们创造了一座可以躺在天台数星星的“校园山谷”,在潜移默化中激发孩子的想象力和创造力。
These campuses must also be "interesting" and "visually appealing" to foster an engaging learning environment. Designers have developed a concept known as the "campus valley," where children can lie on the rooftop and count stars. This innovative design incorporates floor layouts that optimize space, spacious activity areas within dense environments, and a "valley garden" that seamlessly integrates with nature, subtly stimulating children's imagination and creativity.

深圳市龙华区清泉外国语学校初中部是一所24班初中学校,总建筑面积约29266平方米,位于龙华区清泉街道。设计团队在校园布局中优先考虑自然属性,创造动态空间,减轻学生的学习压力,并在充满阳光和自然美景的环境中促进他们的福祉。
The Qingquan Foreign Language Junior School in Longhua District, Shenzhen, is a 24-class junior school with a total building area of approximately 29,266 square meters, located in Qingquan Street. The design team has prioritized natural attributes in the campus layout, creating dynamic spaces that alleviate students' learning pressures and promote their well-being in an environment rich with sunlight and natural beauty.

学校原有地块为不规则梯形,用地面积14589.7平方米,地形最大高差为7.1米。为了优化空间的使用,两栋六层的教学楼被策略性地放置在土地使用线的周边,地面层被抬高,以增强一楼视野的开放性。空中图书馆连接了教学功能,通过建筑挫折创建了连续的屋顶花园,形成了一个“山谷花园”,作为中心焦点。
The school's original plot, an irregular trapezoid with a land area of 14,589.7 square meters, features a terrain with a maximum height difference of 7.1 meters. To optimize the use of space, two six-story teaching buildings are strategically placed along the perimeter of the land use line, with the ground floor elevated to enhance the openness of the first-floor view. An aerial library connects the teaching functions, and continuous rooftop gardens are created through building setbacks, forming a "valley garden" that serves as a central focal point.

运动场地被抬高以延伸山谷花园,从而扩大了儿童运动场地的面积,并纳入了一个在恶劣天气下使用的体育馆。礼堂的入口巧妙地隐藏在一个洞穴状的结构中,以儿童友好的方式重新诠释了“另一个世界”的概念。校园设有绿色天空观景台、空中步道、丰富的多功能空间,形成了地毯式的校园生态网络。
The sports field is elevated to extend the valley garden, thereby expanding the children's sports field area and incorporating a sports hall for use during inclement weather. The entrance to the auditorium is ingeniously hidden within a cave-like structure, reinterpreting the concept of "another world" in a child-friendly manner. The campus is equipped with a green sky observation deck, an aerial walkway, and a rich multi-functional space, forming a carpet-style campus ecological network.

这种设计允许孩子们在屋顶花园散步,在观景台观看日落等活动。校园的设计不仅是作为一个传统的教学设施,而且要培养不同的兴趣和爱好,为孩子们提供一个有趣和教育的环境,让他们与自然和谐相处。
This design allows children to engage in activities such as strolling in the rooftop garden and watching the sunset from the observation deck. The campus is designed not only to serve as a traditional teaching facility but also to cultivate diverse interests and hobbies, providing a fun and educational environment where children can grow in harmony with nature.

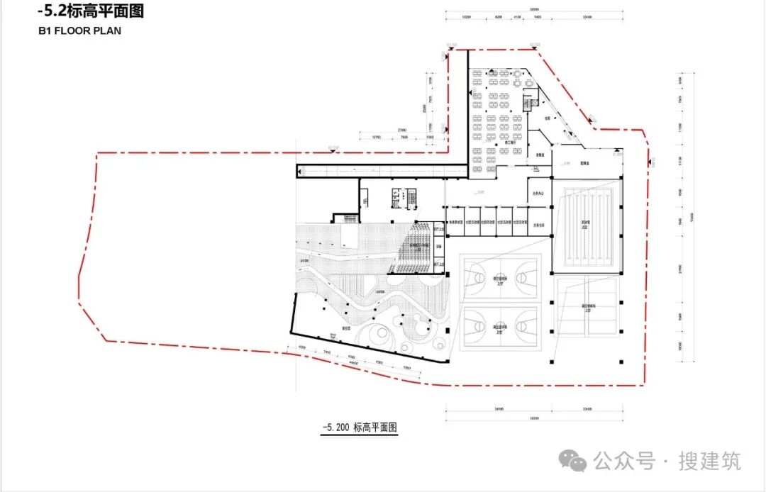
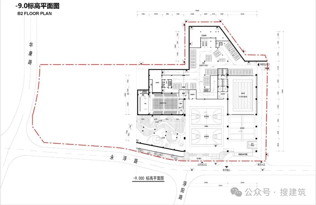
项目图纸
二层平面图
-9.0标高平面图
-13.2标高平面图
项目信息
设计方:深圳市一境建筑设计有限公司 简称:一境建筑设计
施工图设计(公司名称): 深圳华阳国际工程设计股份有限公司//深圳市市政总工程总公司
可研单位(公司名称): 深圳市建筑科学研究院股份有限公司
全过程工程咨询单位: 四川元丰建设项目管理有限公司(主体单位)
勘察单位: 深圳市勘察研究院有限公司//中国电建集团华东勘察设计研究有限公司
材料:涂料 – 立邦、运动地板-圣象运动、瓷砖-马可波罗
本资料声明:
1.本文为建筑设计技术分析,仅供欣赏学习。
2.本资料为要约邀请,不视为要约,所有政府、政策信息均来源于官方披露信息,具体以实物、政府主管部门批准文件及买卖双方签订的商品房买卖合同约定为准。如有变化恕不另行通知。
3.因编辑需要,文字和图片无必然联系,仅供读者参考;

微信公众号“搜建筑”(ID:sjz9999)
合作、宣传、投稿
联系微信:soujianzhu006