▲ 更多精品,关注“搜建筑”
UAD·作品
丨引 言
杭州太平金融大厦项目位于杭州市钱江新城核心区的主轴线西侧,由美国SmithGroup与浙江大学建筑设计研究院携手打造。项目总建筑面积约15.6万平方米,包括办公及配套服务功能,将成为中国太平在当地的区域总部。
项目周边密集的高楼构成了这一区域的标志性特征。基地南侧和西北侧为现状住宅区,为了满足住宅的日照需求,本项目的建筑高度被控制在65米左右。因此,如何在有限的高度内设计出一组独特而引人注目的建筑成为了一项重要的挑战。
设计灵感源自杭州的文化象征“梁祝”,采用形态优美而动感的蝶状布局,将建筑分布于地块的四个角落,通过两层高的裙楼和连廊将四座高楼相连。这种布局宛如展翅的蝴蝶,优雅和谐。
围合式的设计,将项目打造成一个城市中的花园,将外部喧嚣隔离,创造出宁静的庭院空间。四幢塔楼以“茶田”为主题,错落有致,结合顶部的退台处理,既赋予了建筑丰富多样的屋顶轮廓线,又把对周边住宅的日照影响降至最低。
建筑外表呈现出统一而连贯的设计语言,旨在打造一座既庄重典雅又充满活力的建筑。造型上采用“石开玉出”的理念,建筑面向四周街区的立面采用大量石材以显示出沉稳、大气的气质。
而面向内部的建筑表皮则更为通透、精致,这种内外对立而统一的设计凸显了既稳重又活跃的内涵。同时根据不同朝向和高度,按采光需求来分配不同的石材与玻璃的面积比例,提升了建筑的节能性能。
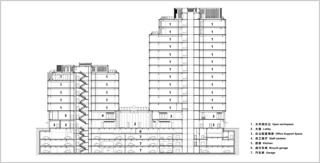
南北两侧各设有两层高的玻璃大堂,连接了街道、门厅和内部花园。裙房包含员工餐厅以及商业配套功能,通过连廊方便员工共享。商务办公功能从第三层开始。
四个塔楼屋顶设置金属格栅,作为设备使用空间。通过精细化排布,设备均被隐藏于金属格栅内,为城市景观增添了魅力。
中外设计团队密切协作,深度运用Revit软件平台,将BIM模型由方案设计阶段传递到了施工图阶段,并且直接导出施工图。各专业高度协同,实现了“图模一致”的精细化设计,获得了各方的高度评价,并荣获了第十一届“创新杯”建筑信息模型(BIM)应用大赛科研办公类BIM应用三等奖。
Revit model
© UAD
Revit model
© UAD
总平面图
© UAD
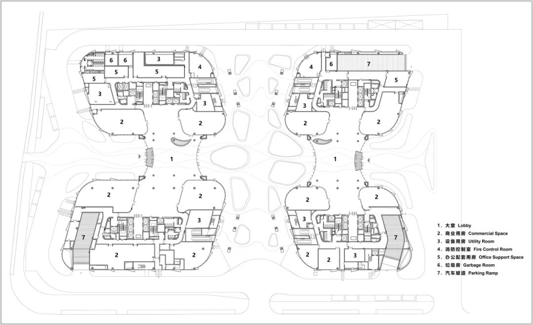
一层平面图
© UAD
立面图
© UAD
剖面图
© UAD
项目信息
—
项目名称丨
杭州太平金融大厦
设计单位丨
浙江大学建筑设计研究院、SmithGroup
项目类型丨
办公建筑
项目地址丨
浙江 杭州
建筑面积丨
156518.5 ㎡
项目摄影丨
章鱼见筑
方案设计丨
John Tran、Michelle Ray、Steve Roberts、Amy Dooley、Rick Jones、殳旻、丁文琼、王燕、谭海彬、吴岚、王苏华、吕琳姗
工程负责人丨
黎冰
设计总负责人丨
杨易栋
建筑设计丨
徐若峰、黄廷东、陈治宇、王越盈、张衡
结构设计丨
张明山、李本悦、陈可鹏、夏亮、杨嘉胤、陈敏伟
给排水设计丨
王靖华、龚增荣、黄正杰、邓毅
暖通设计丨
杨毅、李浩军、吴剑平、朱晟炜
电气设计丨
李平、董绍兵、刘海峰、崔浩、张坚伟
弱电设计丨
陈佳
幕墙设计丨
杭飞、钭丽莎、王磊
室内设计丨
董浩
景观设计丨
夏继明、张倍倍、兰悦
建筑照明丨
王小冬、刘一晗、傅东明
施工方丨
中建三局
委托方丨
太平置业(杭州)有限公司
本资料声明:
1.本文为建筑设计技术分析,仅供欣赏学习。
2.本资料为要约邀请,不视为要约,所有政府、政策信息均来源于官方披露信息,具体以实物、政府主管部门批准文件及买卖双方签订的商品房买卖合同约定为准。如有变化恕不另行通知。
3.因编辑需要,文字和图片无必然联系,仅供读者参考;

微信公众号“搜建筑”(ID:sjz9999)
合作、宣传、投稿
联系微信:soujianzhu006

