▲ 更多精品,关注“搜建筑”
GP建筑设计

© ACF

© ACF

© ACF

© ACF

© Arch-Exist Photography
Embracing the Conrad brand’s dual focus as a luxury business hotel with leisure amenities, the Conrad Shenzhen’s massing is designed to embody these two core values. The guestroom tower is positioned along the eastern edge of the site and borders the adjacent business district. Efficiently designed as a slab tower with a double-loaded corridor, the tower creates a street wall that simultaneously embraces the district’s urban core while creating a boundary that defines its edge. The repeating modularity of 5.4-meter-wide rooms creates a luxurious yet rational regularity to the tower organization.

© Hilton

© ACF

© ACF
裙楼包含了所有酒店配套设施,由一系列层叠的室外空间组成,让人想起附近山坡的梯田。在地面层,裙楼体量被抬高,形成一个 2,000 平方米的门廊,使景观能够延伸到整个场地,并打开了邻近湿地的视野,从这里开始,客人向上五层到达酒店大堂,在进入大堂前,一个露台花园展现在人们眼前,置身于露台空间让人产生了一种远离喧嚣商务世界进入安静绿洲的感觉,并通过精致的材料选择和优雅的设计手法营造出幽静的氛围,让艺术和自然渗透到露台,强化了裙楼设施的休闲特色,包括酒吧的户外用餐区、池畔小屋和享用下午茶的休闲露台。
The podium, containing all the hotel amenities, is organized as a series of cascading outdoor spaces reminiscent of the nearby terraced hillsides. At the ground level, the podium volume is lifted to create a 2,000-square-meter porte cochère, which allows the landscape to extend across the site and opens views to the adjacent wetlands. From here, guests ascend five floors to the arrival lobby, where the terraced gardens open before them. These outdoor spaces provide an oasis from the demands of business and create a contemplative atmosphere rich in elegantly refined materials and design. Art and nature permeate the terraces, reinforcing the more leisurely character of the podium amenities, which include outdoor dining at the bar, poolside cabanas, and a lounge terrace for afternoon tea.

© Arch-Exist Photography

© ACF

© ACF
“康莱德酒店提供不同于其它深圳酒店的体验,”GP首席执行官兼总裁James Zheng先生(AIA LEED AP)说,“裙楼顶部的大型景观屋面为深圳核心地段提供了一个宁静的花园环境。”
“Conrad Shenzhen offers a hotel experience unlike any other in the city,” said GP CEO and President James Zheng, AIA, LEED AP. “The large, landscaped roof atop the podium provides a serene garden setting in the heart of Shenzhen.”

© Arch-Exist Photography

© ACF
客房外墙设计通过奢华材料和精妙细节的结合,加强了商务与休闲之间的相互变换。纹理石材采用青铜金属框架,形成了清晰的几何形状,在温暖的阳光照射下变得柔和。穿孔青铜屏隐藏了可开启窗,同时过滤阳光进入客房。超大落地玻璃3.1米宽2.85 米高,位于客房中间位置,周围的景观一览无余。立面微妙的起伏韵律在严谨的设计中有趣地反射着阳光,就像前海的海面涟漪一样。

© ACF

© Arch-Exist Photography
温暖的石材、青铜金属和隔热玻璃组成的丰富立面色调营造出低调精致的形象。整个塔楼的立面材料交织在一起,形成纹理,强调全天光线下体量的变化。这种编织图案有意将设计与深圳地区早期具有重要意义的当地渔篮的编织纹理联系起来,通过这种方式,设计融入了重要的传统特征,同时通过使用精致的材料和优雅的细节来提升,融入了当地环境-这种成熟与深圳本身的转型有异曲同工之处。

© ACF

© Arch-Exist Photography
深圳康莱德酒店的开业标志着GP第30家酒店的落成。GP在中国近期的其它酒店项目包括已竣工的深圳湾安达仕酒店、三亚瑰丽酒店、广州柏悦酒店和成都群光君悦酒店,以及正在建设中的杭州四季酒店和上海汤普森酒店。GP的酒店项目遍及三大洲28个城市,10个酒店运营商和23个品牌。作为独立建筑还是综合开发体的一部分,项目范围涵盖了小型精品酒店到大型都市豪华酒店。
The opening of the Conrad Shenzhen marks GP’s 30th completed hotel. Other recent hotel projects in China include the completed Andaz Shenzhen Bay, Rosewood Sanya, Park Hyatt Guangzhou and Grand Hyatt Chengdu, along with the Four Seasons Hangzhou and Thompson Shanghai, which are both under construction. The firm has designed properties across three continents and 28 cities, representing 10 operators and 23 brands. Projects have ranged from small, boutique properties to large, urban luxury developments—either as stand-alone buildings or as part of integrated mixed-use complexes.

© ACF

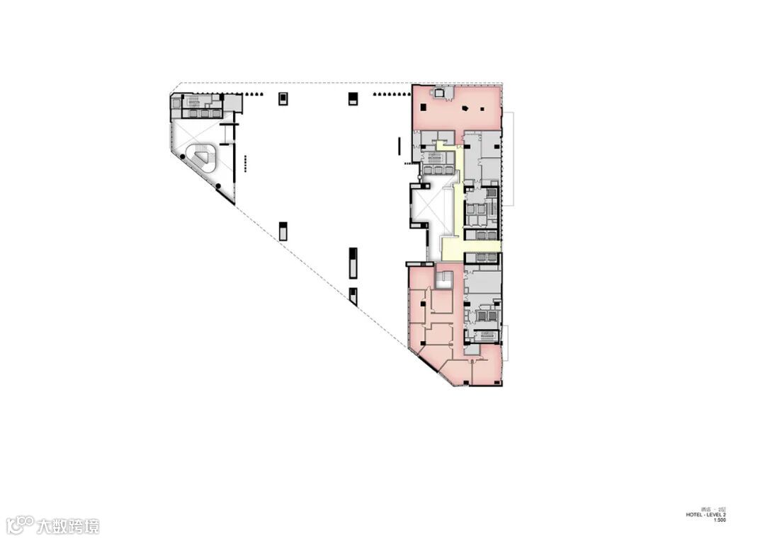
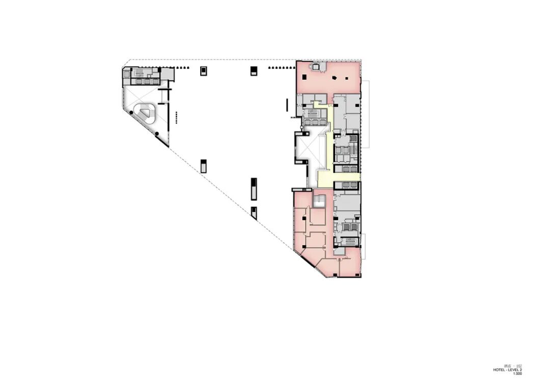
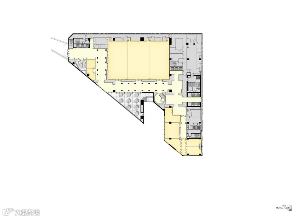
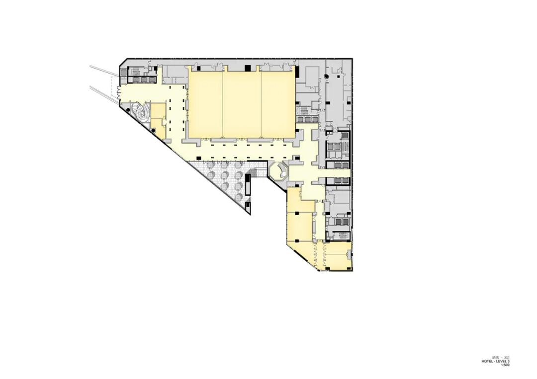
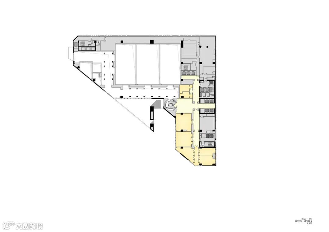
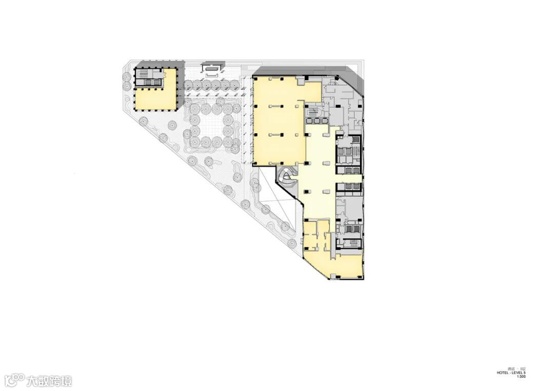
平面图

平面图

平面图

平面图

平面图

平面图

平面图

平面图

平面图

立面图

分析图

细节图

细节图

细节图

本资料声明:
1.本文为建筑设计技术分析,仅供欣赏学习。
2.本资料为要约邀请,不视为要约,所有政府、政策信息均来源于官方披露信息,具体以实物、政府主管部门批准文件及买卖双方签订的商品房买卖合同约定为准。如有变化恕不另行通知。
3.因编辑需要,文字和图片无必然联系,仅供读者参考;

微信公众号“搜建筑”(ID:sjz9999)
合作、宣传、投稿
联系微信:soujianzhu006

