▲ 更多精品,关注“搜建筑”
当下楼市鼎豪版图,风靡鼎级财富圈的大平层产品价值斐然,同时也衍生了多样化的品质需求,一层一户全平层产品,突破普通住宅产品的设计理念,一整层只有一户,专属双电梯直达,有些还是双动线入户,近乎360°无遮挡的全平层。
本期搜建筑分享一些市面上新的一层一户(300-400㎡面积段)全平层户型产品。
1
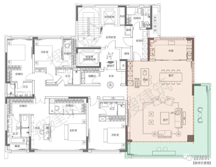
天津融创·梅江壹号院建面约353㎡四室两厅四卫大平层户型,大面宽、全景观、实用主义的功能空间布局,打造了约11米宽餐客厅LDK一体化的边厅,270°IMAX落地窗,与城市空间无界共融。创意中西双厨配置,包容所有家庭成员对美食的向往。豪华酒店式套房的灵感,主卧内部配置步入式时尚衣帽间、南向飘窗及独立卫浴,营造奢雅的休假时光。

建面约353㎡户型图




融创·梅江壹号院实景图
梅江壹号院三期地块外立面选用大面积落地窗、暖金色铝板相结合,建筑立面的流动态,呈现轻反射与明暗变化。


融创·梅江壹号院效果图
2
盐城招商雍华府建筑面积约350㎡户型位于整个社区楼王位置,一层一户、双梯入户(主人梯和保姆梯),具有别墅的尺度,又有很好的居住氛围,突破了普通产品的设计理念,实现了大面宽、全景观、功能齐全的空间布局。客餐厅面积就近100㎡,约15米的L型奢阔观景阳台,主卧更是参照星级酒店行政套房设计,面积足有约60㎡左右,空间十分阔绰。

建筑面积约350㎡户型图

建面约350㎡实景图
雍华府打造26栋住宅,整体西高东低的楼栋排布营造,把更多建筑的空间让位于景观园林。项目保温一体板立面+突出的窗墙比,地上地下双大堂设计,四重设计的精装品质车库、堪称艺术品的高级会所....


盐城招商雍华府效果图
3
嘉兴鸿翔传承印一层一户设计,最高约3.5米的层高,建筑面积约318㎡整个户型,一侧是超大边厅,一侧是总统套房,舒适度极高。

建筑面积约318㎡户型图
鸿翔·传承印运用高超工艺,突破性地将铝板幕墙与大面积LOW-E玻璃融为一体,在建筑顶部,穿孔铝板+射灯的组合,创造出一种极具高级奢雅质感的超现代化立面,辉映着海盐国际化的时代潮流和气象。


嘉兴鸿翔传承印效果图
4
重庆龙湖金茂北岛打破常规,推出建筑面积约400㎡天际方舟大平层,为城市豪宅注入新思路。

整体户型以方舟轮廓塑形空间表达,超越豪宅想象,超30米面宽,是普通独栋的近3倍,一层一户,两梯一户设计,独享平层整层空间,两座6米挑高空中庭院,双向270°视野。还有约100㎡ CEO宽幕私享会所、约6.5m面宽IMAX总裁宴会厅、圈层派对天空花园,联袂超110㎡ 云端夏威夷主卧、自由方舟G-ZONE、环球品味双厨岛台,打造一半顶端会所,一半自由私邸的空间格局。

重庆龙湖金茂北岛实景图
5
招商西安序建筑面积约301㎡户型、建筑面积约370㎡户型产品,设计270°环幕观景,营造光与视野的美学;LDKS超大开放式阔绰复合宽厅,将餐厅、书房、客厅、书房贯通给予奢阔空间;尊崇套房设计给予私密生活空间,为居住于此的城市高净值人群营造高品质生活。

建筑面积约301㎡户型图

建筑面积约370㎡户型图
招商西安序打造15栋小高层住宅,呈现出一层一世界的享受。

公建化铝板幕墙+LOW-E材质组合,弧形更灵动、轻盈,仿若飞鸟即将振臂高飞。

招商西安序效果图


招商西安序项目实景图 © HZS滙张思
6
嘉兴鸿翔东望隽府全盘共计333户大平层,一层一户,双电梯设计,其中约365㎡“都会大平层”总面宽约29.9米,餐客厅区域面积约94㎡,加上阳台,整个活动空间总面积超过了约106㎡。

建面约365㎡户型图
四套房设计,力求每个房间都舒适,并且把更多的空间场景,让渡给餐客厅的活动区。尤其主卧更是达到了五星级总统套房的标准,约5.1m面宽,面积约60㎡。


嘉兴鸿翔东望隽府效果图
7
城发恒伟·洋湖映2009建筑面积约321㎡户型,两梯一户的设计,隐私性俱佳;3阳台设计,270°转角瞰景便利,可以多方位享受阳光美景,约24.7米南向面宽,近8米宽厅,宽敞明亮,阔绰的尺度,霸气全开;5套房设计,将人性化融入品质肌理,大写的体面。

建筑面积约321㎡户型图

城发恒伟·洋湖映2009效果图
8
科大·湖沁湾建面约约330㎡的大平层所有功能区全明采光、通风,公区LDKG一体化设计,超60㎡的客餐厅空间、约18.2米长大阳台、超大厨房空间。尤其超60㎡的客餐厅空间,相当于一套140㎡户型一半的套内面积。南向三个套房卧室,尤其主卧套房带独立观景阳台。

建筑面积约330㎡户型图
科大·湖沁湾效果图
9
嘉兴紫城峰荟里建面约400㎡户型,一层一户,独立电梯厅、进门的独立玄关以及朝南面的无敌面宽,270°超环幕U型阳台,约39米超长采光面,享IMAX宽幕观景视野。全套房设计,每个房间均配备独立卫生间,家人各有天地,不被打扰。双主卧的设计,约7.5m和6m的开间尺度,更是超越市面上一众户型的客厅宽度。

嘉兴紫城峰荟里建面约400㎡户型图
嘉兴紫城峰荟里在建筑、立面、用材和工艺等方面的都做到了近乎完美,建筑全立面采用铝板+石材+玻璃幕墙,成为的豪宅的标配。


峰荟里效果图
10
南京颐和天晟府由颐居建设、奥体建设联合开发,打造10幢27-30F高层,约430户科技住宅,层高约3.3-3.5米。

建面约385㎡户型图
建面约385㎡每层仅做一户,4个卫生间,全明卫设计,空间奢阔。约90㎡LDK客餐厅一体化设计,罕见9.6米的宽阔客厅开间;约75㎡行政套房主卧,包含独立卫浴空间、独立行政空间、独立衣帽空间、独立休息空间。

颐和·天晟府效果图(实际以交付为准)
干挂石材+铝板幕墙外立面,阳台全落地玻璃,高颜值外立面。
在豪宅市场中,暗藏了无限惊喜,超前的一层一户做出了更大胆的生活场景革创,改变了我们对于居家空间的想象。
本资料声明:
1.本文为建筑设计技术分析,仅供欣赏学习。
2.本资料为要约邀请,不视为要约,所有政府、政策信息均来源于官方披露信息,具体以实物、政府主管部门批准文件及买卖双方签订的商品房买卖合同约定为准。如有变化恕不另行通知。
3.因编辑需要,文字和图片无必然联系,仅供读者参考;

微信公众号“搜建筑”(ID:sjz9999)
合作、宣传、投稿
联系微信:soujianzhu006



