
首都国际会展中心(CIECC)将北京现有的展览场地面积扩展至超过611,000平方米。新建设了九个展览馆、三个接待厅、一个可容纳9,000名代表的会议中心以及一个设有410间客房的酒店。CIECC的模块化建造大大缩短了开发时间,同时也降低了投资和运营成本。
CIECC expands Beijing's existing exhibition venue to over 611,000 sqm. Providing nine new exhibition halls, three reception halls, a conference center for 9,000 delegates and a hotel with 410 rooms. CIECC's modular fabrication and construction minimized the center's development time, investment and operational costs.

作为商业、文化和政府的中心,北京在服务业和数字技术行业迅速发展。随着北京企业部门的持续扩张,城市举办会议、国际会议和行业博览会的需求日益增加,吸引了来自中国乃至全球的代表。
A leading center of commerce, culture and government, Beijing has seen significant growth in the city's service and digital technology industries. This continued expansion of Beijing's corporate sectors has increased demand for the city to host conventions, international conferences and industry expos attended by delegates from throughout China and around the world.

由扎哈·哈迪德建筑事务所设计的新首都国际会展中心(CIECC)成为北京最大、最先进的展览和会议场所。新中心不仅拓展了现有设施,还新增了九个展览馆、三个接待厅、一个可容纳9,000人的会议中心和一个410间客房的酒店。
Meeting this growth, the new Capital International Exhibition & Convention Center (CIECC) by Zaha Hadid Architects is Beijing's largest and most advanced exhibition and convention venue; expanding the city's existing facility to over 611,000 sq. m with nine new exhibition halls as well as three new reception halls, a conference center for 9,000 delegates and a hotel with 410 rooms.
CIECC位于北京地铁15号线附近,坐落于顺义区,临近首都国际机场。中心的南北主轴是九个展览馆的主要连接线,提供了明确的导向、极高的灵活性和效率,还创造了一个包括遮蔽的户外活动空间和景观花园的中央庭院聚集地。
Located on Line 15 of the Beijing Subway network within the city's Shunyi District adjacent to Capital International Airport, the CIECC's central north-south axis serves as the primary connector between the nine exhibition halls; providing navigational clarity, maximum flexibility and efficiency, as well as creating a central courtyard and gathering place within sheltered outdoor event spaces and landscaped gardens.

设计以“丝带”为概念,将所有新设施紧密连接。中央庭院上方的桥梁连接展览馆、会议中心和酒店,实现了室内各活动空间的无缝流通。会议中心和酒店位于场地北侧,共同界定了一个新的用于展览和活动的公共广场。CIECC内部的人流、货物流和车流被划分为三条独立路线,优化流通,增加适应性,同时避免不同活动之间的干扰。
Conceived as 'ribbons' that weave together all the new facilities, bridges above this central courtyard also connect the exhibition halls, conference center and hotel, to provide indoor circulation between event spaces. The conference center and hotel are located to the north of the site, defining a new public square for exhibitions and events. The movement of people, goods, and vehicles throughout the CIECC is divided into three distinct routes to aid circulation, provide optimal adaptability and avoid disruption to different concurring events.

CIECC的复合屋顶系统采用对称的几何形状,形成了一个隔热、轻质、大跨度的结构,提供了可快速适应不同展览和使用需求的无柱空间。这种模块化的制造和建设最大限度地减少了中心的开发时间、投资和运营成本。中心的建筑设计流畅,采用深铜色褶皱外立面和大型后退式窗户,巧妙平衡了CIECC的巨大工业规模和材料感。
The CIECC's composite roof system of symmetric geometries creates an insulated, lightweight, large-span structure providing column-free spaces that can be quickly adapted to changes in exhibitions and nature of use. This modular fabrication and construction minimized the center's development time, investment, and operational costs. The center's fluid architectural language and pleated, deep copper-colored façade incorporating large, recessed windows, have been designed to balance the CIECC's immense industrial scale and materiality.

中心获得中国绿色建筑最高认证,采用智能建筑管理系统和混合通风技术,确保最佳自然通风,配合高效能HVAC设备提升室内空气质量并最大限度降低能耗。CIECC的雨水收集、灰水回收和光伏发电系统将减少对城市公共供应系统的水和能源需求。
Achieving the highest certification of China's Green Building Program, the center uses smart building management systems with hybrid ventilation, ensuring optimum natural ventilation supported by high-efficiency HVAC equipment to enhance indoor air quality and minimize energy consumption. Rainwater collection throughout CIECC's extensive footprint, grey water recycling, and photovoltaics for on-site energy generation will reduce water and energy demand from the city's municipal supply.

展览中心平面-L02
会议中心平面-L01
会议中心平面-L02
酒店平面-L02
酒店平面-屋顶
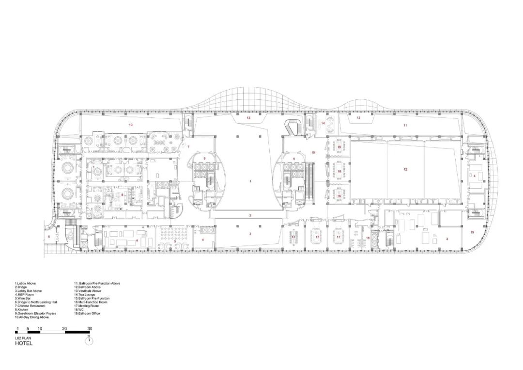
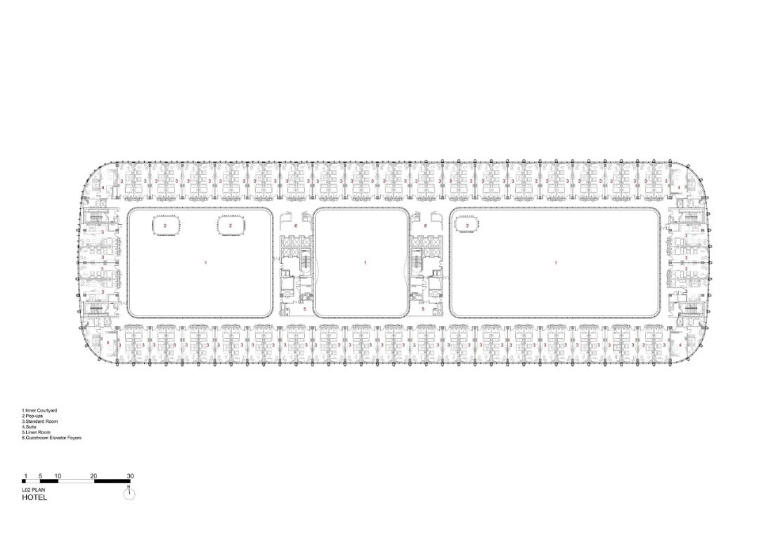
扩大酒店平面-L02
扩大酒店平面-L05-06
展览中心立面
酒店立面
会议中心剖面
酒店立面细节
桥梁,底部结构布局
会议中心,平面及结构布局
展览馆布局
展览馆,机电设备盒结构布局
展览馆,整体结构布局
北侧大厅,折叠屋顶结构布局
南侧大厅,整体结构布局
项目信息
建筑师:Zaha Hadid Architects (ZHA)
地点:北京
本资料声明:
1.本文为建筑设计技术分析,仅供欣赏学习。
2.本资料为要约邀请,不视为要约,所有政府、政策信息均来源于官方披露信息,具体以实物、政府主管部门批准文件及买卖双方签订的商品房买卖合同约定为准。如有变化恕不另行通知。
3.因编辑需要,文字和图片无必然联系,仅供读者参考;

微信公众号“搜建筑”(ID:sjz9999)
合作、宣传、投稿
联系微信:soujianzhu006