▲ 更多精品,关注“搜建筑”

我们的目标是开发一种新的类型,考虑到场地的独特品质,并使居民和邻近社区能够感受到它们。该开发项目由六栋木材建造的住宅建筑组成,坐落在向东北倾斜的陡峭地形上。这些建筑排成两排,后排俯瞰前排。每一排住宅楼层向下延伸到停车场前面。公寓跨越两层,将住宅立面降至地面,同时隐藏后面的长停车场。

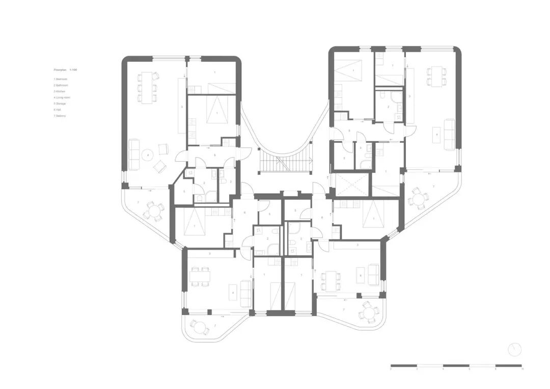
每栋住宅楼都被组织成马蹄形,每层有四个公寓,围绕着一个紧凑的走廊。阳台位于每座建筑的东南和西侧,以确保每个阳台都能接受阳光和视野。木结构系统由承重内墙、实木地板、屋顶和承重木结构立面组成。立面具有独特的有机表达,但下面的实际气候壳由直的表面组成。通过在当地建造的阳台栏杆中引入柔软、弯曲的角落来实现表达,并顺利过渡到其他立面。气候墙是预制的,窗户、包层和配件已经到位。

该基地位于一条受保护的大道上,毗邻一些小林地。这形成了项目名称“Husene i Skogen”(森林中的房子)背后的灵感。除了使“Husene i Skogen”成为一个木材项目外,建筑师还努力在室外区域和公共设施中唤起场地的乡村特色。在两排住宅之间,有一个宽敞且阳光充足的户外区域,包括公共住宅、温室和种植区。公共住宅利用了室外区域的高差,由一个带有玻璃立面的屋顶结构组成。该地区的设计保持了乡村特色,避免了沥青、路沿石和典型的城市元素。


项目图纸
▲模型图
摄影:Sindre Ellingsen
本资料声明:
1.本文为建筑设计技术分析,仅供欣赏学习。
2.本资料为要约邀请,不视为要约,所有政府、政策信息均来源于官方披露信息,具体以实物、政府主管部门批准文件及买卖双方签订的商品房买卖合同约定为准。如有变化恕不另行通知。
3.因编辑需要,文字和图片无必然联系,仅供读者参考;

微信公众号“搜建筑”(ID:sjz9999)
合作、宣传、投稿
联系微信:soujianzhu006



