富春江边的江南韵味
华东师范大学附属桐庐学校(一期)
华东师范大学附属桐庐学校位于桐庐城南街道,分两期。
© UAD
©陈曦工作室
一、二期用地被主干道白云源路切割成两个部分,由地下连通道相联系。其中一期建设内容包含九年制义务教育的小学部、初中部、(一、二期共享的)综合中心、运动中心、演艺中心,以及地下停车库及附属配套用房。二期则包含了幼儿园、高中部、交流中心(校史馆)、师训综合楼和地下停车库等。
一期总用地面积70790平方米,总建筑面积83590平方米(其中地上建筑面积70490平方米,地下建筑面积13100平方米),容积率1.0,建筑密度35%,绿地率35%,建筑高度均小于24米。
场地高程整体上南高北低,南北最大高差约4米。不同城市道路方向的出入口高差通过相应建筑组团底层标高的不同得以化解。位于一层的空间,如游泳馆、食堂等本身需要较大层高时,适当降低一层正负零标高,二层就能平接。而部分楼栋间二层存在高差处,可通过平缓的坡道连桥得以化解;
出于对场地和空间经济性的考虑,设计从一开始就尽量避免出现超尺度的“大建筑”“长建筑”。富春江在用地以北的流向决定了项目用地形状和正南北方向偏转了近45度。虽然用地周边路网非正南北,但主要教学空间和住宿楼的建筑布局还是正南北朝向,并利用南北连廊增加部分东西向辅助房间以提高利用率,形成了一个个尺度合宜,且带有被用地斜切边角的“团块化”建筑体。
一期整体轴测图
© UAD
对应这种紧凑的平面形态,组织了小学、初中两个学部。每个学部都是一个完整的“综合体”。综合体内可以独立完成教学、住宿、运动和上下学接送等绝大部分功能,且达成了各种功能场景间的最快切换,实现了“大”校园中的“近”。
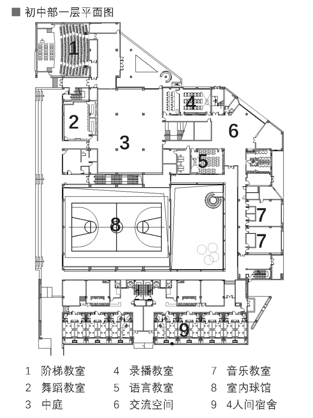
初中部平面图 © UAD
初中部教学楼©喦建筑|赵赛
初中部主入口
©喦建筑|赵赛
©喦建筑|赵赛
初中部图书角
©喦建筑|赵赛
初中部走道
©喦建筑|赵赛
初中部中庭
©喦建筑|赵赛
初中部实验室
©喦建筑|赵赛
而双首层的步行流线设计可确保这些团块化建筑体之间的有机连接——即底层可无伞化通达各功能空间,二层各建筑出入口由平台完整串联。
©喦建筑|赵赛
小学部二层平台
©喦建筑|赵赛
小学部教学楼二层平台看综合中心
©喦建筑|赵赛
食堂二层通向小学部宿舍楼
©方炜淼
综合中心二层架空层
©喦建筑|赵赛
一期校园设多个出入口,朝主干道白云源路设一个正对综合中心的形象出入口,操场西侧设一后勤口。一、二期共享的功能空间全部集中在形象口附近并和一、二期地下连通道相临近,既满足了学校对外形象展示的需求,也方便了二期高中生的跨街使用。
运动中心明亮的篮球馆
©喦建筑|赵赛
运动中心游泳馆
©喦建筑|赵赛
考虑到小学和初中的年龄和身体差异,初中部和小学部在布局上分列东西两端,由几个“中心”隔开,且分别在两条城市道路上设独立出入口,既便于上下学的瞬时集散,也试图从空间上避免因年龄差距而催生的校园霸凌行为的可能性。
本项目是建设单位投资的第一个教育类项目,是桐商衣锦还乡后的回馈之作。首先,出于安全考虑,对于外墙饰面材料甲方规定只能用涂料,而项目的高容积率高密度决定了以明快的白色为主色是理性的选择;另外,由于甲方希望强调桐庐作为富春山居所在的正宗江南形象,一期建筑都加上了一层坡屋顶(二期建筑在强调“国际化办学”的理念下保持了平屋顶的设计)。由此,建筑群整体呈现出“粉墙黛瓦”之姿。沿白云源路建筑山墙面也被特意的大量“留白”或少量“点墨”,再现了江南水乡建筑之独特韵味。
©喦建筑|赵赛
建筑细节
©喦建筑|赵赛
设计通过对大量江南传统建筑坡屋面类型的比对,最终确定以相对现代的连续折面型单坡屋顶来组合错落。经设计安排,主入口沿街的综合中心立面处正好是单坡屋面高处,临街未见坡屋面。综合中心立面的虚实对比简洁现代,以此达成和二期建筑的形象协调。
主入口广场
©喦建筑|赵赛
综合中心大厅
©喦建筑|赵赛
建筑立面除了主墙面明快的白色涂料外,还添加了相对沉着的各种灰色元素——包括底层外墙的灰色陶砖、栏板女儿墙的灰色铝板压顶、第五立面的灰色平板陶瓦等等。而少量代表“活力”的橙红、橙黄色的点缀则是试图和中小学校建筑性格特征相符合。
©方炜淼
小学部内庭院
©喦建筑|赵赛
白云源路以北正对综合中心设置主广场作为校园形象出入口,进入综合中心底层大堂,对景近4000平方米的中央花园一览无遗。中央花园又与其他中、小型院落互相渗透,形成多层次的景观布置。
由于校园容积率和密度均较大,建筑群采用院落式组织。各建筑体量由环通整个校园的二层平台所串联,并由此围合出多个大小不一的室外花园。为学生、教师的学习生活提供了移步换景的空间环境和舒适宜人的交流空间,景观院落结合室内外各个高程的步行流线设计,最终形成了立体而丰富的景观环境。
©喦建筑|赵赛
绿化底层总平面图
© UAD
项目信息
—
项目名称丨
华东师范大学附属桐庐学校(一期)
建筑设计丨
浙江大学建筑设计研究院
项目类型丨
教育建筑
项目地址丨
浙江 杭州 桐庐
主创设计丨
方炜淼、吴震陵
建筑设计丨
毛军列、赵超楠、石绍聪、何伟超、赵黎晨、吕晓峰
结构设计丨
潘加富、胡波、金鑫、巫陈亮
给排水设计丨
汪奕贝、张楠、陈森亮、蔡昂
暖通设计丨
宁太刚、张蔚琳、王志强、曾菲、朱思睿
电气设计丨
杨文征、俞侃、朱继承、李蕴珺、丰建华
智能化设计丨
江兵、王菲
室内设计丨
李静源、方彧、王冠粹、卢晓凌、黄江慧、孙俊
幕墙设计丨
史炯炯、王建忠、宣赵康
景观设计丨
吴维凌、王洁涛、吴敌、朱靖、黄静宜、姚海燕、顾静娴、何颖
岩土设计丨
陈赟、杨勤锋、方利泽
建筑摄影丨
喦建筑丨赵赛、陈曦工作室、方炜淼
业主方丨
杭州桐庐恒泽投资有限公司
施工方丨
浙江富泰建设有限公司
本资料声明:
1.本文为建筑设计技术分析,仅供欣赏学习。
2.本资料为要约邀请,不视为要约,所有政府、政策信息均来源于官方披露信息,具体以实物、政府主管部门批准文件及买卖双方签订的商品房买卖合同约定为准。如有变化恕不另行通知。
3.因编辑需要,文字和图片无必然联系,仅供读者参考;

微信公众号“搜建筑”(ID:sjz9999)
合作、宣传、投稿
联系微信:soujianzhu006



