大数跨境
0
0

学习新产品 | 苏州+无锡:四代住宅+合院+叠墅+洋房+大平层【考察+讲解】

学习新产品 | 苏州+无锡:四代住宅+合院+叠墅+洋房+大平层【考察+讲解】 搜建筑
2025-04-03
0
▲ 更多精品,关注全球精品楼盘考察
2025,各地住宅的发展趋势来了……


第四代住宅 产品进步和市场发展,更加成熟和完善,不仅是建筑行业技术层面的迭代,同时也是各大房企的创新发展方向。
高品质住作为各地新住宅建设标准的实施,产品创新、建筑材料、施工品质、物业服务等方面,体现出精益求精的态度……已是未来住宅发展的必然趋势。


四代住宅和高品质项目,如何落地实操?

苏州和无锡的四代和高品质住宅产品,累计了大量的落地经验,在此,搜建筑携手四代和高品质住宅专家,通过楼盘案例,分享、探讨当前市场如何落地实施,如何通过创新,赋能产品力升级、助力企业发展。


第四代住宅+高品质住宅
专题考察+房企论见会
【苏州 · 无锡


▲ 无锡·奥体潮鸣
▲ 蓝城·湖亭望月
蠡棠森屿
▲ 龙湖·未来御湖境
▲ 迎龙观月
▲ 无锡·雲湖别院



温馨提示:苏州无锡楼盘活动,本次安排6-7个参观,部分项目根据现场情况可能会有调整。感兴趣的朋友请及时报名。


 分享会亮点:
一、第四代住宅:政策与设计要点
二、第四代住宅:成本把控、精细化落地经验
三、高品质住宅:创新趋势实操方法

报名+咨询 

1、扫描二维码 加好友咨询

咨询微信:soujianzhu03


咨询微信:soujianzhu008


2、联系电话:181 3265 7351(微信同号)


蠡棠森屿

方案设计:上海日清


蠡棠森屿是苏州主城首个第四代住宅,由苏州相城经开国控和旭辉建管联袂打造。旭辉建管"森屿系"1号作品。项目采用了错层阳台立面设计。户户拥有大露台。通过露台外伸、奇偶层错位的设计,以及客厅与花园两层通高联通的方式,以L型咬合方式形成环幕边厅花园拥有270°的无遮挡开阔视野,形成真正意义上的空中庭院。

20栋小高层以12-17F黄金高度错动布局,楼间距最宽达到约60米,相当于3个标准足球场的呼吸尺度,确保低层住户也能拥有无遮挡的采光权。

项目以曲面转角院落+南北双花园的创新设计,打造户均约30-50㎡空中庭院矩阵。最大约75㎡可使用露台面积,相当于将一整套普通刚需小户型的空间馈赠给生活。

如果将视线再拉远,会发现双曲面铝板工艺的建筑立面与空中庭院实现「生态无缝衔」,每层错动退台形成「梯田式」绿化矩阵,形成会呼吸的立体屏风。


主入口是社区向城市展现气度与格调的最直观表达,蠡棠森屿的设计灵感源自迪拜艾迪逊酒店,开创了苏州豪宅前所未有的宏大气派——一条约200米长的超尺度迎宾大道,踏上去有种走上星光红毯的尊贵感。


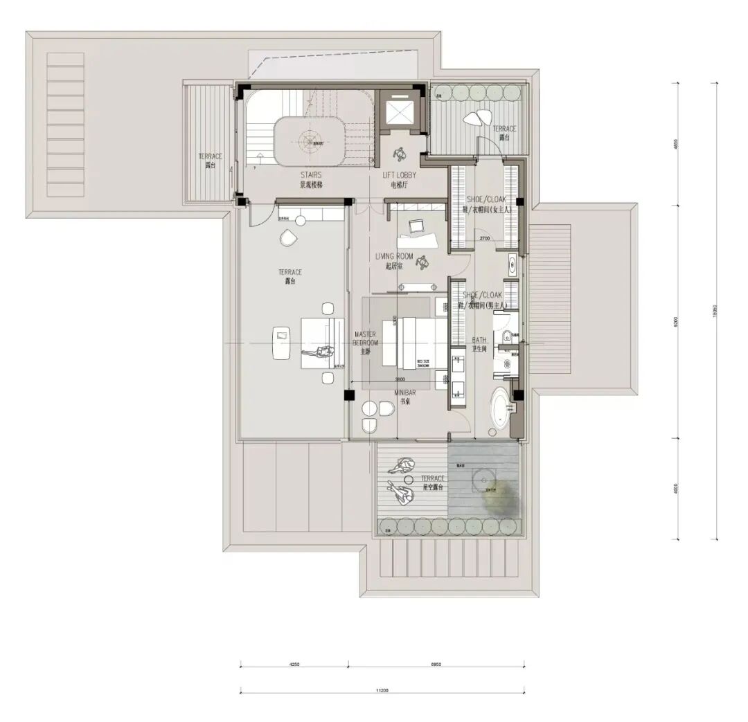
蠡棠森屿共计打造了3个面积段、6种户型,建面约150㎡、约185㎡、约220㎡,都是一梯一户大平层+约30-50㎡的墅级空中庭院,让生活的每一秒能能自主呼吸。

户型赏析


[ 滑动查看 ]


无锡·奥体潮鸣


太湖新城集团&绿城管理联袂打造的奥体潮鸣,定位为低密叠墅+一线湖景大平层,规划有15栋5层、14栋7层叠墅,建面约219-326㎡(不含地下室)、10栋21-24层高层住宅,建面约155-278㎡,面向高端改善人群。

奥体潮鸣 6叠外立面 实景
奥体潮鸣大四叠外立面 实景
奥体潮鸣 高层外立面实景
项目汲取奥体中心与太湖的无限流淌感,用灵动的竖向线条模拟湖面流淌与波动的状态,用几何解构的方式创造出一种新的波动形状,恰好呼应了无锡时代发展中「潮」的精神内涵。

外立面用圆弧转角代替传统直角,搭配大面积的玻璃窗,较高的窗墙比,将视野无限打开延伸,就像一个 “宽屏取景器”,将太湖的风景框入其中,成为生活的一部分,让太湖成为一片可私享的自家湖岸。

奥体潮鸣 6叠外立面实景
即将公开的G1主题架空层,地面精选深色仿古地砖,墙面采用浅色墙面砖,缀以金色隔断屏风,整体视觉上传达了一种雅奢的腔调。除了文创区,G1架空层内还打造社区会客空间和红叶空间。既可供来访会客,邻里交流,也可变身观景的小憩之处。


坡道玄关的天花板铺设了星空顶,奥体潮鸣logo,配以定制的潮涌水波纹,熠熠生辉,点亮归家之路。


车库内部,地面采用了环氧地坪+金刚砂,部分主车道顶部是铝格栅+灯带的设计。常规车位尺寸为2.4mX5.3m,而奥体潮鸣车库做到了约2.5mX5.5m的超大停车空间,可以匹配业主保有的多种车型。



叠墅每户配置私家电梯,可独立入户,且打破常规叠墅仅下叠有地下室局限,罕见为上、中、下叠均配备地下室。各层轮廓采用弧形转角窗,以观景阳台搭配全面屏落地玻璃窗,享受全方位观景体验。

下叠样板间实景

中叠样板间实景

上叠样板间实景

▲225样板间实景


龙湖·未来御湖境
建筑设计:汇张思 / 景观设计:GVL怡境


龙湖 · 未来御湖境--苏州第四代立体生态住宅项目总建筑面积124482.08平方米(未含露台部分面积),总计容面积82950.40平方米,容积率1.6,绿地率37%,建筑密度24.98%。空中庭院面积达约20-50㎡,均约6m挑高,最大270°转角视野。


大师立面:其屋顶呈飞翼造型,转角有着如同 iPhone 般的精密弧度,尽显精奢优雅之态。



项目为16栋10-11F纯洋房低密社区,将地面的庭院“搬”到空中,采用奇偶错层排布方式,均有约 6m 的挑高,最大程度可享有 270°转角露台,能够优享绝佳的洋房观景视野。

约 80m超大尺度的景墙以及蓝翡翠奢石照壁呈现眼前,给予你酒店落客式的尊享归家体验。

约1300m²高奢观瀑泳池会所:将轻氧健身、律动瑜伽、恒温泳池、沉浸书吧、高奢会客等功能区进行配置,全力打造圈层社交的专属私域。


景观放大了树和水的元素,主要选用树王级稀贵树种,大面积的下沉式镜面水庭,中间缀以石材形成岛屿般的汀步、蜿蜒的岸线、碧波枕弦月,弧形的运用让艺术美感在园林里自由穿梭,也辗转出不同的场景韵味。



未来御湖境的户型建面约125/143/185㎡,户户空中花园+庭院,大赠送使得最高实际得房率达到120%!


图片
约125㎡样板间实景



迎龙观月

景观设计:metrostudio 迈丘设计 / 建筑/室内设计:GTD绿中设计


迎龙观月总占地约5.3万㎡,总建筑面积约13.4万㎡(含地上、地下),总体容积率约1.5。共分为A、B、C三个地块开发,总户数约338户。其中A地块容积率约1.19,是全无锡不可多得的低密地块。A地块规划3层合院、4层上下叠墅等低密产品,其中叠墅建面约260-350㎡(包含地下室),合院建面约380㎡(含地下室)。



大面积玻璃窗以及精工细作的石材幕墙,视觉效果大气震撼,和天空蓝也会相得益彰,加以香槟金色金属线条的点缀,绘就运河上空的一朵彤云。



山墙造型+层层退台的设计,形成多维立体的城市观景露台,把现代精工技艺和东方美学的意形完美融合,与惠山运河连成一片,成为主城最美风景线。



勾勒宋韵美学立面,立意中轴天际。形制龙光塔之重檐,营造永恒的东方屋檐。门楣雕刻精致挂落,外墙镶嵌龙纹格栅,白玉画屏、寻杖勾栏等中式元素融入建筑,流转江南气韵,以“石中藏玉”美好寓意,甄选奢材营造,尽显高雅……



在园林景观打造上,迎龙观月以寄畅园为蓝本,把宋风线条美学和寄畅园园林景观融合,将经典的山、水、门、院、巷、廊等府院格局,门庭礼序,以现代手法再现“一心二轴三区”的江南园境以及显赫门庭礼制。



整体恢宏大气仿佛一段充满张力的开场白,门头阔约30米,高约6米,主体范思哲黑石材用白色加以点缀,起到“石中藏玉”的美好寓意。


640.webp


叠级水景中心放置龙形曲线结合龙鳞元素艺术主题雕塑,雕塑上,一轮圆月刻画的圆润光泽,迎龙之形,观月之意,刻画了迎龙观月独一无二的门厅礼制和归家仪式感。


图片


穿过过道进入下沉庭院,站在落地玻璃,感受“松涛飞瀑”带来的震撼。这里借鉴了寄畅园中著名景点“八音涧”,叠水飞流直下,错落有致,形态各异的油松层层叠画映入眼帘,仿佛一张横轴山水,天地清旷,景深层叠,感受“非必丝与竹,山水有清音”的山水情趣。



这里每一块柏坡黄原石都是通过人工精挑细选,保留天然质感,自然排布于碧池驳岸,每一棵油松都有超百年的树龄,加起来超千年,并且每一棵树价值不菲,一池、一松、一瀑、一石,营造出清朗明洁的下沉庭院空间。



于山石之间的“松风水月”,延续寄畅园八音涧之美的“松风水月”,融合现代手法打造与山水成趣的“寻花幽涧”,将江南园林清丽秀美蕴藉其中,移步异景,视觉效果达到极致,尽显低调奢华的“隐贵”气质。



建面约350㎡下叠户型:上下两层6开间朝南,全套房设计,客厅开间达到约8m,整体约70㎡尺寸阔绰,在拉满采光面的同时,也能让外边的景观更大程度涌入室内,真正实现阳光和景观自由。



迎龙观月叠墅样板间实拍图


上叠配置有独立入户电梯,实现地上、地下双归家动线。室内拥有270°环幕视野全套房设计,保证每一位家人的居住舒适。超大露台,为生活增添呼吸感。


迎龙观月上叠样板间实拍图


无锡 · 雲湖别院


纯叠墅地块为容积率仅约1.24的臻稀低密墅境,亲地建筑与六大自然园境是亲密联结的,在植物与光影的编织中,让人沉浸在院落自然的怀抱里。


图片


以江南绿意勾画建筑的底色,融合大面灰色铝板立面,横向勾勒铝板线条及超宽屏的采光面,实现超高南向窗墙比和超阔观景视野,与内外风景相得益彰,兼具当代审美与属地特色,让建筑与艺术相互成就。


640.png


院式大平层地块则著建洲岛花园、河谷童趣、冥想花园、元气健身等意趣空间,唤回城市人群在都市中向往已久的那份惬意、松弛、自如的生活状态,趣享一部富有生命的“自然艺术作品”。


A区城市纯墅区,以江南至高礼遇的“院中园、园中院”为设计原点,打造一轴六园逸游十景的怡然逸境,以自然笔触描绘度假式理想生活。B区小高层区,以太湖涟漪为设计灵感,打造一轴一环三组团六花园。


图片
640.webp

经开少有的低密纯墅产品,建筑面积约180-310㎡;匠著地上双层多开间采光宽境、南向度假式天地院落、南北星空双露台;并探索家庭社交、高朋会晤的私密性需求,将地下约5.2米挑高空间锻造成约100㎡的私人会所。

640.webp

将景观无界延展到楼幢下,营造打破邻里情感边界的「无界泛趣」架空层,以长者空间、轻氧运动、亲子互动、全龄休闲的主题业态,重新激发更高频、多元的邻里场景,让心灵得到放松和滋养,重塑社区精神高地。


下叠【院隐】户型建面约310㎡,4室2厅4卫的三层院墅,地上六开间朝南,地下约5.2米挑高空间打造近100㎡私人会所;一楼超大南向度假式庭院与客厅相通,近50㎡全龄社交会客厅,采光视野媲美大平层。

640.png

建面约180㎡上叠【观雲】户型,上下双层南向六开间,270°环幕式方厅,客厅与四个卧室均朝南,充分享受阳光平权,私享近40㎡南北双露台,打破空间边界化,尽揽园区自然与城市繁华双重奢景。


图片

上叠样板实景图


建筑面积约128-183㎡院式大平层,以专梯入户、私厅独立玄关,为业主营造日常归家的
仪式场景;最大达19米南向四开间,酒店式套房设计,探索心灵回归和自我释放的情绪空间;270°巨幕大阳台,装得下“植物爱好者”的私家花园……
建面约183㎡户型实景图
图片
图片
640.webp
640.webp

图片
建面约128㎡客厅实景图


紫金·翡丽甲第

景观设计:LANDAU朗道 / 建筑设计:GOA / 室内设计:CCD


苏州紫金 · 翡丽甲第,项目位于苏州工业园区锦溪街东、西洛巷南。项目名分别选用北京金隅的「紫京系」和保利置业的「甲第系」,打造纯正的高端改善住宅。


图片


翡丽甲第外立面,是一次产品的巨大革新:传承帕拉迪奥母题的“柱式”语言,与半岛酒店外立面拥有异曲同工之妙,远看很现代,近看很古典,用匹敌酒店的建筑材质与设计塑造全城仰望的地标感,耐看而富有内涵。


640.webp


建筑整体营造温暖典雅的色彩氛围。石材基座质感温润,香槟金色的铝板、铜色弧形饰板、银灰色落地玻璃,结合出现代而细腻的立面形象。


640.webp


比如外立面内凹型的柱式结构两侧有同样内凹的金属格栅做点缀,但只有走到建筑内部时才会发现,格栅的背后还隐藏着一扇扇可以开启通风的窗,既在外部保证了昭示性的建筑语言,又在内部满足了基本的通风需求。

640.webp

约6米高35米宽的奢华门头+舒适的42㎡车马院落客区,打造酒店式社区归家玄关。


640.webp


入口两侧的矮墙以及大门墙面采用海鸥丽晶酒店同款工艺的浅色波纹板石材,演绎经典地标与现代奢华的碰撞,尽显摩登和傲人。沿街两侧结合矮墙和绿篱设置L形镜面水景。车道地面选择深色系的150mm×150mm福鼎黑石材,与两侧景墙这种浅色系波纹板石材的融合。

640.webp

接待门厅空间大量的运用奢石和流水进行造景,蕴含“浩瀚星空”的范思哲黑奢石流水景墙,拉槽式设计结合底部洗墙灯,营造潺潺流水的静谧意境,以“流水”表达对业主的美好祝愿。

640.webp

图片

穿过预接待厅,来到礼序水院,两侧的风雨连廊延续至品牌馆,营造酒店式无雨归家的尊贵体验,游园式连廊取意东方园林,中庭以世界奇迹西班牙阿尔罕布拉宫为灵感来源,汲取经典的水台跳泉、修剪绿篱等元素。


图片

图片

图片
图片
640.webp

720㎡的下沉式庭院—浮岛花园,以意大利法尔奈斯庄园为灵感来源,舒缓水景包裹花房廊架,水面漂浮着下沉卡座。通过地面石材、镜面水景、氛围灯的烘托、墙面的软包和石材呈现经典西式的高奢品质,打造贵族式的高级气质,还原业主星级酒店的居住体验感。

图片
640.webp

项目斥资一个小目标打造约3000㎡会所11大功能场景:半岛酒店式的恒温泳池、以首饰盒为灵感设计的行政酒廊吧台、海鸥丽晶酒店的同款艺术旋转楼、粉水晶下午茶甜品屋、专属绅士的雪茄会客厅..…..全方位满足业主游泳、健身、社交、休闲等多元生活需求。


640.webp

车库从入口开始就是大面积白世贸石材,搭配约6.3米高的车库门头、车马院同款鎏金格纹星光吊顶,成本+颜值拉满!

图片

地库光厅借鉴丽思卡尔顿酒店,通道升级为高规格水磨石地坪、雕塑造型墙,车位升级为内径约2.4米、外径约2.5米、长约5.3米豪车专属定制车位、普通星空顶升级为苏州独一无二的鎏金格纹星光吊顶…

图片
图片

秉持对高净值客群生活方式的深度调研,打造建面约190㎡、225㎡、275㎡三大洋房大平层产品。


640.webp

图片
建筑面积约190㎡A3户型样板间实景图(梁志天设计)

整体空间色调凝重高雅,瓷器、皮革和天然纤维,这些不同的材质带动空间的丰富性与趣味性,衬托出时尚、优雅、浪漫的生活品质。不同装饰感的饰品与水晶吊灯一起,展现出一场华丽的演变。

建筑面积约275㎡C1户型平面示意图

建筑面积约275㎡C1户型样板间实景图(无间设计)


湖亭望月

亨通蓝城·湖亭望月坐落于苏州湾,拥有得天独厚的地理位置。项目紧邻太湖,直线距离仅约500米,且自带约300亩内湖(龙湫湖),享有少有的一线湖景资源。此外,项目位于吴江太湖新城核心区域,周边商业、博物馆、大剧院等配套设施一应俱全,是苏州主城区内难得的大体量地块。
图片
(湖亭望月观湖大宅效果图)
是建筑,更是艺术。
苏州浓厚的历史文化底色,让中式的传统园林及建筑风格与这座城市交融共生。而在浩渺如烟的吴江太湖水岸,湖光山色,却也赋予了建筑另一番轻盈的别样审美体验。
图片

(观湖大宅创作效果图过程稿)


将传统繁复的中式化繁为简,将中式复杂的元素高度萃取,平直大气的东方屋檐下,填充进大面的玻璃立面和开阔的露台,把如镜般的太湖水面,延伸为建筑的立面,将来自大地的景观,幻化为露台上的空中庭院。湖面和立面相互映照,花园与大地彼此生长,一个伫立在湖岸的“玻璃盒子”,仿佛时代的透镜,折射出轻盈、现代、自然的大宅之美,建筑无声地融入湖岸,悄悄生长,感受万物生长与岁序更替。


图片

(望月合院创作效果图过程稿)


在更注重生态文明的当下,湖亭望月的景观营造以品质、隐奢、自然、传承为基本,打造了代表苏州“创新” 精神迭代的“苏式”水岸生活,在风景里感受“江南水乡”与“苏式大湖”之外的第三种生活方式。沿湖而生的悦+Space和已经开放的实景示范区,便是一场建筑艺术与水岸自然生活的美学共舞。

图片
(实景示范区实拍图


步入示范区,一株迎客红枫静立镜面水池前。池水如镜,倒映着天光云影与木构坡屋顶的轮廓。四方天井将天降的雨露聚拢,结合水景中心特选红枫,聚水归堂,有汇聚四时吉祥、四方之财的美好寓意。将水面波光嵌入建筑的肌理之中,自然与艺术精妙融合意境,在走进这里的第一刻,便开始显现。


图片

在传统的大尺度空间里,开放式的LDK一体化空间设计为家庭创造了朗阔的社交天地,却也在某种程度上,牺牲了家庭成员各自独立的社交圈。而一个属于世家的大宅,往往承载着多代际的家庭结构。不同代际的生活节奏、志趣不同,也让家庭空间的融合,成为一个颇为讲究的命题。
图片
(湖亭望月观湖大宅露台夕望 创作意向图过程稿)

湖亭望月观湖大宅首创“全龄代际融合”空间设计理念,将上下三层与地下空间划分为多个生活单元,有功能性的区分,却无绝对的边界。首层的观湖庭院及阳光宴客厅、二层的第二会客室、错落于各层的大面积露台空间及地下休闲空间,成为点状分布的不同家庭社交中心,属于不同代际之间的不同社交圈,便可轻松融入其中,互不打扰。

图片
图片
图片
(湖亭望月观湖大宅户型图过程稿)

【活动报名】

活动组织:
主办方:搜建筑 & 经典人居

报名+咨询 联系如下

1、扫描二维码 加好友咨询
名额有限,满员即止

咨询微信:soujianzhu03


   咨询微信:soujianzhu008


2、联系电话:18132657351(微信同号)

2025年·新产品方向

《 品牌地产 | 精品楼盘活动 》

杭州、苏州、上海

成都、郑州......

广州、福州、重庆

西安、青岛......

扫描二维码 加好友咨询

领队微信:soujianzhu03

本资料声明:

1.本文为建筑设计技术分析,仅供欣赏学习。
2.本资料为要约邀请,不视为要约,所有政府、政策信息均来源于官方披露信息,具体以实物、政府主管部门批准文件及买卖双方签订的商品房买卖合同约定为准。如有变化恕不另行通知。

3.因编辑需要,文字和图片无必然联系,仅供读者参考;

推荐关注

全球精品楼盘考察

扫描二维码关注

微信公众号:全球精品楼盘考察

合作、宣传、投稿

联系微信:soujianzhu006

搜建筑·矩阵平台

【声明】内容源于网络
0
0
搜建筑
关注全球时尚的、新的建筑资讯。
内容 10717
粉丝 0
搜建筑 关注全球时尚的、新的建筑资讯。
总阅读272
粉丝0
内容10.7k