▲ 更多精品,关注“搜建筑”
错层露台作为四代宅的第一特征,是户型研发的核心。
产品的特征是:每一户住宅都配备了一个面积不小于套内建筑面积40%的户属空中花园。
从市场上的产品来看,现在四代宅的露台面积越来越大,从十几平米扩展到几十平米,甚至有些户型户外空间占比能达到60%。
上期搜建筑为大家解析了200平以上的第四代住宅户型露台设计特点。
本期是200平以上的第四代住宅户型露台设计案例。
南北露台
我们先来看国投·铂江一品营造立体花园,它改变了户型的传统结构,让客厅、卧室与空中花园交融在一起,打破了室内外空间的边界。
比如建面约230㎡四房两厅两卫户型,约3.3米层高、前庭后院双花园,私享270°环幕视野。总统套房主卧,步入式衣帽间+独立卫浴私密起居,连接南向花园。

▲建面约230㎡户型图
通过充分放大立体生态住宅空中花园的优势,进一步在设计中通过自由、舒展的超大面宽, “延长” 通透的观景边界面,以强化内外空间的连续性,让住户在新维度也能极致贴近、感受自然。

▲效果图过程稿,不作为交付承诺
再比如建面约280㎡五室两厅五卫户型一梯一户,3.3米层高、南向L型露台连接约86.6㎡巨幕边厅,3.6米出挑空中双花园,270°一线观江,奢享级宽境套房打造,定制总裁级主卧和次卧套房均连接北向约3.6米进深的花园露台。

▲建面约280㎡户型图

▲效果图过程稿,不作为交付承诺
建筑立面设计提炼“生命之树”元素,通过纵向线条构成其向上的生长姿态,竖向线条因立体交错的“树枝”被赋予了强大的生命力。

▲效果图过程稿,不作为交付承诺
外立面采用建筑以仿白麻及暖灰色多彩漆为建筑主基色搭,配香槟金的铝型材塑造立面底色,周边以弧形元素柔化建筑形体,勾勒现代艺术的城市森野谧境,营造温润而极富秩序感的建筑审美流动漂浮的艺术制式,与城市契合打造现代美学的南平封面作品。

▲国投·铂江一品效果图
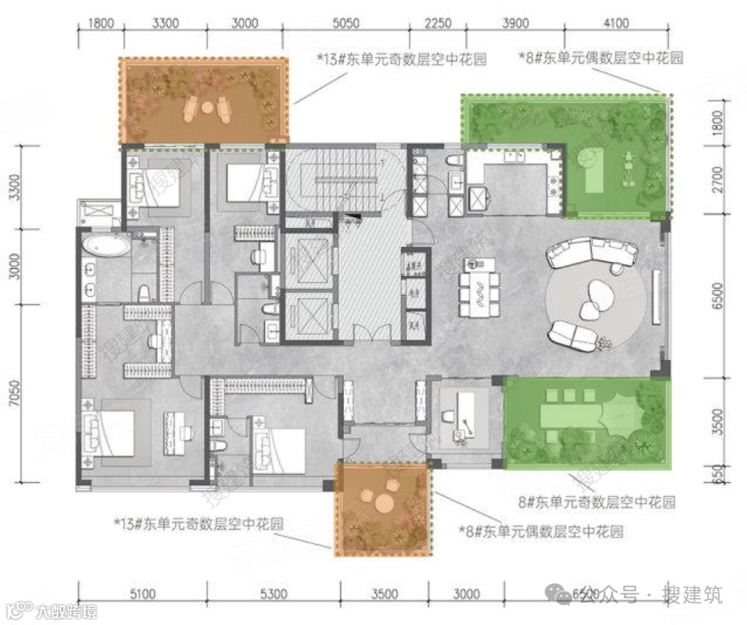
再比如西安越秀铁建·樽樾建面约260㎡户型,是高新三期内唯一的一个2T1户型,坐拥一层一户、双电梯入户的绝对私密性与尊贵感。

▲越秀铁建·樽樾建面约260㎡户型图
360度采光的巨幕端厅、次卧和书房直出约6米挑高露台花园的设计,很好地平衡了不同房间的舒适性,让每个家庭成员都能拥有自己的休闲区域。


▲平面生成©ZEN

▲越秀铁建·樽樾空中合院©ZEN
御都·珑水雲墅在空间功能性方面,更强调“大庭院”、“大露台”和室内核心功能区的互动。选择LDKBG一体化设计,通过均衡考量户内外居住场景,实现空间的多区域联动、场景的多元互动。

▲建面约196+210㎡户型图
中心楼王户型采用一梯一户的纯粹设计,通过空中花园奇偶层错位及客厅奇偶层挑空的设计,6.3m高度,客厅全挑空设计,极大提高住宅的舒适性。

▲御都·珑水雲墅效果图
单露台错层设计
南京招商金陵序洋房全部为建面约225㎡4房2厅3卫设计,奇数层和偶数层,露台的位置有所区别,一个是南向露台,一个是侧向露台,进深最大约3米,通过错层设计实现挑高接近6.5米,最大面积达到约23㎡,几乎是市面上普通阳台的两倍。

▲建面约225㎡奇数层户型图

▲建面约225㎡偶数层户型图
露台空间不计入产权面积,全赠送。如果不做四代宅,阳台占套内建筑面积最高只能约15%。四代宅的阳台+露台(挑空平台),则可以达到最高25%。

▲金陵序示范区实景图
再比如江上云筑 区别于传统叠墅住宅产品和洋房一楼才可能有庭院的模式,打造挑高约6米,外挑长度约4米,面宽约7-14米的空中庭院,让洋房的每一层都可享受庭院生活的美好与丰盈,以错层建筑设计、270°天幕视野空中庭院,颠覆塔尖生活。

▲江上云筑建面约240㎡奇偶层户型图
常规的阳台一般面积在7-10㎡左右,进深在1.5-1.8米左右,空间有限。江上云筑打破传统阳台尺度,在空中勾勒了一方院子,空中庭院面积可以达到建面约32-62㎡,朗阔空间,赋予塔尖人物亲近自然的载体,让居家生活场景更加丰富多样化。

▲江上云筑效果图
「环岛式」南向+北向露台设计
比如福清茂华·星河颂建筑面积约206㎡,采用双层挑高空中庭院设计,奢享环岛式空中庭院,将别墅的院子平移到高层建筑中,不仅为居者带来别墅般的舒适与豪华,更能享受超越别墅的城市视野。

▲建筑面积约206㎡奇数层户型图

▲建筑面积约206㎡偶数层户型图
创新的奇偶数露台布局,打造约6米层高的270°环幕云端花园,全落地窗设计确保每户居民开门即可见到庭院景观。户型设计堪比别墅,客厅、餐厅、厨房、阳台和花园之间无缝衔接,从外到内展现了豪宅的舒适感,成就了顶级豪华的生活方式。
茂华·星河颂以“第四代生态住宅”为理念,首创飞翼立面,通过飞翼元素与“全面屏”晶钻外立面的无缝对接,并辅以270°环幕庭院的设计理念,成功塑造出一个高度识别性且仿佛悬浮于都市之上的“森境岛屿”。

▲茂华·星河颂 项目效果图
茂华·星河颂把院子搬上天空,不仅实现了空中庭院的理想生活,也让仰望星空重新回到日常的居家生活中,晨看日出,夜观星辰,在家中即可享受“前庭后院”“俯仰天地”的居住体验。辅以水晶顶冠、干挂奢石,立面的每一处用料都尽显尊贵。

▲茂华·星河颂 项目效果图
福清外滩壹号·观邸规划6栋高层及63席法式墅,高层主推140-278m²四至五房产品,花园露台面积达到30㎡-85㎡。环幕式露台花园,观景视野佳,客餐厅一体化,延伸空间与视觉张力,更显豪宅气质风范,得房率高达约140%。


▲建面约278㎡户型图


▲福清外滩壹号·观邸外立面效果图
东西侧露台+南向露台
比如福州建发灏云传统入户讲仪式感是顶配,四代入户仪式感是基操,奇数层于东西左右两侧各设计一个露台,其中一个是入户花园,仪式感满满。偶数层则是贯穿整个户型面宽的约13.4米跑道式大露台。

▲建发灏云建面约230㎡奇数层户型图

▲建发灏云建面约230㎡偶数层户型图

▲ 220㎡样板间实景图
空中别院3.0 :更卓越的视野采光:屋檐圆角斜切45°,采光更佳;更私密的生活体验:以山墙、隐私板规避隐私问题;更敞阔的空间尺度:客厅露台内包设计,拓展空间。

▲建发灏云效果图
本资料声明:
1.本文为建筑设计技术分析,仅供欣赏学习。
2.本资料为要约邀请,不视为要约,所有政府、政策信息均来源于官方披露信息,具体以实物、政府主管部门批准文件及买卖双方签订的商品房买卖合同约定为准。如有变化恕不另行通知。
3.因编辑需要,文字和图片无必然联系,仅供读者参考;

微信公众号“搜建筑”(ID:sjz9999)
合作、宣传、投稿
联系微信:soujianzhu006


