▲ 更多精品,关注“搜建筑”
FTA
2024年,由FTA建筑设计事务所设计的中交·壹里科创云廊开园,项目一期正式交付投入使用。
500米,称之为“1里”,它是马拉松比赛中的最后一段冲刺,也是海洋中一次深潜的深度,这个数字代表着迈向未来的决心,也代表着对未知的探索。在宁波奉化,同样有一个因时代而冲刺的“500米”—— 中交·壹里科创云廊。

中交·壹里科创云廊地处奉化融入宁波主城区的桥头堡位置,是中交未来城的核心启动区,占地180亩,建筑面积31.5万平方米,分两期建设,一期建筑面积15.6万平方米。北侧和东侧毗邻大欧河,西靠中交未来城的主要货运通道汇诚中路,南临葭浦路,与奉化区城市展览馆隔河相望。
中交·壹里科创云廊凭借优越的地理位置和资源条件,承接宁波的产业外溢,以温暖的产业创新区、全天候智慧园区和高品质园区形象,打通从知识到生产的最后壹里。
01
长三角远端成长企业总部基地
中交未来城处于宁波甬江科创大走廊的南延线,围绕上海的科技优势和本地制造能力,打造长三角科创远端响应基地,成为创新湾区及走廊中的重要节点。
02
“新型产业用地M0,指融合研发、创意、设计、中试、检测无污染生产等新型产业功能以及相关配套服务的用地。”
03
产业生态系统完善
“打通知识到生产的最后壹里”
知识到成果转化的关键在于搭建研发成果对接市场的桥梁,作为产业生态培育的全新平台,中交·壹里科创云廊将以科技创新为主导产业方向,重点引入科技服务、金融服务、商务服务三类服务型企业,打通初创-孵化-加速的企业成长链条,以及创意-研发-小试-中试-市场化的业务发展链条,形成完善的产业生态和科创集聚高地。
中交·壹里科创云廊涵盖展示中心、服务中心、产业大厦、研发总部、中试车间、众创空间、人才公寓及商业配套等多元丰富的业态。通过“云廊500米”,串联起产、创、展、商等功能模块,满足中小型企业、大型知名企业和独角兽企业的多样化需求。
一期落成产业大厦、研发总部和独栋办公组团等有梯度的复合型产品,完善住宿、商业等配套设施,同时通过展示中心展示城市文化及片区形象,树立标杆。
▲有梯度的复合产品
▲从科创云廊看产业大厦
▲独栋办公群
▲多层次的园区联系通廊
04
从工作方式到生活方式
三大创新场景回应
/ 完善的产业生态系统/
云创,产业休闲化!

作为中交·壹里科创云廊的重要组成部分,展示中心不仅设置了客户体验及园区的展示功能,同时承担着整个园区的服务配套及形象展示的作用。

▲交流空间

▲独栋办公组团间的室外交流空间

▲三层空间有机连接

▲商业配套设施

“THE SPINE'中轴景观大道
空中连廊连接串联各个功能区,通过一条架空步道。设计上,这些连廊不仅是行人的通道,更是一个充满生机的空中绿地。通过丰富的植被和景观布置,空中花园连廊为人们提供了一个可以休憩和享受自然的空间,同时提升了园区的生态体验和视觉效果。

▲空中连廊
独栋办公组团之间的景观中庭是一个充满活力的社交绿洲,通过多样的景观组合,创造了不同的室外社交空间,为员工提供非正式交流、共创和放松的场所。中庭成为了灵感碰撞和创意激发的温床,让工作环境更加宜人和富有活力。

▲独栋办公组团之间的景观中庭

▲独栋办公组团之间的景观中庭
环绕整个园区的运动步道,设计上考虑了多样的活动需求,步道沿线布置了不同的景观节点和休息区,为员工提供了跑步、散步和其他运动的理想场所,让健康生活成为日常的一部分。

沿水生态长廊充分利用了园区的水体资源,打造了一条充满自然气息的步道。长廊两侧结合水生植物和生态景观,为人们提供了一个亲近自然的机会,同时也提升了园区的生态价值和美观度。
▲沿水生态长廊
愿景
前瞻设计,面向未来
中交·壹里科创云廊通过先进的设计理念和创新的空间布局,打造了一个全新的产业生态系统,园区已吸引众多优质企业入驻,包括国家级高新技术企业、“专精特新”企业等科技企业。此外,园区的产业服务体系也日益完善,涵盖企业技术服务平台、银行、行政服务中心、人才公寓、餐饮配套等各类机构和设施。
▲中交·壹里科创云廊
技术图纸

▲总平面图

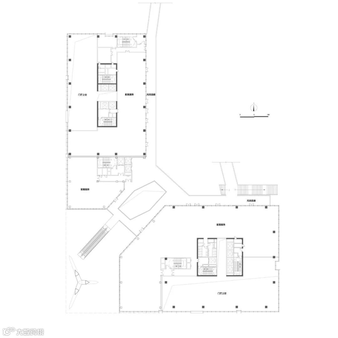
▲产业大厦平面

▲产业大厦立面

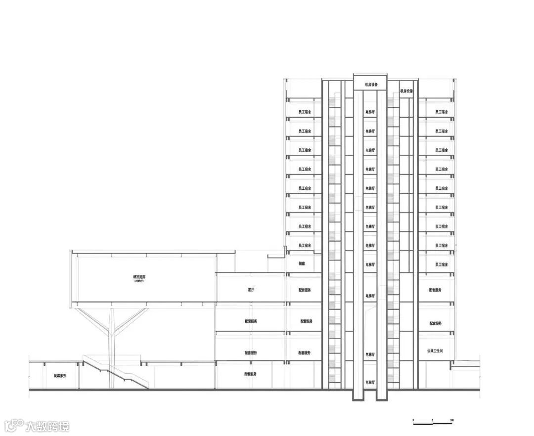
▲产业大厦剖面

▲多层独栋平面

▲多层独栋立面

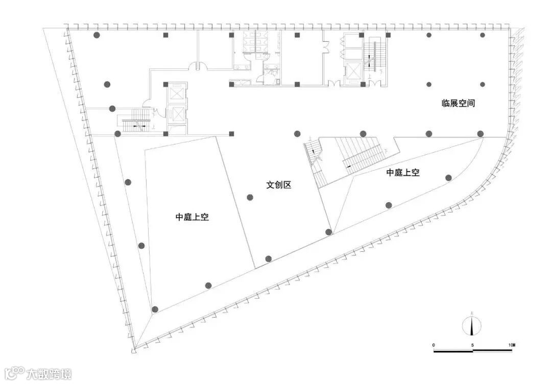
▲展示中心二层平面

▲展示中心立面

▲展示中心剖面
本资料声明:
1.本文为建筑设计技术分析,仅供欣赏学习。
2.本资料为要约邀请,不视为要约,所有政府、政策信息均来源于官方披露信息,具体以实物、政府主管部门批准文件及买卖双方签订的商品房买卖合同约定为准。如有变化恕不另行通知。
3.因编辑需要,文字和图片无必然联系,仅供读者参考;

微信公众号“搜建筑”(ID:sjz9999)
合作、宣传、投稿
联系微信:soujianzhu006


