苏州和无锡的四代和高品质住宅产品,累计了大量的落地经验,在此,搜建筑携手四代和高品质住宅专家,通过楼盘案例,分享、探讨当前市场如何落地实施,如何通过创新,赋能产品力升级、助力企业发展。
温馨提示:苏州无锡楼盘活动,本次安排6-7个参观,部分项目根据现场情况可能会有调整。感兴趣的朋友请及时报名。
报名+咨询
咨询微信:soujianzhu03
咨询微信:soujianzhu008
2、联系电话:181 3265 7351(微信同号)
蠡棠森屿
方案设计:上海日清


20栋小高层以12-17F黄金高度错动布局,楼间距最宽达到约60米,相当于3个标准足球场的呼吸尺度,确保低层住户也能拥有无遮挡的采光权。



蠡棠森屿共计打造了3个面积段、6种户型,建面约150㎡、约185㎡、约220㎡,都是一梯一户大平层+约30-50㎡的墅级空中庭院,让生活的每一秒能能自主呼吸。
无锡·奥体潮鸣
车库内部,地面采用了环氧地坪+金刚砂,部分主车道顶部是铝格栅+灯带的设计。常规车位尺寸为2.4mX5.3m,而奥体潮鸣车库做到了约2.5mX5.5m的超大停车空间,可以匹配业主保有的多种车型。
▲下叠样板间实景
大师立面:其屋顶呈飞翼造型,转角有着如同 iPhone 般的精密弧度,尽显精奢优雅之态。
景观放大了树和水的元素,主要选用树王级稀贵树种,大面积的下沉式镜面水庭,中间缀以石材形成岛屿般的汀步、蜿蜒的岸线、碧波枕弦月,弧形的运用让艺术美感在园林里自由穿梭,也辗转出不同的场景韵味。

未来御湖境的户型建面约125/143/185㎡,户户空中花园+庭院,大赠送使得最高实际得房率达到120%!
迎龙观月
景观设计:metrostudio 迈丘设计 / 建筑/室内设计:GTD绿中设计
大面积玻璃窗以及精工细作的石材幕墙,视觉效果大气震撼,和天空蓝也会相得益彰,加以香槟金色金属线条的点缀,绘就运河上空的一朵彤云。
山墙造型+层层退台的设计,形成多维立体的城市观景露台,把现代精工技艺和东方美学的意形完美融合,与惠山运河连成一片,成为主城最美风景线。
勾勒宋韵美学立面,立意中轴天际。形制龙光塔之重檐,营造永恒的东方屋檐。门楣雕刻精致挂落,外墙镶嵌龙纹格栅,白玉画屏、寻杖勾栏等中式元素融入建筑,流转江南气韵,以“石中藏玉”美好寓意,甄选奢材营造,尽显高雅……
在园林景观打造上,迎龙观月以寄畅园为蓝本,把宋风线条美学和寄畅园园林景观融合,将经典的山、水、门、院、巷、廊等府院格局,门庭礼序,以现代手法再现“一心二轴三区”的江南园境以及显赫门庭礼制。
整体恢宏大气仿佛一段充满张力的开场白,门头阔约30米,高约6米,主体范思哲黑石材用白色加以点缀,起到“石中藏玉”的美好寓意。
叠级水景中心放置龙形曲线结合龙鳞元素艺术主题雕塑,雕塑上,一轮圆月刻画的圆润光泽,迎龙之形,观月之意,刻画了迎龙观月独一无二的门厅礼制和归家仪式感。
穿过过道进入下沉庭院,站在落地玻璃,感受“松涛飞瀑”带来的震撼。这里借鉴了寄畅园中著名景点“八音涧”,叠水飞流直下,错落有致,形态各异的油松层层叠画映入眼帘,仿佛一张横轴山水,天地清旷,景深层叠,感受“非必丝与竹,山水有清音”的山水情趣。

于山石之间的“松风水月”,延续寄畅园八音涧之美的“松风水月”,融合现代手法打造与山水成趣的“寻花幽涧”,将江南园林清丽秀美蕴藉其中,移步异景,视觉效果达到极致,尽显低调奢华的“隐贵”气质。
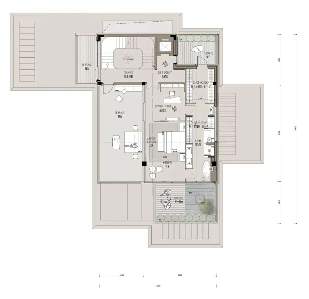
建面约350㎡下叠户型:上下两层6开间朝南,全套房设计,客厅开间达到约8m,整体约70㎡尺寸阔绰,在拉满采光面的同时,也能让外边的景观更大程度涌入室内,真正实现阳光和景观自由。


上叠配置有独立入户电梯,实现地上、地下双归家动线。室内拥有270°环幕视野,全套房设计,保证每一位家人的居住舒适。超大露台,为生活增添呼吸感。
无锡 · 雲湖别院
纯叠墅地块为容积率仅约1.24的臻稀低密墅境,亲地建筑与六大自然园境是亲密联结的,在植物与光影的编织中,让人沉浸在院落自然的怀抱里。

以江南绿意勾画建筑的底色,融合大面灰色铝板立面,横向勾勒铝板线条及超宽屏的采光面,实现超高南向窗墙比和超阔观景视野,与内外风景相得益彰,兼具当代审美与属地特色,让建筑与艺术相互成就。
院式大平层地块则著建洲岛花园、河谷童趣、冥想花园、元气健身等意趣空间,唤回城市人群在都市中向往已久的那份惬意、松弛、自如的生活状态,趣享一部富有生命的“自然艺术作品”。
建面约180㎡上叠【观雲】户型,上下双层南向六开间,270°环幕式方厅,客厅与四个卧室均朝南,充分享受阳光平权,私享近40㎡南北双露台,打破空间边界化,尽揽园区自然与城市繁华双重奢景。
上叠样板实景图
景观设计:LANDAU朗道 / 建筑设计:GOA / 室内设计:CCD
苏州紫金 · 翡丽甲第,项目位于苏州工业园区锦溪街东、西洛巷南。项目名分别选用北京金隅的「紫京系」和保利置业的「甲第系」,打造纯正的高端改善住宅。
翡丽甲第外立面,是一次产品的巨大革新:传承帕拉迪奥母题的“柱式”语言,与半岛酒店外立面拥有异曲同工之妙,远看很现代,近看很古典,用匹敌酒店的建筑材质与设计塑造全城仰望的地标感,耐看而富有内涵。
建筑整体营造温暖典雅的色彩氛围。石材基座质感温润,香槟金色的铝板、铜色弧形饰板、银灰色落地玻璃,结合出现代而细腻的立面形象。
约6米高35米宽的奢华门头+舒适的42㎡车马院落客区,打造酒店式社区归家玄关。


项目斥资一个小目标打造约3000㎡会所11大功能场景:半岛酒店式的恒温泳池、以首饰盒为灵感设计的行政酒廊吧台、海鸥丽晶酒店的同款艺术旋转楼、粉水晶下午茶甜品屋、专属绅士的雪茄会客厅..…..全方位满足业主游泳、健身、社交、休闲等多元生活需求。
地库光厅借鉴丽思卡尔顿酒店,通道升级为高规格水磨石地坪、雕塑造型墙,车位升级为内径约2.4米、外径约2.5米、长约5.3米豪车专属定制车位、普通星空顶升级为苏州独一无二的鎏金格纹星光吊顶…
秉持对高净值客群生活方式的深度调研,打造建面约190㎡、225㎡、275㎡三大洋房大平层产品。

建筑面积约275㎡C1户型样板间实景图(无间设计)
(观湖大宅创作效果图过程稿)
将传统繁复的中式化繁为简,将中式复杂的元素高度萃取,平直大气的东方屋檐下,填充进大面的玻璃立面和开阔的露台,把如镜般的太湖水面,延伸为建筑的立面,将来自大地的景观,幻化为露台上的空中庭院。湖面和立面相互映照,花园与大地彼此生长,一个伫立在湖岸的“玻璃盒子”,仿佛时代的透镜,折射出轻盈、现代、自然的大宅之美,建筑无声地融入湖岸,悄悄生长,感受万物生长与岁序更替。
步入示范区,一株迎客红枫静立镜面水池前。池水如镜,倒映着天光云影与木构坡屋顶的轮廓。四方天井将天降的雨露聚拢,结合水景中心特选红枫,聚水归堂,有汇聚四时吉祥、四方之财的美好寓意。将水面波光嵌入建筑的肌理之中,自然与艺术精妙融合意境,在走进这里的第一刻,便开始显现。
咨询微信:soujianzhu03
咨询微信:soujianzhu008
2025年·新产品方向
《 品牌地产 | 精品楼盘活动 》
杭州、苏州、上海
成都、郑州......
广州、福州、重庆
西安、青岛......
扫描二维码 加好友咨询
领队微信:soujianzhu03
本资料声明:
1.本文为建筑设计技术分析,仅供欣赏学习。
2.本资料为要约邀请,不视为要约,所有政府、政策信息均来源于官方披露信息,具体以实物、政府主管部门批准文件及买卖双方签订的商品房买卖合同约定为准。如有变化恕不另行通知。
3.因编辑需要,文字和图片无必然联系,仅供读者参考;
推荐关注
全球精品楼盘考察
扫描二维码关注
微信公众号:全球精品楼盘考察
合作、宣传、投稿
联系微信:soujianzhu006




