▲ 更多精品,关注“搜建筑”
随着消费升级,刚需在萎缩,改善在爆发。140㎡面积段的户型,如今也是只能算是高级的“刚需”户型了,市场需求量很大,所以很多房地产企业都投入了重金研发。
万科作为行业标杆,又有什么新的创意呢?本期搜建筑挑选了10个万科在推出的140平米左右的户型,我们一起来看看。
1
好的家庭空间设计,可以让一家人的目光,能够高频次的覆盖到公共生活空间,让家庭成员之间的交互和关系更紧密。
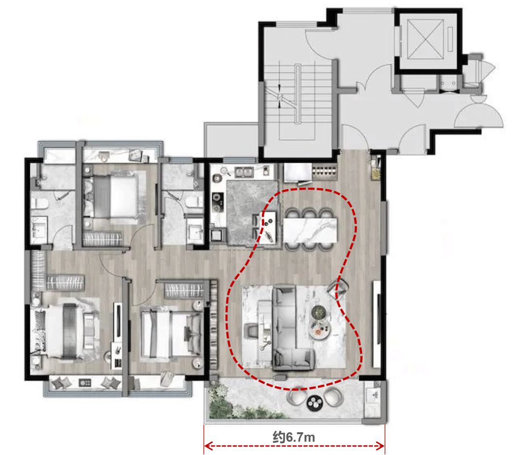
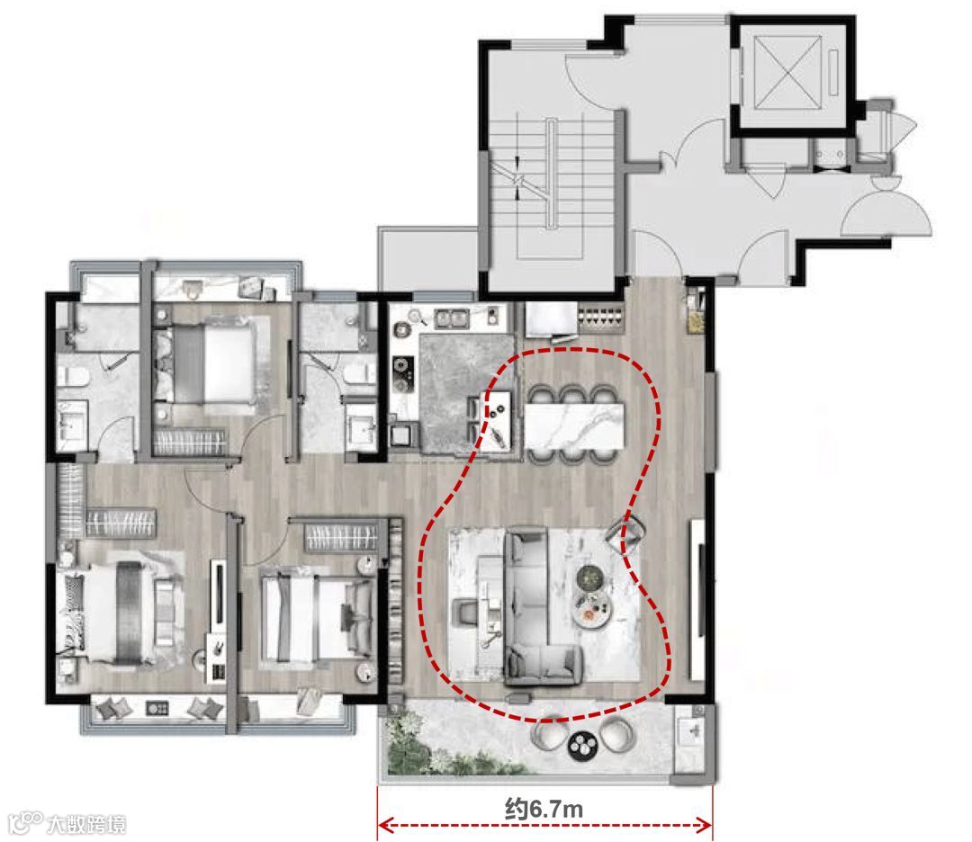
万科悦达•聚珑东方建筑面积约142㎡户型,3+1房2厅2卫,zui亮眼的LDKB一体化设计的超级客厅,增加了家人之间的互动性:约6.7米面宽的客厅连接同宽的观景阳台,与厨房餐厅也能充分互动。

万科悦达聚珑东方约142㎡户型

万科悦达聚珑东方室内 示意图
2
新疆万科·都会未来城洋房一梯两户,建筑面积约145㎡的户型,4房2厅2卫设计,户型方正,南北通透,几乎没有面积浪费。首先入户玄关非常有仪式感,收纳容量超大;约7.5米大宽厅,带给业主开阔的视野和舒适的居住体验。

新疆万科·都会未来城洋房建筑面积约145㎡户型
3
苏州万科东方雅苑建筑面积约146㎡4房2厅2卫的户型,全明大横厅设计,中西双厨,三个朝南卧室,主卧套间设计,主卫双台盆,次卫干湿分离。

苏州万科东方雅苑约146㎡户型图
得房率高达80%,户型的实得面积会很大,居住体验感也会很好。整个户型长面宽短进深,完全堪比市面180平+的豪宅配置。

苏州万科东方雅苑效果图
其建筑,采用了古代帽檐式的屋顶设计,沉稳大气,寓意深远;而在外立面的设计上,万科采用了大面积玻璃的窗墙比设计,不管是采光、还是通风方面,都更符合现代人的居住习惯。
4
南京万科·都荟启境建筑面积约143㎡户型,方正通透,4房2厅2卫设计,满足居者生活想象。

南京万科·都荟启境约143㎡户型
考虑到城市居住人群的生活习惯和居住体验,四开间朝南设计,南北双向阳台。南向主卧套房设计,配备独立卫浴、270°转角大飘窗,看书、阅读、观景、喝茶多种功能随心所至。
5
郑州万科城这个项目所有构筑都以人为中心,尤其是户型,建筑面积约143㎡的洋房户型,一套环形动线让室内没有一点无用的地方,室内利用率非常高。

郑州万科城约143㎡户型
细看户型还有很多设计细节,比如客厅次卧共用阳台这点,既满足晾晒,又不妨碍客厅景观,可以说所有细节都围绕业主生活的方方面面。
6
郑州万科翠湾中城创新“曲面转角、错层花园阳台”户型。

郑州万科翠湾中城约146㎡偶数层户型
建筑面积约146㎡偶数层户型,边户超大边厅被L型大花园阳台包围。部分挑高约5m,带有创意空中花池、树池,保证生活私密性;空间与花园阳台对位,强调人与自然交互。

错层阳台局部 效果示意图
7
成都万科国宾蜀园建面约143㎡户型,4房2厅2卫,客厅采用竖厅设计,但与市面上大多数竖厅产品不同,该户型客厅开间做到了约5.64米,弥补了竖厅产品大多过于紧凑的缺陷,形成了一个宽敞的客厅+X空间,未来在居住功能也可以说相当舒适。主卧套房面积高达23㎡,带衣帽间、独立卫浴。

万科·国宾蜀园约143㎡户型图

创新地将檐廊、叠坡、穿斗等融入建筑外立面,承袭蜀韵建筑“慢调”的精神内核,新中式风格建筑与古为新,简约线条与高雅艺术设计接轨,现代化坡屋顶彰显时代风雅,建筑通过新的视角,实现新的意蕴,达到新的高度。
8
长春地铁万科紫台建筑面积约145㎡户型,一进门就看到宽敞的大方厅,约6米面宽,LDK一体化设计,中西双厨,双明卫,不仅采光通风好,整个空间还可以让家人和朋友充分互动。

长春地铁万科紫台约145㎡户型图

长春地铁万科紫台样板间实景图

长春地铁万科紫台样板间实景图
本资料声明:
1.本文为建筑设计技术分析,仅供欣赏学习。
2.本资料为要约邀请,不视为要约,所有政府、政策信息均来源于官方披露信息,具体以实物、政府主管部门批准文件及买卖双方签订的商品房买卖合同约定为准。如有变化恕不另行通知。
3.因编辑需要,文字和图片无必然联系,仅供读者参考;

微信公众号“搜建筑”(ID:sjz9999)
合作、宣传、投稿
联系微信:soujianzhu006



