▲ 更多精品,关注“搜建筑”
一般而言,端厅往往出现在160㎡以上户型,契合现代改善人群对公区空间和视野景观的极致追求,可以说是豪宅标配。
而在建筑面积约143㎡面积段,也做到了!
143㎡户型“内卷”的关键词:
私梯入户,需要仪式感归家;
全明户型且南北通透,多开间朝南、超大面宽;
大横厅、大方厅、大端厅、大阳台;
LDKG一体化,公区空间融为一体,承载多元化的功能;
双套房,豪华主卧套;
1
西安龙翔·奥城云玺全新第四代立体住宅,户户南北双空中庭院,满足国人骨子里对院落向往,超高得房率。
该项目建面约143㎡户型(偶奇数层户型有一定差异),四室两厅两卫,约14.6米奢阔面宽营造IMAX级宽幕视野。纯南约6米挑空空中庭院,270°瞰景,让家中宛如拥有两座“空中花园”,LDKG一体化设计,形成充足多样化的功能区,客厅、餐厅、阳台、书房(灵动空间)、空间几乎零浪费。这是建面约180㎡以上户型才拥有的奢享意境。
左右滑动查看全部户型
南向双卧设计,主卧套房步入式衣帽间,纯南卫生间。

△ 龙翔·奥城云玺项目效果图
项目占地约98亩,容积率仅2.5,规划2T2独立入户,实际上就是一梯一户一天地,私密感极佳,更加舒适宜居。
2
郑州融创城·观河著的产品规划较好,8栋高层产品,5栋洋房,沿河分布,观景效果一流,尤其是洋房,升级很大,客厅一圈L型拐角阳台,这都是豪宅的配置,北侧再赠送一个房间,主卧卫生间都带飘窗。

△ 郑州融创城·观河著六期效果图

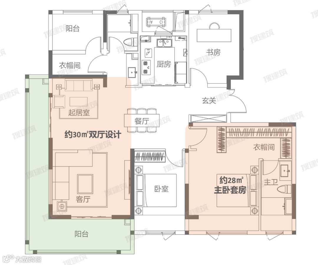
△ 融创城·观河著洋房标准层平面图
边厅143户型,4房2厅2卫,约14米开间,约30㎡双厅,外连跑道式环幕阳台,约270°的观景视野,可以俯瞰一线河景。赠送北向阳台,可DIY成瑜伽室、阳光房、衣帽间等;主卧套房约28㎡的尺度,更具私密性。

△ 建面约143㎡户型图

△ 融创城·观河著效果图
3
西安保利·天汇主力户型143㎡3房2厅2卫,采用豪宅的配置边厅设计,边厅面积高达约57㎡,实现了LDKG一体化设计,以及270°转角采光,双面瞰景,将景观尽可能的纳入室内。
约7米宽南向的客厅连接南向超宽阳台,一侧还有超长飘窗设计,大开间U型厨房可开可合的设计,客厅、餐厅、厨房、阳台一体化,生活动线一气呵成。

△ 建面约143㎡户型图
主卧约5.6米的南向大面宽,搭配观景飘窗,窗外的美景一览无余。

△ 保利天汇端厅样板间实景图

△ 保利·天汇实景图
保利·天汇立面横向跃动的线条变化,融入了钢琴琴键元素,琴键横平竖直的艺术线条与屋檐的曲线相呼应,在精简利落与低调精致中实现了平衡。

△ 保利·天汇意境图
4
南京万科·翡翠滨江建筑双向打开,设置大面宽阳台及通长飘窗,270°转角采景窗,扩宽视觉宽度。同时将柱子布于阳台内侧,打开转角提升观景感受。

△ 万科·翡翠滨江建面约143㎡户型图
小区外立面全部升级为铝板,搭配原有的大面积玻璃和铝合金线条,更符合现代审美。


△ 南京翡翠滨江建筑摄影:曾江河
5
大家·坤和·龙湖云创未来社区,建面约143㎡户型,南向开间达到14米,约20㎡的阳台空间,也能大大拓展室内的活动场景。
270°阔景转角厅产品,犹如一个悬浮于天空之中、功能随心变换的“私享天地”,给了户型更多创造的可能性,让空间更富层次感与精致感。

△ 建面约143㎡户型图

△ 样板间实景图

△ 云创未来社区实拍图
6
南宁中海·湖上景明建面约143㎡的户型,采用独门独户的归家仪式感,独享私密的电梯前厅,内外双玄关设计。

△ 建面约143㎡户型图
边厅无界设计,把客厅内的墙和柱尽量减少,呈现“无界”的空间。双面采光,约5.5米开间的LDKG一体化设计,270°全维度观景,整个户型的格局,几乎没有过道,无论是客餐厅还是房间空间利用率大了很多。

△ 建面约143㎡户型样板间实景图
U型厨房设计,高效操作动线;约34㎡小家化的豪华主卧套房;还设计有独立家庭储藏间。
另外,中海·湖上景明整体的玻璃幕墙设计,也扩大了观景视野。

△ 中海·湖上景明酒店级小区主入口

△ 中海·湖上景明外立面实景图
7
西安万景·荔知里建面约143㎡:四室两厅两卫,流光宽幕端厅臻品。

△ 万景·荔知里建面约143㎡户型图
创新“光之厅”设计,让明亮的采光,照亮归家之路,而四居室的创新设计,也满足了项目优改理想。
这款户型四个亮点极为突出:穿过独立电梯厅,迎面便是采光更佳的阳光入户前室,尊享“双重归家礼序”;餐客厅一体化,双向落地光幕边厅,270°瞰景视野,拥揽无限风光;主卧套采用行政套房设计,衣柜、卫浴、主卧有序设置;主次卧“向后再退一步”,便是瞰景长阳台。

△ 万景·荔知里-建筑效果图
超大公建化立面,大量的落地玻璃,以及金属等材质的运用,让建筑更加灵动飘逸,也让建筑更加“宽、薄、透、亮”,纤细的建筑勒线,闪亮的透明材质,玻璃横向延伸,在阳光映照之下流光溢彩。
8
西安白桦林悦建面约143㎡边厅户型将活动、社交区域放置在户型的一侧,做到了真正的动静分离。以人为尺,约16米边厅格局,270°环幕每一面都是风景面,以双向采光观景面,结合约7.4米南向大阳台,形成约16米的环幕型端厅。

△ 白桦林悦建面约143㎡端厅户型
超30㎡大尺度奢华级主卧套房,配备步入式轩敞衣帽间、近7m独立卫生间,配备独立衣帽间和卫浴间。
143m端厅户型正处于社区7号楼楼王位置,南侧即是约700平的户外草坪空间,园区主轴景观一览无余,无需担心楼栋间的光线视野影响。

△ 西安白桦林悦效果图
9
武汉越秀中交·星汇园建筑面积约143平米边厅户型,四房两厅两卫的设计,整个阳台长达约6.4米,还拥有超大飘窗设计,动静分区,LDKG一体化居住非常舒适。

△ 建面约143㎡户型图
“中西双厨”的设计,能够满足品酒、早餐、正餐的无缝切换,精准满足高端客群的现代饮食习惯。


△ 建筑立面效果示意图
10
金茂这款143㎡户型,能媲美200㎡大平层,独立入户玄关,出入充满仪式感。大面宽、4+1开间朝南、IMAX级南向面宽,约6.9边厅270°豪气采光面+电梯独立入户+实用储藏间+主卧套房,完全超越了人们对于143㎡的固有印象。
大开间U型厨房,客厅、餐厅、厨房、阳台一体化,生活动线一气呵成。主卧配独立卫浴+衣帽间,主次卧可灵活打通,实现“总统套房”级奢华居住。

△ 金茂·长沙国际社区建面约143㎡户型
结语
在改善产品不断升级的当下,更多改善客户注重的空间已经不再只是单纯的“大”户型,而是对生活的“舒适度”更进一步的追求。与传统横厅、方厅相比,270°观景采光的端厅带来了无与伦比的体验,超震撼的环幕广角视野,成为匹配改善居住需求的最优解。
本资料声明:
1.本文为建筑设计技术分析,仅供欣赏学习。
2.本资料为要约邀请,不视为要约,所有政府、政策信息均来源于官方披露信息,具体以实物、政府主管部门批准文件及买卖双方签订的商品房买卖合同约定为准。如有变化恕不另行通知。
3.因编辑需要,文字和图片无必然联系,仅供读者参考;

微信公众号“搜建筑”(ID:sjz9999)
合作、宣传、投稿
联系微信:soujianzhu006



