获奖的跨学科设计公司Ayers Saint Gross为克拉克大学校园设计了一个新的扩建项目,在一个鼓舞人心的当代环境中融合了游戏设计、计算和艺术空间。该大学的媒体艺术、计算和设计中心(CMACD)是一个协作学习和研究的中心,将最近收购的贝克尔设计与技术学院(国内领先的视频设计学院之一)与计算机科学和视觉与表演艺术联合起来。这个新设施融合了尖端技术和充满活力的学术使命,促进了创新和学生参与。
Award-winning interdisciplinary design firm Ayers Saint Gross designed a new addition to Clark University's campus that blends spaces for game design, computing, and the arts in an inspiring contemporary environment. The university's Center for Media Arts, Computing, and Design (CMACD) is a hub for collaborative learning and research, uniting the recently acquired Becker School of Design & Technology — one of the leading video design schools in the country — with Computer Science and Visual & Performing Arts. Merging cutting-edge technology and a vibrant academic mission, this new facility fosters innovation and student engagement.
设计的成功是由跨社区的方法驱动的,在整个过程中,教师、学生和行业专业人士都参与其中。高度多样化的利益相关者群体确保了建筑对各种学习风格、技术需求和规划目标的响应。由此产生的设施利用尖端技术来积极影响学习,创造力和协作。
The design's success is driven by a cross-community approach, engaging faculty, students, and industry professionals throughout the process. A highly diverse stakeholder group ensured the building responds to a myriad of learning styles, technological needs, and programmatic goals. The resulting facility leverages cutting-edge technology to positively influence learning, creativity, and collaboration.
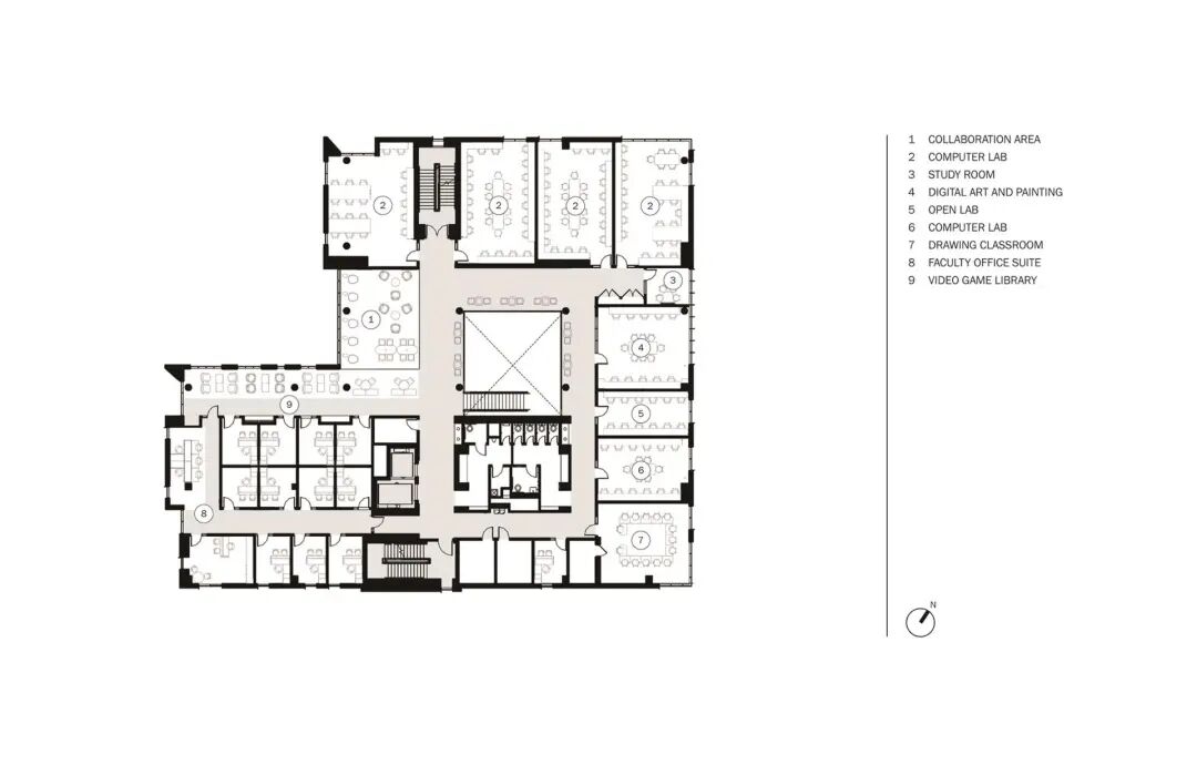
媒体艺术、计算和设计中心通过灵活、适应性强的空间优先考虑包容性,支持各种能力和教育风格,加强了大学对可达性和公平性的承诺。CMACD以战略性的玻璃元素突出关键空间,如数字媒体画廊,展示学生作品和视频装置,将他们的概念带入生活。学习空间——包括视频游戏图书馆、机器人实验室、孵化器空间、创客空间、数据科学实验室、a /V制作和录音室,以及灵活的教室——支持动手探索和小组工作。自适应技术提高了参与度,从实时可视化工具到沉浸式学习环境。在整个设计过程中,Ayers Saint Gross在学科之间进行了复杂的协调,将建筑、技术和教学方法结合起来。
The Center for Media Arts, Computing, and Design prioritizes inclusivity through flexible, adaptable spaces that support a range of abilities and education styles, reinforcing the university's commitment to accessibility and equity. The CMACD features strategic glass elements that highlight key spaces, like the digital media gallery that showcases student work alongside video installations that bring their concepts to life. Learning spaces — including a video game library, robotics lab, incubator space, maker space, data science lab, A/V production and recording studios, and flexible classrooms — support hands-on exploration and group work. Adaptive technology enhances engagement, from real-time visualization tools to immersive learning environments. Throughout the design process, Ayers Saint Gross navigated complex coordination between disciplines, aligning architecture, technology, and pedagogy.
CMACD的设计灵感来自于更广泛的校园规划。与主要利益相关者合作,艾尔斯圣格罗斯完成了对大学建筑库存的全面评估,解决了不断增长的入学人数的需求。通过空间评估过程,确定了克拉克大学扩展技术和设计方案的具体设施需求。艾尔斯圣格罗斯分享了大学领导层的信念,即该中心的设计应该是与时俱进的,同时具有前瞻性。
The CMACD's design was informed by a broader campus planning effort. Working with key stakeholders, Ayers Saint Gross completed a comprehensive assessment of the university's building inventory, addressing needs for growing enrollment numbers. Through the space assessment process, specific facility needs for Clark University's expanding technology and design programs were identified. Ayers Saint Gross shared the university leadership's belief that the center's design should be of its time while forward-looking.
立面采用了一系列哑光黑色复合金属面板,其中点缀着高光色调。铜板框架入口,增加温暖,而建筑的基础包裹着磨光的石灰石,将CMACD连接回校园。在室内,抛光的混凝土地板,现代的饰面和克制的调色板创造了一个中性的环境,让学生的创造力占据中心舞台。隔音板和专门的地板在较大的空间优化声音控制。该中心对技术的关注反映在地毯图案上,灵感来自电路板和类似像素的玻璃熔块图案。落地窗最大限度地提高了日光,增强了环境的亲生物连接,灵活的家具支持了空间的动态和适应性。
The facade features an array of matte black composite metal panels punctuated by high-gloss accents. Copper panels frame entries and add warmth, while the building's base is wrapped with honed limestone, connecting the CMACD back to campus. Inside, polished concrete floors, modern finishes, and a restrained palette create a neutral setting that allows student creativity to take center stage. Acoustic panels and specialized flooring optimize sound control in larger spaces. The center's focus on technology is reflected in carpet patterns inspired by circuit boards and glazing frit patterns that resemble pixels. Floor-to-ceiling windows maximize daylight, enhancing the environment's biophilic connections, and flexible furniture supports the spaces' ability to be dynamic and adaptable.
考虑到建筑周围的环境,Ayers Saint Gross在设计中融入了几个关键细节。玻璃揭示了识别入口,并创造了与校园及其周围社区的视觉联系。建筑的规模和外观都经过精心规划,以确保CMACD是一个好邻居——策略性地将上层凹下去,使五层读起来像三层,以响应街对面住宅的节奏和高度。在地面层,景观设计在每个季节都保持清晰和有趣。室外空间的特色是现浇混凝土座墙和内置照明的木顶长凳,提供明亮、通风的感觉,而植物设计则与座位计划的线性节奏相呼应。
In considering the building's surroundings, Ayers Saint Gross incorporated several key details into the design. Glass reveals identify entrances and create visual connections to the campus and its surrounding neighborhood. The scale and appearance of the building were carefully planned to ensure the CMACD is a good neighbor — strategically recessing the upper level allows five stories to read as three, responding to the rhythm and height of residences across the street. At the ground level, the landscape design maintains clarity and interest throughout every season. Outdoor spaces feature cast-in-place concrete seat-walls and wood-topped benches with built-in lighting to provide a light, airy feel, while the planting design echoes the linear rhythm of the seating plan.
该中心通过利用绿色能源解决方案和技术,为克拉克大学校园的可持续建筑树立了新的标准。该项目通过改善场地的土地利用,负责任地利用资源,整合绿色屋顶等功能,获得了LEED金牌。高效的灌溉系统可将室外饮用水的使用减少51%,而低流量装置可将室内饮用水的使用减少22%。CMACD西北入口广场下方的地热井为建筑提供了无需现场燃烧的运行能源需求。在整个项目中,负责任的采购材料被优先考虑,与类似大小和类型的建筑相比,其隐含碳减少了18%。低排放材料的选择改善了学生和员工的室内空气质量,充足的日光和室外景观促进了健康。
The center sets a new standard for sustainable building on Clark University's campus by utilizing green energy solutions and technology. The project earned LEED Gold by improving the land use of the site, which was formerly a parking lot, and responsibly using resources, integrating features like a green roof. An efficient irrigation system reduces outdoor potable water use by 51%, while low-flow fixtures reduce indoor potable water use by 22%. A geothermal well field below the CMACD's northwest entry plaza provides the building with its operational energy requirements using no on-site combustion. Responsibly sourced materials were prioritized throughout the project, reducing its embodied carbon by 18% compared to buildings of a similar size and type. Low-emitting materials were chosen to improve indoor air quality for students and staff, and an abundance of daylight and outdoor views bolsters well-being.
克拉克大学的媒体艺术、计算机和设计中心拥有美国领先的游戏设计和技术专业,为教职员工和学生提供了灵活的空间。通过将不同的学科集中在一个屋檐下,该中心成为创造性探索和技术进步的催化剂。凭借其精心设计的空间,对可持续性的承诺和面向未来的方法,该建筑反映了艾尔斯圣格罗斯的愿景,即创造激励和赋予下一代权力的环境,鼓励学生推动创造性的界限。
As home to one of the nation's leading programs in game design and technology, the Center for Media Arts, Computing, and Design at Clark University provides flexible spaces for faculty and students. By bringing together diverse academic disciplines under one roof, the center serves as a catalyst for creative exploration and technological advancement. With its thoughtfully designed spaces, commitment to sustainability, and future-proof approach, the building reflects Ayers Saint Gross's vision of creating environments that inspire and empower the next generation, encouraging students to push creative boundaries.
项目图纸
▲区位图
▲平面图
▲立面图
▲剖面图
项目信息
设计单位:Ayers Saint Gross
地址:美国
2025新产品趋势·考察学习
各地第四代+高品质 | 金沙+冶都+新东升
▼点击下图,了解报名
本资料声明:
1.本文为建筑设计技术分析,仅供欣赏学习。
2.本资料为要约邀请,不视为要约,所有政府、政策信息均来源于官方披露信息,具体以实物、政府主管部门批准文件及买卖双方签订的商品房买卖合同约定为准。如有变化恕不另行通知。
3.因编辑需要,文字和图片无必然联系,仅供读者参考;
微信公众号“搜建筑”(ID:sjz9999)
合作、宣传、投稿
联系微信:soujianzhu006


