三亚海棠湾,国内旅游度假区。
而本项目正是位于海棠湾中的国际医养板块,周边医疗资源密集,为高端旅度客提供重要的医疗康养资源。
西侧临山,东边观海。
项目定调热带岛屿风,以其浓郁的热带风情和悠闲自在的度假体验,为人们带来了一种逃离都市喧嚣、回归自然怀抱的惬意感受。
保利·海晏,注定承载天时地利人和的期待,打造为领先时代的高端旅奢楼盘。
何谓度假感住宅?
放眼过去,国内市面上户型大多相似,少有创新。设计师从全球范围内汲取灵感,其中迈阿密、迪拜、澳大利亚的度假公寓凭借其独特的风格和先进的理念为设计师提供了宝贵的设计灵感。搜建筑
如果说美学是空间的共感,那景观便是自然的意识。
西侧临山,东边观海,绝佳的景观资源条件促成了大量带有端厅的非常规户型的诞生。搜建筑
保利·海晏尊重土地的天赋,尊重不同的生活价值观。
203㎡户型21.5 m长的270°全景阳台,让住户不被时间、空间束缚,在家就能享受三亚的瑰丽山海,这才算是回归了度假的本质。
让所有设计回归到原点,设计人的生活方式,把人内心的精神连接到自然场景中。
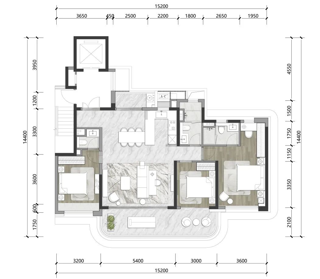
△155㎡户型平面图
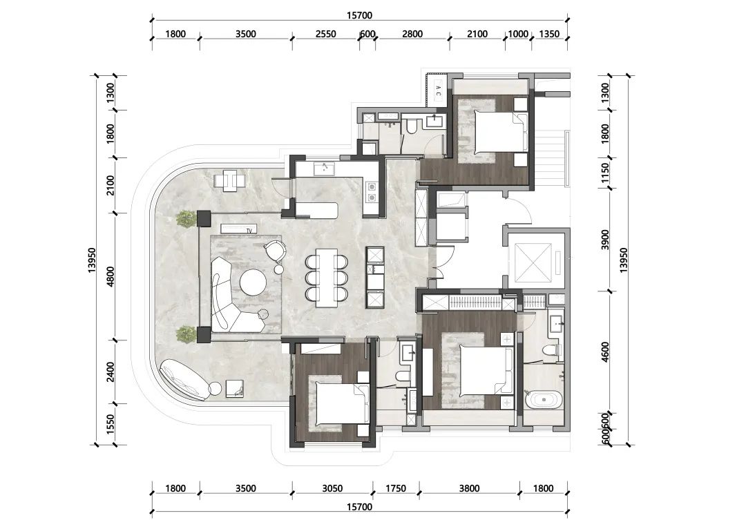
△199㎡户型平面图
低密度的社区下,将户型面宽从楼间距和日照中释放出来,真正实现面宽自由。搜建筑
199㎡户型能做到高达20.1m的面宽,四面宽跑道阳台,将三亚的山与海全部融入眼底。宁静的海水和迷人的沙滩,在这里最原始的山海美景与文化交融缔合。搜建筑
冬日的阳光肆意洒进每一间房间,轻轻唤醒每一次清晨,让业主感受到顶级度假所带来的舒适体验。搜建筑
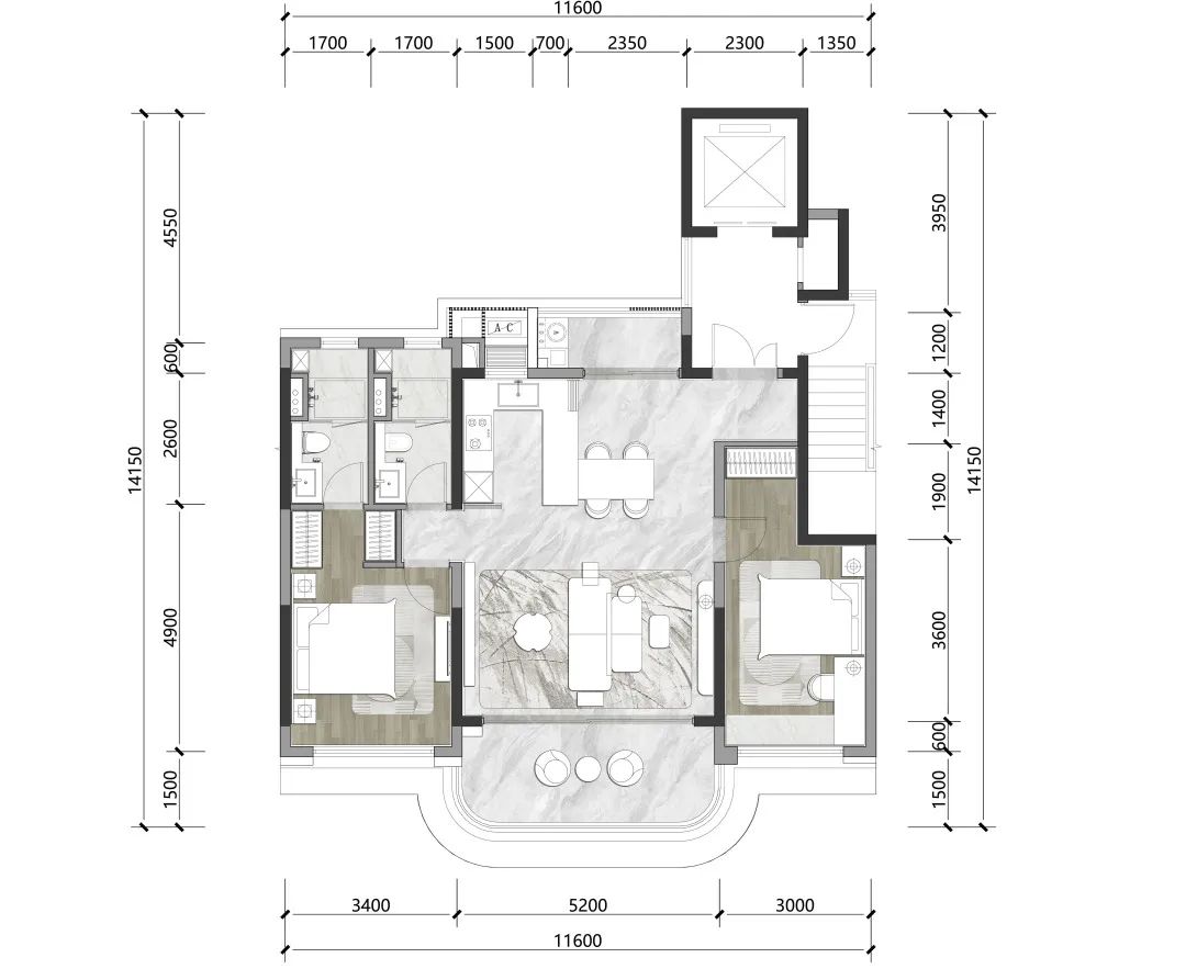
△105㎡户型平面图
即使是最小的105㎡户型,也充分体现了设计师对度假豪宅家庭关系场的把握。搜建筑
打破常规105平三房的户型格局,与其做三个窘迫的房间,不如变成两个舒适的全尺寸房。少一个房间,换两份舒适,这才是度假的意义。
面积分配的方式,体现了设计师对生活方式的理解。全尺寸卧室,是将酒店搬回家的舒适;大面宽阳台,是享受三亚晚风吹拂的惬意;开放式的厨房,是夫妻一起逛菜场,一起下厨房的三餐四季……
尝试与思考
为了给住户带来全新居住体验,过程中设计师做了很多大胆尝试,例如将住户们魂牵梦萦的院子搬上高层——通过奇偶层阳台的错位布置,使得每一户都有部分阳台拥有两层高的净空,形成天然的露台。搜建筑
阳台接近20m的展开面和最多4.4m的进深,共53.2平的户外空间,够住户任意发挥自己的想法定制属于自己的“空中花园”。即使是将泳池搬上高空,早上起床就在私家泳池游上两圈,也不是难事。
虽然后期考虑到成本未能实现,但也是一次大胆的创新和尝试。搜建筑
“什么样的产品能让业主回归真正的度假?”
这是让设计师们反复思量的问题,也是贯穿海晏项目自始至终的问题。
项目占地87亩,规模不小,容积率却只有1.4。两条路线就已经清晰的摆在了设计师的面前。搜建筑
路线一是拉高拍低,出现一部分洋房别墅,把价格再做上去;路线二是全部中高层,打开空间追求舒适度。
确实很多人第一反应会像设计师刚开始一样,认为别墅才是这个地块的最优解。毕竟拥有自己的庭院和一方天地,是大部分中国人难以放下的浪漫情结。
但晏字系作为保利体系内的第一个文旅度假产品,在三亚海棠湾这样一个顶级度假的片区,我们希望的是给客户带来真正的度假生活和感受,而不是用别墅将公共空间一块块划给住户。
当我们来到一片度假胜地,我们并不希望只是被囿于一个小院子里,这和我们在其他任何一个城市住别墅的感受可能相差无几。开放的空间,陌生人的相遇,舒适宜人的自然风光,高端完善的配套服务,这一切才构成了度假氛围感的核心。
融合阳光、白沙、棕榈丛林等热带元素,营造出一种轻松愉悦的氛围,是最容易让人产生有别于普通住宅体验,识别度最高,能快速产生别具风情度假体验感的一种产品策略。
于是我们摒弃高低配,用不到10%的建筑密度,为园林公区留有了更多的可能性。
1. 有足够的场地将项目变成兼容酒店会所、社交场、游乐场等长期居住的旅度综合社区,创造全新的度假生活方式。
2. 低密度下,也造就了超尺度的楼间距,整个园区内共出现10条超远视野线,楼上视野无敌,同时楼间没有压迫感。
3. 极低密度下,将户型面宽从楼间距和日照中释放出来。
设计师对三亚当地的度假酒店进行了深度考察研究,从艾迪逊等酒店的设计规划中得到颇多灵感。搜建筑
这些酒店将重心放在了公共区域的打造上,为宾客提供了一流的度假体验,让人仿佛置身于一个舒适而惬意的度假天堂,这与海晏的设计理念不谋而合,为了让客人回归真正的度假。
10%的建筑密度,使得项目有足够的空间用于公区的打造。
首先将高层产品底层全部架空,通过风雨连廊将其连接,打破空间和景观的边界感。自然形成的底层景观大花园,把地面变成业主的社交花园。
通过精心的规划和布局,将各种生态有机的流线形状融入景观之中,如富有张力的风情构架、浅滩水岸、岛状种植池元素等,这些元素不仅增强了景观的层次感,还使得整个空间充满了动态和活力。
87亩的地表资源,促成了无数个网红社交点的诞生。复刻高端酒店热带雨林,打造“海之舞晏,晏享五洲”高定艺术园林。搜建筑
就如徜徉在原始热带雨林的趣味迷宫里,缓慢揭开奢旅静谧的面纱。有光影稀疏的椰棕林景,也有鲜花盛开的南国风情,既有儿童嬉戏的喷泉水池,也有属于大人的惬意咖啡厅……
松弛感度假的奥义,不只是建筑的极奢,更是高质服务的日积月累。
冬日在温暖的三亚睡到自然醒,披上睡袍踩着拖鞋,穿过花园连廊来到会所,此时业主餐厅里已经备好了丰盛的自助早餐,空气中弥漫现磨咖啡伴着烤面包的香气,当然,也可以让来自世界各地的大厨现做一份定制Brunch。
这种松弛自由氛围对标了高端度假酒店的标准,也是大部分三亚旅居康养用户所追求的度假感。搜建筑
这个时代,奢华的定义不再根植于物质享乐主义。
真正令人心动的生活方式来源于——在时间和空间里重获伟大的宁静,以及含有底蕴的精神内核。
夜幕降临,两三好友相聚,在露天下沉酒吧中来一杯威士忌,吧台放着慵懒随意的音乐,享受夜间海风轻柔的吹拂,从大学初遇聊到垂暮之年。
微醺时刻,在半露天泳池里游上几个回合,感受水流的冲击和生命的澎湃。
人生时刻,不过当下。
海——拥有独特的神奇魅力。搜建筑
海浪潮起潮落,迎着海风拂面,可以让人内心归于平静松弛,我们将这种感受带入到我们的度假社区里。
在社区大门的设计中,我们运用了流畅舒展的曲线和具有节奏感的叠级关系,让建筑就像海浪一般自由而具有韵律,让人在步入小区前就能感受到迎面的度假松弛感。
会所的立面采用了白色的曲线拱券造型,泳池从中穿过,蓝白相映,让人感受宁静而放松。作为国内首家使用迪拜风的社区会所,带来同纬度的气候和异域风情感,让住户的体验感再上一个阶层。
我们将这种曲线元素沿用到住宅立面的设计,曲线形状的大阳台如层层海沫一般轻盈地漂浮在立面上,错层的阳台设计让立面也更加的灵动自由。
来自北纬18°海棠湾,汇聚了来自自然的多种魅力。
丛林与海洋、自然与文明的能量在这里交融。既有回归自然的生活仪式,亦是疗愈身心的精神能量场,它,正成为一种新的奢侈。
保利·海晏,顺应时代召唤,献礼海棠湾。
「工程档案」
项目名称 | 保利·海晏
项目甲方 | 保利(海南)旅游发展有限公司
项目地点 | 海南三亚
建筑设计 | 霍普股份和锐事业部
设计团队 | 费潇 姬鸣 褚宏伟 韩丽娟 杨文强 柯希癸 欧阳营飞 姜斌 李恩 盛鸿 金楚凡 娄蒙莎 李宛玉 刘国军 周心怡 谷一奇 周亮程 张谊林 牙尔扎提·牙生 宋雨聪
景观设计 | 上海朗道景观设计集团有限公司
室内设计 | 紫香舸、HWCD、QC design(全程设计)
用地面积 | 57885.70㎡
建筑面积 | 119173.26㎡
建筑摄影 | 明境建筑摄影
视频提供 | 保利发展
2025新产品趋势·考察学习
各地第四代+高品质 | 金沙+冶都+新东升
▼点击下图,了解报名
本资料声明:
1.本文为建筑设计技术分析,仅供欣赏学习。
2.本资料为要约邀请,不视为要约,所有政府、政策信息均来源于官方披露信息,具体以实物、政府主管部门批准文件及买卖双方签订的商品房买卖合同约定为准。如有变化恕不另行通知。
3.因编辑需要,文字和图片无必然联系,仅供读者参考;
微信公众号“搜建筑”(ID:sjz9999)
合作、宣传、投稿
联系微信:soujianzhu006


