▲更多精品,关注“搜建筑”
Alameda Gabriel Monteiro da Silva是巴西设计界最负盛名的地址,家具和室内设计的大牌在这里设立了他们的总部,每天都欢迎设计爱好者,连接着Avenida Paulista和Avenida Brigadeiro Faria Lima的金融中心。2025年,这个星光熠熠的地址将获得另一个设计卓越的例子,这一次是Perkins&Will, Gabriel Faria Lima公司开发的当代建筑的标志。
Alameda Gabriel Monteiro da Silva is home to the most prestigious addresses in Brazilian design, where big names in furniture and interior design set up their headquarters and welcome design enthusiasts daily, connecting the financial hubs of Avenida Paulista and Avenida Brigadeiro Faria Lima. In 2025, this star-studded address will gain yet another example of design excellence, this time an icon of contemporary architecture developed by Perkins&Will, Gabriel Faria Lima Corporate.
该社区是一个高端住宅区,对建筑的高度和类型有一系列限制。换句话说,在这个地址进行设计意味着意识到与周边地区互动的巨大责任,利用这个非常特殊的机会为城市战略和鼓舞人心的地区的发展做出贡献。
The neighborhood is a high-end residential area, marked by a series of restrictions on the height and typology of buildings. In other words, designing at this address means being aware of the enormous responsibility of interacting with the surrounding area, taking advantage of this very special opportunity to contribute to the development of a strategic and inspiring area of the city.
单人居住的建筑由两层组成,位于可渗透的底层,混凝土pilot和玻璃板加强了室内外之间的联系,优雅的设计和丰富的景观。大板-没有结构中断-为建筑周围的植被提供了灵活的占用和互动,而不放弃隐私,由耐候钢遮光板保证,这也标志着人行道的限制,在软石墙的补充下,为永恒的体量提供了有机性(和巴西性)。
The single-occupancy building is composed of two floors resting on a permeable ground floor, with concrete pilotis and glass panels that reinforce the connection between the interior and exterior, elegant design and abundant landscaping. The large slabs – free of structural interruptions – offer flexibility for occupation and interaction with the vegetation that surrounds the building, without giving up privacy, guaranteed by the Corten steel brise-soleils, which also mark the limit with the sidewalk, in a composition complemented by the soft stone walls, which lend organicity (and Brazilianness) to the timeless volume.
独特的金属元素决定了立面的节奏,交替的垂直线保护着宽敞的窗户,随时准备好让自然光线充满空间。景观美化美化了花园,呼应了绿色植物为城市环境提供的美丽和宁静。
The distinctive metal elements dictate the rhythm of the façade, with alternating vertical lines that protect the generous windows, always ready to flood the spaces with natural light. The landscaping enhances the garden, echoing the beauty and tranquility that greenery can provide to the urban environment.
“在这样一个标志性的地点开发一个企业精品店是一个巨大的机会,可以重新开发,并赋予角落地段新的意义和目的。我们的建议是将Jardins社区整合到建筑中,就好像开发一直存在一样。我们寻求将周围住宅的舒适度、规模和身份与独特的设计相结合,在一个充满活力和独特的共生关系中重视自然,满足不断发展的社会需求,”Perkins&Will s o Paulo的创意领袖和设计总监Douglas Tolaine分享道。
"Developing a corporate boutique in such an iconic location is a tremendous opportunity to redevelop and give new meaning and purpose to a corner lot. Our proposal is to integrate the Jardins neighborhood into the building, as if the development had always existed. We seek to combine the comfort, scale and identity of the surrounding homes with a unique design that values nature in an exuberant and singular symbiosis, meeting the needs of a society in constant evolution," shares Douglas Tolaine, creative leader and design director at Perkins&Will São Paulo.
这个公司项目挑战了过时的观念,即办公楼必须是宏伟的镜像结构。特别吸引人的是它拥抱周围环境的方式——尊重现有的城市结构,并深深融入当地景观,在城市中创造一个和谐而坚实的存在。
This corporate project challenges the outdated notion that office buildings must be imposing, mirrored structures. What makes it particularly appealing is the way it embraces its surroundings — respecting the existing urban fabric and integrating deeply into the local landscape, creating a harmonious and solid presence in the city.
项目图纸
▲平面图
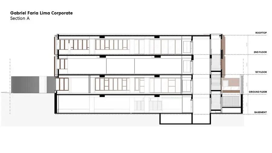
▲剖面图
▲立面图
▲分析图
▲示意图
▲手绘草图
2025新产品趋势·考察学习
各地第四代+高品质 | 金沙+冶都+新东升
▼点击下图,了解报名

1.本文为建筑设计技术分析,仅供欣赏学习。
2.本资料为要约邀请,不视为要约,所有政府、政策信息均来源于官方披露信息,具体以实物、政府主管部门批准文件及买卖双方签订的商品房买卖合同约定为准。如有变化恕不另行通知。
3.因编辑需要,文字和图片无必然联系,仅供读者参考;
微信公众号“搜建筑”(ID:sjz9999)
合作、宣传、投稿
联系微信:soujianzhu006


