
安藤项目——字面上翻译为波斯语中的这两个——是在填充地块上创造新型住宅的尝试。通过释放流通,并将其与露台、入口和院子的开放空间混合在一起,每一层的两个单元都变成了一个充满活力但又平静的住宅综合体,每个单元都保持独立,同时在连接这两个单元的有趣楼梯的帮助下参与永恒的舞蹈。两个同步的体量和似乎卡在中间的楼梯创造了多样化的空间序列,并与它们的开放空间相结合,就像一个三维长廊。
The AnDo Project—which literally translates to those two in Farsi—is an attempt to create new types of residence in infill plots. By freeing the circulation and intermixing it with the open spaces of the terrace, the entrance, and the yard, the two units in each level have been turned into a vibrant yet peaceful residential complex, with each unit maintaining its independence from the other while participating in a perpetual dance with the help of the playful stairway that joins the pair. The two synchronous masses and the stairway that seems stuck in between create variegated spatial sequences and united with their open spaces like a three-dimensional promenade.
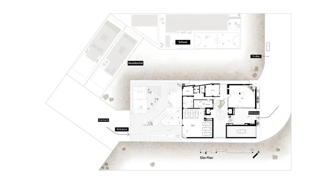
安藤站在一个空间价值从一边到另一边差异很大的场地上。这个问题当然会影响项目的规划,包括城市方面和内部组织。项目的一侧毗邻一所学校,从镜像的一侧向城市景观开放。因此,面向学校的北立面在本质上更加封闭,开口数量最少,主要是由于形式的削减。相反,由于视野的广阔,南部farade具有更多孔的特征:形式试图回应观众凝视景观的需求。
AnDo stands on a site in which spatial values vary greatly from one side to the other. This problem of course affects the plans of the project both regarding its urban aspects and its interior organization. From one side the project neighbors a school, and from its mirroring side it opens to an urban landscape. Thus, the Northern facade which faces the school is more closed in nature, possessing the minimum number of openings mostly resulted from cuts in the form. Conversely, the Southern facade has a more porous character due to the vastness of the view before it: the form has tried to respond to the viewer's need to gaze at the sight.
该项目努力将独立而又互补的元素结合在一起,形成一种永恒的来回关系。它们的独立性既有助于保持孔隙度,又有助于保持其“别墅般的”本质和自然。这也有助于每个关卡中的两个单位独立存在。因此,没有两个单元在设计上是相同的,但它们的灵感来自相同的形式语言和空间品质。
The project has endeavored to incorporate independent yet complementary elements which engage in an everlasting back-and-forth. Their independence aids both in maintaining porosity and in keeping its 'villa-like' essence and nature. It also helps the two units in each level to stand separately. Hence, no two units are identical in their design, yet they are inspired by the same formal language and spatial qualities.
安藤的空间图和正式部分立即展示了一种动态和活力感,同时也承诺了愉快的居住体验,这在项目的物质性中也找到了自己的方式。遵循伊朗悠久的制砖传统,我们在项目中尝试了色彩构图的长期实验,使用了来自附近山丘的不同来源的彩色泥浆。最终,我们创造了一个砖砌的空间,丰富了形式和空间,与国家建筑中材料的历史保持联系,并为客人提供了生活在地球建筑祖国的温暖。它同时提供了一种熟悉和陌生。
The spatial diagrams and the formal sections of AnDo come to exhibit at once a sense of dynamicity and vitality while also promising a pleasant residential experience, a matter which has also found its way in the materiality of the project. Following the great and long-lived tradition of brick-making in Iran, we attempted a long experimentation with color composition in the project by employing multicolored mud from different sources from the nearby hills. Ultimately, a hatch of bricks was created that enriched form and space, kept ties with the history of the material in the architecture of country, and gifted its guests with the warmth of the life lived in the homeland of earth architecture. It offers a kind of familiarity and strangeness at the same time.
▲平面图
▲平面图
▲剖面图
▲示意图
▲示意图
▲示意图
▲示意图
2025新产品趋势·考察学习
各地第四代+高品质 | 金沙+冶都+新东升
▼点击下图,了解报名
本资料声明:
1.本文为建筑设计技术分析,仅供欣赏学习。
2.本资料为要约邀请,不视为要约,所有政府、政策信息均来源于官方披露信息,具体以实物、政府主管部门批准文件及买卖双方签订的商品房买卖合同约定为准。如有变化恕不另行通知。
3.因编辑需要,文字和图片无必然联系,仅供读者参考;
微信公众号“搜建筑”(ID:sjz9999)
合作、宣传、投稿
联系微信:soujianzhu006


