“天空之城”幼儿园
昆山花桥作为长三角地区的重要区域,通过其高度的开放性和快速的国际化进程,已发展成为一个具有全球视野的现代化新区。业主希望在这里建设标志性建筑节点,以展示开发区的开放性和多样性,同时为儿童提供更为丰富的学习和生活空间。受广阔天空的启发,我们的设计以“云”形状为特色,为孩子们创造了一个独特的“天空城堡”,为周围的高层建筑和潜在的未来发展提供了一种庇护感。
Kunshan Huaqiao, a key area in the Yangtze River Delta, has quickly transformed into a modern district with a global outlook. The client aims to establish a standout architectural feature, the Sky Castle Kindergarten, to showcase the area's openness and diversity while enriching spaces for children's learning and play. Inspired by the expansive sky, our design features "cloud" shapes that create a unique "Sky Castle" for kids, providing a sense of shelter from the surrounding high-rises and potential future developments.
概念草图
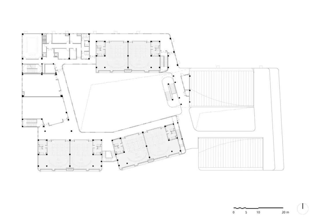
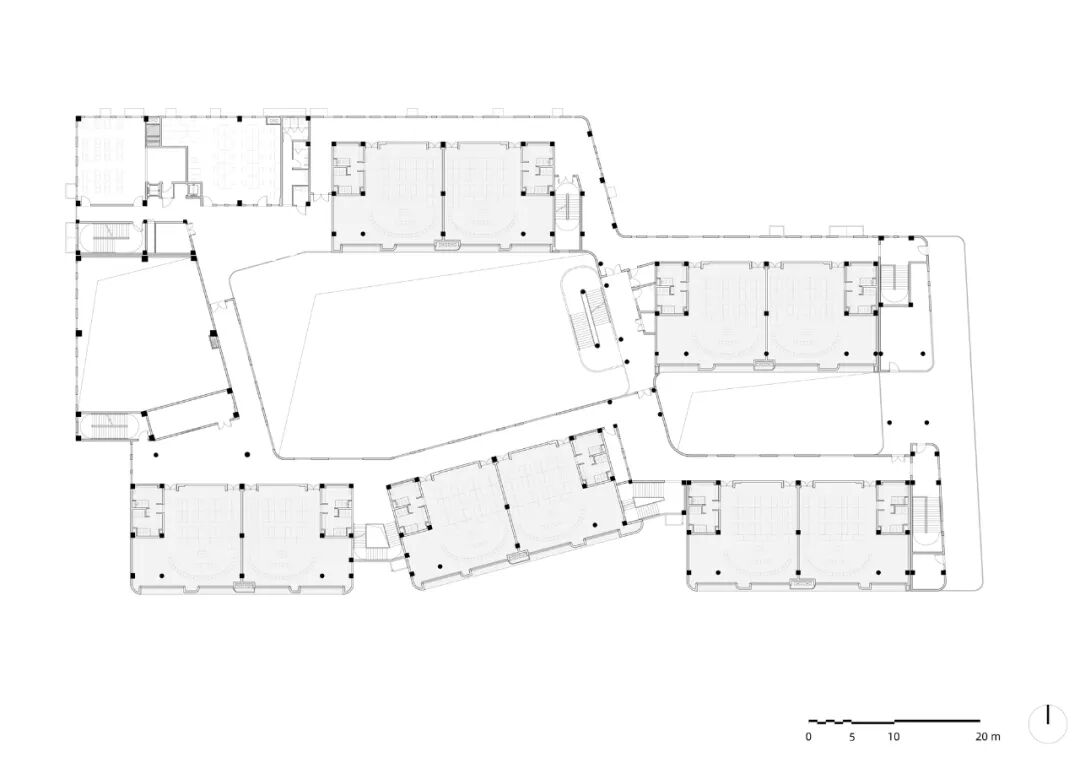
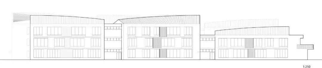
设计包括与教室相连的各种户外活动庭院,顶部是类似云的双曲线屋顶,白色立面与充满活力的彩虹跑道相辅相成。梦幻般的粉色楼梯符合消防安全规范,同时激发了孩子们的想象力。我们整合了东侧的主入口、车辆通道和消防出口,以最大限度地利用校园空间,停车场位于北侧,后勤通道位于西侧。
The design includes various outdoor activity courtyards linked to classrooms, topped with a hyperbolic roof that resembles clouds, and a white façade that complements vibrant rainbow runways. The dreamy pink staircase meets fire safety codes while sparking children's imaginations. We've consolidated the main entrance, vehicle access, and fire exit on the eastern side to maximize the campus space, with parking to the north and logistics access to the west.
整体轴测分析图
“云”集群的方向是最大限度地利用自然光,教室在南侧,以获得充足的阳光。行政办公室位于主入口附近,专门的教室分布在整个建筑中。屋顶设计结合了平面和双曲面,使用参数化设计来管理制造过程中的细节,控制成本并简化施工。户外空间以“彩虹”为主题,在入口处设有半圆形庭院,中央庭院设有沙坑和滑梯。蜿蜒的彩虹小径鼓励孩子们奔跑和玩耍,附近有教师休息区。
The "cloud" clusters are oriented to maximize natural light, with classrooms on the southern sides for plenty of sunshine. Administrative offices are located near the main entrance, and specialized classrooms are spread throughout the building. The roof design combines flat and double-curved surfaces, using parametric design to manage details during fabrication, keeping costs in check and simplifying construction. Outdoor spaces embrace a "rainbow" theme, featuring a semi-circular courtyard at the entrance and a central courtyard with sandpits and slides. A winding rainbow pathway encourages kids to run and play, with a nearby rest area for teachers.


设计的重点是儿童的发展,结合了无障碍的入口、宽阔的走廊和适合年龄的特征,如低水槽和厕所。灵活、宽敞的多功能区域可以容纳各种活动和社区聚会。通过让相关的利益相关者参与设计过程,我们在未来的用户中创造了一种所有权感。为了加快建设,我们将教室单元模块化,并采用智能建筑管理系统优化能源使用。景观设计包括雨水收集系统、中水回收和雨水花园,以改善环境,减少雨水径流,并促进幼儿园内的生物多样性。
The design focuses on children's development, incorporating accessible entrances, wide hallways, and age-appropriate features like low sinks and toilets. The flexible, spacious multipurpose area can accommodate a variety of activities and community gatherings. By involving relevant stakeholders in the design process, we create a sense of ownership among future users. To speed up construction, we modularized classroom units, and a smart building management system optimizes energy use. The landscape design includes a rainwater collection system, grey water recycling, and rain gardens to improve the environment, reduce stormwater runoff, and boost biodiversity within the kindergarten.
项目图纸
整体模型照片
项目信息
项目名称:“天空之城”幼儿园 Sky Castle Kindergarten
设计团队:李传樟,廖喆璇,萧芸萱(实习),孔璐(实习)
施工图团队:刘一萍,高勇,刘琳,李霞,张金晶,袁永侠,王珊,方彪,沈军
顾问:花桥经济开发区规划建设局,花桥经济开发区社会事业局
2025新产品趋势·考察学习
各地第四代+高品质 | 金沙+冶都+新东升
▼点击下图,了解报名
本资料声明:
1.本文为建筑设计技术分析,仅供欣赏学习。
2.本资料为要约邀请,不视为要约,所有政府、政策信息均来源于官方披露信息,具体以实物、政府主管部门批准文件及买卖双方签订的商品房买卖合同约定为准。如有变化恕不另行通知。
3.因编辑需要,文字和图片无必然联系,仅供读者参考;
微信公众号“搜建筑”(ID:sjz9999)
合作、宣传、投稿
联系微信:soujianzhu006
搜建筑·矩阵平台