▲ 更多精品,关注“搜建筑”
在经历了“在稳增长、防风险、深化供给侧改革“等一系列举措后,改善性需求扛起了楼市重启的大旗。
其中,140㎡左右是改善赛道的标准户型之一。
约140㎡左右,两人居住不嫌大,三口之家很舒适,二孩家庭也够住。如果是140㎡做四房,虽然拥挤点,但理论上二孩家庭再带上一方父母也是能住下的,所以其受众十分广泛。
具体来看,在140平四房这条赛道,各个新盘都亮出了绝活:从玄关到阳台,从餐客厅到主卧套房…室内每个部分的设计都在进化。
1
入户玄关:兼具仪式感与功能性
玄关作为室外和室内的过渡空间,承担着展示、储物收纳、保证隐私等多个功能。如果房企在玄关部位做好功课,业主踏入房子的第一步就能体验到房子的价值。
① 全明电梯厅+双侧/单侧入户玄关
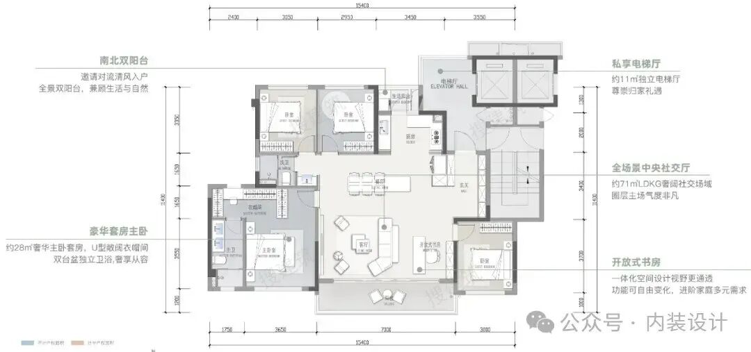
龙湖天府晴川约143㎡户型,四房双卫三厅,综合得房率超过100%,两梯两户纯板结构。
龙湖天府晴川约143㎡户型示意图
约11㎡的全明采光独立电梯厅已然强悍,更值得拎出来重点表扬的是双侧玄关。不仅具备更强的收纳能力,且相对于户内流线来说相对独立,较少干扰,节约面积。
龙湖天府晴川约143㎡户型玄关示意图
龙湖天府晴川实景示意图
龙湖天府晴川立面效果图
玺宸和著外立面意境图
② 全明电梯厅+玄关柜+储藏间
成都星河world三期建面约142㎡产品拥有约12㎡的入户花园,且实现了270°全采光。
成都星河world三期建面约142㎡户型示意图
玄关柜+储藏间双设计,优势互补,系统性的优化收纳空间,划分出脏污区和洁净区。且步入式储藏间柜门关闭后物品全部隐藏,干干净净,告别”脏乱差“。
③ 独立电梯厅+独立双玄关
无锡凤栖星澜约148㎡户型,四室两厅两卫,独立电梯厅+对景玄关+侧玄关,打造出深具专属感的空间维度。
无锡凤栖星澜约148㎡户型示意图
入户玄关空间阔绰,可以存贮鞋帽等,还可以放置高尔夫杆、行李箱等等,既有超强的收纳功能,又给业主满满的归家仪式感。
2
打破界限,LDKX厅一体化设计
从前,我们强调私密性,而如今家庭成员的情感与互动越来越少,有效连接成了设计的重要一环,因此,家庭核心区这一概念应运而生。
客厅、餐厅、厨房是居家生活中动态使用频率最高的地方,一体化设计放大空间的同时,能够深化家人之间的互动以及交流。阳台也可以并入LDK中,简称LDKB一体化,书房办公区也可以打通并入,实现更多的场景互动。
① LDKX超大边厅
再来看下上述成都星河world三期建面约142㎡的户型产品,LDK+X边厅设计,客厅开间达到约9.35m,若加上玄关空间,整个家庭主场面积达到约63㎡,奢阔的空间享受直接媲美市面约160-170㎡的大平层。
星河world三期建面约142㎡户型边厅图
这一户型也是一亮相就成为市场爆款。
② 景观阳台+LDKX厅
玺宸和著建面约143㎡户型示意图
约17.3m超大面宽,窄进深,五开间朝南,大大超越同级标准。
玺宸和著建面约143㎡户型样板间实景图
客厅可直接连贯到阳台,无遮挡视野透亮,布局方正减少了浪费;约7m面宽、约1.8m进深的大阳台,270°观景,餐厅、客厅双厅一体设计,囊括阳台区域,整体约46㎡的横厅。
③ 南北双阳台+LDKX厅
龙湖·天府晴川143㎡的户型设计基本上没有空间的浪费,优化了“静区走廊”、将更多的面积分配给了“厅”,LDK+阳台空间约71㎡,这种通常要在170~190㎡户型才会看到的“厅”,龙湖却把它放到143㎡户型中,真正属于是“越级”的配置。
龙湖·天府晴川约143㎡户型示意图
客餐厅链接生活阳台及景观阳台,充分实现了采光性及南北通透感。
中国铁建西派御江约143㎡户型示意图
南向双联阳台,面宽约9m,进深2.2m,带来巨幅采光面与景观面;进深约1.9m的北向阳台则作为生活阳台满足了洗衣、晾晒、储物的需求。
中国铁建西派御江项目外立面效果图
3
主卧套房,充分满足“悦己”需求
拥有私人空间是近年来人们愈发显著的需求,这实质上是一种“悦己”意识的强化。越来越多的购房者希望拥有一个能够静心享受独处的空间。
所以很多户型在主卧设计上,对这样的需求展现了一定的思考。
① 270°转角开窗+超大衣帽间
成都建发华润·玺宸和著建面约143㎡户型主卧做到了整面山墙开窗。
成都建发华润·玺宸和著建面约143㎡户型示意图
主卧北侧将梳妆台与衣帽间集成到一起,开间达到3m,梳妆台正对开窗面,窗外是开阔的楼间距与景观园林。
玺宸和著建面约143㎡户型样板间实景图
② 双270°转角开窗+南北对流
联投文津府约140㎡户型示意图
试想一下,当清晨第一缕阳光洒落屋内,女主人在中间梳妆打扮,环顾四周处处皆景,每一天的好心情,都从此刻开始。
③ 超大开间主卧
越秀天悦云萃约143㎡的户型中的「恋人主卧」面宽达到了约5.1m,开间尺度大幅增加也将带来了两点变化:
越秀天悦云萃约143㎡户型示意图
首先,意味着开窗面积更大了,相应的视线的角度也更为开阔。
其次,意味着功能布局更丰富了,2.2米长的MAX大床+1米的床榻,若是常规143的主卧已捉襟见肘,但在这里您还可以再放个0.8米进深的梳妆台。
所以,在这里也能获得不亚于170㎡+主卧的场景感。
项目外立面是由操刀过麓湖、武侯金茂府的洲宇设计打造,大面积玻璃和金属的结合,形成了约0.27的窗地比的钻石光感外立面,配合眼下杭派流行的游艇造型+三段式立面,超具辨识度。
博源尚云府建面约143㎡户型示意图
博源尚云府立面效果图
4
次卧升级,舒适度进一步提升
次卧往往是开发商忽视的一个空间。但是事实上,次卧承载了“一个孩子的降生和长大、孩子和老人的互动空间、从儿童到少年的功能需要”等等功能,所以越来越多的家庭开始追求“空间平权”。
① 南向五开间,三卧室朝南
龙湖江天阙约143㎡户型南向面宽达到了5开间,三间卧室均为南朝向,实现了对生活场景的全面升级。
龙湖江天阙建面约143㎡ 户型示意图
龙湖江天阙实景图
② 双套房三卫设计
邦泰天府云璟约143㎡户型示意图
意境效果图
融合豪宅的设计理念,并将其降维到改善产品或将成为了一种趋势。
2025新产品趋势·考察学习
各地第四代+高品质 | 金沙+冶都+新东升
▼点击下图,了解报名
本资料声明:
1.本文为建筑设计技术分析,仅供欣赏学习。
2.本资料为要约邀请,不视为要约,所有政府、政策信息均来源于官方披露信息,具体以实物、政府主管部门批准文件及买卖双方签订的商品房买卖合同约定为准。如有变化恕不另行通知。
3.因编辑需要,文字和图片无必然联系,仅供读者参考;
微信公众号“搜建筑”(ID:sjz9999)
合作、宣传、投稿
联系微信:soujianzhu006


