▲ 更多精品,关注“全球精品楼盘考察”
2025,高品质、好房子已是趋势
提升竞争力的时代正在开启,夯实产品,不断提升品质实力。坚持长期主义和高品质的房企,似乎比以往更加“如鱼得水”。

1、深研区域房企独特的战略定位与企业文化
咨询微信:soujianzhu03
咨询微信:soujianzhu008
项目高管带队讲解
商丘·四大精品
金沙分享会亮点:
一、金沙集团的逆势发展之道
二、“红盘”背后的设计力量——金沙案例解析
三、高品质和成本控制的平衡
金沙集团,凭借一己之力成为了竞相追捧学习的精细化地产“扛旗者”,金沙三宝:建筑、景观、物业好,不仅吸引到全球设计大师前来助阵,更吸引来上千家房地产同行慕名到访,是业界名副其实的标杆企业。
专题考察+房企分享会
【中国 · 郑州】
▲ 华润·润府二期
温馨提示:郑州本次安排6-7个参观,部分项目根据现场情况可能会有调整。感兴趣的朋友请及时报名。(可选:是否参观+学习金沙模式)( √郑州活动链接)
金沙•缦岛
2024年6月,经过9轮竞拍,溢价4000万,金沙摘得2024年商丘新地王。金沙集团联袂HZS汇张思设计事务所董事长张润舟、总裁思图德等海内外大师团,历时数月打磨,经过多轮方案研讨,金沙TOP4.0系全新力作——金沙缦岛。
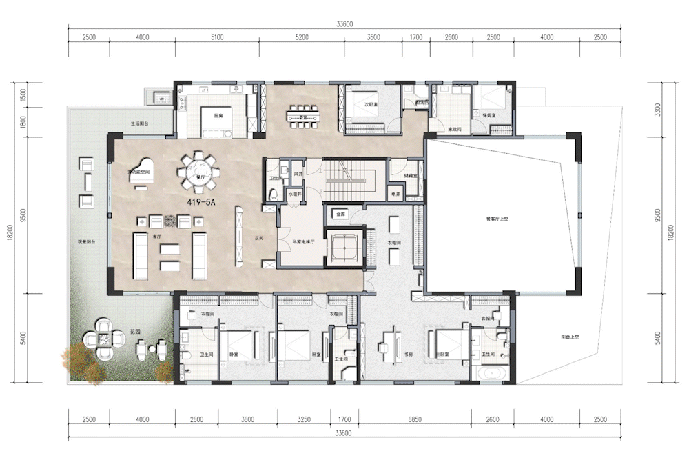
▲ 项目总平图
项目依循地势高差,引水入园,规划群岛式布局,盛揽“三川、一湖、四岛”,划界时代岛居;岛居19栋,超尺度楼距排布,无界视野,以每一栋皆临湖的极致奢享,创造比肩全球度假酒店的居住体验。

▲ 鸟瞰图
项目引入“垂直森林”和“花园城市”前沿理念,打造8栋花园洋墅,每户超值赠送,私享空中院落,莳花弄草、亲子玩伴等多元化生活场景从容切换。
金沙缦岛大门效果图

▲ 洋房立面效果图
▲ 平墅立面效果图
岛居19栋,多层立体墅居,大胆颠覆传统人居想象。一层私享双庭院;二层L型大庭院入户,私享空中阔景阳台;三层独立花园入户,跃层享星空顶露台;户户均享地下室,私人定制可变空间,适配不同家庭的个性化需求。
金沙•金明书院

▲项目实景图
玉门内部,内藏精致木构,通过艺术形体重构一个木构建筑,营造出一个内有乾坤的空间体验。大堂包括长桌等候区、大堂服务区,灯光从木构缝隙中渗透出来,中心区域设置通高灯箱,加强大堂的仪式体验。
设计师的灵感闪现,为金沙勾勒出了一个独特且富有艺术感的金明書院大门。
▲ 项目实景图
金沙•壹号院
2022年河南省工程勘察设计行业奖 一等奖
2022年河南省土木建筑科学技术奖 一等奖
金沙壹号院,占地面积约60亩,建筑面积14万方,绿化率高达38%,容积率仅2.89,一共625户。共规划了8栋楼,产品全部以大平层户型为主,面积区间约为150-240㎡。在这块寸土寸金的土地上,奢侈的打造了约80米的楼间距,把整个社区的中间部分,全都留给了园林,光园林面积就2万多㎡。
商丘金沙壹号院,于外,外修其形,以醇熟配套、高颜值建筑,打造璀璨大城生活;于内,内练筋骨,匠心淬炼精致装修入户大堂等场景,营造更高品质的内在居住体验。
项目高层立面设计上,以曲线为“引”,自下而上生长的线条交错、融合、延伸、无边界,最终在三维尺度上形成“超流线”,呈现出流畅而富有张力的曲线序列。
▲ 金沙壹号院实景图
外墙安装工艺
其次,转角圆弧玻璃安装难度非常高,要求玻璃制作精度误差不得超过2mm。而且每一栋楼的圆弧尺寸都不相同,需要工作人员现场测量,并把数据同步给厂家。
▲ 示意图
入户大堂的精修装
作为当下城市高颜值住宅的代表之一,商丘金沙壹号院凭借极具设计感与冲击力的建筑立面,火速“出圈”。从室外移步至室内,酒店式归家入户大堂,让业主与访客在踏入的第一时间,感受到大气尊贵的舒适感。
其实公区装修,最难的部分就是连纹砖对纹。大家仔细看左边的墙面,全都是带纹路的,工人铺贴每一块瓷砖的时候,那都是严格按照编号施工的。
看得见的地方难,看不见的地方更难。
金沙壹号院大门口水系犹如一座漂浮在海洋上的小岛,是景观的一大亮点,富有质感及设计感的精致LOGO在水中静立,成为整个空间的视线焦点,也充分提升景观气质,延续艺术性的同时也烘托出了尊贵的气质。
在产品设计上,一梯一户及私家电梯厅设计营造出居住的尊崇感;极致的大面宽——所有户型均3至4面宽朝南,保证南向采光;考虑社区景观及日月湖景观优势设计端厅户型,结合端厅设计转角阳台,270°观景,“巨幕”私享日月湖无限风光。
在草坪上,有随处可见的散水栓箱,但是这样一个不起眼的箱子,却凝聚了施工工人近半个月的时间。你可能会问,就正常的散水栓箱有什么难度?如果你离近看,就会发现它并不像表面那么简单。
为了安全美观,金沙工程师苦思冥想,最终设计了一款圆角散水栓箱,简洁大方,不伤人,最重要的是上面的logo是经过冲压技术压上去的,靠压力机和模具对不锈钢施加外力,使之产生塑性变形。
虽然只是一个小小的技术,但是找了很多地方都是先裁剪出方块,方块进行字体蚀刻,再焊接回盖板之上,完全不能满足金沙的精细化标准。最终,金沙团队在郑州定制了字体模具,再进行冲压一体成型,才做到了如今完美的效果。
成本为品质让路,时间为品质让路,一切为品质让路是金沙一直坚守的原则。每一平米的美好呈现,每一个细节的处理,都倾注了金沙人夜以继日的匠心研磨,就连在路上随处可见的线性排水沟篦子也是如此。
金沙 · 天悦
2022年河南省三大轻奢美宅作品
2022年河南省工程勘察设计行业奖 一等奖
项目设计灵感源于商丘的应天书院,其作为北宋时期最高学府,位居中国宋朝四大书院之首,是唯-一所设立于繁华闹市之中的书院。
金沙天悦将书院文化提炼,进行现代空间演绎,大胆融入水院概念,延续应天书院礼制空间,以书院文人雅士生活场景映射未来生活雅趣。

功夫不负有心人,历经4个多月,终于在千年瓷都景德镇一处“古建筑抢修世家”寻得了一座珍稀古亭。无论是这座亭的高度、宽度,还是整体的工艺工法,都是难得一见的珍品。

为了保护这件珍品,把古亭从几千里外运到商丘,需要将古亭的每一个木件结构依次拆开,再小心打包,运送到商丘重新依原样搭建。经过七位专业老师傅将近一个月的努力,终于把古亭20000多个木制零部件组建完成。
▲ 项目实景图
既显现出商丘的深厚历史底蕴,又展现了现代艺术的独特魅力,形成一种既具有历史感,又具有现代感的艺术表现。
众所周知,金沙的精细化毛坯交付标准极高,不装修也近乎能入住。来到现场您会发现,金沙的墙面、地面施工相较于传统作业,可是多出好几道工序,与普通交付相比,房屋的整体品质、观感,自然更胜一筹。
车库整体基调为简奢典雅的暖白色,顶部走线统一,整体看上去简洁大气,而且整个空间的视觉色彩更加的和谐、轻松、舒适。
地下车库中管线众多,包括给排水、电气、暖通等系统,管线之间的空间关系和布局,直接影响车库的使用效率和安全性。在施工之前,项目采用BIM技术对车库管线进行优化设计和碰撞检测,更好地了解施工细节和要求,提高施工质量和效率。
在灯光上,整个地下车库采用LED自动感应灯的照明模式,灯随车亮,完全不用担心进入地下车库时,灯光出现忽明忽暗的情况。
此外,金沙天悦的地下车库还有诸多贴心升级设计,例如立柱增加铝合金防撞条,不锈钢集水坑的盖板,高档铸铝挡车器等,让人只看一眼,就喜欢上了这里。
在项目景观视野最好的高层楼栋,户型设计为多面宽超大尺度南向布局,将景观优势最大化展现,提高户型的价值点和竞争力。
▲ 多面宽超大尺度南向布局
金沙•東院
正如世间所有历经时间而永恒的伟大作品,对于品质的考究,是一切了不起的开始,金沙東院,亦是如此。
作为金沙TOP系的战略作品,金沙東院是日月湖这片土地上一个特别的存在,代言着一种迭新体验的纯粹洋房生活,也代表着金沙产品力的硬核造诣。所以在归家门庭、景观营造、建筑工法包括建材的考量上,无不考究用心。
▲金沙·東院 实景
景观

楼宇间通过错位营造出灵动空间,形成三级景观渗透和超大视距。在项目中庭设置下沉式庭院会所,形成从地面到地下的空间层次渗透,打造沉浸式的空间体验。
细节
就连园区里一个毫不起眼的小组件,如花池灯箱、草坪灯、地漏、取水阀+雨水口等都要进行五次打样。
東院的门
大门两侧的消防门蕴含中国人的含蓄之美,先见景后见门,入口与景观融为一体。门前的古松、山石、草坪犹如一块屏风,若隐若现。
地下车库归家大堂正对自动门的位置,做了古铜雕刻定制 logo,色彩和质感的碰撞,与整体环境十分协调,塑造出精致奢雅的形象气质。
地库
对于房子而言,惊艳的建筑外立面是“面子”,隐藏在地下的车库是“里子”。
在车库出入口处,金沙匠人别出新裁,设计全新超高挑空设计、感应式灯光系统、墙面天然石材,业主不管是出门还是归家,都能给您满满的仪式感。


▲ 项目实景图
建筑

创新户型:420㎡一层一户,6.6m超高挑空
在产品设计上,通过对户型的创新设计、严苛的尺度考究,打造出高端住宅新样本。项目标准层高3.15m,楼王标准层高3.3m,局部挑空6.6m——设置了双层挑高空中庭院,无柱悬挑6.5m,覆土40cm,突破了常规阳台的空间尺度,带给业主超尺度的生活空间享受。
▲ 项目效果图
约90㎡开放式客餐厅搭配6.6m超高挑空,超大开间及超大落地窗设计营造无边界视觉效果,搭建疏朗开阔的空间,使房间通透感十足,视野豁然开朗。
▲ 420㎡户型首层平面
内部工艺
▲样板间实景图
学习 金沙集团 服务
实楼演练不仅仅是金沙锤炼产品的一大法器,更是对业主未来入住的一种责任体现。金沙的每一次实楼演练都能发现很多问题,不仅可以帮助提升工程质量,还能大幅减少业主在装修过程中的改造困扰和二次投入。
由金沙集团总裁带队,集团审计监察、技术研发、工程管理、成本招采,以及物业公司、区域公司、营销管理部、施工单位等核心部门精英组成实楼演练小组,针对金沙壹号院的各个户型,提前模拟未来生活场景,精研人性化生活细节,及时修正设计及功能缺陷,优化提升业主的居住舒适度。
工程精细化是金沙的立命之本,金沙生存的根基。在实楼演练的过程中,不光是要发现问题,也要发现亮点。这样在后续的施工中,可以把亮点发挥到极致,也把金沙这些优秀的做法,及时用在其他项目中。

专业的事情交给专业的人来做,金沙的洗车团队都是培训合格后才能上岗。
自2022年推出“金沙精彩生活”大服务以来,金沙就在多个项目相继建设了衣物洗护中心,让业主不出小区,尽享品质生活。

对于金沙人来说,无论做啥事,专业、精细是必须的。先看看洗衣设备,全自动全封闭四氯乙烯干洗机、水洗机、烘干机、洗鞋机、烘鞋机、多功能烫台、衣物消毒柜等等,一应俱全,高端大气。
还有大家最关心的洗衣价格,话不多说,直接上图。
随着社会的发展,家政服务在日常生活中越来越常见,金沙物业推出的精彩家政服务也越来越受欢迎。为了提升业主的幸福感,金沙精彩家政服务以低于市场的价格,超市场的服务品质来服务于金沙业主。
单是一个小房间的操作流程就包含:带齐该单间所有工具、开窗、除顶尘、擦窗、整理杂物、擦拭家具用品、拖地、更换垃圾袋等流程,更是要经过自我检查、组长检查、客户检查等检查之后才算结束。
作为金沙三宝之首,金沙对建筑质量尤为重视。除了好的设计、严格的管理、多级检验制度,公司制定的奖励激励政策,也是保障工程质量的一大秘诀。
大会旨在表彰在过去一个季度中,为金沙工程项目贡献卓越、践行精细化标准的功臣们,同时分享精细化建设的丰硕成果,并对未来的工程项目提出更高要求与期许。
近年来,金沙物业一直把电梯安全运行作为重中之重,每年定期对各小区电梯进行检查、维护,并开展电梯困人应急救援演练,锻炼物业人员在面对突发事件时的反应速度和处置能力,防患于未然。
咨询微信:soujianzhu03
咨询微信:soujianzhu008
2025年·新产品方向
《 品牌地产 | 精品楼盘活动 》
杭州、苏州、上海
成都、郑州......
广州、福州、重庆
西安、青岛......
扫描二维码 加好友咨询
领队微信:soujianzhu03
本资料声明:
1.本文为建筑设计技术分析,仅供欣赏学习。
2.本资料为要约邀请,不视为要约,所有政府、政策信息均来源于官方披露信息,具体以实物、政府主管部门批准文件及买卖双方签订的商品房买卖合同约定为准。如有变化恕不另行通知。
3.因编辑需要,文字和图片无必然联系,仅供读者参考;
推荐关注
全球精品楼盘考察
扫描二维码关注

微信公众号:全球精品楼盘考察
合作、宣传、投稿
联系微信:soujianzhu006

