印度和教育——在印度,最早的学校形式之一是gurukul(导师,kull -house)。对于熟悉这个概念的人来说,这让人想起一位博学的上师在大树的树荫下向弟子传授知识的强大形象。这种无限制的、最小限度的、间接的教学作为知识转移的一种形式,在19世纪左右很快消失了,细胞和钟模型接管了大多数机构。
India and education – In India, one of the earliest forms of schools is a gurukul (guru-teacher, kul-house). To people familiar with this concept, this invokes a powerful image of a learned guru passing on knowledge to disciples under the shade of a large tree. This unbounded, minimal, indirect instruction as a form of transfer of knowledge soon disappeared around the 19th century, with the cells and bells model taking over the majority of institutions.
“学校”一词源于希腊语σχολή (scholο),原意为“休闲”。具有讽刺意味的是,目前这个国家的大多数学习环境都将学习的天平向压力倾斜,而不是休闲。教育教学方法正在发生变化,知识从教师到学生的工业等级转移不再满足21世纪学习者的需求和愿望。教学创新需要教师和学生共同探索的空间。
The word 'school' derives from Greek σχολή (scholē), originally meaning 'leisure'. Ironically, the current majority of learning environments in the country tip the scales of learning more toward pressure than leisure. Educational pedagogy is changing, and the industrial hierarchical transfer of knowledge from teacher to pupil no longer meets the needs and aspirations of 21st-century learners. Pedagogical innovation demands spaces that enable exploration by both teacher and student.
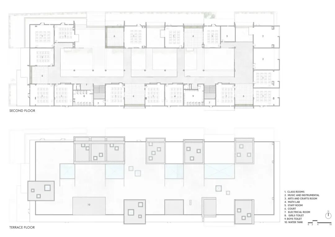
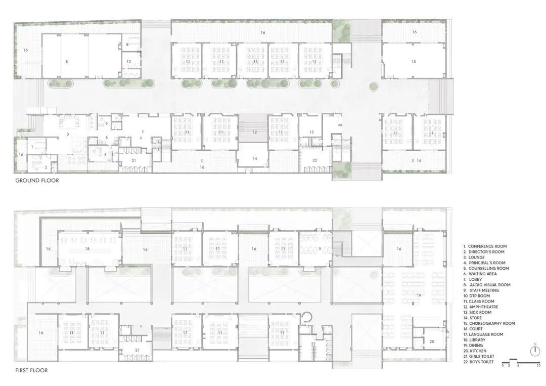
彩虹国际学校——作为现有校园的补充,这座三层楼高的建筑横跨东西,长边面向南北,最大限度地减少了热量的增加。中央脊柱,一个巨大的三层体量,划分了学校的南北翼,桥梁跨越,在多个层面上交错。在这个体量中,雨水从顶部通过天窗照射到充满热带绿色植物的大型种植园上,这些植物遍布整个学校。南翼本身是交错的,以保护较低的楼层不受南方高太阳的照射。
Rainbow International School – Designed as an addition to an existing campus, the three-story-tall building spans east to west with longer sides facing north and south, minimizing heat gain. The central spine, a large, three-floor volume, divides the north and the south wing of the school, with bridges spanning across, staggering on multiple levels. This volume has light raining from the top through skylights, hitting the large planters filled with tropical greens that run the length of the school. The south wing itself is staggered to protect the lower floors from the high southern sun.
教室和庭院:一层的教室面向阴暗的南北庭院。较高楼层的教室向东或向西开放,共享大的双层高庭院。这些庭院试图通过消除墙壁,使教室更接近古鲁古鲁模式,从而缓解典型的四墙教室所带来的狭窄感觉。为了充分参与建构主义学习,学生需要在讲座、小组学习、演讲、讨论和个人作业时间之间进行转换。
Classroom and the courtyard: The ground floor classrooms open onto shaded north or south courts. The classrooms on the higher floors open east or west, sharing large, double-height courtyards. These courtyards are an attempt to take the classroom closer to the gurukul model by eliminating walls, thereby easing the constricted feeling that a typical four-walled classroom imposes. In order to fully engage in constructivist learning, students need to transition between lecture, group study, presentation, discussion, and individual work time.
“剩余”的黑桃和学习:为了真正改变教育模式,学习空间沿着教室外连接的地方网络进行规划,学习可以从一个空间流向另一个空间,并培养社区意识。这些额外的空间可以通过改变对有计划和富有成效地使用空间的普遍期望来激发思想。这些“剩余的”空间可以导致有价值的、计划外的和非正式的联系。他们提升话语,鼓励创造力,促进合作。
'Left over' spades and learning: To truly shift the educational paradigm, learning spaces have been planned along a network of connected places outside the classroom where learning can flow from one space to the next, and a sense of community is fostered. These extra spaces can stimulate thought by shifting common expectations of planned and productive use of space. These "left-over" spaces can lead to valuable, unplanned, and informal connections. They elevate discourse, encourage creativity, and promote collaboration.
冷,当地的Kota石材,点缀着花岗岩,构成了大部分地板。铝制推拉门作为教室和庭院之间的分隔物。外院用当地的土门石完成。尽管在过去一万年的人类文明中,技术的进步使人类的经验越来越多地与这个星球上不受控制的生活方面分离开来,但人类仍然渴望甚至需要与自然建立联系。学校通过使用光、风、树木和体量,将学习体验与自然世界的模式和过程重新整合起来。
The cold, locally sourced Kota stone, which is interspersed with granite, makes up most of the flooring. The aluminum sliding doors act as a separator between the classroom and the courtyards. The outside courts are finished with local tandoor stone. Despite the advances in technology over the last ten thousand years of human civilization, which have increasingly separated human experience from the uncontrolled aspects of life on this planet, humans continue to desire, and even need, connections to nature. The school re-integrates the learning experience with the patterns and processes of the natural world, through the use of light, wind, trees, and volumes.
项目图纸
▲总平面图
▲平面图
▲剖面图
▲示意图
▲剖面图
▲剖面图
2025新产品趋势·考察学习
各地第四代+高品质 | 金沙+冶都+新东升
▼点击下图,了解报名
1.本文为建筑设计技术分析,仅供欣赏学习。
2.本资料为要约邀请,不视为要约,所有政府、政策信息均来源于官方披露信息,具体以实物、政府主管部门批准文件及买卖双方签订的商品房买卖合同约定为准。如有变化恕不另行通知。
3.因编辑需要,文字和图片无必然联系,仅供读者参考;
推荐关注
全球精品楼盘考察
扫描二维码关注
微信公众号:全球精品楼盘考察
合作、宣传、投稿
联系微信:soujianzhu006



