未来书院生成记
西北师范大学综合学生公寓设计解析
TJAD4教育文体

▲建筑效果图
作为实验性建筑的重要来源,大学生活类的建筑项目一直是值得关注的。国外此类的著名项目有斯蒂文•霍尔的MIT学生公寓,以及早些年代柯布西耶设计的马赛公寓。这两个项目都实现了一个社会实验性实践,即建筑内部实现了小型社会生活,集合了各种生活所必须的内容,在建筑管理上也是采用自我管理的模式。
本项目是国内高校中少见的高容积率(容积率6.2)、具有复合功能的综合学生公寓。需要1500间以上的学生宿舍。住宿学生主要为研究生和博士生,总计人数接近5000人(相当于普通高校中的一个宿舍组团的规模)。
目前该综合学生公寓已经建成并投入使用。学校将建筑命名为“未来书院”,是希望该建筑能代表未来综合性学生公寓的一种教育建筑形态的可能性。
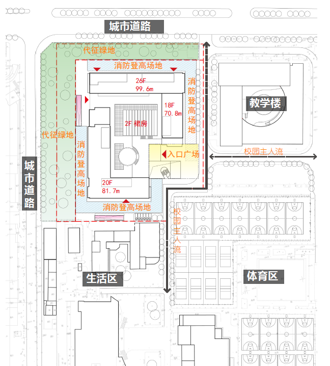
方案形态的生成逻辑:在满足高容量需求条件下,形成一个具有安全感的内向空间结构。
居住其中的学生尤其希望接触一个相对多样、广泛的社会活动。建筑容纳了公共教学空间、琴房和排演厅、多功能厅、体育健身、社团活动、社交空间,甚至还有浴室。整个建筑更像是一个小型的校园社会生活的场景容器。
居住项目兼具校园公共教学活动,使用者数量大,在时间和空间上都有不同的需求。设计采用了多首层的理念,使用者可以从下沉庭院、首层和二层进入建筑公共裙房部分。住宿学生可从室外大台阶直接到达三层的宿舍门厅。不同的出入口在水平和竖向上分解不同人流需求。
考虑到西北的气候环境,社会活动更多的是需要在室内空间里完成。因此,我们有意识地在裙房内部塑造出一个具有外部特性的社区化空间。这个社区化空间的范围从地下一层延续到地上二层。建筑内部呈现出街道化的空间设计,置入路径、节点(停留空间),让内部空间外部化。
纯圆形的空间所内含的精神感受与体验,是对建筑内部社区空间在精神层面上的补充,以此形成建筑内部空间在社会意义上的完整性表达。
与此对应,我们在圆形空间的另一侧布置了一个功能性的矩形空间——多功能性集会空间。在建筑裙房内部的街区式游憩序列中形成了一圆一方的双核心空间。
裙房屋面是一个重要的室外活动平台,也是主楼住宿区的入口层,是学生宿舍区重要的会客交流的场所。
在宿舍高层的中部位置,我们设置了一些的学习空间。宿舍公共走道被设计成弹性空间。这是居住空间内重要的学习和社交场所。我们可能无法在现有的国内高校宿舍管理模式下,做出类似马赛公寓的社会化空间,但也算是进行了一定有意义的尝试。
在西北的地域环境下,建筑需要有粗犷的结构表现力。建筑的外部形式真实地表现出结构特征。
结构柱网和层高设置,形成宿舍立面单元母题。
公共大厅天窗部位的井格梁结构体系,被有意地增加了梁高,可以同时起到遮阳效果。中庭坡道的结构梁上翻,保证了坡道板底效果,结构梁同时也作为坡道栏板,以此来强化结构的形式意义和力量感。多功能厅的大跨度结构梁的断面同时考虑了屋顶光线的导入和室内灯光的布置。
兰州的阳光是热烈而深刻的。建筑通过顶光的引入,为室内空间提供必要的自然光线。在不同的空间中,我们对自然光线的控制也有所区别:冥想空间的光具有一定的神秘性;多功能厅的自然光是轻松舒适的;走道空间的自然光线是变化的。
▲用光刻画的室内空间

Profile
项目概况
End
2025新产品趋势·考察学习
各地第四代+高品质 | 金沙+冶都+新东升
▼点击下图,了解报名
1.本文为建筑设计技术分析,仅供欣赏学习。
2.本资料为要约邀请,不视为要约,所有政府、政策信息均来源于官方披露信息,具体以实物、政府主管部门批准文件及买卖双方签订的商品房买卖合同约定为准。如有变化恕不另行通知。
3.因编辑需要,文字和图片无必然联系,仅供读者参考;
推荐关注
全球精品楼盘考察
扫描二维码关注
微信公众号:全球精品楼盘考察
合作、宣传、投稿
联系微信:soujianzhu006



