▲ 更多精品,关注“搜建筑”
每一个新产品的推出,多多少少都有“微创新的尖叫点”。
搜建筑最近发现几个堪称“千万级”豪宅的项目做得非常用心。尽管阅楼无数,看到这些豪宅盘还是会非常吃惊。
本期搜建筑就带大家一起看几个300㎡+的豪宅户型,不仅仅是空间尺度的放大,每个细节设计都似乎解决了大空间、大户型的居住痛点。在空间上进行了自我迭代和更新,客户圈层更加纯粹和一致。
第一,整个项目的主力户型,让客户圈层更加纯粹一致;
第二,在户型设计上,公区更加注重居家生活的社交;
第三,凸显每个居住空间的私密性;
第四,多增加保姆房、泳池等独具豪宅属性的空间;
1
我们先来看一个江景豪宅盘。
无水景不豪宅,比如,纽约 One57的东西面是美丽的哈德逊河,汤臣一品的窗外则是浪奔浪流的黄浦江。位于南京的国贸天琴华樟项目,其外立面,同样采用大面玻璃+干挂铝板,拥有最高约0.55的窗墙比,融入独特的曲线造型,呈现出游艇式的超流体美学,豪宅感拉满。
南京国贸天琴华樟 效果图仅供示意,最终呈现以合同约定和实际交付为准
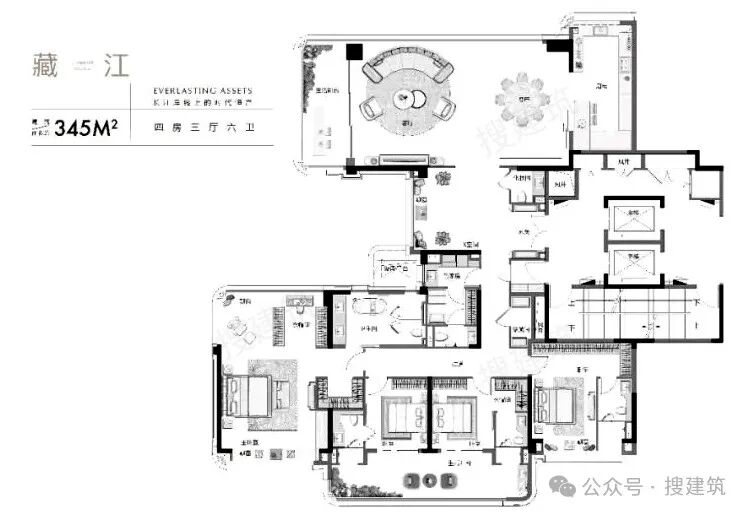
天琴华樟的产品也是拥有超级尺度,建面约300㎡起,纯粹的大平层,主力建面约300、345、385㎡,还有建面约572、628㎡顶层大平层。
建面约300㎡户型,样板间已开放,4房3厅6卫,约24.5米超长南向面宽,南北通透,空间十分奢阔。
天琴华樟建筑面积约300㎡户型示意图
客餐厨一体化设计,南北双阳台,首先大横厅开间长约9米,连接约12.4米的跑道阳台。北侧还设计有约8㎡家政阳台,使用十分便捷。开辟了中西厨区域,公区面积约70㎡,几乎是一套小两房面积了。
南向三套房设计,均配备独立卫浴、步入式衣帽间、观景飘窗。尤其主卧豪华套房设计,衣帽间,独立卫浴,包含独立马桶区、淋浴区、双台盆、浴缸……妥帖细节,让业主居家的每一刻都感到舒适。
天琴华樟样板间实拍图
接下来我们再来看建面约385㎡4房3厅6卫户型,这款户型位于一线观江的楼栋,亮点非常之多:
1、整个户型动静分区非常明显,约3.45m层高,270°环幕观江,北向约17.6m宽景观面,南向约22m面宽,搭配最大约0.55的窗墙比,如此巨幅观景面,非常少见。
2、会客厅旁,仪式玄关+“X”灵动空间,配备约4.8m的独立飘窗,丰富室内的空间格局,完全可以打造成艺术客厅、休憩剧场、咖啡屋…...
天琴华樟建筑面积约385㎡户型示意图
3、超大一体化公区设计,客餐厅建面约73㎡,厨房、餐厅、客厅连通观景阳台,可容纳16-18人在家开聚餐。
4、全南向4套房设计,可以做到双子女+父母+老人全南向套间,两个次卧套间连通南向阳台,可以满足不同家庭成员的生活、休闲需求。
5、主卧豪华套房面积高达约60㎡,270°观江视野,带有南北飘窗、阅读区、男女独立衣帽间+卫生间......
6、保姆房也做了套房设计,与主人动线分离,独立且空间更加整洁有序。
天琴华樟建筑面积约385㎡户型示意图
天琴华樟样板间效果图,仅为示意,具体以合同约定及实际交付为准
还有建面约345㎡的4房3厅6卫户型,全都拥有“IMAX”巨幕视野。约3.45m层高,北向约16.7m景观面,南向约21m超大面宽,客餐厅建面达到约65㎡,配备约9m宽落地观景窗。四居全套房设计,270°环幕视野,搭配独立保姆套房,主佣动线分离,保证使用私密性。
天琴华樟建筑面积约345㎡户型示意图
2
嘉兴鸿翔“最强天字系”产品——天誉府,小高层设计,外立面用材是豪宅标配的铝板+石材,高级感浑然天成。玻璃全系三玻两腔Low-E玻璃,是嘉兴难得一见的全落地玻璃窗。
嘉兴鸿翔天誉府效果图
户型产品我们来看着一款建筑面积约370㎡的户型。4房2厅5卫,一层一户的设计,拥有豪宅专属的双梯双入户。
整体南向面宽竟然达到了吃惊的约29米!
公区LDKG一体化设计,客厅约110㎡,可以开辟出一间茶室,还有市场非常少见的近27mL型加宽转角阳台。
这个户型还做了四套房的设计,尤其主卧面积高达约80㎡,独享270°采光,独立奢华卫浴空间以及衣帽间,而且还带独立书房,其舒适度不言而喻。
鸿翔天誉府建筑面积约370㎡户型示意图
鸿翔天誉府效果示意图
3
宁波雅戈尔·明湖懿秋项目,设计师是GOA,建筑运用了富有张力的大量弧线元素,搭配金属斜切面和落地玻璃窗,外立面采用香槟翠石材,配香槟金铝板和大面积圆弧型玻璃,非常具有辨识度,如同艺术品一般。


雅戈尔·明湖懿秋概念示意图
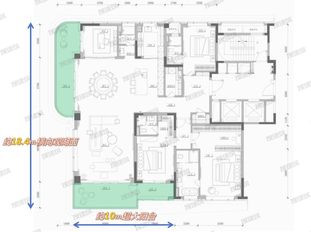
户型产品也是做的非常豪,主力建筑面积约190-300㎡,据说还有建筑面积约618㎡户型,这次我们来看看建面约300㎡大平层,打破了大家对传统豪宅空间的定义与想象。
雅戈尔·明湖懿秋建筑面积约300㎡户型示意图
横向观湖面达到惊人的约18.4米,客厅、餐厅、书房,加上双阳台,全部可以瞰湖,做到了观景视野更大化。中西厨“双厨合璧”,匠心打造专属于的厨房布局。
4
台州天润合府推出建面约312-462m²【SKY ONE】奢域级产品。
天润合府效果图
天润合府SKY ONE 总裁官邸,匠心打层峯专属归家领域,三梯两户,尊崇“家政+主人”双动线入户设计,主人尊享私梯入户,家政另配保姆梯,约11㎡精装电梯前厅,可以随心定制。
天润合府户型示意图
这两款户型,建面约332㎡和建面约312㎡,五室两厅五卫的格局,空间尺度和空间氛围都实现了突破性的提升。
首先整个室内空间竟然有约4.2米超级层高,这是也只有酒店式大堂才能拥有的层高,为居者提供更为强大的居住可能与足够的生活排场。
最大约16.7米超级面宽,全面屏采光,270°IMAX级环幕视野。环幕落地窗,结合弧形玻璃转角工艺,以及大面玻璃材质,极具视觉震撼。
建面约332㎡户型示意图
建面约312㎡户型示意图
餐客厨阳一体的奢绰公区,中西厨切换的开放式餐厨,能同时承载多个主题社交空间,整个室内仅有少量承重柱,方便业主后期进行个性化装修。
三套房设计,尤其总统套房式休憩空间,还配备了卫生间双台盆和南向瞰景浴缸。
此外,独立保姆/家政空间、健身空间、麻将空间、儿童空间、私藏展示空间、品酒空间等,都是业主可以随意定制的主题选项。
天润合府样板间实景图
5
仁恒锦江赋由高层10栋、合院13栋、统筹2栋组成。我们这次重点来看高层楼王产品,外立面采用豪宅级别的玻璃幕墙与铝板。无论是建筑品质、户型设计、尺度空间都比比市面大多产品要好。
仁恒锦江赋效果示意图
约322㎡超级楼王大平层户型,5房2厅4卫(含保姆家政套房)设计。
1、首先私梯入户,整体南向面宽超过17米,目前市场上豪宅大平层户型层高做到3.1或3.3米就很不错了,锦江赋却拥有市面上非常难得的3.6米通透层高,视野与空间感十分奢侈,豪宅感拉满。
2、最大的亮点是“一户一泳池”,私家泳池长约6米,宽约3米,面积高达约15㎡。
3、接下来是大尺度公区,约160㎡的公区LDKB一体化设计,“无柱大空间”,大大增加空间尺度,且充满灵活可变的创造潜力。配中西厨、约10.4米面宽的边厅设计,连接约10.4米面宽×约2.6米进深的270°环幕采光阳台。
4、总统主卧套房面积高达约43㎡,配步入式衣帽区、独立卫浴五件套(双台盆、阳光浴缸、独立淋浴间)将居住私密性平衡得恰到好处。
5、独立保姆房的面宽都能达到约2.9米,光这一点就超过很多普通住宅客卧的尺度了。
仁恒锦江赋建筑面积约322㎡户型示意图
仁恒锦江赋效果示意图
6
接下来我们来看神盘麓湖全新组团麓湖生态城·观澜,零商业配比,是一个100%的纯居住社区。
观澜组团占地64.29亩,比一般组团会稍微大一些,其容积率为5.5,绿地率30%,建筑密度22%。三面临湖,一面临市政公园,社区内约50亩规模的超大中庭景观,享有足够的景观资源。
观澜总平图
麓湖观澜组团效果图
其楼王单元350平的大平层,是麓湖第二个公开发售的350平级别的产品。
建面约350㎡户型示意图
整体面宽达到了约28米,连续采光面则达到了惊人的约43米。
客厅超级大,中西厨、岛台/酒吧/餐厅,约8.3米的会客区;三套房的设计,空间非常大,特别主卧室,卫生间面积就约15平方。
结语
越是大户型产品,打造难度越大。
这不单单考验开发商“洞察需求”的能力,还需要开发商得有强大的“落地执行力”。今后我们更加拭目以待市场能带给我们更好的豪宅产品。
8月 | 成都
考察学习·新产品趋势·各地精品楼盘
▼点击下图,了解报名
1.本文为建筑设计技术分析,仅供欣赏学习。
2.本资料为要约邀请,不视为要约,所有政府、政策信息均来源于官方披露信息,具体以实物、政府主管部门批准文件及买卖双方签订的商品房买卖合同约定为准。如有变化恕不另行通知。
3.因编辑需要,文字和图片无必然联系,仅供读者参考;
推荐一个
专业的地产+建筑平台
每天都有新内容
扫描二维码关注

微信公众号“搜建筑”(ID:sjz9999)
合作、宣传、投稿
联系微信:soujianzhu006


