▲边厅示意图
▲边厅示意图
01
超广角视野,环幕式采光
▲建面约330㎡户型示意图,具体以交付为准
▲样板间意境图,具体以交付为准
▲项目实景图,具体以交付为准
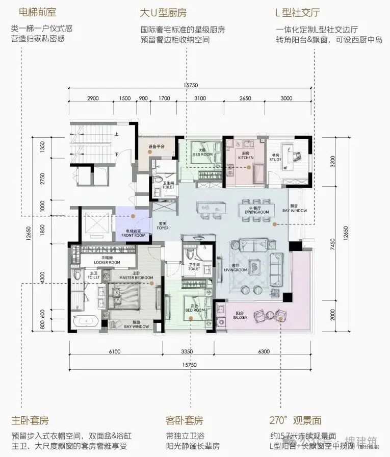
▲建面约192㎡户型示意图,具体以交付为准
▲样板间实景图,具体以交付为准
▲建面约185㎡户型示意图,具体以交付为准
▲样板间实景图,具体以交付为准
▲项目效果图,具体以交付为准
▲建面约185㎡户型示意图,具体以交付为准
02
功能区聚合+动静分区,居家舒适度升级
▲建面约279㎡户型示意图,具体以交付为准
▲样板间效果图,具体以交付为准
▲建面约188㎡户型示意图,具体以交付为准
▲样板间实景图,具体以交付为准
▲建面约205㎡户型示意图,具体以交付为准
▲样板间示意图,具体以交付为准

▲样板间示意图,具体以交付为准
9月05-06 天津 | 新产品
“全首层架空”新模式
洋房/叠墅/院墅/小高层
▼点击下图,了解报名
1.本文为建筑设计技术分析,仅供欣赏学习。
2.本资料为要约邀请,不视为要约,所有政府、政策信息均来源于官方披露信息,具体以实物、政府主管部门批准文件及买卖双方签订的商品房买卖合同约定为准。如有变化恕不另行通知。
3.因编辑需要,文字和图片无必然联系,仅供读者参考;
推荐一个
专业的地产+建筑平台
每天都有新内容
扫描二维码关注

微信公众号“搜建筑”(ID:sjz9999)
合作、宣传、投稿
联系微信:soujianzhu006


