大数跨境
0
0

值得全国推广!! 学习·天津 | “全首层架空”新模式,整个社区抬高N米……洋房/叠墅/院墅/小高层【考察+分享会】

值得全国推广!! 学习·天津 |  “全首层架空”新模式,整个社区抬高N米……洋房/叠墅/院墅/小高层【考察+分享会】 搜建筑
2025-08-29
0
导读:住宅多样性空间增值利用
更多精品,关注全球精品楼盘考察


整个社区抬高,全首层架空新模式

——天津又走到了全国前列


24年天津颁布的《住宅多样性空间增值利用规划管理指导意见》,明确住宅用地首层全架空车库不计入容积率,鼓励住宅采用架空平台停车等多样化停车形式还鼓励住宅首层多样化利用,可设置健身房、儿童活动室等供业主活动的空间,也可设置便利店等商业,这促使开发商积极设计建设架空车库住宅,推动了创新住宅在天津的发展。


通过 “空间复合化、功能多元化、开发集约化” 的设计逻辑,其优势不仅体现在短期的开发收益与居住体验提升,更长期助力社区活力激活与城市精细化治理,成为住宅设计革新的重要方向。

全首层架空模式

本质是通过 “空间重构” 实现 “多方共赢


今年,天津的创新楼盘,已经呈现实景,新产品的迭代,更加成熟和完善,不仅成为各地房企学习的榜样,也是全国业主向往、实用的好产品……已是未来住宅发展的必然趋势。

《住宅多样性空间增值利用》
创新高品质楼盘·专题考察+房企分享会
【中国 · 天津】

9月,搜建筑特邀天津创新住宅楼盘和产品专家,通过考察精品案例、交流分享会,探讨当前市场,如何通过创新,赋能产品力升级,助力企业发展。
▲ 金茂·泮湖满庭
▲ 中建悦庐·棠墅
▲ 绿城·锦玉兰
▲ 绿城·桂月雲翠
▲ 金地·喜悦里
▲ 中建·理想城
▲ 金茂·锦棠
▲ 建投奥体誉院



温馨提示:天津创新楼盘活动,本次安排7-8个参观,部分项目根据现场情况可能会有调整。感兴趣的朋友请及时报名。


 分享会亮点:
一、全首层架空社区:创新趋势实操方法
二、住宅多样性空间增值利用:政策与设计要点
三、全首层架空社区:垂直园林景观营造策略
四、高品质住宅:成本把控、精细化落地经验

报名+咨询 

1、扫描二维码 加好友咨询

微信号:soujianzhu03


微信号:soujianzhu008


2、联系:181 3265 7351(微/电 同号)


绿城·锦玉兰

建筑设计:天津天华


绿城·锦玉兰于天津城北的北辰区,用地约2.45万㎡,原始容积率2.0,设计在平衡判断社区品质和产品价值,主动将容积率降至1.71排布,由小高社区变纯洋房社区。


  插图 插图

△ 开山造园——多层次的复合社区

结合规划布局和架空平台进行打造,全架空体系,场地抬升5.5m,平台板按规范比例开洞,效法传统开山理水的造园手法,将仪式礼序融入园林景观,集中设置在地块中央,结合景观设计,形成一条中央绿谷,高架空平台与多层级下沉庭院形成立体街巷,全域绿化,进人尺度体验丰富。

在超级底盘下,结合功能及实际使用需求,塑造了不同的城市界面。


架空平台边界就不是5米多高的森严“硬边界”,而是更有烟火气的“软边界”。


△社区沿新峰路规划示意


项目东侧为城市Image Mark界面,在这条150m长的烟火生活街上,打造了将近66m宽的极致庄重礼序的社区大门,寓意“金玉满堂”的门廊。



构成语言选取玉兰为母题,通过元素的提取、重构,将凝练的建筑语言融入主入口形象设计中,从柱式、雕塑、屏风纹样三个维度加以表达;结合铝板型材、金属线条、通透玻璃等现代材料,体现精致的细节,彰显尊贵气质。



一个半开放的庭院空间作为迎宾庭院,空间与景观及装饰呼应玉兰主题元素两侧兼顾一些对外的配套功能,同时作为进入社区大堂的缓冲空间。



从社区大堂北侧,经由电梯通向架空平台上方的四季穿过园林,从首层大堂轻松归家。

△ 社区大堂室内实景

△ 四季花厅实景


架空平台下,结合下沉庭院、打造奢隐的私家社区生活组团,融合山川河岳的东方园林与私家会所空间,形成生态自然的社区活动空间。

业主会所与下沉庭院内外渗透


绿城錦玉蘭的建筑立面采取更前卫的现代摩登风,在住宅的立面设计上,采用竖向构图,刻画出生机向上的印象,以公建化的细节处理,让线条与收头更加利落,整体形象更加挺拔。全系户型标配南向跑道式开敞阳台,远远望去,立面更显层次分明。

产品风格整体采取了更具有现代感的表现形式,注重表现虚实对比关系,材质的肌理关系,以公建化模式、色彩交织的线条强调立面形象与标志感,由银灰色、香槟金颜色构成,呈现时尚美学的风情与活力氛围。

约5.1米挑高的北侧单元门头,用白玫瑰石材和香槟金铝板,配以现代柱式和线脚的点缀,在近人尺度上增加了建筑的丰富性。



在细节的把控上,竖向构件采用了梭形的截面形式,结合端头的型材与侧向铝板,让建筑形体更加挺拔,阳台部分则采用宽窄两种细部截面处理,搭配灰色玻璃栏板,两层一组,去弱化阳台的体量感。飘窗部分也是两层一组,宽窄相间的截面处理,弱化飘窗在纵向上形成的体量感。


  插图 插图 插图





绿城·桂月雲翠

建筑设计:天津天华


桂月云翠位于中国天津市空港经济新区,在地产行业经历深水改革,第四代住宅新政趋势来袭,任何房企都不能偏安一隅。项目饱含对理想住宅的思考,诠释隐逸美好、人与自然更加和谐的新院制人居。

雲上之城——首层架空超级底盘社区

桂月雲翠以独特的超级底盘设计理念,整个居住社区大盘整体抬高5.6米,以“开放、安全、全龄、健康、体验、仪式”为理念,构筑漫步街区、架空平台、全龄社交、追光车库、森活云环、双重归家等超级底盘;复合多维的空间构架,视线交错。


规划设计通过配套空间的局部退让与前伸,使得城市界面和园区界面相互渗透,其中边界相交的转角区域是需要重点营造的一个场景,打破城市与园区的边界感,营造更为生动丰富的生活场景, 建筑亲密地融入街道,为居住者提供私密性与公共性自由切换的空间场所。

设计上利用贯穿围合的下沉庭院,多级立体的生态花园,使单一的空间被赋予丰富的层次,呈现生态花园般的视觉效果,结合社区入口,打造1.6万㎡ 全维实景示范区。


社区大门汲取盛唐皇家宫苑飞檐设计,约66米尺度超级门厅,气场震撼。穿越“门—廊—厅”的星级酒店式门头空间体系,恢弘大门庭、环岛式酒店落客区、朗阔挑高大堂,在动与静的交融间,于喧嚣都市私藏一处闲适的谧境。

二进院平湖意境,跨水归家。翡翠生活馆在造型上就已冲破了“天花板”,打造天津首座钻石立面业主会所。灵感源自世界豪宅,纽约Lantern House钻石立面,以多面切割工艺技法,为建筑凸窗倒入钻石切割面的光照与反射效果,犹如一颗璀璨的宝石。

▲绿城·桂月雲翠实景


桂月雲翠规划为全洋房产品,汲取独特的津韵基因,将“墅质”的通透、轩敞和层次深植其中,风格上以中式翡翠作为设计灵感,将宽屏视野和立体空中花园的天幕美学融入设计翡翠般的清透观感融入建筑设计,同时引入东方建筑特有的挑檐元素,结合雲翼的轻盈线条,搭配澄澈的大面积LOW-E玻璃,打造超奢窗墙比。



形式追随功能,立面结合错层阳台平衡美学与功能,打造空港首个错层空中艺术花园,创新奇偶层错列式排布,打造津韵翡翠的高颜值与好品相。立体式花园建筑,层层花园,户户园林;L型转角空中花园,广角瞰景的无界视野;


偶数层客厅空中花园进深普遍在约1.5米以上,奇数层卧室空中花园进深达到约2米。顶层户型挑空设计,高厅平墅,挑空高厅平墅,顶层户型高度达约5.8米,南向挑空区域采用超大玻璃窗,客厅在拉大开间、进深的同时,也拉大纵深。

错层阳台尺度及生活场景


叠院平墅类楼栋在户型产品设计上进阶升级,有下沉庭院围合,地下的光厅.

建筑整体有天有地,跃层规制,动静分明,礼序井然,从容有度,打造更为立体、多维的生活空间,实现不止于第四代住宅的设计创新,亦不止于空中露台,而是对户型空间内外均有品质迭代。

户型赏析


[ 图片滑动 ]




金茂·锦棠

景观设计:山水比德


上东金茂锦棠位于方山道与天山南路交口西南侧,如同卓越的城市规划需要非凡的“底盘”,上东金茂锦棠以一场空间革命,打造了独特的“悬浮生活底盘”。项目占地约4.17万㎡,规划28栋5-11层纯洋房,共692户。


精装纯洋房社区,全架空设计


▲上东金茂锦棠实景示范区

项目以全架空社区规划打造“地下车库 架空层 - 地面生活 - 楼上生活”四重悬浮式共享生态。


社区以全架空设计为核心,将活动空间抬升至空中,释放地面空间用于园林营造,营造“一轴一环一街一带六园七院”的沉浸式森感园林,形成独特的“悬浮式生活底盘”,为业主带来全新的生活体验。


▲方案阶段 示意图


通过“壹里繁华”商业街区和口袋公园的结合,成功打破了传统社区围墙的束缚,从线性切割到立体渗透完成了社区内外空间的重构。

▲「风物棠间长廊」功能规划示意

▲项目实景图

可以说,很多项目所青睐的传统“一字型”底商,彻底被锦棠摒弃,经过多轮设计,项目确定了“宽檐灰空间+退台设计”的模式。


▲下沉庭院实景
▲实景示范区


金茂·锦棠社区采取架空平台停车设计,除最南侧5栋楼外,其余洋房均坐落在架空平台之上。
这样的「悬浮基座」重构社区骨架,实现一场「从二维到三维」的生活方式迭代。
架空平台将社区活动空间从地面抬升至空中,形成「四重生活架构」:
  • 楼上生活:家庭平权空间、满载收纳
  • 地面生活:洋房情结、艺术园林、全龄场景
  • 架空层:阳光车库、功能聚合、车马厅
  • 地下车库:人防车库、地下大堂
▲架空平台停车设计示意

社区围墙被架空平台边界取代,实现社区与城市的无界融合。

也因此,北侧打造出了宽檐商街,以口袋公园、棠果盒子商业、奢阔门庭组合成超级界面。

人、车行入口天然分离,车辆在架空平台下穿行、停泊,人在平台顶漫步,这是最佳的人车分流。

车行入口融入架空平台边界,形成一体化门头,这样开车归家也能享受到和步行归家一样的仪式感。

▲架空车库效果图示意


上东金茂锦棠的艺术会所远远超出了这个总价段的预期。项目还设置咖啡吧、茶室、健身区、瑜伽区、台球室、乒乓球室、棋牌室等,重构社交方式。

▲上东金茂锦棠实景示范区实拍

金茂锦棠的建筑立面,从项目LOGO中提取出生长线条,用于构建「向上生长」的建筑表情。以铝板在建筑外檐上勾勒出装饰框,远望下仿佛层叠的「流线画框」。
南向的装饰框在楼顶与塔冠融合,最终汇聚成「海棠之芯」,如一棵向上生长的参天大树。



开敞式阳台的玻璃栏板,犹如一个个嵌入建筑本体的悬浮「玻璃盒子」。
夜幕降临时,暖色灯光从错落的阳台透出,万家灯火成为归途最温暖的灯塔。


户型赏析



[ 图片滑动 ]


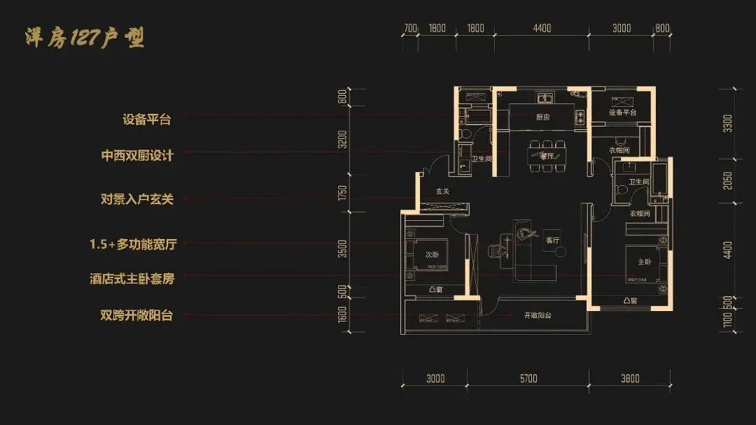
金茂·泮湖满庭


金茂·泮湖满庭项目在“横轴”之上布置了4栋18层到顶小高层和6栋7-11层到顶洋房,“纵轴”则规划了6栋7-8层到顶洋房。有架空平台,部分楼座有小院,打造金茂在津的第一个“满”系产品纯改善项目。


项目以颠覆性的艺术基因打破传统豪宅边界,吸引追求精神丰盈与生活仪式感的城市创富者

金茂泮湖满庭,社区主入口宽66米、高9米,铺陈亚马逊绿、普拉达绿等瑰丽奢石;以细腻纹理与艺术质感拉开归家序幕。

项目打破传统平面布局匠心构筑最高约8米台地立体园林。精心打造约600m下沉层叠水庭,引用斯卡帕艺术技法,整石铺就亚马逊绿奢石。

整体园林巧妙融入莫奈、毕加索、梵高等大师艺术精髓,以“双轴十园”的创意,打造流动的立体艺术空间。移步易景,十大画境花园如立体画廊般展开,每一次漫步皆是与自然、艺术的深度对话。

项目建面约143㎡洋房,端户主卧设270°无柱转角飘窗,6米长窗台框景湖景;内嵌阳台可作X空间,晾衣、养花、放跑步机皆可;收纳系统引入日本建筑师深泽直人的直觉式设计,柜体位置、高度完全贴合日常动线,不用刻意收拾也能保持整洁。

143㎡样板间实景图

户型赏析


[ 图片滑动 ]


中建悦庐·棠墅


中建悦庐·棠墅以"立体墅区"理念重塑天津高端人居,通过台地与双首层设计,在约1.2容积率地块打造城市改善标杆。



中建悦庐·棠墅以海教园为基,融合中国古代四大书院精髓,打造区域首个书院派园林,规划"方寸""三千""青绿"三大主题空间。通过五重礼序景观串联儿童活动区、青年社交场及老年康养空间,诠释"礼序自然共生"理念。



社区整体抬升5-6米,不仅带来地上车库、立体园林、强大社区配套等公共空间升级,更彻底颠覆了首层住宅的居住逻辑。


架空车库实景示范


一进迎门启序,宽约32米、高约7.5米的礼序门庭,以海棠纹印鎏金铺陈,打造滤境式人文画境;


二进溪林回廊以国槐执翠、回廊环抱,曲径通幽处演绎书院传承;



三进香池墨池以曲水流觞营造"身与云轻"的禅意空间,层次丰富的景观植被,赋予空间灵动的视觉韵律;



四进惠风畅亭实现垂直观景,融对弈、品茶于"展卷见山"的沉浸场景。四重空间起承转合,以当代手法重译"山水贵意"的永恒命题。


中建悦庐·棠墅景观实景图

中建悦庐·棠墅以颠覆传统的产品规制,地上全明四层叠墅,将对尺度的造诣,融入每一个空间,以阔尺空间为居者定制卓越体验。约10米的南向面宽,配合巨幕轩敞会客厅,约6.2米奢侈挑高的纵向尺度,让居者拥有更多由定制的权利。


建筑面积约143㎡下叠样板间

洋房首层均为底跃,墅质洋房,南侧全明下沉庭院。


中建悦庐·棠墅效果示意图
户型赏析


[ 图片滑动 ]







中建·理想城

建筑设计:天津筑土


中建·理想城选址天津市津南区与河西区交界处,占位天津外环内优质地段, 与地铁1号线双林站零距离接驳,交通便利、周边学府环绕,商圈林立,医疗资源优渥,拥有得天独厚的地理位置。项目总占地面积12.4万平方米,总建筑面积35.5万平方米。


项目设计启动时,正值天津市颁布《住宅多样性空间增值利用规划管理指导意见》,新政明确住宅用地首层全架空车库不计入容积率

结合天津的实际情况,引入新加坡的“空中花园城市”理念,项目通过架空平台设计,将社区地坪整体抬高约5.4米作为架空层,在此垂直复合空间体系中,立体连廊系统串联起居住组团、邻里中心和全龄活动空间,形成全天候风雨无阻的慢行网络,成为天津市首个架空层住宅项目。


平台之上是惬意不受干扰的生活,北高南低的建筑布局形成黄金采光视廊,无车活力岛串联起沉浸式景观系统;平台之下是近在咫尺的服务:在架空层内,除停车功能外,还在中庭及景观轴线周边设置公共设施包含泳池、健身房等运动空间,以及洗衣房、自助超市等服务空间,为居民提供更优质、更便捷的社区环境。在架空层沿街空间设置了商业、居委会、党群活动室、托老所、社区卫生服务站等生活配套服务功能,完善了区域生活圈的配套。

社区内架空平台效果图


社区食堂解决全龄层用餐需求,将日常餐饮升华为社交场景;共享厨房与菜市场无缝衔接,重构"下楼即达"的15分钟生活圈;沿街商业带引入高端业态,与便民配套形成层级互补,消解传统住区的生活服务断层,也避免了传统住区围墙对城市界面产生的割裂感。中建·理想城通过架空层革命将传统社区功能升级为覆盖全龄需求的立体生活网络,为业主打造了一个 “步行半径内生活自足” 的居住范式。

建筑面积约127平米户型:方正通透格局,搭配12.5米南向面宽,LDK一体化设计串联客厅、餐厅与厨房,动静分区清晰,空间零浪费。5.7米客厅连接进深1.6米、宽度8.7米的观景阳台,阳光与园林景致自由流转,室内外场景无缝共生。
阳台人视效果图

建筑面积约130平米户型:三开间朝南布局,5.7米餐客厅与U型厨房形成高效生活动线。主卧270°转角飘窗突破视野边界,双南向卧室兼顾代际独立与互动,外跨阳台一体化设计将自然引入生活日常,实现居住功能与情感体验的双重升级。
阳台人视效果图

建筑面积约143平米户型:扁平化设计塑造13.8米南向总面宽,7米巨幕式客厅打造家庭核心社交场域。独立入户电梯厅延伸私密空间,16平米全景阳台串联客厅与次卧,以“全面屏采光”重构居住尺度,让每一寸空间承载生活的自由与诗意。
户型赏析


[ 图片滑动 ]

建投·奥体誉院


山西建投以国企的品质实力,致敬奥体核心,带来院系高端序列作品,以誉致敬奥体板块大成,以院回应高知、高净值、高审美人群对理想生活的向往,取名【奥体誉院】


建投奥体誉院为BC两个地块,B地块全部规划小高层,C地块为纯洋房社区,非常纯粹。


建投奥体誉院|湖院(B地块地上计容建面约99012㎡,容积率约2.3,规划13-18层到顶的15栋楼,共990户。


项目景观采用架空设计,抬高约5.3米,部分楼座还设有下沉庭院。


建投奥体誉院|湖院效果示意图

建投奥体誉院|境院C地块)地上计容建面约35980万㎡,容积率仅约1.6,规划5-10层到顶的16栋楼,共284户。

涵盖建面约120㎡、约130㎡、约150㎡三种户型,部分首层带下沉庭院,顶层带阁楼。为纯洋房全架空产品,整体抬高约5.5米。

建投奥体誉院|境院效果示意图

项目架空层内规划车位、社区活动空间等,同时,公区的配建设施及管道线路也置于架空层,将更大空间给到园林景观。


架空层业主会所内,设置了健身区、书吧、水吧、私宴厅、影音室、瑜伽区、儿童游乐区、小型高尔夫练习场、台球活动室、泳池等活动空间。

▲建投奥体誉院业主会所效果示意图

13-18层到顶臻品小高,建面约89㎡-97㎡-108㎡-114㎡-120㎡产品

小高户型赏析


[ 图片滑动 ]


5-10层到顶典藏洋房,1梯2户,建面约120㎡-130㎡-150㎡产品;部分洋房首层享南北双院落,顶层带阁楼,阁楼空间明亮通透;容积率约1.6;洋房基础出房率约81%-84%。

洋房户型赏析


[ 图片滑动 ]



金地·喜悦里


金地·喜悦里,规划总占地面积约3.6万平米,容积率2.0。一期容积率仅1.87。产品以6-10层到顶洋房为主,兼有17层到顶小高。


项目不仅是板块首个架空层设计,在空间规划上也几乎将所有产品红利都灌注其中。洋房一楼带小院,顶楼带阁楼,附加值非常高。


▲洋房非标效果图

▲小高非标效果图


12米高UHPC花瓣造型,以工业级三维建模与纯手工锻造模具精雕曲面,国内首例无缝巨尺度艺术大门,诠释流动的生态韵律。


入口以层叠双曲面打造金色叶片,截面变幻如生命勃发,镜面不锈钢与光影共舞,将自然万象凝练为当代奢雅符号。

门庭中间采用彩釉玻璃与蚀刻金属板交织,定制花瓣肌理与生长纹路暗藏其中,让归家之路成为一场视觉盛宴。


渐变穿孔铝板悬垂如星河露珠,贝金米黄弧形石材围合花苞中心,波浪光影与3.2米定制柱灯辉映,勾勒出柔光浸润的归家礼序。


 
8米通高古铜金属内衬玻璃门,水纹柔化金属质感,四水归堂檐口以现代手法重构东方聚宝盆寓意,雨帘垂落间,财韵与艺术共生。



项目利用总抬高约5.7米、净高约4.1米架空层,将“立体感”“垂直感”赋予景观设计中。鎏亭、叠瀑、流瀑水院……自然融合,让人美不胜收。



4.0全架空设计:约5.7米挑高架空层,打造“悬浮式”归家礼序,风雨连廊串联四季花园;



森居秘境体系:整体以双公园、一水院、一花院为景观布局,用无限场景力打造一座都市里的流动山谷


五大主题场景都荟公园-尊享入口-艺术之岛-森岛派对-大眼金的松果乐园,约6500㎡度假级景观公园,实现先入园再归家的生活体验。



创新洋房理念:打造建筑面积约117-135㎡墅镜洋房:在户型上融入三重立体玄关、超大宽幕巨厅;转角飘窗、酒店行政级主卧套等创新理念;为峯层人士打造高阶府院洋房。


左右滑动查看更多洋房户型图


建筑面积约82-110㎡峯幕小高:在户型上融入S弯冰箱位设计、外置烟道;无痕家政空间等设计、智能衣储系统等巧思设计;为每一位居者实现尺度上和功能上双重进阶。


左右滑动查看更多小高户型图


【活动报名】

活动组织:
主办方:搜建筑 & 经典人居

报名+咨询 联系如下
1、扫描二维码 加好友咨询

咨询微信:soujianzhu03


咨询微信:soujianzhu008


2、联系电话:181 3265 7351(微/电 同号)


2025年·新产品方向

《 品牌地产 | 精品楼盘活动 》

杭州、苏州、上海

成都、郑州......

广州、福州、重庆

西安、青岛......

扫描二维码 加好友咨询

领队微信:soujianzhu03

本资料声明:

1.本文为建筑设计技术分析,仅供欣赏学习。
2.本资料为要约邀请,不视为要约,所有政府、政策信息均来源于官方披露信息,具体以实物、政府主管部门批准文件及买卖双方签订的商品房买卖合同约定为准。如有变化恕不另行通知。

3.因编辑需要,文字和图片无必然联系,仅供读者参考;


推荐关注

全球精品楼盘考察

扫描二维码关注

微信公众号:全球精品楼盘考察

合作、宣传、投稿

联系微信:soujianzhu006

搜建筑·矩阵平台

【声明】内容源于网络
0
0
搜建筑
关注全球时尚的、新的建筑资讯。
内容 10717
粉丝 0
搜建筑 关注全球时尚的、新的建筑资讯。
总阅读1.9k
粉丝0
内容10.7k