第四代住宅政策与标准分析
作者简介:禹慧,上海同济大学博士、高级工程师。现任上海都市建筑设计有限公司副总经理、技术总负责人、兼设计一分院院长。
都市成就梦想|设计创造未来
引言
目前,对于第四代住宅国家层面并没有统一的全国性标准,仅有一本建议性的行业标准(《城市森林花园住宅设计标准》(T/CECS 855-2021))。因此四代宅设计目前基本遵循的是当地政府的一些政策和要求。各地政府对第四代住宅的认知不同,政策上的差异比较大。从而导致在不同地区政策下的“四代住宅”往往呈现出截然不同的产品形态,有些地区的产品虽好,但并不能简单的套用到其他城市的项目中。
作为四代宅设计系列的开篇,我们选取南北方共12个代表性城市,对深刻影响四代宅设计的地方政策和标准进行研究。
南方城市:成都、武汉、苏州、福州、重庆、南京
北方城市:兰州、西安、济南、乌鲁木齐、石家庄、青岛
我们先从四代宅设计的六大核心关注点:露台尺寸面积要求、绿化要求、计容及建筑面积要求、露台个数要求、户属花园及共享平台设置要求、通透要求;来分析各地政策的特点和异同,然后再总结出各地四代宅政策的一些特殊要点
一城一策,注定不同地区四代宅的产品不同、成本不同、结果不同。研究当地政策是四代宅设计的第一要务
01
各地
政策要求
1
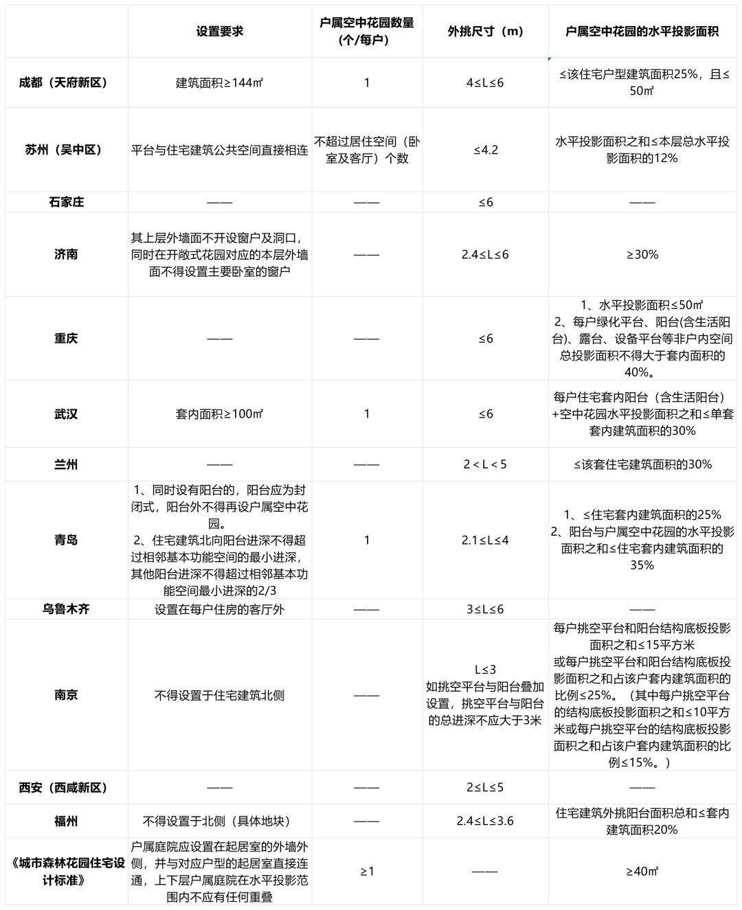
户内绿化平台
各地均对户属空中花园的面积、层高、进深、结构降板及覆土深度作出要求,通用要求为不小于2个住宅自然层且上下层露台投影不能有重合。其余各项指标根据地域不同,各有调整。
本文将主要从以下六个角度分析:1、户属空中花园设置要求;2、户属空中花园个数要求;3、户属空中花园外挑尺寸及面积要求;4、户属空中花园绿化要求;5、户属空中花园计容要求;6、户属空中花园通透要求。
1、户属空中花园设置要求:对于户属空中花园的设置,部分地区规定了前提条件。比如成都(天府新区)规定户型建筑面积需大于144㎡才可设置;南京、福州地区则明确户属空中花园不得设置于建筑北侧;还有地方对户属空中花园位置做出要求,比如乌鲁木齐、规定了户属空中花园须设在客厅外。
2、户属空中花园个数:户属空中花园数量大部分地区未做限制;仅成都(天府新区)、武汉(套内面积需>100㎡)、青岛在政策内写明每户只能设置1个户内露台。
3、户属空中花园外挑尺寸及面积要求:关于户属空中花园尺寸,各地出台了不同的要求,总结而言各地希望控制露台出挑长度,大多控制在6m以内,也有更严格的要求,如南京挑空平台最多只能出挑3m。
对于户属空中花园面积,《城市森林花园住宅设计标准》建议不小于40㎡;重庆市做了明确的面积规定,不大于50㎡;其他城市则是对其占套内面积比例做了规定。还有少数地区是没有面积限制的。
表一 各区户属空中花园设计要求
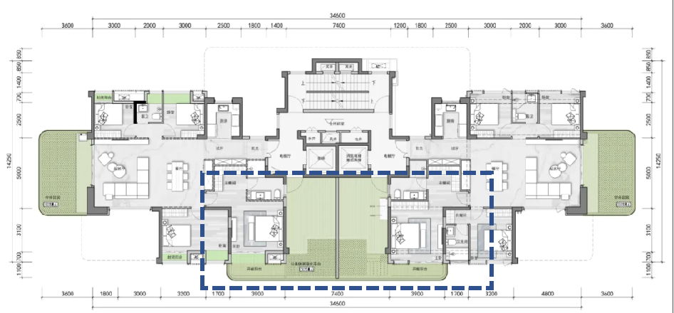
保利·天珺 户属露台
4、户属空中花园绿化要求:对于户属空中花园绿化,大部分地区明确绿化面积至少占户属空中花园面积的一半以上;覆土深度要求至少达到0.5m深;仅南京较为特殊,明确户属空中花园不进行绿化设计。还有些地区是无绿化比例要求的,比如兰州、青岛、重庆、西安。
5、户属空中花园计容要求:绝大多数地区户属空中花园在满足政策要求的情况下不计入容积率。但部分地区如青岛对于户数空中花园进深在2.1m以内的部分,按其水平投影面积的1/2计入容积率,在2.1-4m的部分不计入容积率;又如济南,户数空中花园水平投影面积之和不超过住宅套内建筑面积40%的,按其水平投影面积一半计算容积率。
6、户属空中花园通透要求:在通透率方面绝大多数地区要求是有两个连续外边开敞并至少有一条长边,开敞率一般要求为40%~50%;少数地区如苏州政策稍显宽松,对户属花园没有明确的通透率要求。搜建筑
表二 各区户属露台绿化设计要求
国贸·天琴樾 户属露台
2
户外共享平台
绝大多多数地区鼓励设置适当面积的户外共享平台,仅成都(天府新区)明确规定住宅不得设置户外共享平台。大部分地区对于层高作出了要求——不少于2个自然层,而重庆放宽至1个自然层,但对平台的进深、覆土深度、面积做了具体要求。
对于共享平台的绿化面积占比,大部分地区未做要求,苏州、济南将绿化占比控制至少占共享平台水平投影面积的60%,而福州将绿化占比控制在至少占共享平台水平投影面积的30%。搜建筑
共享平台的通透性要求一般要低于户属空中花园,大多数地方的要求是通风采光面的总长度不应小于空中共享平台周长的1/3即可。
除此之外部分地区对于共享平台的面积控制提出了要求,如济南市规定应控制在两层住宅面积之和的35%~45%,行业标准规定此项比例为不小于35%。(各地政策详见表三)
表三 户外共享平台设计要求
3
政策小结
我们在南北方各自选取了6个省会城市的四代宅政策进行对比分析,发现了很多有趣的现象:
1)四代宅政策是否宽松,与所在城市的区域并无直接关系;以往我们一直认为北方城市可能管理更加严格,而事实并非如此。
2)很多地方的四代宅政策是连同阳台政策一起颁布的,这个对于四代宅露台如何做,要不要做影响比较大。比如有的地区规定的是阳台+露台一共的面积比例,这时做露台还是阳台要抉择。搜建筑
3)户外共享平台很多地方的政策比较宽松,这时往往可以利用起来与户内花园相结合,做出更加令人震撼的产品。共享平台最重要的政策点:一是是否允许每层都设,二是有没有面积比例的要求。
比如福州国贸天琴湖项目,露台的很大一部分其实就是共享平台,不但面积大,每层都有,而且还和阳台做了联通,这就证明福州对于共享平台政策是比较友好的。
福州国贸天琴湖
以下我们针对南北方这12个城市的四代宅政策的特殊点,分别进行总结:
南方城市:
成都:城区无政策,实行试点的是天府新区。住宅不允许做户外共享平台、空中花园不计入板户比(阳台+露台面积占比可以超过40%)、露台有长宽比要求。
武汉:城区无政策,空中花园试点范围为新区。阳台政策宽松,面积比例是针对阳台+露台;没有共享平台的政策。有灌溉系统要求。搜建筑
南京:尺寸要求小(不大于3m),不能设在北边、无绿化要求、无共享平台政策。面积比例要求严格,加上阳台不超过25%。
苏州(吴中区):有套内建筑面积要求(大于120平),公共平台要求低(一条边开敞,无面积要求),户属花园不超过本层面积12%。
重庆:政策短期内经历了三次修正,有覆土要求,但无绿化比例要求、共享平台可为一层高;露台不超过50平,露台+阳台+飘窗等不超过建筑面积的40%,有灌溉系统要求。
福州:露台无面积限制、共享平台要求低,空中花园2.4m内计一半、超过2.4m不计容不计面积,允许露台套阳台。部分地块要求共享平台和花园不能设在北边。
北方城市:
兰州:无绿化要求,共享平台要求高、相邻建筑间每两层设一个,不计容但计一半面积;户属花园面积不超过建筑面积的30%。共享平台不得与户属空中花园相邻设置,不得与户内空间开门联通
青岛:无绿化比例、覆土等要求、有高度要求、无共享平台政策、超出2.1m不计容、不允许露台套阳台。不超过住宅套内建筑面积的25%。搜建筑
乌鲁木齐:露台无面积比例要求、户属庭院要设置在客厅外、覆土深度要求高(0.8m)。
济南:共享平台面积要求很高、户属花园有最小面积要求(30%~40%)、最多一半不计容。
石家庄:有容积率和高度要求、无面积比例要求,空中花园不得邻主卧、上层不得开窗。
西安(西咸新区):西安市区无政策,仅西咸新区有政策,仅对空中花园的尺寸及至少两条边不封闭有要求,其他关于比例、覆土、共享平台、绿化均无要求。
02
各类政策总结
关于四代宅到底是什么样子,从官方到民间存在一定的认知差异。
政府:打造立体生态景观以提升人居品质、改善生态环境、提升城市形象,实现生态、绿色、可持续发展。
房企:规避品质内卷、提升附赠面积、营造产品差异化、提升项目量价表现。
客户:追求更高的产品附加值,获得更加丰富的生活场景、居住品质、同时追求附赠面积和更高性价比。
四代宅最初的理念来自于清华大学研发的第四代住房专利,现行行业标准《城市森林花园住宅设计标准》(T/CECS 855-2021)基本基于这个研究专利编制。而实际上现在市场流行的一些做法和该标准存在较大的偏差。标准中的空中共享公共平台和空中停车的概念在实际项目中应用很少。
行业标准中的四代宅:每户的户属庭院的面积不应小于40㎡,空中公共平台投影面积与其连通的两层全部套型的总套内建筑面积之比不应低于35%;空中停车花园住宅中空中公共平台投影面积与其连通的两层全部户型的总套内建筑面积之比不应低于60%。在对于第四代住宅的称呼上,从官方到民间也有所不同。搜建筑
现有地方政策总结:
1、政府态度:政策对于露台的各种设置要求,尺寸、位置、面积占比要求等等与地域无关,与当地的技术条件、气候环境、居民生活习惯等都无关,主要由当地政府对四代宅的态度以及土地市场所决定。
2、让利、管控思维:大多数地方政策都体现的一是让利思维,二是管控思维;还没有上升到技术品质思维,这样的话有可能带来政策的不稳定性。搜建筑
3、赠送价值:市场火爆的地方似乎与现行四代宅政策也没有关系,而更取决于当地过去的面积管控措施是否严格。现在市场的火爆更多的是因为面积赠送的红利。
华润 ·孝子祠澐璟
03
各地
政策未来展望
1、因地制宜:要结合当地的气候、环境、生活习惯。同时,关注采光、隐私、舒适度、安全方面的要求,制定更加科学合理的四代宅技术标准。
2、技术管控:除了设花园的面积和占比上限,同时也应该设定下限值,避免出现伪四代宅;在满足政策的情况下,进一步释放政策鼓励。搜建筑
3、多方位联动:空中共享平台是被市场忽视的环节,政策与最初定义差距大。因为符合打造邻里交往空间的方向,所以政策上比较宽松。实际执行情况下多数划为私有庭院,管理上容易失控。建议根据实际市场使用情况,制定可以落地的共享平台政策。
4、政策鼓励:除了和露台相关的政策制度外,将立体生态社区的政策进一步完善,增加对于首层架空、屋顶绿化、内部局部挑空等制度的完善鼓励政策。
MAD建筑事务所 松苑项目
END
9月05-06 天津 | 新产品
“全首层架空”新模式
洋房/叠墅/院墅/小高层
▼点击下图,了解报名
1.本文为建筑设计技术分析,仅供欣赏学习。
2.本资料为要约邀请,不视为要约,所有政府、政策信息均来源于官方披露信息,具体以实物、政府主管部门批准文件及买卖双方签订的商品房买卖合同约定为准。如有变化恕不另行通知。
3.因编辑需要,文字和图片无必然联系,仅供读者参考;
推荐一个
专业的地产+建筑平台
每天都有新内容
扫描二维码关注

微信公众号“搜建筑”(ID:sjz9999)
合作、宣传、投稿
联系微信:soujianzhu006



