▲更多精品,关注“搜建筑”
深圳市美术学校
源计划建筑师事务所

空间叠加:密度的消解罗湖作为深圳线性城市发展的东部节点,在早期的城市规划建设中未能优先考虑城市与自然环境的关系。相反,它简单粗暴地实施了现代功能和交通规划。建筑和城市生活空间根据功能和效率的要求安排在土地上,自然只是作为人造城市的背景。在这个过程中,人(不论年龄、身份、性别、背景等个体差异)及其活动仅仅是效率规划的功能对象。
Spatial Superposition as Resolution for the DensityLuohu, as the east node of Shenzhen's linear urban development, failed to prioritize the relationship between the city and its natural environment in its early urban planning and construction. Instead, it simply and crudely implemented modern functional and transportation planning. Buildings and urban living spaces were arranged on the land according to the demands of functionality and efficiency, with nature serving only as a backdrop to the man-made city. In this process, people (regardless of individual differences such as age, identity, gender, and background) and their activities were merely functional objects of efficiency planning.
这种以理性和效率的名义对人类社会组织进行系统治理的理念,源于西方启蒙运动与传统社会的脱节。城市和建筑规划将城市建设系统视为复杂的机械操作,而自然和传统被视为现代化的障碍而被消除。这些地区的社区和街道失去了人情味,显得冷漠和毫无生气。与城市一样,新建的校园也逐渐被社会经济的快速发展所异化,成为社会机器系统的一部分,失去了场所精神和空间意义。
This concept of systematically governing human social organizations in the name of rationality and efficiency stems from the Western Enlightenment's disconnection from traditional society. Urban and architectural planning treated the urban construction system as a complex mechanical operation, while nature and tradition were seen as obstacles to modernization and were eliminated. Communities and streets within these areas lost their human character, appearing cold and uninspired. Like cities, newly constructed campuses have been gradually alienated by rapid socioeconomic development, becoming part of the social machine system and losing their place spirit and spatial significance.
O-OFFICE为红岭实验小学和红岭中学新文体艺术中心设计的项目都位于福田新开发的城区,它们都试图融入人文地理学的视角,重新思考和挑战深圳以效率为中心的空间范式。
这两个校园的设计,在一定程度上复兴了珠三角传统的人、地、景、建筑一体的景观,从而使校园成为一个培育人文精神的地方。与此同时,在罗湖老区,曾经快速发展的标准化城区经历了几十年的演变,现在拥有相对稳定的街道和社区生活。再加上多年的植被生长,与其他新开发的地区相比,它的规模显得宜居和有吸引力。反过来,这让建筑师相信新校园也应该在街道层面尊重和回应这一点。
O-OFFICE's projects for Hongling Experimental Primary School and the New Arts and Sports Center at Hongling Middle School, both located in the newly developed urban area of Futian, have seek to incorporate a human geography perspective, initiating a rethinking and challenging Shenzhen's efficiency-focused spatial paradigm. The designs for these two campuses, to some extent, revive the Pearl River Delta's traditional landscape of integrated people, land, landscape, and architecture, thereby revitalizing the campus as a place for nurturing the human spirit. Meanwhile, in the old district of Luohu, the once rapidly developed, standardized urban area has undergone decades of evolution and now boasts relatively stable streets and community life. Coupled with years of vegetation growth, its scale appears livable and attractive compared to other newly developed areas. This, in turn, led the architect to believe that the new campus should also respect and respond to this at the street level.
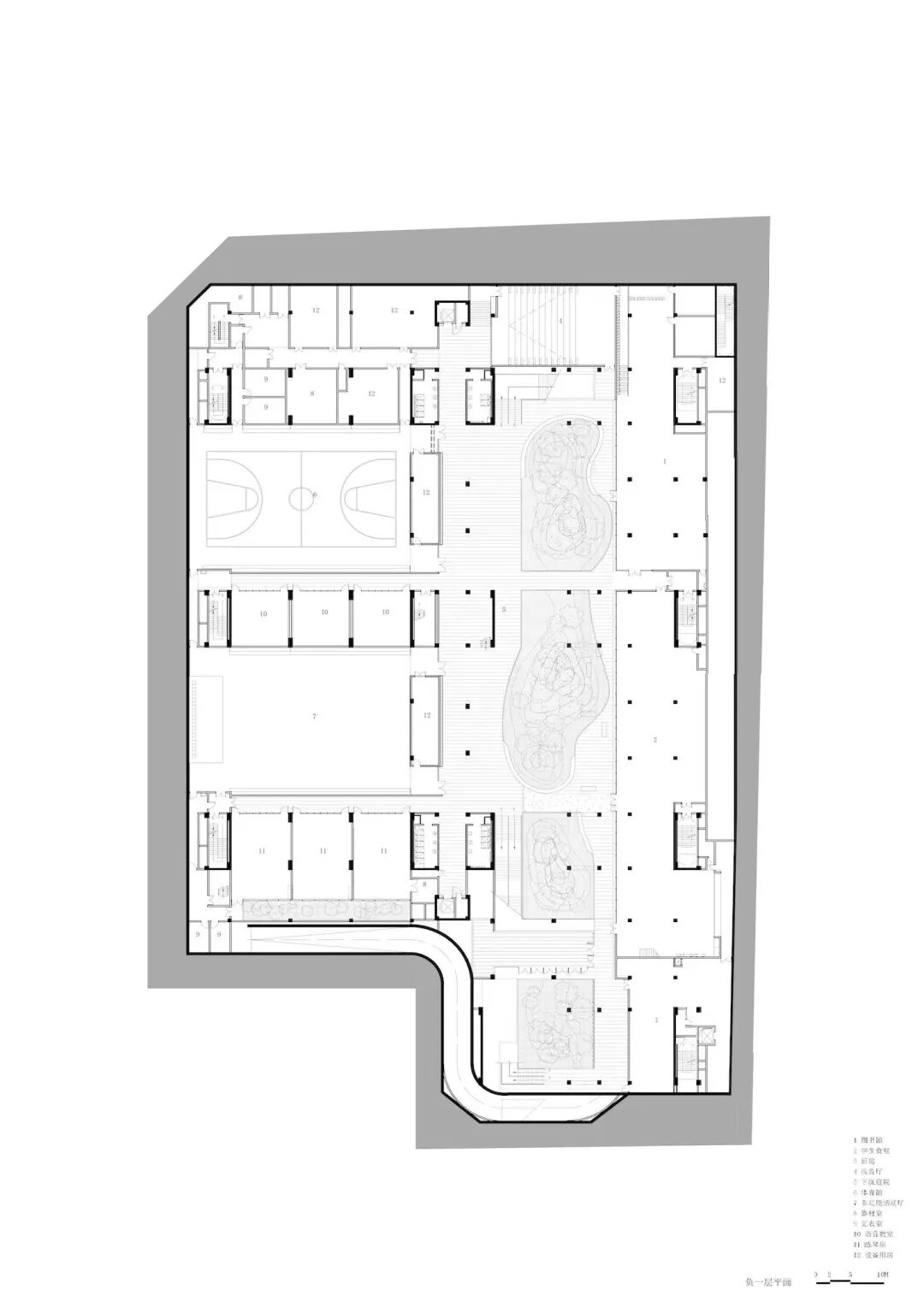
校园用地极为有限,建筑比例高达3.0。校园的强制性布局规划只能容纳不到200米的圆形跑道,这使得24班高中的教室和住宿空间严重短缺。为了解决高密度的场地,建筑师将传统的教室和运动场的水平并置转变为垂直堆叠安排。一个运动区,拥有近300米的圆形跑道,115米的直线跑道和天然草坪,悬挂在五层教学楼上方,为整个校园提供了广阔的阴影空间。
The campus land is extremely limited, with a high building ratio of 3.0. The mandatory layout plan for the campus can only accommodate a circular running track of less than 200 meters, leaving a significant shortage of space for classrooms and residential accommodation for the 24-class high school. To address the high-density site, the architect transformed the traditional horizontal juxtaposition of classrooms and sports fields into a vertical stacking arrangement. A sports area, featuring a nearly 300-meter circular track, a 115-meter straight track, and a natural grass pitch, is suspended above the five-story teaching buildings, providing a vast shaded space for the entire campus.
这在地理上呼应了未来城市公共绿化延伸到校园的潜力,由北部绿树成荫的威灵公园刺激。教学和宿舍区被释放出来,很好地融入了现有的城市肌体中,形成了一个令人愉快的三维校园庭院系统,纵向矩形下沉式庭院。顶部的浮动运动场就像一个宽边帽罩,保护整个校园免受强烈的阳光照射,在深圳漫长的夏季大大降低了能源消耗。
This geographically echoes the potential for future extension of urban public greenery into the campus, spurred by the tree-lined Weiling Park to the north. The teaching and dormitory areas are released and nicely integrated into the existing urban fabric, forming a pleasant three-dimensional campus courtyard system with the longitudinal rectangular sunken courtyard. The floating sports field on top works as a wide-brimmed hat cover and protect the whole campus from the strong sun, largely lower the energy consumption in the long summer of Shenzhen.
普通城市的绿色神庙O-OFFICE认为,城市校园不应仅仅是对功能需求的技术回应;它们应该是城市中重要的公共空间节点,作为城市标志甚至纪念碑的空间。在罗湖和龙岗城区之间,大片起伏的丘陵和绿地仍然构成了超大城市内至关重要的生态系统,为我们对新校园的空间记忆提供了地貌来源。建筑师试图融入这个生态绿化系统,将校园视为这个有机系统的城市延伸。它作为我们三维校园空间概念的城市基础,最终在罗湖老城中创造了一个“绿色寺庙”。“寺庙”一词象征着校园的精神公共空间性质。在深圳这样注重效率的城市,传统的精神空间在很大程度上被淘汰了。我们希望像校园这样的公共建筑能够成为空间节点,重塑新的城市社区的精神和公共性质,让现代城市有机会像传统社会一样拥有精神部分。
A Green Temple for the Generic CityO-OFFICE believes that urban campuses should not simply be a technical response to functional needs; they ought to be important public spatial nodes in the city, spaces that serve as urban markers and even monuments. Between Luohu and Longgang urban areas, vast expanses of rolling hills and green land still constitute a crucial ecological system within the megacity, which provided a geomorphological source for our spatial memorialization of the new campus. The architect sought to incorporate this ecological greening system, viewing the campus as an urban extension of this organic system. It served as the urbanistic foundation for our three-dimensional campus spatial concept, ultimately creating a "green temple" within the old city of Luohu. The term "temple" symbolizes the spiritual public space nature of the campus. In efficiency-focused cities like Shenzhen, traditional spiritual spaces have largely been eliminated. We hope that public buildings like campuses can become spatial nodes that reshape the spiritual and public nature of the new urban community, allowing modern cities to have the opportunity to possess spiritual parts, just as traditional societies did.
艺术学校的城市“寺庙”精神空间的实现依赖于校园内空间形态的构建,而这种语汇是通过结构系统来实现的。校园垂直分为三层。底部是一个下沉式基地,其中包括校园的公共设施,围绕着-1层的下沉式花园和-2层的停车场。中间是三层合理排列的教学和生活空间,顶部是向天空开放的空中运动场。在这三层之间是与绿色花园融合的高架空间,适应亚热带气候,并允许用户自由导航。这三个空间层次都有自己的结构布局逻辑。它们的结构是部分连接和连续的,而开放区域在不同层次上进行结构转换,实现独立性。
The realization of the art school's urban "temple" spiritual space relies on the construction of a spatial morphology within the campus, and this vocabulary is achieved through the structural system. The campus is divided vertically into three levels. The bottom is a sunken base, which includes campus' public facilities surrounding a sunken garden on the -1 level and a parking lot on the -2. In the middle are three levels of rationally arrayed teaching and living spaces, and at the top is an aerial athletic field open to the sky. Between these three levels are elevated spaces that blend with the green garden, adapt to the sub-tropical climate, and allow users to freely navigate. Each of these three spatial levels has its own structural layout logic. Their structures are partially connected and continuous, while the open areas undergo structural transformations at different levels, achieving independence.
结构的连续性被特定的功能空间所掩盖,而转换后的结构构件则暴露在开放空间中,成为校园内外的空间地标。这种垂直的统一和变化,结合庭院的不同高度和室内外空间的空间层次,创造了一种既自我一致又多样化的校园体验。
The structural continuity is concealed by specific functional spaces, while the transformed structural components are exposed in the open space, becoming spatial landmarks both inside and outside the campus. This vertical unity and variation, combined with the varying elevations of the courtyards and the spatial hierarchy of interior and exterior spaces, creates a campus experience that is both self-consistent and diverse.
校园内部由从下沉式庭院升起的v形细柱支撑,与花园的植被融为一体。空中运动场由教学楼顶部的v形钢柱构成的空间桁架支撑,形成悬浮在城市上空的长廊桥。校园内部分层蜿蜒;外观是有节奏的升降,有高耸的屋檐。它既是城市时间和空间的纪念碑,也是城市日常生活的家园。
The campus interior is supported by thin V-shaped columns rising from a sunken courtyard and blending into the garden's vegetation. The sky sports field is supported by a spatial truss constructed from V-shaped steel columns atop the teaching building, forming a promenade bridge suspended above the city. The campus interior is layered and winding; the exterior is a rhythmic rise and fall, with soaring eaves. It serves as both a monument to the city's time and space and a place of daily urban home.
项目图纸
▲平面图
▲剖面图
▲轴测分析图
▲模型图
项目信息
项目地址:广东省深圳市罗湖区
9月12-13号:中小房企·高品质住宅建造峰会
9月5-6号 学习·天津 “全首层架空”新模式
洋房/叠墅/院墅/小高层
▼点击下图,了解报名
1.本文为建筑设计技术分析,仅供欣赏学习。
2.本资料为要约邀请,不视为要约,所有政府、政策信息均来源于官方披露信息,具体以实物、政府主管部门批准文件及买卖双方签订的商品房买卖合同约定为准。如有变化恕不另行通知。
3.因编辑需要,文字和图片无必然联系,仅供读者参考;
推荐一个
专业的地产+建筑平台
每天都有新内容
扫描二维码关注

微信公众号“搜建筑”(ID:sjz9999)
合作、宣传、投稿
联系微信:soujianzhu006


