当下市场的四房产品对空间重新划分,采用双套房设计,能更好尊重家人生活习惯与边界,其中一件作为老人套房或者孩子的套房,避免两代人生活干扰,并且拥有独立的生活空间。
具备两个带有独立卫生间的卧室,就是双套房的设计。
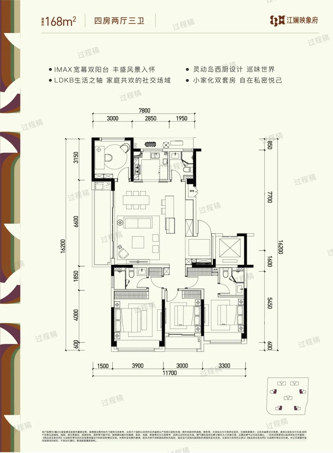
近年来越来越多的中大户型洞察到了用户的需求,在200㎡以下做到三卫的配置,就很舒适了。
129㎡户型示意图

中建·太泽之星建筑面积约143㎡,苏州没有几个楼盘,能在建筑面积约143㎡的面积里塞下双套房。
这个户型有着约14.2米的南向面宽,客厅直通南向超宽双联阳台,全屋飘窗设计、双联大阳台,预留大量收纳空间,整体得房率不低, 四房三卫南北双向阳台,全能户型。
中建·太泽之星效果图
南向·双套房设计:主人房和老人房都做了南向套房设计,带独立卫浴间。老人起居更方便,一家人不同生活作息也不怕过多打扰;
长沙保利长交锦上项目的户型非常“卷”,比如建面约165㎡户型,南向双套房的双倍尊崇,三代同堂也享有阔绰的空间;南向四大面宽,扩大日照范围,南向景观阳台7.2×2.1米可实现270°观景。
西安华润置地润玺臺建面约165㎡户型,主卧套房直接叠满buff,首先是步入式衣帽间,主卫豪华五件套设计,最主要的是还有一个露台。
西安华润置地润玺臺建面约165㎡户型图
这个户型还有很多亮点:私家梯明厅独立入户,约50平米极致大方厅,南北双向露台,约6m挑空空中院落,约14.9米南向追光面宽,约2.5米宽幅露台,70cm外凸阔尺飘窗。
西安华润置地润玺臺效果图
双阳台的打造,南向的生活阳台可以满足日常的晾晒,侧面的景观阳台则可以作为活动空间承载更多的空间功能。
200m²以下超能打的豪宅——宁波宁光府,建面约178m²四房两厅三卫,南向双套房,户型方正。
朝南面宽达到了约15.4米,而且配置了整整约8.2米的双联南向阳台,三段式的主卧极具仪式感。
成都龙湖天府 云河颂建面约185㎡户型,双套房设计,主卧套房还分男女衣帽间,主卫五件套奢华舒适。
成都龙湖天府 云河颂建面约185㎡户型
西安龙湖星河云河颂建面约186㎡户型,四室两厅三卫一厨设计,整体户型方正,空间利用率高,动静分区合理,适合三代同堂的家庭。
约30平的豪华主卧套,开间达到约4米,奢华卫浴区约8平;次主卧设计,面宽也达到了约3.7米,相当于市面140平的主卧大小。
186㎡户型图
186㎡户型图
这个户型最大的惊喜是给每一户业主赠送6.3挑高的私享院落生活。南向面宽达到约17米,还有近50平米的大方厅,客厅面宽约6米。
186㎡样板房图
西安龙湖星河云河颂建筑效果图
在“十二大绿金科技系统”的超强加持下,实现户型全新跨越升级。
西安大明宫金茂府建面约198㎡户型图
装修示意图
西安大明宫金茂府效果图
10月·考察学习
天津 “全首层架空”新模式
洋房/叠墅/院墅/小高层
▼点击下图,了解报名
1.本文为建筑设计技术分析,仅供欣赏学习。
2.本资料为要约邀请,不视为要约,所有政府、政策信息均来源于官方披露信息,具体以实物、政府主管部门批准文件及买卖双方签订的商品房买卖合同约定为准。如有变化恕不另行通知。
3.因编辑需要,文字和图片无必然联系,仅供读者参考;
推荐一个
专业的地产+建筑平台
每天都有新内容
扫描二维码关注

微信公众号“搜建筑”(ID:sjz9999)
合作、宣传、投稿
联系微信:soujianzhu006


