▲ 更多精品,关注“搜建筑”
这是个最坏的时代,这也是最好的时代,在楼市激荡的时代,市场上的产品设计,越来越卷了,尤其对户型的要求也越来越高。
搜建筑发现市场一直在不断地对户型迭代升级,其中,花园式全明电梯厅(入户光厅)已成为“卷王”户型必备。
花园式全明采光电梯厅(入户光厅),想象下,电梯门一打开,眼前是落地窗般的风景视野,或是一片翠色,或是一片蔚蓝,宛如一幅唯美的自然画卷……绝了!
今天搜建筑和大家一起来聊下户型电梯厅的进化趋势——花园式全明采光电梯厅。
1
全明采光电梯厅
「电梯厅」的升级进化
「全明采光电梯厅」的现象产生
电梯厅,是指走出电梯后到入户门之间的空间。
「全明采光电梯厅」的现象产生,主要源于以下几大方面:
一是:电梯厅使用频率极高,但电梯厅普遍舒适度是不够的
二是:购房客户愈发关注采光、通风以及私密性等关键因素
三是:房企对项目品质与市场竞争力提升的持续追求
「全明采光电梯厅」带来哪些越级享受
作为一个与自然充分融合的入户过渡空间,全明采光电梯厅是能够优化居住体验与舒适度的重要元素,设计也对电梯厅的设计越来越重视,完成了「电梯厅」的升级进化。
1、区别传统密闭空间,全明电梯厅实现独立采光、自然通风
2、呈现内外双入户玄关,双重入户归家,仪式感、功能性更强,且契合实际居住需求
成都仁和春天·银杏大道约143㎡户型示意图
3、功能强大的外部空间,可以作为自行车、滑板等家用大件器具的存放处,也可以装饰成一个小型的户外会客区
4、不仅注重功能性,还兼顾景观效果,为居住者带来更加舒适与便捷的居住体验
比如,南京中海·江湾境建面约143㎡户型打造了全明候梯厅,业主等候电梯时拥有270°的观景空间,欣赏江岛风光,且兼具收纳属性和实用性。
南京中海·江湾境建面143㎡户型示意图
5、场景感更多,更强,全电梯明厅作为一个充满情景化的空间,恰好能够成为一个极具仪式感的入户花园,近乎满足大平层对于“空中花园”的需求
比如成都龙湖三千云锦建筑面积约143㎡户型,2梯2户,电梯前厅相对独立,每一户都能拥有一个专属的入户空间。
成都龙湖三千云锦建筑面积约143㎡户型
这个独立入户空间,不是常规的密闭空间,而是创造性的实现了全明、观景等作用,同时兼具收纳、储物等功能,电梯前厅面宽超过5m,实际使用面积超过13㎡,俨然就是一个“空中院子”。
成都龙湖三千云锦电梯前室实景图
6、动线更独立,私密性更强,可实现“私梯入户”的效果
7、更多空间使用,让生活更加惬意
比如,成都宽窄学府项目所有户型都配备专属电梯前厅,并且全明私梯入户,面积约8-10㎡不等,既可以作为储物室,增加室内使用空间,也可改造为私家花园,醉心花草。
成都宽窄学府户型示意图
成都宽窄学府效果示意图
8、超高空间利用率、提高得房率、让空间向外延伸,还可以设计为用电梯外廊开敞式处理,只计半面积,更节约公摊。
比如,成都招商中旅·中环臻邸建面约136㎡户型拥有约10㎡入户光厅,加上光厅、阳台和飘窗,实际使用面积为146㎡,得房率高达108%。
成都招商中旅·中环臻邸建面约136㎡户型示意图
比如,华润置地锦官云玺建面约143㎡户型,2梯2户+全明私家电梯厅+电梯外廊采取开敞式设计,一举三得:
一是减少了公摊面积
二是带来了自然通风
三是每户电梯厅均为私密独享,实现花园式入户
华润置地锦官云玺建面约143㎡户型示意图
华润置地锦官云玺143㎡单层平面图
9、提升建筑外立面颜值。从建筑外看,全明候梯厅,就像家中的一个安装了大面窗的房间或是大开敞的灵动“窗口”,对外立面颜值的拉动显而易见。
2
全明采光电梯厅布置方式
搜建筑纵观市面上的全明采光电梯厅,可有几下几种布置方式。
01、单面采光
单面采光即只有一面为采光面。
比如成都中交·天府九章建面约175㎡户型,享约12㎡单面采光入户前厅。
成都中交·天府九章建面约175㎡户型示意图
02、270°转角双面采光(直角式)
270°转角式设计,类似“阳台式独立电梯厅”,近似入户花园。
比如成都龙湖·天府晴川建面约128㎡户型,约12㎡独立电梯厅,营造出一个超大的充满情景化的家庭空间,并实现270°采光面,从入户方式开始,改善生活的品质就上升了一个维度。
龙湖天府晴川约128㎡户型示意图
龙湖天府晴川 建面约128㎡电梯厅实景图-约12㎡独立电梯厅
• 270°开窗面,基本实现全明的采光效果,现场呈现就像买房附赠了一个外挂的空中玻璃仓;
• 使用面积达到约12㎡,已经超过一间次卧的面积,能充分提升空间利用率;
• 入户花园和H型玄关构成一体化的收纳系统,提升储存空间,颜值和功能全在线。
成都星河world三期建面约142㎡户型示意图
成都星河WORLD三期公园三号效果图
03、270°转角双面采光(曲面式)
弧形设计运用到细节的角角落落。
比如,成都香港置地·天湖翠林建面约143㎡户型,一梯两户设计,对开门式电梯,让业主具有独梯入户的尊贵感。约13㎡的弧形曲面电梯厅是完全开放式的,自然通风下无需风井设备,让恼人的电梯公摊被降低,业主还能白得一个可使用的入户空间。
成都香港置地·天湖翠林建面约143㎡户型示意图
成都香港置地·天湖翠林 实景图
比如,成都国贸蓉上项目建面约143、161、178㎡户型全部弧形独立采光电梯前厅。
成都国贸蓉上户型示意图
成都国贸蓉上 效果示意图
04、采光、面积、功能升级
比如,成都城投置地·鹭湾锦上映建面约126㎡、约143㎡户型拥有面积达14.5㎡的采光电梯厅,这个面积相当大了,而且靠近厨房这一端预留了上下水,可作为生活阳台使用。电梯厅正面玻璃封窗,侧面通风的设计,把晾晒的尴尬也一并解决了。
成都城投置地·鹭湾锦上映 实景图
比如,成都汇厦德商·光华天玺建面约99、130、140㎡户型全部设置了入户光厅设计。其中建面约140㎡户型进一步升级功能性与尺度感,达到超15㎡入户光厅,尺度直逼180㎡户型。
3
全明电梯厅
放彩于各个面积段户型中
全明电梯厅已设计于各个户型面积段中,不止豪宅改善户型,还包括刚需户型。
比如,北京越秀·香山樾建面约270㎡户型,一梯一户的设计,享独立全明电梯前厅。
北京越秀·香山樾建面约270㎡户型示意图
比如,济南旅游路鑫都·森林山建面约220㎡户型,奢配归家观光电梯,业主在归家时即可体验独特的观山视野。
济南旅游路鑫都·森林山建面约220㎡户型示意图
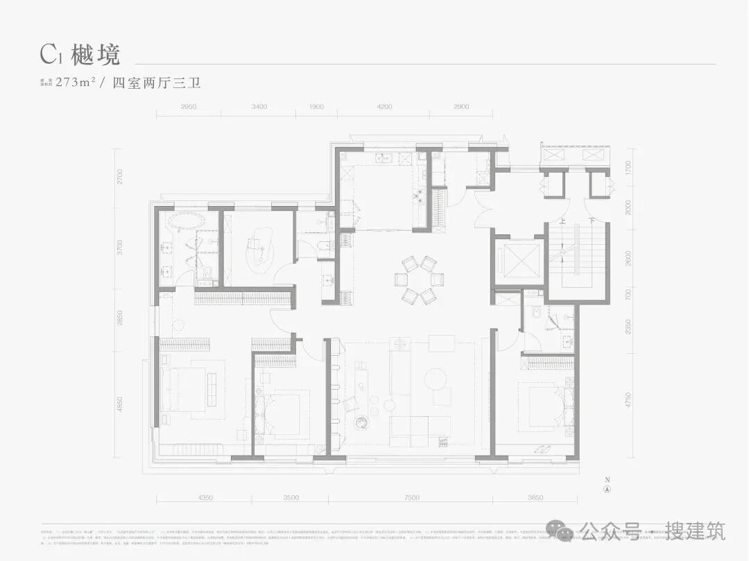
成都华润&华发·阅天府建面约199㎡四室两厅三卫“南厅”户型,出电梯后映入眼帘的是约10㎡的全明采光电梯厅,配合进门后近5㎡的独立玄关空间,构成双玄关入户,归家就有妥妥的豪门气场!
南京中海·江湾境建面约187㎡户型,入户前的“全明候梯厅”。
南京中海·江湾境建面约187㎡户型示意图
成都邦泰天府云璟建面约170㎡户型示意图
成都国贸蓉上建面约161㎡户型,享约7㎡入户前厅,出入尊崇的私家仪式感。
成都国贸蓉上建面约161㎡户型示意图
南京中海·江湾境建面约155㎡户型,中海创新打造全明入户门厅,在原有两梯两户私密候梯基础上,通过设置北向的转角飘窗,将候梯厅变成全明,是南京罕见的创新之举。
南京中海·江湾境建面约155㎡户型示意图
每户门外的独立空间,配置了大面观景玻璃窗+内部硬装铺贴。
建面约155㎡样板间实景图,仅供参考,具体以实际交付为准
南京中海·江湾境 效果示意图
作为市场上“最卷”的143㎡户型产品,全明电梯厅更是大批涌现。
比如,成都龙湖天府云河颂建面约143㎡户型,双重玄关系统:每户业主都享有近10平米的全明私人电梯厅,让人倍感尊崇。进入房间,豪华配置双排玄关柜,独一无二的双收纳系统,让生活更便捷,在这里即可以放置业主的个性收藏,也可以实现归家理想。
成都龙湖天府云河颂建面约143㎡户型示意图
成都龙湖天府云河颂约143㎡户型所在楼栋入户大堂打造实图
成都仁和春天·银杏大道建面约143㎡户型示意图
成都仁和春天·银杏大道 实景图
成都九联龙湖·公园玖序建面约143㎡户型示意图
成都中交·天府九章建面约143㎡户型示意图
成都香港置地·西元建面约130㎡四房户型,两梯两户格局下,每一户都有独立且全采光的电梯厅空间。
成都香港置地·西元约130㎡户型示意图
成都香港置地·西元 采光电梯厅 实景图
成都香港置地·西元 实景图
成都邦泰天府云璟建面约130㎡户型,配有约10㎡私享电梯厅,为出入带来私密与尊贵。
成都邦泰天府云璟约130㎡户型 示意图
成都邦泰天府云璟 实景图
成都蜀道翰林府建面约126㎡户型,专享约11㎡入户电梯前厅。
成都蜀道翰林府建面约126㎡户型 示意图
成都蜀道翰林府效果示意图
成都星河极光建面约121㎡户型图
成都星河极光建面约121㎡户型入户光厅效果图
成都邦泰云璟建面约108㎡户型,享有超8㎡的独立电梯前室,可加以利用打造为入户花园、储藏室等。
成都邦泰云璟建面约108㎡户型示意图
成都邦泰云璟建面约113㎡户型,2T2户的梯户比下,独立电梯前室面积有近10㎡。
成都邦泰云璟建面约113㎡户型示意图
即使在88㎡、99㎡偏刚需的小户型中也见到了,全明独立电梯入户空间,完全可以成为独立前室功能使用,不仅可以作为业主私人入户玄关,还增加了隐形实用面积。
比如,上海保利|虹桥和颂建面约88/99㎡的3房户型,竟然设计了类一体一户,为业主精心打造了一个全明独立的电梯入户空间!
上海保利|虹桥和颂户型示意图
结语
拿着旧地图,永远找不到新大陆!
如今的住宅产品,正向着精益求精的高品质方向发展,市场呼唤好产品,客户也一定会为真正的人居好作品买单,搜建筑希望户型创新和迭代的这个趋势一直保持下去。
10月·考察学习
天津 “全首层架空”新模式
洋房/叠墅/院墅/小高层
▼点击下图,了解报名
1.本文为建筑设计技术分析,仅供欣赏学习。
2.本资料为要约邀请,不视为要约,所有政府、政策信息均来源于官方披露信息,具体以实物、政府主管部门批准文件及买卖双方签订的商品房买卖合同约定为准。如有变化恕不另行通知。
3.因编辑需要,文字和图片无必然联系,仅供读者参考;
推荐一个
专业的地产+建筑平台
每天都有新内容
扫描二维码关注

微信公众号“搜建筑”(ID:sjz9999)
合作、宣传、投稿
联系微信:soujianzhu006





