深圳市龙岗区星河学校
畎亩建筑
星河学校作为深圳市龙岗区建筑工务署重点推进的高品质校园,通过系统性设计推演化解高密度复杂场地的空间矛盾。项目以创新性空间范式推动基础教学模式革新,通过建筑构造创新实践绿色低碳校园建设目标。
Xinghe campus, a high-quality campus project prioritized by the Longgang District Construction Bureau of Shenzhen, resolves spatial challenges of high-density sites through systematic design strategies. The project pioneers innovative spatial paradigms to transform fundamental teaching models, while achieving green and low-carbon campus goals through architectural innovation.
1. Walled House Layout. The "walled house" design of Xinghe Campus serves as both a contemporary reinterpretation of Longgang's cultural heritage and a spatial solution for high-density constraints. Under strict requirements (3.4 FAR with a 200m circular running track), the six-story enclosed structure efficiently consolidates teaching functions. Responding to surrounding urban patterns, the layout adopts a gradient density strategy – dense north, sparse south. By precisely controlling boundary distances to regulatory limits, we achieved optimal height-width ratios and human-scale courtyards. The resulting transitional spaces actively catalyze informal learning activities.
2. 地形嵌套
采用垂直向度的地形学处理手法,将体育馆、报告厅等大体量功能单元作为基座层嵌入场地,使教学组团以悬浮姿态建构于场地之上。二者之间逐级跌落的台地产生空间活力,成为孩子们嬉笑翻闹的“山谷”。
2. Topographic Nesting. Using vertical terrain manipulation, large functional units like the gymnasium and auditorium are embedded as foundational plinths. Teaching clusters then "float" above this base, with cascading terraces forming vibrant transitional spaces – a playful "valley" for children's activities.
3. 立体镂空
立体廊桥在校园中流动,带着灵动色彩编织出自由而多义的立体校园。悬空种植的大树让孩子们在课间10分钟也能接触绿色自然,伸展的廊桥作为课间操平台,在垂直维度中拓展活动场所。“镂空”高密度的建筑体量,让光与风穿透进来,形成舒适的微气候,同时也可以让孩子们看出去,观城市生长,知社会冷暖。“围屋”像是一间大教室,巨型教学容器通过空间粘性促进生生互相学习。
3. 3D Permeability. Colorful aerial walkways weave through the campus, creating multi-layered spatial connections. Suspended tree plantings bring nature within 10-minute breaks, while extended bridges serve as vertical exercise platforms. Strategically carved voids allow light and wind to permeate the dense structure, improving microclimate comfort and offering city-view perspectives that connect students to urban growth. This "Walled House "as a giant classroom where spatial cohesion stimulates peer-to-peer learning.
在入口区需同时解决家长集散、学段分流与高密度挤压的矛盾语境下,设计通过建筑体量内收策略,创新建构双首层交通体系与分时共享广场。采用”空间折叠”技术消解校园与城市的对抗性边界:日间作为接送缓冲区,非教学时段转化为社区共享空间。
At the entrance zone addressing parent circulation, student flow separation, and density challenges, we developed an innovative dual ground floor system with a time-shared plaza. Spatial folding techniques dissolve urban-campus boundaries, serving as a parent drop-off buffer during school hours while transforming into community-shared spaces during non-instructional time.
通过拆除传统围墙的实体隔离,将运动场域与城市街道建立视觉渗透;居民可以实时观望运动场中的孩子,使校园活力反向滋养社区。设计“打开”校园的围墙,把空间对抗转化为分享与融合。针对深圳典型亚热带气候特征,设计需要回应太阳辐射与极端降雨的双重挑战并化解遮阳效率与视线通透的矛盾。
By eliminating traditional walls, the sports field visually connects to city streets. Residents can observe active students, allowing campus energy to nourish the neighborhood. The design "opens up" the walls of the campus, transforming spatial confrontation into shared vitality through boundary dissolution. Given the subtropical climate typifying Shenzhen, the design must address the dual challenges of solar radiation and extreme rainfall, while resolving the contradiction between shading efficiency and visual permeability.
通过自主研发的半透明为网格膜遮阳系统,经模拟验证,在保证sDA(空间日光自主性)和UDI(日光照度)的同时,可有效降低sGA(空间眩光)和热辐射强度,从而改善教室光环境并节省能源。
The simulation results, obtained through the implementation of a translucent grid film shading system developed in-house, have demonstrated that while ensuring sDA (spatial daylight autonomy) and UDI (Useful Daylight Illuminance),the system can effectively reduce sGA (Spatial Glare Avoidance) and thermal radiation intensity. Consequently, this enhances the classroom light environment and conserves energy.
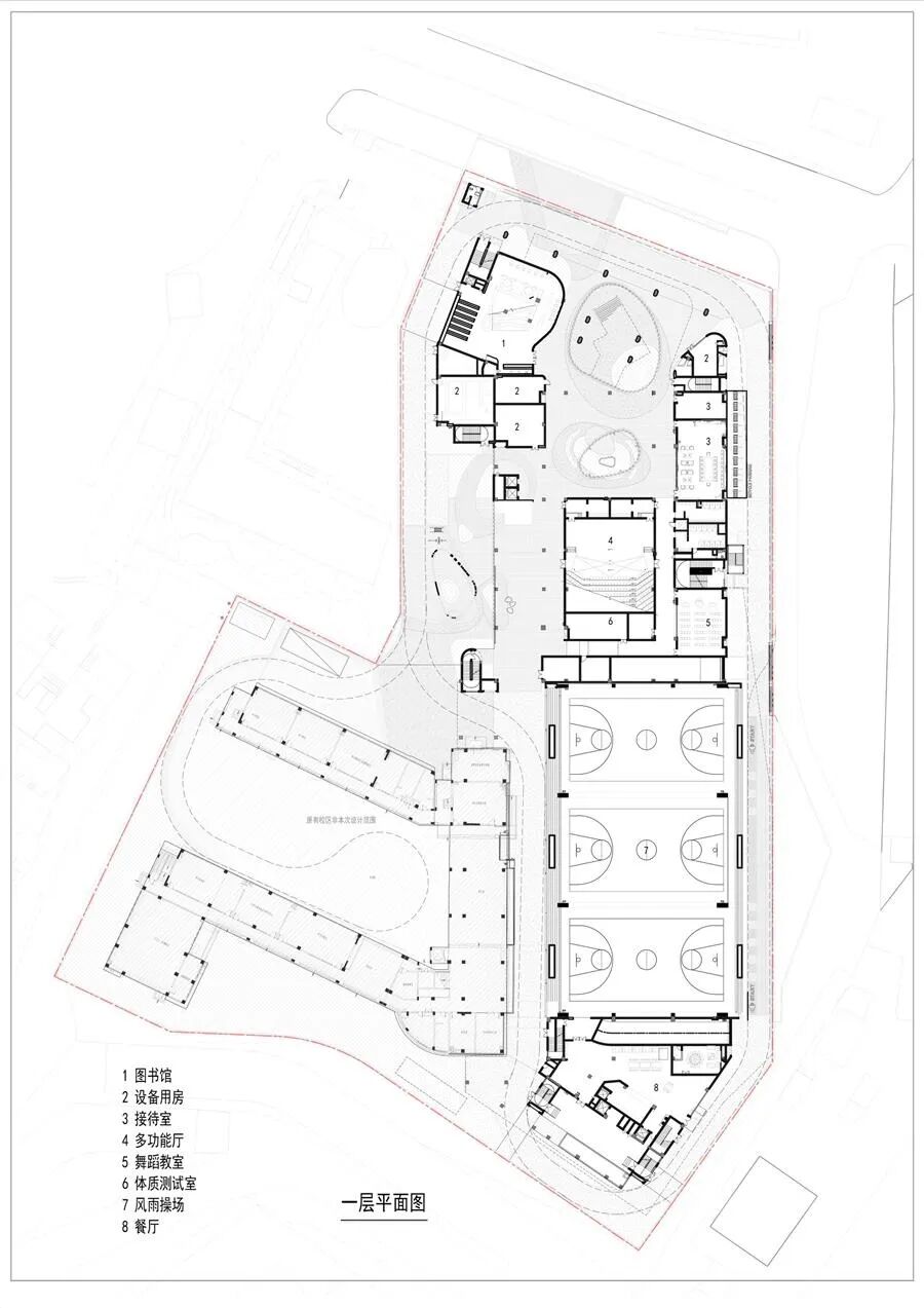
项目图纸
▲平面图
▲剖面图
▲设计草图
10-11月·考察学习
天津:“全首层架空”新模
成都:新住宅·产品趋势
洋房/叠墅/院墅/小高层
▼点击下图,了解报名
1.本文为建筑设计技术分析,仅供欣赏学习。
2.本资料为要约邀请,不视为要约,所有政府、政策信息均来源于官方披露信息,具体以实物、政府主管部门批准文件及买卖双方签订的商品房买卖合同约定为准。如有变化恕不另行通知。
3.因编辑需要,文字和图片无必然联系,仅供读者参考;
推荐一个
专业的地产+建筑平台
每天都有新内容
扫描二维码关注

微信公众号“搜建筑”(ID:sjz9999)
合作、宣传、投稿
联系微信:soujianzhu006


