生机之环 林下学堂
华润南宁江南润府
南宁市江南公园板块有一个超级公园居住大盘——华润·江南中心。其中若干地块已经分期交付和销售完毕,本次要介绍的是新开发的大盘四期——江南润府。鉴于市场下行的去化压力以及华润地产想作出一些不同以往产品的决心,于是给设计端提出了一个新的命题——如何通过创新设计策略,赋能居住价值,提高当下同质化严重的产品竞争力,赢得置业者的青睐。
设计拿到这个任务,第一个动作就是设身处地的思考如果自己是购房者,该希望这个社区长成什么样?需要有那些场景?配置哪些日常的功能?解决哪些痛点?虽不是豪宅可以高投入,但也不能缺少该有的配套和使用空间,也要和之前几期有着明显的改善和提升,让人愿意居住在这里,生活在这里,这才是最核心的。
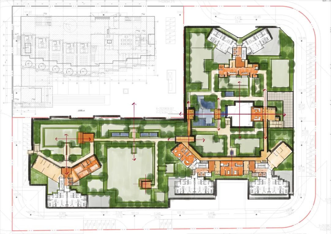
仔细分析地块条件,发现有一个非常与众不同的特质,就是场地可以做两层抬高的地上车库,道路入口层和真正单元入户层处在不同标高,高差有10m。之前几期都是常规做法,在主入口的地方用垂直交通梯把人拉到10m标高入户,简单做个形象大门,此类做法较为传统,缺少体验,不能引起客户共鸣。
我们介入之后就重新梳理这个条件,挖掘其它交通组织的可能性,重塑底盘,创造更加丰富多元的空间场景。
原始底盘:
·5m标高层较为封闭,缺少采光,感受欠佳
·只在10m标高层归家入户,流线单一,体验欠佳
创新底盘:
·0m标高层社区大堂结合入口楼梯创新设计,礼仪大气;
·5m标高地库层增加下沉庭院、采光天窗,整体明亮,体验感强;
·5m、10m标高层均可归家入户,且5m标高层实现无风雨归家入户,流线丰富
·创新底盘
设计最核心的设计策略是在社区底盘的5m标高引入核心庭院,从而形成三个主要活动层标高——0m层/5m层/10m层。
每个标高所代表的职责和场景各不同:
0m标高主要是串联和城市街道的衔接问题,包括人车入口形象界面,商业界面,转角广场,口袋公园等
5m标高主要是提供归家的酒店化感受,围绕核心庭院配备泛会所功能,且能实现无风雨归家路径
10m标高是住宅庭院层,小区的核心绿化活动空间,也是归家最主要的单元入户层。
总结来说,就是设计对整个居住底盘(10米标高及以下)重新梳理,提出解题策略并且按此设计落地。
0m标高 / 底盘之入口形象
小区主大门是居住社区底盘中最重要的一个环节。因此本案设计主要从两个方面着手思考,一个是解决流线和功能组织,一个是立面形象和调性营造。
功能流线考虑上,希望主入口有一定内退城市道路的距离,可以形成一个落客广场的限定感。竖向交通考虑上,将室外楼梯和电梯分置两端,为了让人更自然的从0m走向5m标高,将室内外楼梯景观台阶化处理,营造南方的一种亲近自然的闲适感。
形象界面思考上,核心策略是顶部设计一个伸飘大雨蓬造型,烘托整个入口气势和形象,且雨篷下底面也有细致的考虑小藻井的造型,在灯光的加持下,特别有韵律美和标识感,用木纹转印铝板材料也是希望呈现归家时候温暖的一面。正面预留的界面上下两层采用不同的处理方式,首层运用统一干净的黑色毛石面材料,可以和景观更和谐的统一,也可以反衬二层玻璃面的视觉焦点感,达到了功能与造型的完美契合。
·底盘社区商业
社区商业设计也是底盘非常重要的部分,由于商铺价值最大化,因此只在一层设置,那么二层就需要用设计语言去处理来遮挡内部车库的外界面,同时要和一层店铺界面强关联。设计上考虑整体用暖色系材料和竖向的构建去解构长长的界面,再由横向线条压顶去统一整个界面,从而达到有序中又有差异的立面效果。近人尺度的首层商业创造富有烟火气的外摆空间和橱窗展示,进退有序的小空间,口袋公园也让沿街氛围更有意思,为未来预留各种生活场景的可能。
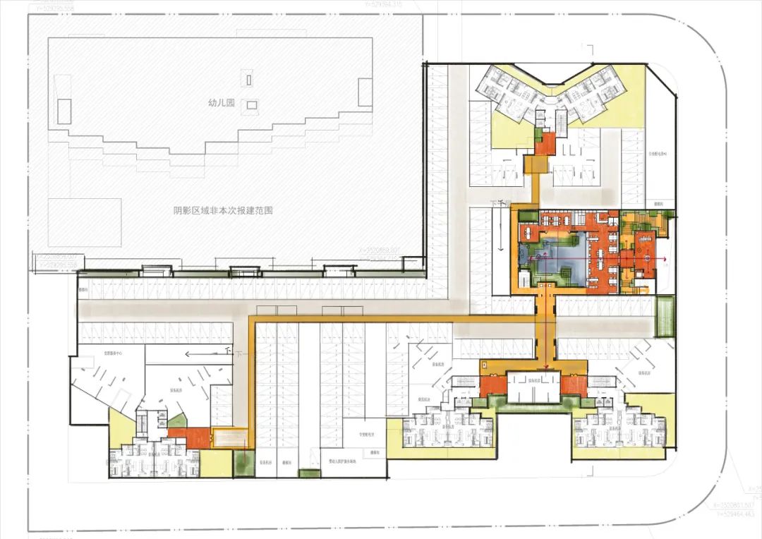
5m标高 / 底盘之灵动三岛
此标高层是核心功能体验层,为此专门有个代号——灵动三岛(主岛/光岛/月岛)
主体功能呈现L型空间,围绕下沉庭院布置,设置有学习盒子,阅读盒子,社交盒子等功能,匹配教育大盘的定位。另两侧是景观游廊,衔接主岛和景观地库的动线串联,此外又设置一条从下沉庭院到地下月岛的归家路径,让整个系统有机的串联起来,涵盖仪式入户,多维归家,放松休闲,学习阅读,景观车库的多重功能,才让项目显得与众不同和极具生活的仪式感。
10m标高 / 底盘之森系归家
10m标高的电梯厅正对面设置一对景庭院,让归家的仪式感拉满。出了电梯厅偌大的景观庭院引入眼前,继而转入归家的景观小径到达简洁现代温馨感的单元大堂。
在板楼住宅的底部,特别设置了一个感动空间,通过挖空楼板的方式将首层架空部分和地下部分作挑空处理,呈现地下和地上的联系互动场景,引入了室内的童玩设施,专门定制滑滑梯可以从10m平台滑倒5m标高的地下部分,充满童趣和活力,可谓惊喜之笔。此外住宅首层都采用了架空处理,每个架空层都安排了不同主体的内容,有健身运功,有老年休闲,会客剧场等,业主想要的未来生活场景都可以在场地内找到。
华润江南润府项目一改以往简单抬高场地的方式,创造性的引入立体庭院的方式,在只增加少量成本的情况下将不利条件转化为项目核心亮点,内置化灵动三岛,多维度归家路径,让居住者真真切切感受到未来居住的美好场景,让情绪得到释放,让生活充满诗意。
名 称:南宁·江南润府
业 主:华润置地深圳公司
地 址:广西南宁江南区
用地面积:15900 ㎡
建筑面积:66618 ㎡
建筑方案:AAI国际建筑师事务所
景观设计:广亩景观
室内设计:矩阵设计
施工图设计:基准方中
建筑摄影:曾江河
业主团队:管兵强、李思迪、陈静、黄翌玲、郑赟、伍斌、冯洪波、王文荣、李华君
设计团队:Bill Fang、Jordan Jiang、Elvis Bao、Chad Zhang、Eric Lv、Zhilei Feng、Xiaofei Ren、Xiaoshuang Ren、Wilson Wen、Lucas Yi、Mike Shao
※本文版权归AAI所有
※本文仅作为本企业宣传推文,该设计资料仅作学术交流使用,不作为销售物料和要约,亦不代表本项目相关企业的任何承诺。
10月31号 | 天津:“全首层架空”新模
11月 | 成都:新住宅·产品趋势
洋房/叠墅/院墅/小高层
▼点击下图,了解报名
1.本文为建筑设计技术分析,仅供欣赏学习。
2.本资料为要约邀请,不视为要约,所有政府、政策信息均来源于官方披露信息,具体以实物、政府主管部门批准文件及买卖双方签订的商品房买卖合同约定为准。如有变化恕不另行通知。
3.因编辑需要,文字和图片无必然联系,仅供读者参考;
推荐一个
专业的地产+建筑平台
每天都有新内容
扫描二维码关注

微信公众号“搜建筑”(ID:sjz9999)
合作、宣传、投稿
联系微信:soujianzhu006



