羊绒技术中心
waa未觉建筑
羊绒科技中心是一个更大的工厂综合体的一部分,它最初是在世纪之交开发的。该综合体位于内蒙古自治区干旱的沙漠景观中,远离鄂尔多斯市,几乎被视为一个自给自足的城镇。它包括工厂员工的住宅,以及为国内和国际品牌生产面料的广泛设施。
在这个建筑群中,技术中心被建立为推进羊绒研究和生产的专用建筑。园区内,技术中心原本承担着羊绒研发与生产的专业职能。建筑内设有实验室、样品检测室和专业工作室,服务于高度专业化的研发流程。我们的设计任务是将这座略显老旧的设施,改造成为一个符合当代工作方式的研发社区——一个体现开放、协作与创新精神的现代化工作场所。
The Cashmere Tech Centre, part of a much larger factory complex, was first developed at the turn of the millennium. Located away from the city of Ordos in the arid desert landscape of Inner Mongolia Autonomous Region, the complex was conceived almost as a self-sufficient town. It included residences for factory staff and extensive facilities for the production of fabrics destined for both domestic and international brands. Within this compound, the Tech Centre was established as a dedicated building for advancing cashmere research and production. Equipped with laboratories, sample testing rooms, and studios, the centre was originally designed to support highly specialized processes. Our commission was to regenerate this ageing facility into a contemporary R&D community — one that reflects today's collaborative and open office practices.
我们将传统办公环境重新构想成一系列相互连接的社交空间。在这里,人与人通过活动接触和视觉交流而实现自然融合。为了打造更具社区感的工作环境,我们首先从改善空间连通性入手:在建筑二层增设独立的主入口,通过在新立面与原有外墙之间嵌入一道斜坡通道,创造了直达核心区域的流线。这一设计不仅避开了地面层的干扰,更赋予使用者和访客独特的空间体验。
The sensibility of 'Workplace' can ultimately be broken into a series of social spaces, where people's activities converge either physically or visually. To support a more community-driven working environment, the first component was to improve connectivity- The cashmere centre was given its own entrance on Level 2. To achieve this, we designed a new ramp sandwiched within the new cladding and existing facade wall. This enabled a circulation bypassing the ground level and, in doing so, gifted autonomy to users and visitors.
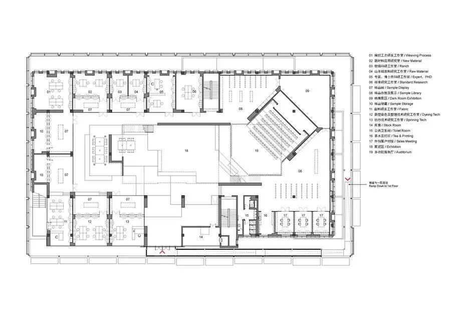
原建筑采用封闭的”回字形”布局。在改造中,我们部分保留了这个特征,同时围绕中央庭院旋转并打开了多个区域。研发工作室、技术研究室、研发区域和样品库等关键功能空间被重新组织。我们用种植绿植的玻璃盒子在网格系统中旋转45度,这一设计打破了传统的正交环路,创造出丰富的次级路径,让三层空间的流动更加自由。由此,各工作区之间的界限变得模糊,人们在流动的空间中获得了更多相遇和交流的机会。
The original plan organized rooms in a closed perimeter "donut." We maintained this structure in parts, but rotated and opened up ps around the central atrium. Key spaces including management offices / Tech Centre / R&D offices and the sample library. Glass boxes with plantations were rotated 45 degree on the grid, a tool to diversify into sub-routes so that level 3 circulation is no longer a traditional orthogonal loop, This results in boundaries between each work zone are looser so people enabling more chances to be physically engaged with one and another and by the burring bounds. Our Intention for the internal space re-arrangement is to create an open workspace environment where people can maintain group and individual interaction by choice; they can pick either a private room for small discussion, even for singular usage online meetings, additionally, they can choose large open spaces for open discussion.
舍弃原始建筑中的中庭用作展示区的传统做法,我们更注重激发研发团队的创新活力。墙面和架上的样品不再是静态的展览品,而是可供随时取用、观摩的互动元素。通过将样品库重新定义为研讨空间,我们让产品研发过程变得更加开放透明。考虑到本地员工的工作习惯,我们将各工作室的样品间设置在面向公共中庭和走道的显眼位置,而将实际办公区安置在样品间后方,既保证了私密性,又让每个工位都能享受自然采光和室外景观。
Rather than maintain the conventional office layout with private offices, where the public atrium was used only to Display. We conclude it's more important to promote research and development aspects of the tea, where multiple conversations and discussions are encouraged in various spaces. Items on the wall and shelf are not exhibition displays but for interactively browsing. Through reframing the sample libraries as a place for discussion while products are researched. To emphasize with the local employees that they might somehow prefer to have their closed offices, we put the sample rooms for each of the studios on the layer that faces the public atrium and passageway, where the actual staff offices are hidden behind windows with views to the outside.
我们将演讲厅设计为与原有建筑网格呈45度角,这一布局强化了与材料库、样品区的空间对话。新建的空中连桥轻盈地跨越中庭,既在物理上分隔了演讲沙龙与主厅功能,又保持了视觉上的连通。新建的连桥上的观景平台更成为促进人们不期而遇的绝佳场所,同时也在物理空间中将演讲厅与中庭做了区域的分割同时又保持了视觉的交互和联系。
An Auditorium is planned at a 45 degree angle from the existing grid. This arrangement improves interactions between the Material Library, materials sample, and theatre. A new footbridge crosses the void to physically semi-divided between the lecture salon and the main hall. Aiding movement as well as a vantage point balcony further enhances places where people's paths cross. The regeneration strategy was guided by a desire to retain the existing building while giving it a renewed architectural identity. The Component Driven Façade, conceived as an industrial jeweled cloak, now encases the original building. Behind the cloak, a new access ramp supported by this facade allows direct access to the entrance located on the second level Entrance foyer.
主要设计动作包括:
1. 采用1.5米×5.8米的标准化模块重新划分建筑尺度,通过修长的面板线条在视觉上减轻了建筑的体量感
2. 精心布置的穿孔铝板在保持立面完整性的同时,确保了室内外的视觉连通3. 弧形铝板根据内部空间视野需求和主要流线走向进行精准定位,引导着人们在空间中的移动。
Key design moves included: 1. Rescaling the building with a module size of 1.5m x 5.8m has advantages in reorganizing the massing proportions. With longer panels, the scale adds a clean barrier to the street with giving the illusion of reducing the size proportion; 2. Perforated Panel increases visibility from existing openings; 3. Arced Panels respond to internal view requirements and are positioned in relation to Entrances and Circulation routes.
设计重点:家具使建筑成为可能——家具的设计是塑造新的工作场所文化、加强开放和协作的组成部分。新的内部避免了封闭办公室的旧模式,有利于年轻员工特别重视的开放式讨论环境。)开放式展示——大型的中央接待空间容纳了两个大型的前厅功能。虽然不是指定的展览空间,但均匀照明的高体量可以用于大型项目展示,周边的座位也用作临时存储和展示。
Design Focus: Furniture to enable architecture — The design of furniture was integral to shaping the new workplace culture, reinforcing openness and collaboration. The new interior avoids the older model of enclosed offices in favour of open discussion environments that younger staff in particular value. i) Open Display — The large central reception space hosts two large Front of House functions. Although not a designated exhibition space, the evenly lit high volume can be utilized for large scale project display, with perimeter seating also used as temporary storage and display.
开放式礼堂——通过新建的桥梁连接,礼堂设有可伸缩的窗帘,可以进行亲密或大型聚会。阶梯式座位容纳了额外的椅子,从阳台上方的有利位置确保所有人都能看到这里的活动。当屏幕处于活动状态时,空间成为研讨会和讨论的焦点。
Open Auditorium — Connected by the newly added bridge, the auditorium features retractable curtains that enable either intimate or large-scale gatherings. Stepped seating accommodates additional chairs, and vantage points from balconies above ensure activity here becomes visible to all. When screens are active, the space becomes a focal point for seminars and discussions.
开放式样品-研发样品评审区围绕工作台式展示和垂直挂墙组织。在这里,材料不仅被储存,而且被积极地展示,创造了一种工作方法,在这种方法中,原型不断地进行对话,引发批评,并指导一种专注于公众讨论的工作方法。
Open Samples — The R&D sample review area is organised around bench-style displays and vertical hanging walls. Here, materials are not just stored but actively displayed, creating a working methodology where prototypes are constantly in dialogue, sparking critique and guiding a working methodology focused on public discussion.
开放式办公室——薄膜照明口袋点缀着办公空间,在一系列不规则的位置重叠在工作区的桌子上。这鼓励了自发性、跨学科的接触和重叠的对话。
Open Offices — Membrane Lighting pockets dot the office space, in a series of irregular locations overlapping the workspace desk arrangement. This encourages spontaneity, cross-disciplinary encounters, and overlapping conversations.
现有工业基础设施的构成对任何工业更新项目都提出了强有力的要求,而建筑则直接响应了这些条件。我们决定采用刚性网格,创造了重新缩放体积的错觉,减轻了曾经沉重的质量。新斗篷作为一个圣物箱(一个保护和珍贵的容器)掩盖了以前的建筑,同时仍然暗示了品牌的核心身份。将天然原料转化为精致的奢侈品。
The composition of the existing industrial infrastructure imposes robust requirements on any industrial renewal project, and the architecture responds directly to these conditions. Our decision to employ a rigid grid creates the illusion of rescaling the volume, lightening what was once a heavy mass. The new cloak acts as a reliquary (a protective and precious container) masking the former building while still alluding to the brand's core identity. The transformation of a raw natural material into a refined luxury product.
项目图纸
▲平面图
▲分析图
▲模型图
项目信息
项目名称:羊绒技术中心
洋房/叠墅/院墅/小高层
▼点击下图,了解报名
1.本文为建筑设计技术分析,仅供欣赏学习。
2.本资料为要约邀请,不视为要约,所有政府、政策信息均来源于官方披露信息,具体以实物、政府主管部门批准文件及买卖双方签订的商品房买卖合同约定为准。如有变化恕不另行通知。
3.因编辑需要,文字和图片无必然联系,仅供读者参考;
推荐一个
专业的地产+建筑平台
每天都有新内容
扫描二维码关注

微信公众号“搜建筑”(ID:sjz9999)
合作、宣传、投稿
联系微信:soujianzhu006



