谷生物城创新园二期展厅及服务中心
这方建筑师事务所
项目位于武汉市光谷生物城创新园二期核心地块,承担着对外展示园区形象、对内承载配套功能的双重角色。建筑功能复合,涵盖园区展示、企业展示、多功能厅及管理办公等多项内容。
相较于十五年前建成的光谷生物城一期,光谷生物城创新园二期在容积率上有显著提升,功能布局也更加多元,集聚了企业独栋、研发办公、高层生产厂房、公寓以及各类园区配套服务设施。
互动
B1栋建筑既是园区朝向城市的“展示平台”,也是服务园区企业的“社区中心”。它承载了城市—园区—企业三个维度之间的互动性,是园区面向九峰一路的形象门户,也是企业面向城市的展示平台。同时作为核心功能建筑,还承载了园区内的多种产业配套功能,为企业提供服务支持,也为企业之间的展示和互动营造环境。
△ 创新园二期核心区鸟瞰

△ 创新园二期主入口看服务中心
建筑南侧紧临城市主干道及园区南入口,以优雅灵动的折尺形态,朝东侧园区中心广场展开,形成半围合的环抱姿态,与北侧的弧形楼(B2/B3栋)共同构成园区的核心建筑群。
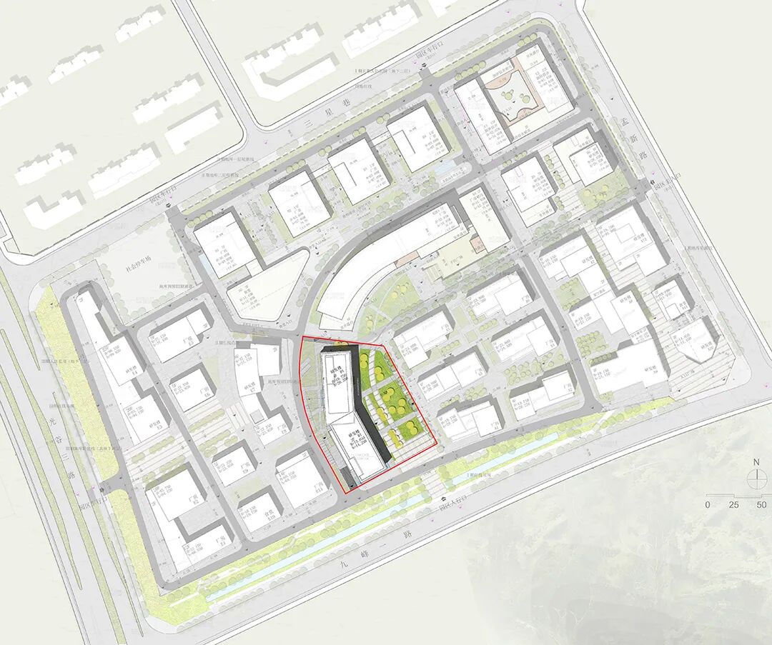
△ 创新园二期园区总图
△ 体块生成动画
B1栋由南楼、北楼两个成155°的体块组成,与广场景观形成对话。体块折角处底部架空形成穿越通道,将中心广场与西侧园区联系起来。靠近城市一侧的白色玻璃盒子升起,作为园区形象对外呈现。
形象
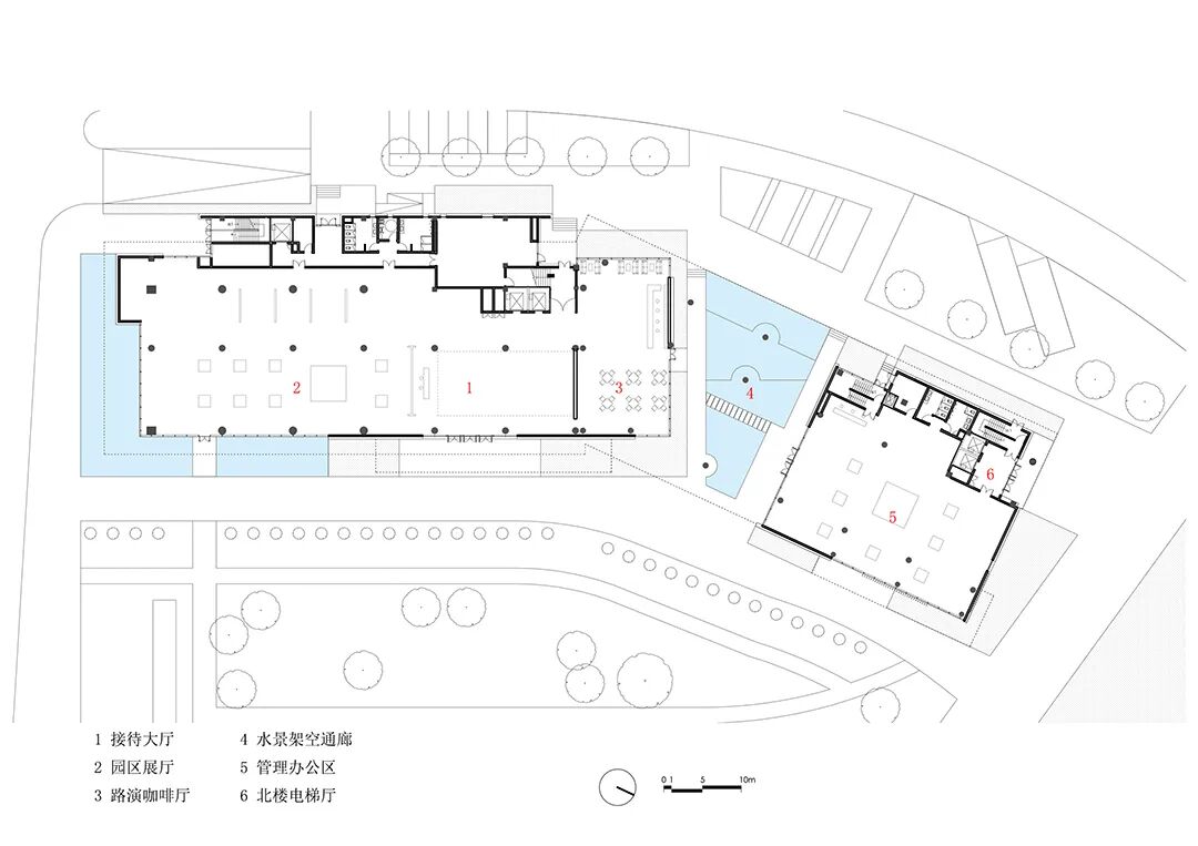
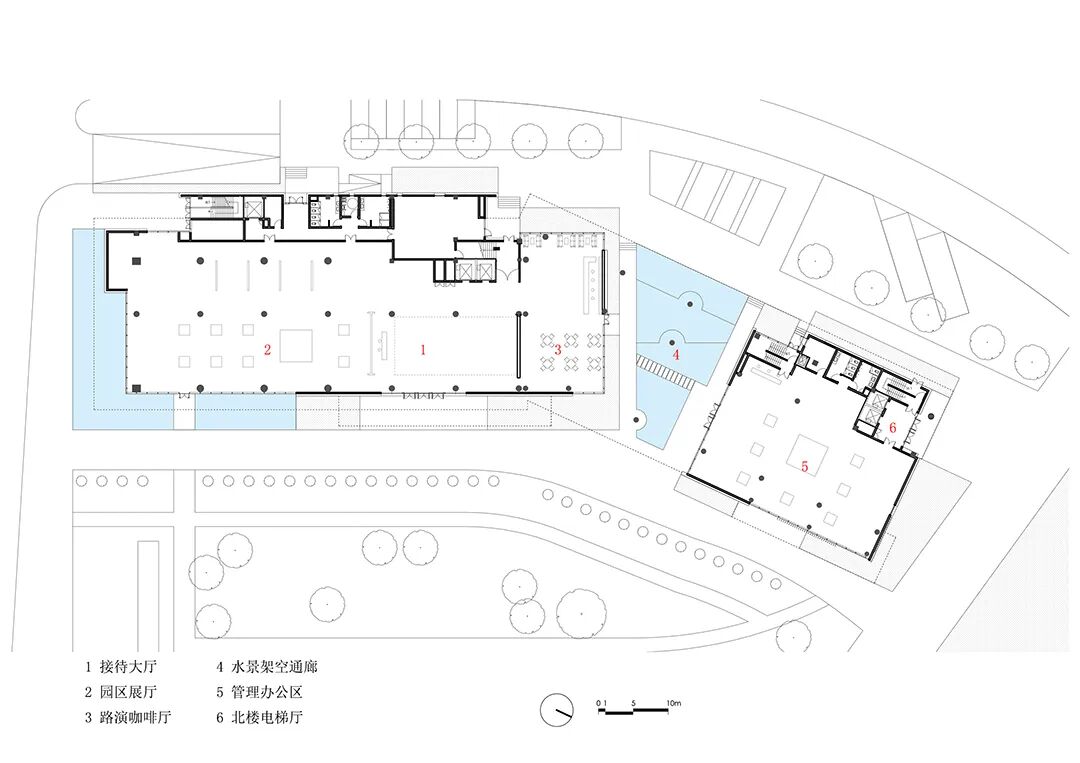
B1栋南楼承载园区的展示与大型活动的公共功能,首层设置园区展示中心与路演咖啡厅,二层为可容纳300人的多功能厅。
二层体量朝街道方向悬挑出4.5米,极简风格的白色玻璃盒子造型悬浮在城市界面上,犹如一整块纯净的晶体。日间折射云影天光,夜晚犹如熠熠生辉的晶石。
△ 悬浮在街道上的晶体
其雕塑般的体量与城市形成富有张力的对话,既具未来感与科技感,又流露出神秘气质,不仅昭示园区的高新属性,更激发人们步入其中、深入探索的欲望。
△ 从园区入口广场看
△ 朝向园区中心广场的长边
首层体量后退,采用深色的石材与玻璃,沉稳内敛,石材采用安哥拉黑黑晶石,开缝设计,于近人尺度凸显细节品质感。
△ 南楼的主入口和雨棚
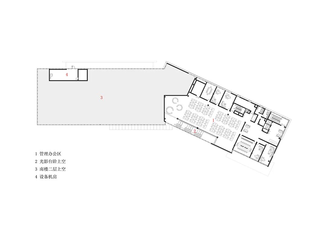
北楼容纳的功能较多,包含管理办公、小型会议、活动等各类型的园区配套服务功能。与复合功能相呼应,北楼的立面造型层次更为丰富,融合露台、挑空等空间变化。与南楼的极简造型形成调合中的对比,整体形成张力与平衡。
△ 北楼丰富的立面层次
△ 北楼中庭楼梯空间朝向园区广场
空间
开放、集约、共享
在设计早期,楼栋的内部功能还不清晰,建成使用后也可能随着园区的发展出现多种功能调整。因此内部空间设计的概念是“集约”和“开放”,目标是为园区提供最大可能性的可变空间。
平面采用"服务核+自由平面"的模块化设计,将配套功能(交通/设备/卫生间等)集中设于建筑后侧的扁长形服务核中。前侧空间开敞而流动,为未来可能入驻的展示空间,会议空间,路演空间,办公空间等等留出充足的可能性,适应不同时期的多元场景转换的需求。
联络和转化
建筑首层的退让与中段穿越通道,形成了兼具开放性与流动性的底层开放空间。围绕南楼首层及穿越通道设计水景,实现景观与建筑的交融互动。
△ 朝向广场的首层退让出空间层次
△ 水景叠落设计细节
展示与互动
南楼二层,白色玻璃盒子朝向广场的一面留出展示窗口,透明玻璃后采用LED格栅屏,实现数字内容与建筑立面的互动。便于活动展示使用。
△ 开在玻璃盒子上的展示窗口
△ 朝向中心广场展示
主入口大堂正中为两层挑空、顶部天光的明亮中庭。通向二层的直跑楼梯与天窗构成垂直光廊。
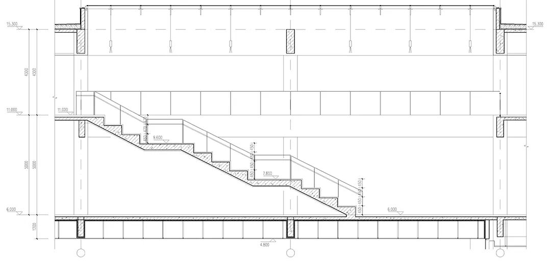
北楼二层通向三层的通高大楼梯设在朝向广场的一面,顶部与侧面均有阳光洒下,形成休息廊和交流空间。
△ 北楼的光影台阶展廊
△ 北楼光影台阶平剖面放大图
△ 北楼露台内外
材料
整体建筑外立面严格按1500mm模数进行设计,采用了一系列层次丰富的材质语言,于细节中彰显高科技产业美学的理性、精致、灵动。
从透明到朦胧,黑色到白色之间,建筑外皮通过多种材料进行呈现,包括黑色石材,复合铝板,透明玻璃,白点彩釉玻璃,LED格栅,穿孔铝板,拉丝不锈钢,铝格栅等。
南楼首层采用高透玻璃与黑色石材。玻璃展示出首层展厅的丰富内部空间,黑色石材表现底座的沉稳与精致。二层表皮采用高密彩釉玻璃,釉点尺寸与间距历经多次比选确定,最终呈现出纯净洁白的视觉效果。
△ 多种玻璃倒映天空与水面,形成细腻丰富的光影
△ 首层基座采用玻璃与黑色石材
北楼的体块与材料组成更加丰富,与内部功能的多元化相匹配。深灰色铝板、格栅、浅灰色铝板、穿孔板、格栅交错出现,形成丰富的表皮系统。
△ 材料语言
△ 北楼北入口的深色铝格栅/铝板
△ 北楼西侧的浅色铝格栅/铝板/穿孔板
技术图纸
△ 一层平面
△ 二层平面
△ 三层平面
△ 四层平面
△ 东立面图
△ 北立面图
△ 剖面图
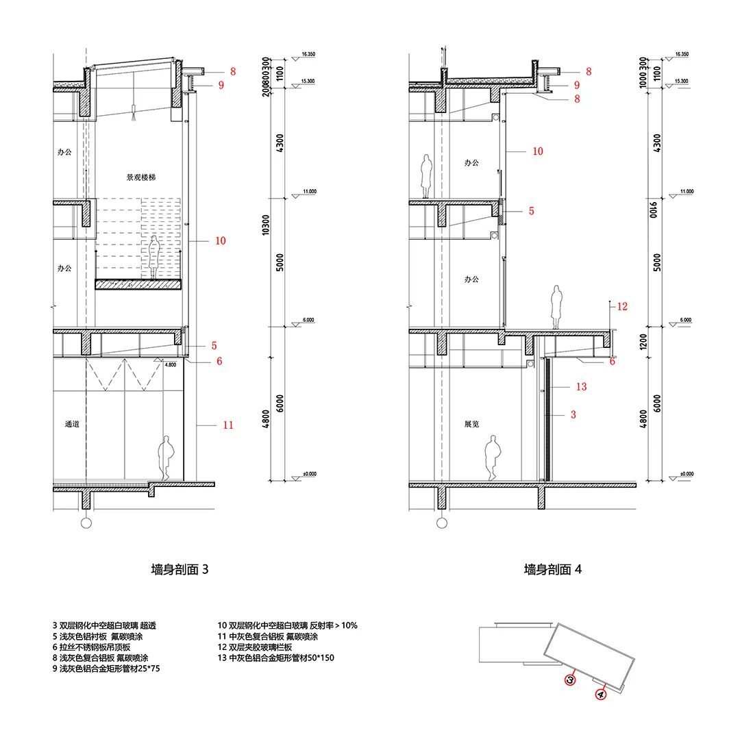
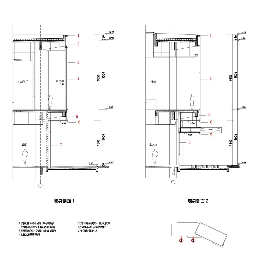
△ 墙身剖面图
______________________________________
项目名称丨光谷生物城创新园二期展厅及服务中心
项目位置丨湖北省武汉市洪山区九峰一路
建筑面积丨7132㎡
设计时间丨2019年- 2021年
建成时间丨2024年
业主单位丨武汉光谷产业园建设投资有限公司
业主团队丨张文婷、吴钰秦、李峰、陈曦阳、石力、王甜甜
建筑设计丨这方建筑师事务所
设计团队丨赵仲贵、梁智钧、周晓燕、Ekaggrat Kalsi、焦建芳、牛瑞
EPC总包丨中冶南方工程技术有限公司
施工图设计丨中冶南方建筑设计院
幕墙深化丨武汉凌宏建筑装饰工程有限公司
摄影机构丨目外摄影
洋房/叠墅/院墅/小高层
▼点击下图,了解报名
1.本平台为建筑设计技术分析,仅供欣赏学习。
2.本资料不视为要约,所有政府、政策信息均来源于官方披露信息,具体以实物、政府主管部门批准文件及买卖双方签订的商品房买卖合同约定为准。如有变化恕不另行通知。
3.因编辑需要,文字和图片无必然联系,仅供读者参考;
推荐一个
专业的地产+建筑平台
每天都有新内容
扫描二维码关注

微信公众号“搜建筑”(ID:sjz9999)
合作、宣传、投稿
联系微信:soujianzhu006


