针对铝框门柜不同搭配,此篇针对KL08铝框门带手拉柜、KL71铝框门柜、KL08带台面铝框门柜、切角书柜带铝框门KL08柜,这四种案例进行讲解、分析。
由结构图、门板图、侧视图、俯视图组成;
此款门要注意拉手位置;
由结构图、门板图、侧视图、俯视图组成;
注意KL71铝框门盖的顶板板必须是25厚,柜深要大于等于300,而且不能用在切柱柜上;
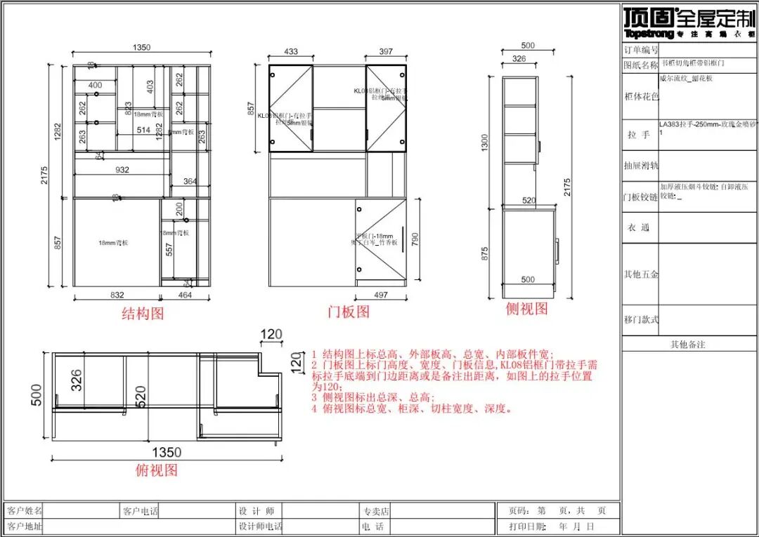
结构图、门板图、侧视图、俯视图组成;
此款门要注意拉手位置;
特别注意此种情况下有台面延伸出来,铝框门(KL08/KL71/KL01/KL76/KL91)高度下端缝减6,如两边有平板门,下边也是减6;
结构图、门板图、侧视图、俯视图组成;
KL08要注意拉手位置;
铝框门柜出图、标尺可参照以上案例,视图位置按图例上为准、视图齐全、视图大小适中,符合规范标准,图纸案例大同小异,万变不离其宗,结合实际参考案例出图。
尺寸标注总高、宽、深、结构图、门板图、俯视图,按以上例子作好标尺,保持图纸简洁化、规范化,注意方案板件颜色是否正确。
铝框门要注意门板高度减尺,拉手位置。
实际以软件操作为准,如存在问题或疑问可及时联系咨询组或相关群进行反馈解决。
电话:076022773907
企鹅:235398023

