由结构图、门板图、侧视图、俯视图组成;
此种情况可用虚拟柜、虚拟板件进行搭建柜子(虚拟的不生产),再把需要下单的部件画上去;
由结构图、门板图、侧视图、俯视图组成;
此种情况可用虚拟柜、虚拟板件进行搭建柜子(虚拟的不生产),再把需要下单的部件画上去;
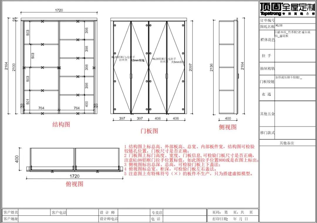
由结构图、门板图、侧视图、俯视图组成;
此种情况可用虚拟柜、虚拟板件进行搭建柜子(虚拟的不生产),再把需要下单的部件画上去;
由结构图、门板图、侧视图、俯视图组成;
注意拉手位置、顶底板厚度;
只要门/抽面/封板出图、标尺可参照以上案例,视图位置按图例上为准、视图齐全、视图大小适中,符合规范标准,图纸案例大同小异,万变不离其宗,结合实际参考案例出图。
尺寸标注总高、宽、深、结构图、门板图、俯视图,按以上例子作好标尺,保持图纸简洁化、规范化。
KL71铝框门要注意门板高度减尺,拉手位置、顶底板厚度。
实际以软件操作为准,如存在问题或疑问可及时联系咨询组或相关群进行反馈解决。
END
咨询组电话:
0760-22772651
0760-22773907

