新增补板,即补原单上不存在的板件,不按原单生产,需要修改或新增的板件;
新增补板需画图下单。
补板单和投诉单下单流程一致,仅订单类型选择不同而已,本教程衣橱通用。
补板单下单流程
一、酷家乐后台找到原单方案并复制
注意:副本方案的名称最后会有“副本”二字。


二、DSM系统原单客户绑定酷家乐方案副本
打开DSM系统进入客户管理,找到原单客户,绑定上一步复制的原单方案副本。

接着点击“打开方案”按钮进入酷家乐,此时浏览器会自动打开酷家乐方案。
注意:必须通过DSM系统打开酷家乐方案,否则DSM系统创建订单无方案勾选或提交订单是弹出未绑定方案报错提示。

三、酷家乐画补板方案、检测、组合、出图、存档、创建酷家乐提审单并提审
本节操作流程同零售单下单流程一致。
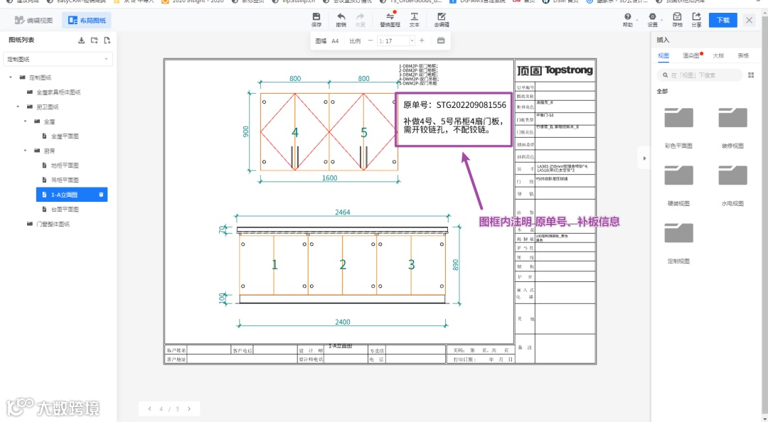
注意:出图时,需在图框内注明原单号、补板下单信息。

四、DSM系统创建订单
返回DSM系统进入客户管理,找到原单客户创建订单,订单类型选“投诉补板”或“补板订单”,并填写原单号。

五、DSM系统提交订单
进入DSM系统订单管理,在订单列表中找到上一步创建的补板或投诉单,提交订单。
注意:提交订单前,建议首先查看订单附件里的补板单图纸内容是否无误,确认无误再提交订单。

特殊说明:投诉订单的excel表格需点击[修改]按钮,手动上传到订单附件中,如下图所示。

常见问题
Q:是否可以直接打开原单方案画补板,创建补板单?
A:可以。但补板不能直接在原单柜体上添加或修改,因为模型为锁定状态 不可编辑,补板需另画于房间空地上;然后检测、出图、创建提审单;最后DSM系统创建补板单并提交订单。

