❂ 1.前言
为满足终端异型设计和下单需求,我司基于酷家乐平台自主开发的“板件异型编辑器”小程序上线啦!~!板件异型编辑器可辅助设计快速完成非标铣型板件设计出图,并且能够直接对接下单生产,具体使用说明详见下述内容。
--------工艺信息中心编制
❂ 2.功能介绍
2.1.小程序入口
点击酷家乐设计场景顶部菜单栏小程序按钮,在下拉选项中选择点击“板件异型编辑器”,即可打开“板件异型编辑器”小程序界面(如下图)。

2.2.小程序界面介绍
板件异型编辑器小程序界面由:获取板件参数按钮、板件名称、板件轮廓、板件参数、异型参数、异型列表、查看帮助按钮共7个部分组成。
2.2.1.获取板件参数按钮
获取板件参数按钮:用于获取当前选中板件的参数信息,要在板件上进行异型编辑必须先在组件模式下选中板件,然后点击获取板件参数按钮,获取成功后方能进行异型编辑。
①当未选择任何模型时,打开小程序后的显示界面,此时无法进行异型编辑(如图一)。 
(图一)
②当在整体模式下选择柜体时,打开小程序后的显示界面,此时无法进行异型编辑(如图二)。 
(图二)
③当在组件模式下选择板件时,打开小程序后的显示界面,此时可以进行异型编辑(如图三)。

(图三)
2.2.2.板件名称
板件名称:显示当前获取的板件的模型名称,此名称和当前选中的板件右侧显示的模型名称一致(如下图)。可用于检验当前板件参数与所选板件是否一致。

2.2.3.板件轮廓
板件轮廓:显示当前获取的板件尺寸和基准原点参照图,方便理解对照。
①横向板件:顶板、底板、层板等横向垂直于墙面类的板件。
横向板件坐标原点固定为板件左前顶点。



②竖向板件:侧板、中竖板等竖向垂直于地面类的板件。
竖向板件坐标原点为板件前下顶点。



③背向板件:背板、护墙板等表面贴着墙面类的板件。
背向板件坐标原点为板件右下顶点。


2.2.4.板件参数
板件参数:显示当前获取的板件名称和尺寸信息,此信息和当前选中的板件右侧显示的信息一致(如下图)。可用于检验当前板件参数与所选板件是否一致。

板件参数的长度L/宽度W与板件轮廓图示上标注的长度L/宽度W相对应。厚度D为板件厚度不可改。

2.2.5.异型参数
异型参数:显示当前小程序可编辑的异型类型以及需要填写的异型参数,目前仅支持矩形和圆形两种异型结构。
a.矩形:可支持板件内部矩形和板件贴边矩形两种样式(如下图),矩形距离板件四边最小距离为≥80,设计贴边时距离可为0。

矩形尺寸:
①长度L1/宽度W1:允许设计最小尺寸为≥120,最大值随板件尺寸变化而变化;
②长度L1对应板件长度L,宽度W1对应板件宽度W,具体可参照
2.2.3.板件轮廓 图示说明;
异型位置:
①X轴坐标:最小距边值为≥80,最大值随板件尺寸和长度L1变化而变化;当矩形设计为板件贴边样式时,可等于0或者L-L1;
②Y轴坐标:最小距边值为≥80,最大值随板件尺寸和宽度W1变化而变化;当矩形设计为板件贴边样式时,可等于0或者W-W1;
b.圆形:仅支持板件内部倒圆一种样式(如下图),圆形距板件四边最小距离为≥80,不可贴边。

圆形尺寸:
①直径Φ:允许设计最小尺寸为50,尺寸按50倍数递增在下拉框进行选择,最大值随板件尺寸变化而变化;
异型位置:
①X轴坐标:最小距边值为≥80,最大值随板件尺寸和长度L1/宽度W1变化而变化;不可等于0或者L-Φ;
②Y轴坐标:最小距边值为≥80,最大值随板件尺寸和长度L1/宽度W1变化而变化;不可等于0或者W-Φ;
2.2.6. 异型列表
异型列表:显示当前获取的板件已通过小程序生成的异型孔洞信息,此处显示的尺寸位置信息为生成时填入异型参数的信息。可点击对应孔洞右侧叉号删除已生成的孔洞(如下图)。

2.2.7. 查看帮助按钮
查看帮助按钮:点击即可跳转获取小程序在线文档教程,可在文档左侧目录快速查看相关内容(如下图)。


❂ 3.操作流程
3.1.获取板件参数
①按Tab键切换到组件模式;
②点击鼠标左键选择需要挖孔的板件;
③鼠标左键点击“获取板件参数”按钮;

④获取成功,则参数面板显示板件相关信息。

3.2.异型孔洞生成
①在成功获取板件参数的前提下,鼠标左键点击选择异型类型,如:矩形;
②输入异型尺寸,如:矩形长度L1=120,宽度W1=120;
③输入异型位置,如:X轴坐标=80,Y轴坐标=80;
④点击生成按钮;

⑤生成成功,则场景和异型列表显示已生成的孔洞信息。
⑥孔洞为透明状态,可以在设计场景或效果图中清晰透过孔洞看到内部结构。

3.3.异型孔洞删除
①在成功获取板件参数的前提下,鼠标左键点击异型列表对应孔洞右侧删除按钮;

②删除成功,则场景和异型列表显示已删除原先生成的孔洞信息;
③当存在多个孔洞需要删除时,点击删除按钮逐个删除即可,删除后不能撤回,只能重新添加;
④注意编辑过的板件删除孔洞后依然无法修改板件尺寸,若需要修改请重画。

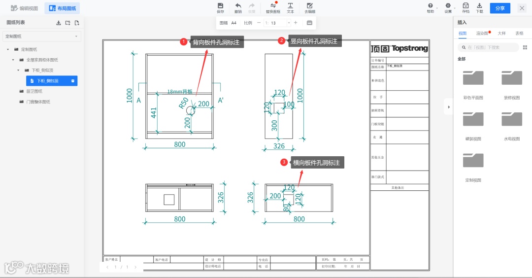
3.4.异型板出图标注
小程序编辑后的异型板需在施工图出图时进行孔洞尺寸和位置标注,标注要求清晰明确,当板件被遮挡时可通过剖视工具生成结构图进行标注(如下图)。 

❂ 4.下单前必看
1.板件内部矩形挖洞、圆形挖孔,默认不封边。如需封边,请在图纸上备注说明。(注:当孔洞长/宽/直径<120时无法进行封边)
2.小程序生成孔洞后的板件无法再二次修改尺寸,若违规操作将导致生产数据错误,请谨慎操作!!!(此问题为酷家乐功能暂不支持,后续优化后将另行通知)
若生成孔洞后仍需修改板件尺寸,需删除板件后重新放置板件,调整尺寸后再添加生成孔洞

3.分段背板无法生成孔洞,请规避此类操作!!!(分段背板属于一个模块有两块板,小程序无法识别孔洞具体在哪块板上,生成会导致数据错误,且效果上只有孔洞轮廓显示实际挖孔并未成功)
❂ 5.常见问题解答
5.1.小程序可编辑板件范围?
答:可编辑范围包括:墙板(除:格栅护墙)、封板(自定义封板)、台面、所有柜体板(除:系列柜体板(梦/都市新贵系列)、8mm背板、18mm分段背板、脚条、切柱支撑板、加固条);其次,不能使用“板件异形编辑器”小程序的板件,是无法获取板件参数的。

5.2.小程序常见报错有哪些?
答:①请在组件模式下选中板件后重新获取,如下图:

②该板件不在配置规则中,如下图: 
③异型板件大小不在匹配范围内,如下图:

5.3. 孔洞深度是否允许编辑?
答:不允许,孔洞深度和板件厚度保持一致,不可编辑。
5.4. 板件是否允许生成多个孔洞?
答:允许,第一个异型生成成功且异型列表已更新对应孔洞信息后,可继续设置第二个异型孔洞的参数,然后继续点击“生成”按钮,板件上即显示第二个孔洞生成成功(如下图)。

5.5. 是否需要提交非标工艺审批?
答:不需要,使用“板件异型编辑器”小程序编辑的异型板,属于免审非标板件范围,无需额外提交非标工艺审批,经销商需知悉并承担相应非标风险。
5.6.异型参数极限尺寸如何计算?
1.板内矩形挖洞极限尺寸计算公式,如下:
设:板件长度为L,板件宽度为W,矩形X轴坐标值为X,矩形Y轴坐标值为Y;
则:X≠0且X≠L-L1且Y≠0且Y≠W-W1;
矩形长度L1可设计范围为:120≤L1≤L-X-80;
矩形宽度W1可设计范围为:120≤W1≤W-Y-80;
矩形X轴坐标可设计范围为:80≤X≤L-L1-80;
矩形Y轴坐标可设计范围为:80≤Y≤W-W1-80;
2.板件贴边矩形切角极限尺寸计算公式,如下:
设:板件长度为L,板件宽度为W,矩形X轴坐标值为X,矩形Y轴坐标值为Y;
则:①当贴边方向为长度L方向时,Y=0或Y=W-W1;
矩形长度L1可设计范围为:120≤L1≤L-X-80;
矩形宽度W1可设计范围为:120≤W1≤W-80*2;
矩形X轴坐标可设计范围为:80≤X≤L-80;
矩形Y轴坐标可设计范围为:Y=0或Y=W-W1;
②当贴边方向为宽度W方向时,X=0或X=L-L1;
矩形长度L1可设计范围为:120≤L1≤L-80*2;
矩形宽度W1可设计范围为:120≤W1≤W-Y-80;
矩形X轴坐标可设计范围为:X=0或X=L-L1;
矩形Y轴坐标可设计范围为:80≤Y≤W-80*2;
3.板内圆形挖孔极限尺寸计算公式,如下:
设:板件长度为L,板件宽度为W,圆形X轴坐标值为X,圆形Y轴坐标值为Y;
则:①当L-X-80≤W-Y-80时,
圆形直径Φ可设计范围为:50≤Φ≤L-X-80且Φ=50*n(0<n≤10,出线盒孔直径60除外);
圆形X轴坐标可设计范围为:80≤X≤L-Φ-80;
圆形Y轴坐标可设计范围为:80≤Y≤W-Φ-80;
②当L-X-80>W-Y-80时,
圆形直径Φ可设计范围为:50≤Φ≤W-Y-80且Φ=50*n(0<n≤10,出线盒孔直径60除外);
圆形X轴坐标可设计范围为:80≤X≤L-Φ-80;
圆形Y轴坐标可设计范围为:80≤Y≤W-Φ-80;
❂ 6.意见和反馈
我们由衷的希望所有使用此小程序的人,能够给予我们更多真实的建议和反馈,以帮助我们更好的完善小程序的功能。虽然我们可能无法第一时间回复或解决所有的问题,但我们仍将会认真审阅每一份建议和反馈,并考虑在未来逐步实现。
欢迎大家扫描下方二维码进行填写和反馈:


