地库坡道曲线缓坡,你用过吗?
文/张爱新
地库坡道起止位置需要设置缓坡,避免磕碰汽车底盘。而设计规范对于汽车缓坡的做法有两种:直线缓坡和曲线缓坡。达到的目的是一样的。
其中直线缓坡我们常用,曲线缓坡我相信都很少用,也不是竖向曲面难施工的问题,而是也没必要这么做。但有的时候,我们的坡道长度通过直线缓坡计算出来后,就差一点点尺寸,不太够,难道我们就要放弃方案吗?这时候可以通过曲线缓坡解决。
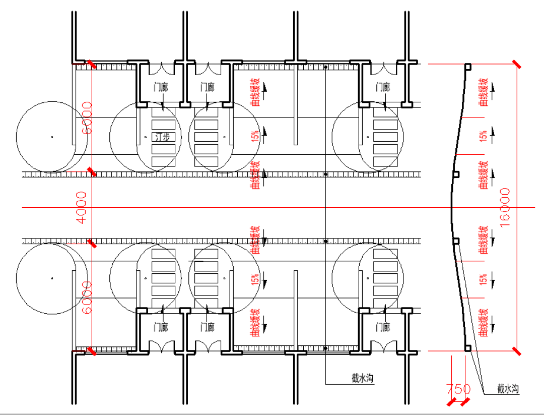
上图是两种缓坡方式的剖面放样,参数是:层高3700;主体坡度15%;直线缓坡坡度7.5%;曲线缓坡半径20米(最小值)。比较下来,曲线缓坡可以节省坡道长度617,这个差并不大,但对于仅差一点点尺寸的情况就会发挥作用,这种情况会有的。同时曲线缓坡,是从0%到15%的坡度逐渐加大的一个过程,所以起坡点并没有明显的转折线,如果从0%~3%,我们认为相当于是平面的话,那么每个缓坡段还有600可用,所有节省的尺寸加起来就是1817了。这个尺寸就很可观了。
但不管怎么说,采用曲线缓坡都是在没有办法的时候,又不想放弃方案前提下采用的措施,属于非常规措施。实际上规范规定的直线缓坡坡度不大于正常坡度的1/2,这个限制有点死板,如果仅是防止地盘的磕碰,这个坡度是否可以适当放大?从原理出发,这个坡度一般跟汽车三个原始参数有关,接近角、离去角、通过角。不同的车这个参数各不相同,相信规范已经考虑了非常极端的参数,都不会有问题。
下面我们介绍一个利用曲线缓坡解决一个疑难杂症的案例,这个案例我觉得不应成为可复制的方案,只是被动解决问题的一个过程,最终问题勉强被解决,所以拿出来分享一下。这个案例是联排别墅,没有设置集中车库,在自己家的地下室设置私有车库,这个做法问题很多,跟坡道有关的问题是两个:1、下地库坡道长度一般不会太长,约6米左右;2、按照第一条,地库埋深只能做到600,就是6米的10%,不用设缓坡,也设不出缓坡。如果车库净高实现2.2米,板厚加面层即使是150(板厚100,面层50,边梁上翻),那么正负零露出地面的高度也在1.75米,而本项目地方规定要求是不大于1.5米。 常规这类方案采用微地形方式,把车库入口一段地势做低,另一侧入口做高,但这个项目不行,受着地方规定限制。这个问题直接影响这个方案是否成立的问题。目前只能背水一战了。

//
*版权说明*
编辑丨林夕
图文仅供分享
如涉版权侵删歉
/ 《新智建筑学堂》近期课程 /
感谢看到最后,

