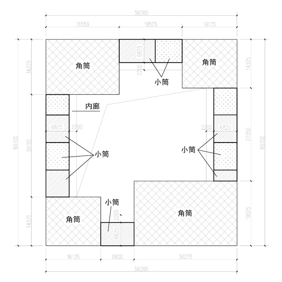
启迪设计为越洋集团设计的全新超高层办公及商业项目——昆山A-15地块项目已于2020年顺利通过各项验收,现已投入使用。项目位于昆山花桥的核心区,从有花桥“陆家嘴”之称的花桥国际商务中心拔地而起,简洁大气的玻璃幕墙与周边建筑景观融为一体。
△施工过程中
供稿:建筑三院
品牌部综合编辑


启迪设计集团
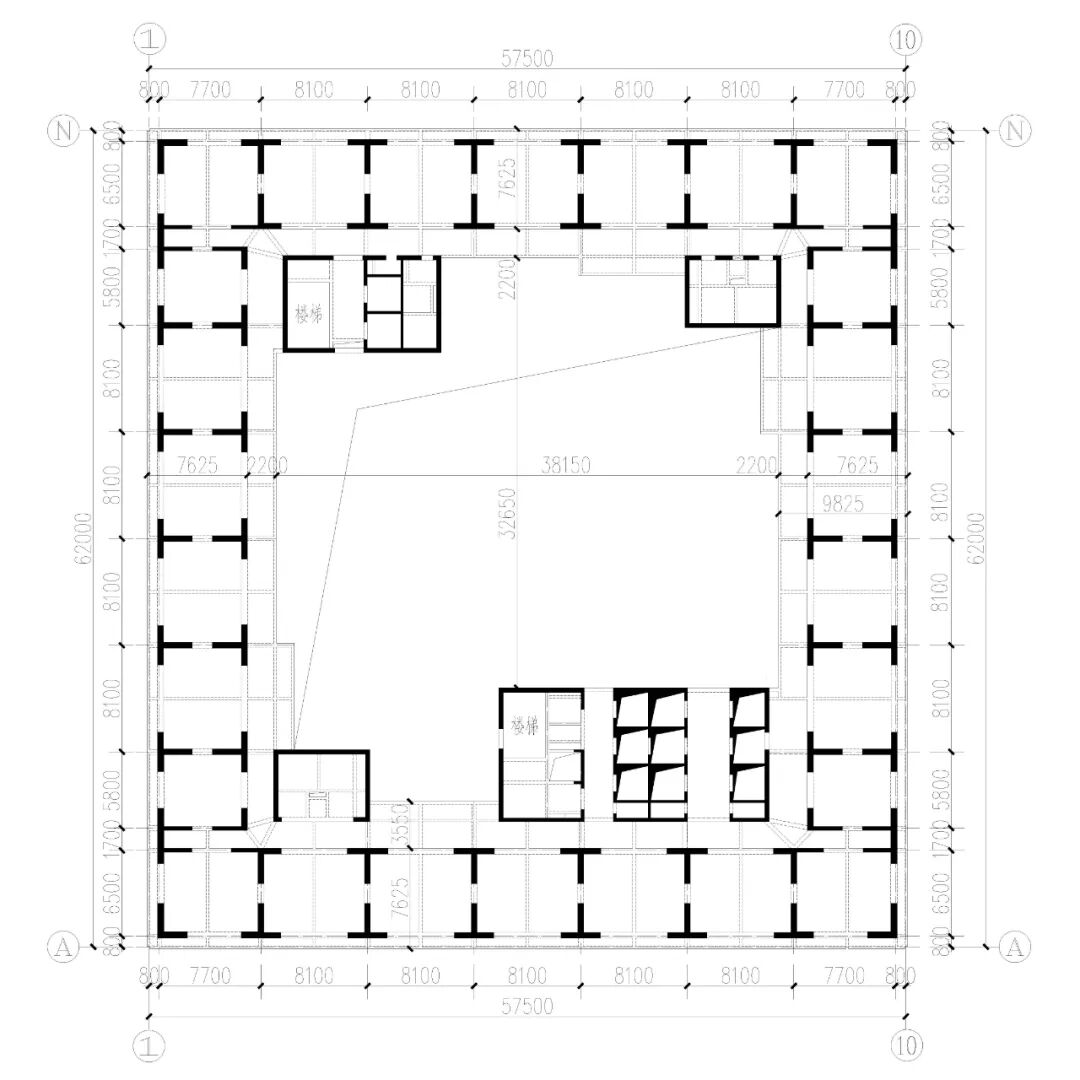
启迪设计为越洋集团设计的全新超高层办公及商业项目——昆山A-15地块项目已于2020年顺利通过各项验收,现已投入使用。项目位于昆山花桥的核心区,从有花桥“陆家嘴”之称的花桥国际商务中心拔地而起,简洁大气的玻璃幕墙与周边建筑景观融为一体。
△施工过程中
供稿:建筑三院
品牌部综合编辑

