建筑的更新改造如同岁月在土地上的某种循环,让人们能触摸到土地因为时间而产生的变化。
项目位于江苏省盐城市响水县。该项目是启迪设计集团在长江以北的首例城市更新类EPC总承包工程。作为施工设计一体化的先行者,我司充分发挥自身优势,强化设计在总承包中的主导作用,凭借高标准、高水平的技术与管理推进项目的顺利实施,打造高品质精品工程。
酒店原工程建成于2016年,地上既有建筑面积约3.6万平方,地下既有建筑面积约0.14万平方,改造后地上总建筑面积约4.3万平方米,共195间客房。随着响水县陈家港镇经济的日益繁荣,酒店原服务功能已不能满足接待、度假及会议等需求,对原酒店进行的升级改造迫在眉睫。

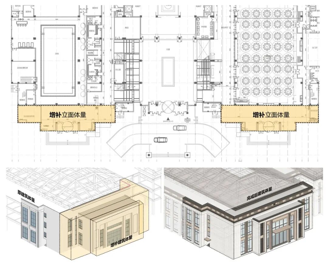
设计首先针对基础项目概况做了深入挖掘。既有建筑主要包含两栋主体建筑,分别是客房楼与裙房,两者相对孤立,仅靠一条狭窄的通道相连,两个体块脱节较严重。
原有功能体量难以支持当下宾客多样的入住与宴请要求,所以重新整合功能,调整体块,组织流线是本设计的先行之需。针对原建筑的既有缺陷,本设计置入新功能,一方面完善日常用餐需求,一方面强化客房楼与裙楼的联系。
在入口方面,考虑到建筑一层南北方向为两个人员密集型功能,现有体量缺少足够的前场缓冲空间和服务空间,本设计在建筑东侧各增加一段建筑体量,扩大密集人员的入场空间,也为今后各功能单独运营,统一管理打好基础。
通过完善建筑体量,合理安排建筑功能等手段,新的酒店内部浑然一体,出入口各司其职,整个酒店高效全能,从容地服务各种访客及活动。内部形象的塑造主要从灌河文化缘起,通过天花、材质和富有变化的东方韵律在内部空间上的演绎,营造一个具有花园品质,沉稳奢华的酒店。
大堂吧与室外庭院形成了对视关系,内部硬朗,线条分明的空间限定与庭院柔美的自然景观呼应,海港的柔美顺着枝头的树叶透过玻璃向室内缓缓地渗透。
始于风格,终于细部,将石材、铝板等材料配合表达,全力实现现代东方美学的极致演绎。通过现代的材料,体现出传统中式风格的丰富内在,成了本项目的重点。结合既有建筑的结构现状,本设计在改造策略、节点细部设计均引入了精细化设计的理念。
“删” 去原来结构的琐碎体量。部分细碎的构件使得建筑立面繁杂,建筑体量不纯粹,无法将这个建筑统一组织成为庄重整体的体量,删去这些构件,使得建筑整体风格统一,利于立面元素的重新组织。
“焕”新立面风格。在拆除立面外包材质、门窗及屋面材质后,本方案对建筑立面重新设计,采用干挂石材、节能门窗等手段对酒店立面重新包裹,通过不同材质的表达,营造现代东方的立面形式。
通过整体的材质更新和颜色调配,建筑脱离原来沉闷风格,屋面选择了现代材料和构造方式,对传统造型进行提炼,檐口工整统一,竖向线条苍劲有力,这些是混凝土或者瓦材等传统材料无法实现的。在陈家港镇宽阔的城市视野中,整体形象跃入佳境,代表了全新的城市形象。
入口雨棚细节构造是精细化设计的完美呈现,中轴线上的金属线条配合代表东方传统藻井的灯光花格,如同一条暖色系的迎宾之路,正在向来者招手。两侧由坚强有力的石材支撑,细腻与粗糙,横向与竖向,形成了精致恢宏的入口序章。

金属、玻璃与石材三种材料分别提供了不同的材质感受。浅灰色的铝镁屋面板,首当其冲地勾勒出了建筑的竖向经度。屋面向水平方向延伸,铝板线脚开启了饱含稳重与庄严的立面,最终经由石材将建筑的力量传导至金属勒脚,完成雄浑一体的上下传递。
同种色系的不同材质,在整个建筑上和谐得像一幅漫不经心却又处处蕴含“心机”的现代中式工笔画。天然石材如同是自带纹理的宣纸,金属竖向门窗与横向金属线脚共同形成了画中的浓墨重彩,材质勾缝、玻璃与门窗细部杆件,则是纸上飞墨,形成了衔接黑白之间的柔婉之灰。
如同果实的孕育,需要时间、空气和阳光的共同作用,那么精细的建筑节点从设计到落位,便是时间固化在这片土地上的最好证明。我们从施工伊始,便开始严格把控材料的选样与现场立面定样,与施工单位共同搭建1:1的立面小样,以现场实际建造的效果为依据,反复调整立面细节设计,严控立面材质拼接工艺,最终实现图纸绘制与现场实际的精准呼应。
通过对原有建筑构造的仔细分析,各专业设计人员与施工人员反复讨论,最终确定具有施工可行性的立面细部设计方案,节点不仅仅停于纸上,更行于现实。
原有立面较平且尺度较大,本方案用横向多层次的铝材将立面进行一次限定,继而在各个部分中采用花格、玻璃和石材等手法,营造出光滑、透明、粗糙三种不同的质感体验,以同色系的不同材质相互配合,形成尺度宜人,充满奇妙触感的立面。
书香花园酒店以山水为精神载体,现代造园为表现手法,打造出一个以自然山水为基调的东方意境。
酒店大堂前采用中轴对称式格局,平桥两侧序列感的栏杆,中间延伸感的带状花坛,通过韵律与节奏之美营造迎宾的礼仪感。大堂前的花坛灵感来自盆景,通过植物与景石组合,勾勒出一池三山的气势,组合成天然画卷,展现出源于自然高于自然的艺术效果。主入口笔直的流线似一幅长长的画卷,花的缤纷,水的气息,花园酒店的园林景观在眼前缓缓展开。
酒店入口景观
步入中庭,绿意环绕,瞬间仿佛置身于苏式园林。园内水池居中,太湖石围合,六角亭作为整个轴线的视觉焦点三面环水伫立其中,水瀑的自然之音令人忘却外街的噪音,感受更加静谧的空间氛围。精心搭配的植物疏密有致寓意深远。伴着和煦的阳光,走进江南园林,观红枫小蜡,临风赏明月,感受苏式古典园林的独特韵味。
景观试图用自然融合的态度将种类丰富的植物、景石、道路相互嵌合,绿意延绵在青草地上,季节的界限模糊在花径之中,花朵带来令人喜悦的色彩与芬芳。酒店花园中充满着绿色与生机,通过细节质感和空间氛围,唤起人们视、听、触觉和内心的连锁反应,为忙碌的心寻得一处清幽之地。
既有建筑改造,其根本目的是让旧的建筑能适应新的服务需求。往往需要各专业相互配合,综合研判项目的特殊性,从项目未来的实际服务需求出发,既要给建筑细腻精准地“穿新衣”,也要充满勇气将功能体量“大挪移”。从功能、审美、造价、工期等多方面入手,使用切实可行的改造策略,让老旧的建筑跟上经济发展的步伐,焕发新的生命。
项目名称:兴海花园大酒店改造工程
项目地址:盐城市响水县陈家港镇
建筑性质:酒店
建成时间:2022年11月
用地面积:21339㎡
建筑面积:43324㎡
业主单位:响水县山海文旅有限公司
EPC总承包单位:启迪设计集团股份有限公司
建筑专业:陈君、许迎、朱一帆、欧阳楠、徐程、陆蕴华、倪凌
结构专业:李烽清、张超、叶永毅、谭骞、王桢希、卞克俭、赵作锋、朱少平
机电专业:王海港、马琦、张道光、汤若飞、孙云鹏、陈东志、吕波、尤俊杰、祝合虎、钱林、王永哲、张哲、刘井洋、王华清、吴垚、孙光、李淑娴
景观专业:王文才、刘康礼、张正海、刘晓旭、陈池、任禹豫、张怡、李虓、汪军剑、鲍永佳、陈大伟、付光
泛光专业:石坤,戴洪芳,姜涵腾,吴娟娟
施工单位:浙江亚厦装饰股份有限公司
工程管理:李兴国、田天生、崔华久