
日前,距离墨尔本市中心正东3公里的内城区新盘Park House刚出台 最新 的开发商佣金激励( 高出市场20-30%的佣金 ),刚从大陆飞去澳洲看房的客户华先生立马就预定了一套价值$1,050,000澳币(约合530万人民币)的高层河景公寓。

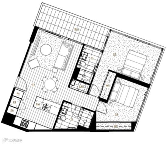
这套2卧2卫总面积83平方米(实际使用面积,等同中国的建筑面积单位110平方米)的公寓位于B栋8楼,东北朝向(南半球澳洲最好的朝向),既能享受一年四季充足的阳光,冬暖夏凉,更能饱览环绕流经的亚拉河和对岸郁郁葱葱的公园绿地和高尔夫球场。

华先生来自国内,当问及为什么选中这个楼盘这个户型时,他表示:“来澳洲主要考虑的是生活方式,希望看见更多的自然景观和绿地,但是呢又不希望距离市中心太远,毕竟需要考虑生活的便利性。”。参观这个楼盘时,就觉得几乎满足他所有的要求:
距市中心仅3公里,出门楼下就是电车站,随时进城感受都市活力
于自家阳台上就能欣赏墨尔本近郊的公园绿地、河流、吊桥,踩上自行车就能去踏青
出门向右5公里是大学校园区;出门向左3公里是顶级私立中学区,长远来看对未来安排孩子入学也很有利
楼盘背靠大型商场Victoria Garden,里面有宜家家居,电影院,购物安置家居似乎不能更便利了
步行穿过一个红绿灯就是Richmond有名的餐饮一条街,可以随时出门尝尝墨尔本这个移民城市的多国风味

华先生还提到,真正打动他和太太的是楼盘本身的品质和内饰。虽然500多万人民币也不算巨款,并不指望购买豪宅,但是参观完工地旁边的样板房后,夫妇俩觉得所有的内装修品质还真不输豪宅:
实木硬木地板,天然环保;
衣帽柜,储物柜等储藏空间充裕;
厨房的灶台、洗碗机都是德国进口最高端品牌,石质花纹料理台,高端大气;
双层玻璃门窗,既保暖隔热,又隔音。
除此之外,健身房泳池这些倒不在华先生夫妇的考量范围之内,因为也看了不少楼盘,这些配套大家都有,但是没想到在Park House开发商还能想到造一个儿童游乐中心,比邻住家的公用图书馆、会客室和影院,这点对于有孩子的家庭显得十分贴心。总之,用华先生的原话说:“细节之处才能看出开发商的用心和楼盘的品质定位。”

由于楼盘已经开工建设,将于2019年底完工入住。但华先生暂时还没有决定下一步是自住还是出租,不过笑言:反正开发商有5%的包租回报12个月,没准先收个几万澳币的租金(约合人民币20多万)当个包租公,稍后再做打算。
华先生坐收20几万人民币一年的租金收入,并坐拥未来若干年稳定的物业升值;而中介一单业务笑纳5-6万澳币佣金,多么皆大欢喜的结局。
Park House现已开工,预计2019年年底交房。目前销售尾期,可售户型有限,多项优惠最后期限,不容错过:

中介享受高出市场20-30%的佣金
详情请垂询InvestoristVIP团队
买家享受12个月的5% 租金回报,2019年竣工交房后即生效;
免费升级部分窗帘厨卫卧室内饰和配套设施
详情请垂询Investorist VIP团队
针对符合FIRB规定的海外买家所面临的贷款需求,开发商更提供海外贷款解决方案,可贷6成,低至4.9%的年利,仅需$6500 澳币的贷款申请费。
详情请垂询Investorist VIP团队,尤其是佣金方案和时间期限


关于InvestoristVIP服务
我们是一家互联网公司,是全球最大的B2B期房交易平台,不参与海外房产项目的交易和佣金,我们关注的是平台的流量,用户的体验以及服务水平。
强大的地接!提前预约,开发商当地团队将提供中文接待看房的服务,大大减少客户流失,甚至可能在海外成单
高佣金!直接与开发商签代理合同
高效率!全程协助成单,提高转化率(investorist网站+销控表实时更新+项目培训+活动支持+物料供给等)
沟通零时差!关于项目的任何问题及时反馈!(让买房客户感受你的专业)
语言零障碍!项目资料和售前售中售后沟通都可以使用中文!

请关注我们的服务号


