
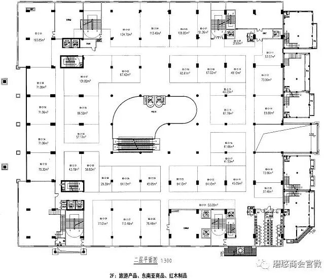
磨丁特区传来喜讯,免税店附近东南亚商城即将开幕,现在开始抢订一楼和二楼出租铺面。有需要在磨丁围网区,保税区内开店卖中国、泰国、老挝、越南、缅甸等周边国家百货,特产的商家,请马上与磨憨商会联系和登记。房租价格低,还有免租期,商场内面积可随意分割及自定装修风格。




红框内是东南亚商城位置


磨憨~磨丁围网工程已经开始,未来的免税区就是特区中的特区,特别是老挝磨丁部分将成为自由港,购物娱乐的天堂!你在边境做零售生意的人如果没有进入这栋专区内开店,那就是这辈子等于白来了磨憨勐腊,失去这个机会将后悔莫及!
联系方式:18988196829(微信同步),地址:磨憨商会中老泰敢摆场商会办公室。赶紧登记商铺面积,租完为止。
磨憨商会办公室电话:0691-8812138
友情提醒:边境发展找项目,找机会,就找磨憨商会.我们手里有大量的投资发展资源,有通往一带一路美好的合作前景!
【支持与协助】
磨憨商会官网http://www.mohan21.com
云南磨商传媒有限公司
西双版纳富荣人力资源有限公司
勐腊县磨憨民营经济服务中心
共青团磨憨商会总支委员会
勐腊县磨憨商会人民调解委员会
共青团磨憨经济开发区青年之家
中国.老挝生态古树茶研究中心
勐腊(磨憨)试验区物流报关协会
END
如果你喜欢这篇文章,请转发分享
也许你的朋友圈正需要这样的信息
本期编辑:任天涯、黄卫、段金梅

原创:中国工商联勐腊县磨憨商会
中国老挝磨憨-磨丁经济合作区
唯一拥有社会团体法人资格的【官方】商会组织

商会办公地址:
云南省西双版纳州勐腊县磨憨中老泰赶摆场内
邮编:666308 座机电话:0690-8812138
商会负责人电话:
执委会手机号:18988196829 (会长 任存章)
执委会手机号:13988123490 (常务副会长 程根富)
执委会手机号:13759099952 (秘书长 宋春)
办公室手机号:13170545148 (主任 张荣华)
团总支手机号:18988196289 (书记 詹金丽)

磨憨商会官方网站http://www.mohan21.com
团结 | 奉献 | 创新 | 发展
整合资源 携手同进
聚天下贤才 展千秋伟业
商.赢天下 会.聚梦想
走出去 引进来
商会办公微信

欢迎投稿
投稿:18988196829(微信)
链接商会与世界

