翻译自warship-1992年期
由于1905年对俄战争中的主力舰损失,日本催生了一种强大的混合舰型,它兼具装甲巡洋舰的速度与防护,同时拥有战列舰级别的主炮武装。尽管几乎在"无畏"舰问世后便立即过时,但回溯历史,它们被视为战列巡洋舰的先驱。这四艘舰船中,其一是日本建造的首艘主力舰,另一艘则是日本首艘配备涡轮推进系统的战舰,因此它们是日本造船工业走向独立的重要阶梯。本文中,伊谷二郎、汉斯·伦格勒和莱姆-高原子概述了这一雄心勃勃的计划所遭遇的难题。
从多个角度来看,日本装甲巡洋舰筑波、生驹、鞍马和伊吹在日本军舰建造史上具有极其重要的意义。筑波是首艘国产主力舰,尽管其尺寸约为当时日本船厂所建最大军舰的三倍,并且其建造者吴海军工厂此前完成的最大舰船排水量也仅约为其四分之一,但它的建造周期却惊人地缩短至两年。
其基本设计理念包含若干突出特点,其中最不寻常的是融合了战列舰与巡洋舰的特性。同时代的装甲巡洋舰通常配备四门20厘米(8英寸)火炮,但筑波级却搭载了四门30.5厘米(12英寸)火炮,这使它们成为首批配备战列舰级别武器的巡洋舰。因此,筑波和生驹是几年后英国"无敌"号问世的战列巡洋舰的鼻祖。
海军军令部要求对装甲巡洋舰设计进行根本性的重新思考,这催生了一些新颖特征,例如取消撞角、在桅杆上设置战斗桅盘、以及机舱内的纵向隔板,同时也带来了若干改进,如更好的适航性、改善的居住性和缩减的上层建筑。当然,在船体建造以及发动机、武器和装甲板的生产过程中出现了许多困难,更不用说熟练工人的短缺。所有这些问题都得到了或多或少的满意解决,筑波号的建成证明了日本在过去十年间军舰建造所取得的非凡进步。这也是日本军舰建造将在几年内实现独立的明确标志。
后续级别最初计划为同型舰,但由于有关英国新军舰建造的传闻,设计被彻底改变,引入了20厘米(8英寸)中间口径火炮。因此,其舷侧火力变为四门30.5厘米和四门20厘米火炮。另一个特点是鞍马号采用了三脚桅,但更引人注目的是伊吹号采用了涡轮推进,这使其成为日本首艘配备这种新式机械的主力舰。
有必要在日本工厂生产主炮、中间炮和副炮以及大部分装甲板,而武器生产所需的努力甚至比造船技术的进步所需相对更大,尽管其成功至少部分是基于从英国引进的技术。
毫不奇怪,这些新型装甲巡洋舰的角色从仅仅辅助主力战舰,转变为构成战列线本身的一部分,尽管其巡洋舰特性并未被完全遗忘。
日本帝国海军的危机
1904-1905年日俄战争爆发时,日本帝国海军与驻扎在旅顺、符拉迪沃斯托克和仁川的俄国太平洋舰队实力近乎相当,但俄国海军在波罗的海和黑海还拥有实力几乎相当的舰队。因此,日本帝国海军必须在俄国的增援部队抵达之前摧毁太平洋舰队,并且在此战中不能承受任何主力舰的损失,因为在不得不面对俄国增援舰队之前,无法指望己方兵力有所增加。
战争爆发后的头几个月,主要行动是封锁旅顺港内的俄国舰队。¹ 然而,日本封锁舰队的航线总是被俄军掌握,5月14日,俄国"阿穆尔"号布雷舰在日舰通常的巡航路线上,于一条1英里长的线上布设了五十枚水雷。次日,战列舰"初濑"号和"八岛"号触雷沉没。² 这是一场重大灾难,三分之一的战列舰力量瞬间损失。³ 更糟糕的是,在5月12日至17日期间,二等巡洋舰"吉野"号和"宫古"号、炮舰"大岛"号、驱逐舰"晓"号和第48号鱼雷艇也因事故("吉野"、"宫古"、"大岛")和水雷而损失。这六天被称为"日本帝国海军的危机",这些损失并未向日本国民公布。
当时,决定性的舰队决战尚未进行,尽管第一舰队用装甲巡洋舰"春日"号和"日进"号填补了损失,但绝对有必要加强战列线,以对抗迟早将从波罗的海前来的强大敌军舰队。从阿姆斯特朗和维克斯分别订购的战列舰"鹿岛"号和"香取"号无法指望及时完工交付,而且在战时,由于所有可能的来源国都已宣布中立,不可能从国外购买军舰和弹药。因此,弥补损失的主力舰只能在国内船厂建造。"日本帝国海军的危机"迫使当局转向国内建造大型舰船。
在导致危机的那些事件发生约一个月后,即1904年6月23日,吴海军工厂接到了建造两艘装甲巡洋舰的命令。然而,由波罗的海和黑海舰队舰艇组成的俄国第二和第三太平洋舰队的启航,促使日本在1905年1月26日(针对战列舰)和1905年1月31日(针对装甲巡洋舰)向吴海军工厂和横须贺海军工厂下达了增建更多主力舰的命令(每个船厂各一艘战列舰和一艘装甲巡洋舰)。这四艘舰船按分类属于装甲巡洋舰,但实质上它们是过渡性舰只,不仅体现了后来战列巡洋舰的特征,也包含了当时意大利正在建造的"埃琳娜女王"级这类轻装甲高速战列舰的元素。
神户附近海面的"筑波"号,约1912年。(所有未署名插图均来自汉斯·伦格勒收藏)
约1915年的"鞍马"号。它与姊妹舰最显著的区别在于其三角桅杆以及略高略细的烟囱。
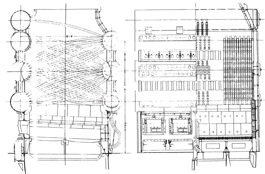
筑波级的装甲和武器布局示意图。
筑波号的侧视线条图
第三期海军扩张计划
中日甲午战争(1894-95年)后的第一期和第二期海军扩张计划,批准了所谓的"六六舰队",即一支以六艘战列舰和六艘装甲巡洋舰为核心组成的舰队,同时也实施了造船厂建造和维修设施的扩建,从而为国内建造大型舰船创造了先决条件。随着俄国太平洋舰队的增强,海军大臣山本权兵卫向议会提出了第三期海军扩张计划。经过一些波折4后,该计划最终于1903年6月3日在议会获得通过。凭借总额约一亿日元、分十年拨付的预算,日本可以建造三艘战列舰、三艘装甲巡洋舰以及一些其他舰船,并可以继续扩建船坞和其他海军生产设施。这些战列舰的临时代号为第1号(后命名为"香取"号)、第2号(后命名为"鹿岛"号)和第3号(后命名为"安芸"号),装甲巡洋舰的临时代号则为第1号(后命名为"伊吹"号)、第2号(后命名为"榛名"号)和第3号(后命名为"雾岛"号)。
1903年10月21日,海军大臣提议紧急购买两艘当时在英国为智利建造的战列舰。一个月后,即11月20日,谈判以失败告终,但日本海军转而成功购买了两艘当时在意大利为阿根廷建造的装甲巡洋舰。这两艘舰后来成为"日进"号和"春日"号,它们临时替代了触雷沉没的战列舰"初濑"号和"八岛"号。与此同时,也加速了第2号战列舰("鹿岛"号)的建造进程,即与第1号舰("香取"号)一同在1906年完工的提议得到了认可,此项计划于1903年12月22日获得大藏省的同意。这两艘舰于次月在英国订购,但很快便明朗的是,它们无法参与在订单下达后次月爆发的战争,原因是英国宣布了中立(即便它们能在战时建成)。
1908年在横须贺的生驹号
1904年战时海军补充计划
战争爆发约一个月后,日本颁布了一项临时特别预算法案,有效期为一个财政年度,直至战争结束。⁵ 该法案提供了总计48,465,631日元的预算,在"海军补充经费"项下,得以建造两艘战列舰,即"子"号(后命名为"安芸"号)和"丑"号(后命名为"萨摩"号),以及四艘装甲巡洋舰,即"辰"号(后命名为"筑波"号)、"巳"号(后命名为"生驹"号)、"午"号(后命名为"鞍马"号)和"未"号(后命名为"比睿"号),此外还有其他四十七艘舰船。
基于此项预算,1904年7月4日获得了天皇对紧急建造两艘已订购(1904年6月23日)装甲巡洋舰的批准;从计划总额25,279,765日元中,拨出859,060日元(分别计入"武备与维修经费"和"作为临时战争经费的造船与维修经费"),用于六月和七月的开支。其余款项(24,420,705日元)拟按月申请。事实上,截至1904年12月的开支(作为"海军补充经费"的5,428,812日元)直到1905年1月9日才获得天皇许可。在本月的最后一天,"午号"装甲巡洋舰(后命名为"鞍马"号)向横须贺工厂下单,造船成本为7,580,000日元(后经修订),计划在1905年至1907年间依据同一预算建造;同时,第1号装甲巡洋舰(后命名为"伊吹"号)也向吴海军工厂下单,成本与"鞍马"号相同(后亦经修订),作为"武备补充经费",计划在1905年至1908年间建造。⁶
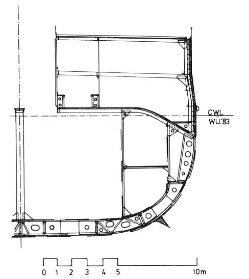
筑波号船体舯部横截面图。由 Michael Wünschmann 绘制。图注:CWL, WU.83, 比例尺 0-10米
日本首批主力舰的设计
军舰的基本设计由海军技术部第三(造船)处负责。其流程是:首先,海军军令部提出实质性需求,即进攻与防御能力、航速、续航力及其他要素,并将其提交给海军技术部;随后,技术部长官指示第三处与其他部门密切合作,进行若干方案设计。各处室协作完成总体布置图;随后,这些文件被提交给技术部长官,由他提请召开技术部内部的技术审议会。经过讨论和审查后,设计通常会参考外国海军的同期舰船、新技术、战争经验教训等因素进行某些方面的修改。那个最能体现最先进技术并优于外国同级舰的设计方案将被提交给海军大臣。海军大臣会咨询高层技术审议会,该机构通过冗长的讨论来决定该方案是否符合成员的见解和战术要求。如果无法达成一致,则会命令技术部重新进行设计。在这种情况下,整个流程将重复进行,直到设计最终确定,并下达造船命令。
因此,军舰的基本设计由海军技术部的造船部门负责,但造船工程师们不得自行提出其设计概念,且在大多数情况下,高层技术审议会会通过间接命令要求提供数个新设计方案。然而,归根结底,设计的均衡性以及能否在最小排水量下有效满足攻防要素的战术要求,取决于他们的技能。
筑波级的设计
"初濑"号和"八岛"号于1904年5月15日沉没,建造"筑波"号和"生驹"号的命令于1904年6月23日下达给吴海军工厂,两舰的龙骨分别于1905年1月14日和1905年3月15日安放。因此,海军技术部的基本设计和吴海军工厂的建造准备工作都以超常的速度进行。这只有在时任海军大佐(后晋升海军中将)近藤基树7的极大努力下才得以实现,他的设计团队包括了数位杰出的人才,例如工程师金田和三郎,他此前已作为练习设计过一艘战列舰和一艘一等巡洋舰,每艘均配有四座沿中线布置的主炮塔8;以及后来担任基本设计科科长的山本开藏。
在设计该级舰时,近藤领导团队展现了真正的独创性。不仅设计完成速度之快令人惊讶(尽管部分工作已提前进行),而且设计包含的新特点之多也令人称奇。其中最重要的几点如下:
1. 它们被归类为装甲巡洋舰,但与先前从国外订购的、如"出云"号(英国)、"八云"号(德国)和"吾妻"号(法国)等装备8英寸炮的巡洋舰截然不同。它们在联合舰队中的角色使得该级舰至关重要,从一开始就成为前线战斗舰队的主力。为了压制现有的装甲巡洋舰,必须保持"出云"级的航速,但火力需通过升级为12英寸主炮来增强。同时,必须不惜一切代价避免排水量大幅增加,因此其舷侧装甲带的厚度被设计得与"出云"级相同。与当时的标准战列舰相比,其主炮火力相当,副炮稍逊,鱼雷防御武器更优,而大约2.5节的航速优势部分补偿了装甲厚度减少2英寸的缺陷。因此,尽管在分类上属于巡洋舰,但它们实际上是真正的主力舰,在概念上预示了战列巡洋舰的出现。就此而言,称它们为日本首款国产主力舰是恰如其分的。
2. 采用了高舷艏楼甲板设计,以改善适航性并减少甲板上浪。
3. 放弃了传统的撞角艏,采用了曲线型前倾艏,其前踵部被切除。艏部鱼雷发射管也被移除。
4. 上层建筑被尽可能缩减(这是从中日甲午战争中汲取的教训之一)。
5. 居住舱室和设施均专门针对日本的需求进行设计。
6. 采用了无杆锚(这种锚可以收存在凹进的锚链管内)。
与创新的设计相比,其主要结构、舾装、装甲与武器的布局以及动力装置9并无新意,这想必是其基本设计能够如此迅速且相对轻松完成的原因。此外,详细设计和施工图纸的制作工作也交由吴海军工厂的造船科和制图室负责。
"筑波"号原定于12月12日下水,但因滑道变形而不得不仓促推迟——日本在大型舰船建造方面经验不足,此类细节问题暴露无遗,令船厂官员十分尴尬。该舰最终于1905年12月26日成功下水,如图所示。
1906年11月,正在舾装中的"筑波"号。背景中,位于"安芸"号建造船坞上方的龙门起重机是最近才竖立起来的;缺乏此类设备曾增加了建造"筑波"号的难度。
"筑波"号与"生驹"号的建造
当时,即使在英国,建造一艘约14,000吨的大型舰船也需要大约三年时间。因此,计划在日本境内两年内完成这些舰船是一项非常雄心勃勃的目标。吴海军工厂的厂长是海军少将山内万寿治,造船科科长是海军中尉小幡文三郎10 ,在小幡的领导之下,海军少佐山田佐周雄兼任建造主任、设计主任以及船体建造科长。这意味着筑波级舰船实际上是由一人主导完成的,山田的功绩怎么评价都不为过。11著名的造船专家之一,海军大尉(最终军衔为海军中将)平贺让也参与了早期工作。
当时,日本的造船能力集中在横须贺、吴和佐世保海军工厂。横须贺在舰船建造方面最为先进,吴则是武器生产的中心;佐世保和民用船厂在军舰建造方面经验甚少或完全没有经验。尽管横须贺当时尚未建造过比巡洋舰"松岛"号更大的军舰,但按理这两艘舰本应在横须贺建造,因为横须贺在军舰建造经验12、工人的培训水平和技能、现有设施以及机床数量方面都具有无可比拟的优势。然而,当时战争的结果尚难预料,当局担心俄国第二太平洋舰队会炮击横须贺。因此,建造命令下达给了在这方面更为安全的吴海军工厂。另一方面,横须贺和吴都在全力以赴地提高其舰船建造、修理和改装能力,以备战需,同时,船台、船坞及其他造船设施的扩建工程已经签约并正在进行中。因此,"筑波"号是在新建的第三号船台上建造的,该船台建于1903年8月至1904年11月。该舰于1905年1月14日安放龙骨,同年12月26日下水,并于1907年1月14日完工,仅用时两年,完全符合计划。"生驹"号之所以在两个月后的1905年3月15日才安放龙骨,是因为第二号船台的扩建工程,此项工作与第三号船台的完工同时开始。由于战争结束以及战列舰"鹿岛"号和"香取"号即将完工,已无匆忙建造的必要,因此"生驹"号的建造耗时三年(1906年4月9日下水,1908年3月24日完工)。
足够数量的熟练工人是个问题。一部分工人从横须贺抽调(连同专业工具等),同时还招募了临时非熟练工人,由来自横须贺的人员对他们进行培训。13获取必要的钢材也存在困难。现在普遍认为这些军舰完全由国产材料建造,但实际上,枝光钢铁厂(后来的八幡制铁所)的钢铁生产才刚刚起步,所以主要使用的是从美国进口的钢材;这些钢材是提前批量订购并储存起来,本来是打算用于受损舰船维修的。14
一个涉及人员和材料的非常严重的细节问题是铆接工作。当时尚未使用气动锤,手工铆接不仅非常费力,而且极其耗时。直到下水前,需要多达130万颗铆钉,要获取如此数量的铆钉且不延误工期是一个主要难题。幸运的是,铆钉也曾从美国批量订购,但仍然需要在国内生产所有尺寸的铆钉。结果,不得不招募铆钉制造工,而对他们进行速成培训也伴随着许多问题。
就船台而言,两个船台都没有龙门起重机,只有建造"筑波"号的第三号船台配备了5吨和10吨的吊杆——等待安放"生驹"号龙骨的二号船台则什么也没有。作为应急措施,在该船台两侧竖立了钢制人字起重架,配备了3吨吊杆,由电动绞车驱动。这是吴海军工厂首次安装电动机械。另一个"首次"是在工厂内设立了检验科,这是紧张工期所必需的;该科被赋予了完全的独立性。该科还负责具有成本效益的分包合同,而且由于几乎所有事情都是新的,必须关注每一个项目,很自然地,过程中难免会遇到麻烦。15
这些少数例子表明,"筑波"和"生驹"的建造是在巨大困难下进行的,但这证明了日本在短时间内学到了很多,并且距离完全独立于外国船厂已为期不远。制造质量已达到英国产品水平,并且由于民用船厂只能生产少量部件,16吴海军工厂不仅必须建造船体、生产装甲、机械和武器,还被迫制造大量的木制舾装件,从桅杆到家具装饰。
凭借巧妙的管理17和劳动力的最大努力,最终取得了成功,"筑波"号尽管因事故不得不推迟下水,但最终还是按计划完工。
约1914年,停泊在吴港外的"筑波"号。其中层甲板的6英寸火炮已被移除。
"生驹"号的横摇周期
"生驹"号由于其过大的GM(稳心高度)导致横摇周期非常短。海军中将长村毅之通过临时方法测得她的横摇周期平均约为6.6秒,而类似舰船至少为8秒,这意味着"生驹"号表现出了所有"横摇周期短"的缺点,这不仅影响了作战能力,也影响了居住性。
为了能够提出对策,长村在检查了重量分布后计算了GM值。三次计算的平均值为 GM = 1.3 米,而当时其他大型舰船的该值通常在1米左右。按照设计,"生驹"号在满载状态下的GM值计划为1.14米,但完工后证明是1.44米,也就是说,M(稳心)与G(重心)的位置比设计值高出约26%。由于M的位置取决于船体线型,其在完工后是固定的,因此问题在于G的位置过低。为了获得更长的横摇周期,必须通过减少船舶下部重量来使G更靠近M。这需要通过消耗存储在双层底、下层乃至上层煤舱中的燃料和水来实现,而侧舷煤舱中的煤炭在正常情况下需最后消耗。这些对策由长村提出,此外,上甲板的舰载小艇在紧急情况下也可灌入海水以增加上部重量。但这充其量只是治标不策,因为只有彻底重新设计才能改变横摇周期。长村的报告在造船界被广泛阅读,据海军中将近藤基树称,它对未来的军舰设计产生了巨大影响。¹⁸
1907年10月,下水前几天的"鞍马"号。它是这四艘舰中唯一在横须贺海军工厂建造的。
1913年,在横须贺的"鞍马"号。其中部的中口径炮塔非常醒目。
鞍马级与伊吹级设计的变更:武备增强
十九世纪末,装甲质量得到改进,其应用也因船体不同部位需要不同厚度、有时甚至是不同类型的装甲防护而变得相当复杂。为了能够击穿这类中间级别的装甲,许多海军在其战列舰上采用了中间口径火炮。与此同时,巡洋舰的尺寸增大,火力更强,促使人们使用更大口径的火炮来对付它们。
1902年,英国皇家海军为中间口径火炮选用了9.2英寸(23.4厘米)口径,而日本则更进一步,在为向英国订购的战列舰"香取"号和"鹿岛"号上采用了10英寸(25.4厘米)口径。顺应当时的趋势,原计划作为"筑波"号和"生驹"号姊妹舰建造的"鞍马"号和"伊吹"号,其设计被彻底修改,采用了8英寸(20厘米)中间口径火炮,安装在四座双联装炮塔中,位于装甲堡的四个角。副炮被取消,但用于防御鱼雷艇的4.7英寸(12厘米)火炮数量增加了两门。武备的变更不可避免地需要对装甲防护进行一些调整,尽管其厚度标准仍与"出云"级装甲巡洋舰相同。
"鞍马"级被批评为远未达到新型"全重型火炮"的无畏舰理念——英国皇家海军在无畏舰上不仅取消了中间口径炮,也取消了副炮;但如前所述,日本的目标是集一艘前无畏舰和一艘旧式装甲巡洋舰(达到"三笠"号和"出云"号级别)的火力于一身,而在当时那样长度的船体上安装更多12英寸(30.5厘米)火炮炮塔(即使考虑单装炮塔)是完全不可能的。尽管取消了副炮,但采用中间口径炮导致排水量增加了800多吨,这反过来需要额外的动力以维持航速,并根据当时的趋势略有提高。因此,动力装置经过修改,采用了与"筑波"级相同类型的发动机,但将输出功率增加了2000马力,达到22,500马力(目标过载输出功率约为23,000马力)。锅炉数量增加,需要三个烟囱而不是前级舰的两个,这连同武备的变化,导致了外观上的不同。
这些修改最终使得主尺度不得不略有改变,排水量上升至15,595吨,比"筑波"级增加了1903吨。实际上,这已经形成了一个新的级别。
在建造过程中,设计经历了数次变更(部分变更,大多为细微调整,将在后续关于武备和防护的章节中提及),其中最引人注目的是"伊吹"号采用了涡轮推进装置,以及"鞍马"号采用了三脚前桅和主桅。
鞍马号与伊吹号的建造
"鞍马"号是这四艘"现代"装甲巡洋舰中唯一由横须贺海军工厂建造的舰船,其余三艘均由吴海军工厂建造。在横须贺,战列舰"萨摩"号的建造以及俘获的俄国舰船的修理和改装工作被给予优先权,新舰建造还不得不兼顾其他工作;后来,战列舰"河内"号的建造又受到青睐,因此"鞍马"号的建造进度极为缓慢。横须贺海军工厂在建造主力舰方面经验不如吴厂,并且随着工程师、工头和工人连同部分设备被借调至吴海军工厂进行主力舰工作经验交流,反而减少了当时横须贺熟练工人的数量。建造进度缓慢也受到"筑波"号完工次年"无敌"级战列巡洋舰问世的影响,这使得本级舰在服役之初即沦为二流且性能逊色的舰只。这不仅对日本海军当局是一个打击,也一度使横须贺工厂的努力陷入停滞。
由于这些因素的综合作用,从安放龙骨到下水的时间,从"筑波"号的不到12个月和"生驹"号的12个多月,延长至26个月;而从下水到完工所需的时间也达到了40个月,相比之下,"筑波"和"生驹"分别仅需12个多月和约23个月。因此,尽管"伊吹"号的龙骨安放时间比"鞍马"号晚了21个月,但"鞍马"号的完工时间却比"伊吹"号晚了15个月。"鞍马"号成为日俄战争期间开工的六艘主力舰中最后一艘完工的舰只,也是最后一艘配备往复式发动机的大型舰只,其发动机输出功率是当时日本船用活塞发动机中最大的。
在这段极长的建造期内,"鞍马"号进行了多项改进,除了在"武备"和"防护"部分提到的那些之外,主要是为了赋予其更现代的外观。最显著的变化是采用了前后三脚桅,这成为一个显著的识别特征。
"伊吹"号是四艘"现代"装甲巡洋舰中的最后一艘,平均比其他舰只晚了大约两年。原因是它必须等待战列舰"安芸"号的下水,后者于1905年1月26日下达给吴海军工厂建造。"安芸"号于1907年4月下水后,"伊吹"号于同年5月22日安放龙骨,并于11月21日下水。这个速度仅次于英国战列舰"无畏"号,创下了记录,事实上日本海军积极尝试以"伊吹"号创下快速建造的记录。
在"伊吹"号下水五天后,决定为其和"安芸"号采用柯蒂斯涡轮机作为主机,要求从22,500马力实现21.25节,改为24,000马力实现22节。尽管"安芸"号比"伊吹"号更早下水,但对其的施工停止了约五个月¹⁰,主要是为了优先建造"伊吹"号。后者的舾装进度超过了"安芸"号,并且"伊吹"号从安放龙骨到完工仅用了30个月,荣膺日本海军第一艘配备涡轮主机的主力舰;她所需的工时仅占其姊妹舰"鞍马"号完工所需工时的45%。
"伊吹"号的建造实现了所需"人工作日"的显著减少,这主要得益于劳动力、监工和管理层经验与专业技术的提升。材料的及时供应也功不可没——值得注意的是,不仅全部的防护装甲和船体所有铸钢件由吴海军工厂钢铁部门供应,发动机和轴的所有铸钢件也是如此,同时八幡钢铁厂(当时称为枝光钢铁厂)供应了船体建造所用的全部低碳钢。当这些材料需要进口时,是无法指望创造建造速度记录的,而"筑波"号之所以能取得成就,完全得益于从美国进口的大量钢材准时到货以及现有的可观材料库存。
1915年12月,完成澳新军团船队护航任务后,停泊在吴港的"伊吹"号。
筑波级与鞍马级的总体布局
筑波级和鞍马级的总体布局在插图中显而易见,因此无需冗长解释,但读者在研究图纸和照片时应注意以下显著特征:
1. 采用新的船艏形状(飞剪艏)取代了撞角艏。
2. 采用了高舷艏楼甲板。
3. 独特的舰尾和舵轮廓,特别是舰尾铸件。
4. 上层建筑缩减至最低限度。
5. "鞍马"号采用三脚桅。
6. 桅杆上未设战斗桅盘。
7. 仅使用两根撑杆支撑舰桥翼台,以改善司令塔的视野。
8. 采用45倍径12英寸(30.5厘米)火炮,配备双联装炮塔,从而拥有与战列舰相同的主炮武装。
9. 炮塔机构的多项改进,特别是装填设备。
10. 为主炮和中间口径炮(后来也包括副炮)引入了火控装置。
11. 将大部分副炮布置在装甲堡内。
12. "鞍马"级采用了中间口径炮。
13. 保留4.7英寸(12厘米)速射炮作为防御鱼雷艇的辅助火炮。
14. 固定式鱼雷发射管从5具减少到3具。
15. "鞍马"号国产的往复式发动机功率为日本海军舰船中之最。
16. "伊吹"号采用了涡轮推进。
17. 采用混燃锅炉。
18. 取消机舱和锅炉舱的中央纵舱壁。
19. "筑波"级的烟囱减少为两根,但"鞍马"级增加至三根(顺便提一下,"鞍马"号的烟囱比"伊吹"号的稍细且高)。
20. 装甲防护相对早期的装甲巡洋舰未有改进,目的是为了提高航速(事实上,21节对于当时的现代巡洋舰而言太慢了)。
其主要尺度、船体线型(除舰首和舰尾外)以及武备布局——尤其是筑波级的副炮——与英国的"克雷西"级非常相似。日本舰船的装甲稍厚(且布局有所改进),但在英国军舰装备单装47倍径9.2英寸(23.4厘米)炮塔的舰首舰尾位置,日本海军则采用了45倍径12英寸(30.5厘米)双联装炮塔。之所以能够实现这一点,是因为采用了功率更大的宫原水管锅炉,在相同功率下,锅炉数量从30台减少到20台。相应地,烟囱数量也从英国军舰的四个减少到两个。
主炮
日本海军使用了四种不同倍径的12英寸(30.5厘米)火炮,即:
1. 从"富士"级到"三笠"号的六艘战列舰以及三艘前俄国战列舰配备40倍径火炮。
2. 从"香取"级到"摄津"级的六艘战列舰、从"筑波"级到"鞍马"级的四艘装甲巡洋舰以及两艘前俄国战列舰配备45倍径火炮。
3. 两艘战列舰("河内"号和"摄津"号)在舰首和舰尾炮塔中配备了50倍径火炮。
4. 一艘前俄国战列舰("壹岐"号)配备30倍径火炮。所有上述火炮均安装在双联装炮塔中。
对45倍径火炮的进一步分析显示,四艘战列舰("鹿岛"号、"香取"号、"萨摩"号和"安芸"号)以及这些装甲巡洋舰将它们用于当时主流标准布局的舰首和舰尾炮塔,而后来的战列舰"河内"号和"摄津"号则将其布置在舷侧炮塔中。这些炮塔总共配备了48根45倍径12英寸火炮身管,根据(i)身管类型和(ii)炮闩类型被分为若干种。对于本文研究的装甲巡洋舰,使用了四种不同的类型:
| 舰名 | 筑波 | 生驹 | 鞍马 | 伊吹 |
|---|---|---|---|---|
| 身管类型 | 阿姆斯特朗 | 维克斯 | 阿姆斯特朗 | 阿姆斯特朗 |
| 炮闩类型 | 吴式 | 维克斯 | 四一式 | 阿姆斯特朗 |
| 身管长度(米) | 14.259 | 14.135 | 14.259 | 14.263 |
| (倍径) | 46.8 | 46.4 | 46.8 | 46.8 |
| 身管重量(吨) | 59.41 | 57.58 | 59.5 | 59.10 |
| 膛线数量 | 72 | 72 | 72 | 72 |
| (缠角/缠度) | 渐阔式,30倍径旋转一周 | 等齐,30倍径旋转一周 | 同筑波级 | 同筑波级 |
注:日本海军根据炮闩类型对火炮进行分类,因此使用了四种不同的类型。
总体而言,这些身管具有相同的结构。为"筑波"号和"鞍马"号制造的、由吴海军工厂炮术部门生产的身管,是基于英国阿姆斯特朗(埃尔斯维克)和维克斯(巴罗)公司提供的图纸制造的;而"生驹"号和"伊吹"号的身管则是进口的20,并且分别与战列舰"香取"号和"鹿岛"号所使用的相同。
日本的45倍径12英寸火炮身管是一种半钢丝缠绕的五层结构。内管(1A)由四个部分组成(其中从炮闩端开始的前三个部分用扁钢丝带缠绕),通过凹凸连接环连接,并分为线膛部和药室。在此管之上,通过红套工艺再套装一层,该层分为三个管(2A至2C),一个管套在另一个里面,并通过凹凸连接环以与内管相同的方式固定(此过程是通过"冷冻"1A管并加热2A至2C管来实现的)。然后将身管置于一台非常大的车床上,以每分钟3.7至7.3米的速度旋转,并将厚度3毫米、宽度12至13毫米的扁钢丝缠绕上去。这条钢带从头到尾以不同的张力(有时高达1800公斤)缠绕,这个过程相当困难且耗时。钢丝层的厚度各不相同,对应于膛内的压力曲线,在最前部靠近炮口处、前部钢丝固定环位置有17层(钢带),在最厚处、靠近炮闩位置有95层(钢带)21。在直径变化处,外圆周使用钢丝固定环,并将填充环附着在'A'管上。完成此部分后,将外层钢管4A(被筒)和4B红套上去,然后身管外部在一台巨大的车床上进行机械加工。通过这种结构,发射时的径向应变通过'A'管在内管上的红套张力以及围绕'A'管以不同张力缠绕的钢丝来克服。纵向应变则由通过炮尾环连接的大段'A'管和被筒承受。
在被筒炮尾环的后部,是炮闩机构框架、红套环、炮尾衬套和止动环;炮闩则安装在一个可在炮尾侧面枢轴转动的载架上,并能自由转动。炮闩上的中断螺旋与炮尾内对应的螺纹啮合并将其锁紧。炮闩的旋入、锁闭以及开锁和开启动作均通过液压动力完成,这与早期火炮(包括战列舰"三笠"号上的那些)仅能手动操作不同;在液压系统故障时,仍可使用人力操作。该机构属于单动式,即一个动作即可完成炮闩的锁闭或开锁、将其旋入或旋出炮尾,并在开合操作中联动击发机构。
使用重约400公斤的被帽穿甲弹和100.6公斤发射药时,最大射程约为22,000米。22该数值由No X型身管获得,其药室容积为245升,膛压为28.5公斤/平方厘米。身管寿命被视为发射360发炮弹后内管磨损,但根据战后调查,日本海军倾向于限制火炮的使用23(这主要是预算紧张的结果,从每舰仅配备一根备用身管也可见一斑)。到退役时,"生驹"、"鞍马"和"伊吹"各舰的每门火炮在各种舰队训练演习中平均仅分别发射了55、42和37发炮弹。这些低数字促使日本在因华盛顿条约而不得不让这些舰只退役后,决定将这些火炮用作陆军海岸炮台。
理论上,改进的装置允许在高仰角下装填24,这使得身管能保持在瞄准线上,提高了瞄准射击的速率。火炮通过电流击发底火,进而点燃发射药。各炮可单独击发,但这当然只是辅助方法,通常的方法是在瞄准线扫过目标时,仅需按下按钮,即可从中央指挥位置同时齐射所有火炮。后坐抑制、俯仰则由液压动力完成。在转盘下方的舱室内设有手摇泵,连接到液压缸,用于手动复进和后坐,这些通过一个在它们之间工作的单作用柱塞来工作的压力机,也用于手动俯仰。
转盘、扬弹通道、火炮和弹药输送系统的操作需要大量专用辅助机械,这些机械主要依靠液压动力运行,即由几台蒸汽驱动的液压泵组成,它们安装在独立的舱室中,并连接到供油和回油管。当时电动机还非常少见。大多数情况下的动力源都有备份。几乎所有的炮塔操作都有自动和其他检查;弹药提升和装填操作尤其如此。
转盘在一个直径为7.0米的滚道(roller path)上旋转,配有滚柱轴承以减少摩擦,其下方的炮弹舱由直径8.3米的炮座(barbette)包围和保护,炮座从防护甲板一直延伸到上甲板以上相当高处。
装甲厚度如下(毫米):
| 炮塔(GUNHOUSE) | 筑波/生驹 | 鞍马/伊吹 |
|---|---|---|
| 顶部 | 38 | |
| 前部 | 244 (筑波) | 229 (鞍马) |
| 侧部 | 229 | |
| 后部 | 152 | |
| 炮座(BARBETTE)| | |
| 最厚部分 | 178 | |
火炮的回旋角度为270度,炮塔重量约为513吨。
1920年,日本陆军(IJA)请求吴海军工厂试制一门15英寸(38.1厘米)火炮,以装备海防要塞。由于华盛顿条约协定废弃许多主力舰,生产被取消;因此空出的炮塔被交给日本陆军用作海岸炮台。经陆军军官在1922年8月完成的彻底调查后,决定对"鞍马"、"生驹"和"伊吹"的炮塔进行必要改装后加以利用。(这些改装主要包括:将仰角从原来的23度增加到+35度,以获得26,600米的最大射程;将后坐系统从液压式改为气压式;用石棉布隔离炮塔内部;以及安装柴油机以替代蒸汽机来驱动液压泵。)最终只有四座炮塔被改装,其中三座安装如下:
| 伊吹 | 前炮塔: | 小岬炮台 |
|---|---|---|
| | 后炮塔: | 鹤见崎炮台 |
| 生驹 | 前炮塔: | 洲岬炮台 |
| 生驹 | 后炮塔: | 改装后备用 |
"鞍马"的炮塔连同备用身管均未进行改装。25
中间口径炮
"鞍马"和"伊吹"采用45倍径8英寸(20厘米)四一式火炮作为中间武备,安装在四座双联装炮塔中。每座炮塔位于装甲堡的一个角上,使得总舷侧火力达到四门12英寸炮和四门8英寸炮,几乎是早期"浅间"级装甲巡洋舰的4.5倍,如下列约整数所示:
| 舰级 | 舷侧齐射重量(公斤) |
|---|---|
| 浅间 | 453 |
| 筑波 | 1542 |
| 鞍马 | 1996 |
因此,筑波级的舷侧火力相当于"敷岛"级战列舰,而鞍马级的火力则与"鹿岛"级相当,因为后者每舷只有两门45倍径10英寸炮可以射击。
该火炮及其炮塔深受阿姆斯特朗公司的影响,该公司曾为日本早期在国外建造的装甲巡洋舰提供了火炮和炮塔。该炮身管重17.62吨,发射115.3公斤(254磅)的炮弹,初速为835米/秒。最大仰角为30度,对应的最大射程小于21,000米(23,000码)。关于炮架的详细技术资料很少,但其与阿姆斯特朗的双联8英寸/40倍径炮架相似,可能进行了一些简化,例如将部分功能的动力操作改为手动。炮塔下部结构的防护主要由加厚的上装甲带提供,这些位置的厚度增至6英寸(152毫米),水线装甲带为8英寸(203毫米),因此,炮座在暴露部分的厚度仅为5英寸(127毫米),在装甲堡内部则减少到2英寸(51毫米)。
副炮
45倍径6英寸(15.2厘米)火炮的身管同样是在英国模型基础上制造的钢丝缠绕式结构。与45倍径12英寸身管不同的是,钢丝缠绕仅覆盖炮弹行程长度的一半略多,并且在炮口端,一个实心钢管(套箍)红套在内管上,以承受发射时的径向应变。这增加了梁强度,无需担心炮口"下垂"——这是12英寸火炮身管最严重的缺点。
副炮安装在装甲堡内的炮廊中,每舷六门,其中四门位于靠近水线的中层甲板。这种布局存在缺陷,因为在恶劣天气下这些火炮无法使用,并且会进水。最终,副炮被移至上甲板,尽管只能容纳三门,而且这是以减少50倍径4.7英寸(12厘米)火炮的数量为代价的。改装后的武备为十门6英寸/45倍径炮(原为十二门)和八门4.7英寸/50倍径炮(原为十二门)。遗憾的是,没有日本资料明确说明改装的具体日期,但似乎是在大正时代早期(可能是在1913-14年,战争爆发之前)。
火控
当"筑波"号(由巡洋舰"千岁"号陪同)于1907年访问几个欧洲国家时,它在英国安装了由维克斯公司制造的最新式火控设备,这些设备基于斯科特、杜马雷斯克和波伦的研究成果。当然,这仍是相当原始的装备,但在当时,通过引入齐射射击和将集中计算出的射击方案传输给各炮,它在提高命中率方面迈进了一大步。根据当时一本名为《海军射击指挥装置》的日本手册记载:
> 由控制站计算出的射程被传输到炮位,瞄准手只需将指针调整到标度盘上的指定标记。除了对齐两个指针的末端外,无需其他操作。在标度盘后方设有控制装置,用于自动调整装药温度、身管内管状况[以确定炮弹初速,该速度随内管磨损而降低]以修正射程,同时也包含空气密度的调整……
从描述来看,最重要的射击参数——射程——似乎是由中央射击指挥装置给出的,但方向瞄准仍依赖于各炮的瞄准手。所有火炮的射击由炮术长控制,当目标移动通过其望远镜瞄准镜时,他按下按钮。测距仪和控制站射击数据的传输,以及中央控制的齐射,意味着通信系统(用电传输取代了号角、传声筒和通话管)的根本性改进,这与仅仅两年前在对马海战中使用的的方法相比是一个巨大的进步。
在此值得一提的是,"伊吹"号不仅是日本海军第一艘涡轮机推进的舰船,也是第一艘在设计时就配备了火控仪器的主力舰。在服役时,其司令塔顶部安装了一部指挥仪,使得"伊吹"号从一开始就能以齐射方式控制主炮和中间口径炮(后来也为4.7英寸炮加装了初步的火控系统)。该系统(经过一些不可避免的修改以适应日本水兵使用)与当时开始装备英国军舰的系统相同,在这方面,时任"伊吹"号首席炮术长的平岩元雄中佐的努力值得称道。
其他武备
其余武备主要包括筑波级的十二门(鞍马级为十四门)4.7英寸/50倍径火炮,其中一门安装在舰首和舰尾的炮廓内,其余则配备护盾布置在上甲板。后者在副炮位置变更时被移除或移位。就鞍马级而言,原设计布置在装甲堡外中层甲板炮廓内的四门火炮的位置,在建造命令下达前被调整到更靠近弹药提升机的地方。同时,也有人提议,如果有多余空间,可将4.7英寸炮弹的药库用于存放8英寸炮弹,因为后者的储存数量略低于要求。与此同时,3英寸(名义上8厘米)火炮的数量从两门增加到四门。这些火炮后来被安装在主炮塔的顶部——这是一种效果甚微且最终被放弃的布置方式,但在当时是一种普遍趋势。四挺马克沁机枪中的一挺分别布置在前、后舰桥的两翼。
直到筑波级,主力舰都装备五具固定式水下鱼雷发射管,但在建造过程中,这种价值存疑的武器数量被减少到仅三具。"生驹"号在中层甲板水平的舯部两舷安装了21英寸(53.3厘米)发射管,取代了之前的18英寸(45.7厘米)口径,但位于舰尾上甲板的那具发射管仍然是18英寸,因此"生驹"号成为唯一一艘配备两种不同口径鱼雷管的舰只。取消舯部后段中层甲板鱼雷发射管的原因是为了扩展后部主炮塔的弹药库。五具30英寸(75厘米)探照灯分别布置在前、后舰桥的两翼以及前桅杆高处的一个平台上。
伊吹号的舰首特写
下锚停泊状态的伊吹号
防护
其装甲水平与之前的装甲巡洋舰几乎处于同一级别,而随着"无畏"舰的出现,这一弱点更加突出。然而,值得注意的是,在吴海军工厂开始制造装甲板大约三年后,已能生产出质量足够可靠且数量几乎满足需求的装甲板。根据包括近藤基树海军中将在内的各种日本资料,这些装甲板被用于"筑波"号及后续舰只,仅有少量从美国订购的装甲用于首舰"筑波"号。据长村毅海军中将称,"伊吹"号及后续舰只(实际上"生驹"号也是)的所有装甲板和铸钢产品均由吴海军工厂钢铁生产部门供应,而用于建造船体和上层建筑所用的低碳钢则由八幡制铁所提供。
水线装甲带在舯部厚度为7英寸(178毫米),向两端逐渐递减至4英寸(102毫米)。中央炮廊由5英寸(127毫米)装甲保护(主炮和中间口径炮的防护已在武备部分论述)。防护甲板的平坦部分为1.5英寸(38毫米),倾斜部分增至2英寸(51毫米),但在首尾两端再次减至1.5英寸(在*鞍马*级中,甲板厚度统一为2英寸)。司令塔的防护厚度超过了水线装甲带的最大厚度,达到8英寸(203毫米),这是除主炮塔正面和侧面之外最厚的防护。司令塔是仿照*香取*级战列舰的设计,但根据海军技术部1905年3月10日的指令,其前后方的观察窗屏被取消,装甲需连续安装至6英尺(1.83米)高,并以一个3英寸(76毫米)厚的顶盖封闭。在鞍马级中,前司令塔下方的通信管道在艏楼甲板与主甲板之间覆有7英寸(178毫米)厚的装甲,但在主甲板与中层甲板之间则减少到4英寸至2英寸。所有装甲均为所谓的"克虏伯表面硬化"型。
在鞍马级中,水线装甲带的长度在首端增加了两块钢板,尾端增加了一块钢板。这实际上意味着防护区域的比例有了实际增长,尽管舰长增加了10英尺。与此同时,5英寸厚的上装甲带长度也在首端增加了四块钢板。在这两种情况下,(与装甲带连接的)斜角舱壁厚度为1英寸(25.4毫米)的斜角舱壁被安置在装甲板的前缘与主炮炮座之间(后部舱壁在筑波级中已经安装,但据本文作者所知,由于未知原因,在上下装甲带所在的高度没有安装前部舱壁)。这种布置旨在保护要害部位免受来自前方的炮火攻击,但它完全不足以实现其目的,仅仅是这个零碎的装甲防护方案中又一个令人费解的措施。
由于鞍马级装备了双联装8英寸炮塔,其炮塔下方上装甲带的厚度增加到6英寸(152毫米),因此,位于上层甲板与中层甲板之间的炮座仅由2英寸(51毫米)厚的装甲构成。
在装甲堡内部,放弃了在两侧及前后安装1英寸(25毫米)厚防护隔板的方案,转而对烟囱外壳施加1英寸的装甲防护。鞍马级的这些改动,连同武备方面的变更,导致排水量增加了95吨,但与此同时,海军军令部将航速要求降低了0.25节,至21.25节,这使得实现这些以及其他一些改变成为可能。
约1915年时鞍马号的舯部细节图
正在进行全功率试验的"伊吹"号。
机械
"筑波"、"生驹"和"鞍马"号均配备了立式四缸三胀式蒸汽机,这是当时的标准推进系统。"筑波"和"生驹"的发动机是日本首次设计和生产的功率超过20,000马力的机型。所有舰只均为双轴推进,发动机所需蒸汽由宫原式锅炉提供,工作压力为16.8公斤/平方厘米,略高于"香取"级。
发动机的材料为锻钢,即使是过去需要从外国进口的活塞杆、连杆等部件,也由吴海军工厂钢铁部门供应。因此必须强调,这些发动机是完全国产化的。
筑波级舰只成为首批配备国产强制润滑系统的舰船,尽管该系统是在完工后一段时间才加装的。该系统于1908年首次在巡洋舰"阿苏"号上试用,并在进行一些改进(主要是防止管道连接处泄漏和减少润滑剂消耗)后投入使用。
"生驹"号是日本海军中第一艘配备燃油锅炉的舰只。这种锅炉试验性地建造了混燃和纯燃油设备两种型号,并于1906年8月至9月在吴海军工厂进行了测试。对压力和蒸汽系统的试验证实,采用加压混燃系统,宫原式锅炉能将产生的功率提高10%至15%。因此,该系统被采纳,并且"筑波"号的锅炉也改装为混燃式。"鞍马"号当然从一开始就配备了这些锅炉,但数量增加到二十八台(十四台双头锅炉),以获得约10%的额外功率来抵消排水量的增加,并通过额外的2000马力获得约0.75节的更高航速。
安装在"筑波"号上的宫原式水管锅炉总体布置图
"伊吹"号采用涡轮机
海军技术部第四处(负责发动机)采用涡轮机的意图至少可以追溯到1900年。在当年4月19日给宫原次郎海军少将的一封信中,A. F. Yarrow建议将帕森斯涡轮机应用于计划从这家英国公司订购的某些驱逐舰或鱼雷艇上。这一提议的灵感来自于英国涡轮机驱动的驱逐舰"蝰蛇"号和"眼镜蛇"号的性能表现,但当时日本海军希望观望未来的发展,因此为驱逐舰"晓"号和"霞"号签订的合同并未指定涡轮推进。然而,英国皇家海军完工的巡洋舰"紫水晶"号配备了帕森斯涡轮机,证明其在高速航行时蒸汽消耗量相比活塞发动机大幅减少。因此,英国正考虑将涡轮机应用于包括1905年后建造的战列舰在内的所有军舰,而美国的柯蒂斯涡轮机则已装备在汉堡-美洲航运公司的客轮"凯撒"号以及后来的"克里奥尔人"号蒸汽船上。美国海军打算利用当时正在建造的巡洋舰"伯明翰"号、"切斯特"号和"塞勒姆"号对这些不同推进系统的性能进行比较测试;它们分别配备了往复式发动机、帕森斯涡轮机和柯蒂斯涡轮机。
这些因素引发了日本海军内部关于采用涡轮机的激烈讨论,并于1905年11月决定将涡轮机应用于在日本船厂建造的军舰。根据这一决定,海军大臣于1905年11月26日下令,将装甲巡洋舰"伊吹"号和战列舰"安芸"号的主机改为柯蒂斯涡轮机。
采用涡轮机的主要原因概述如下:
1. 在相同排水量下能获得更高的航速。
2. 其显著优势已促使竞争对手的海军采用蒸汽涡轮机。
3. 与往复式发动机相比,在低于14节的航速下油耗较高(英国实验已证明)的缺点,将被其在较高航速下更低的油耗所完全抵消。
4. 结合第1和第2点,在作战时,涡轮推进的舰船能够在同等燃煤量下航行更长时间,并能获得更高航速以取得战术优势或在优势敌军面前安全撤退。
5. 如果为"伊吹"号(和"安芸"号)采用涡轮机,经计算其重量和成本将与它们的姊妹舰"鞍马"号和"萨摩"号相同,但航速将比"鞍马"号的21.25节("萨摩"号为18.25节)提高近两节(1.75节)。
当时,大型涡轮机的性能尚未完全确定,因此采用它们仍涉及一定风险。为此,宫原次郎海军少将积极倡导采用涡轮机的努力值得关注。他在最终决定做出前四天致信上级,宫原的信件清晰地显示了负责海军机械的官员们如何评估涡轮机(尤其是柯蒂斯设计)的风险和未来发展,并证明了他们的远见卓识。其主要观点如下:
1. 为未来的海军舰船采用涡轮机是首选方案。
2. 船上应用最成熟的涡轮机是帕森斯型。
3. 柯蒂斯涡轮机是近期才研发出来的,因此其运行经验相较于帕森斯型要少,但对其结构进行详细研究后表明,它在许多方面优于帕森斯涡轮机。因此,如果采用此设计,无疑至少能取得与帕森斯涡轮机相同的效果。
4. 采用柯蒂斯涡轮机似乎存在风险,但冠达邮轮公司在其发展的类似阶段,就为多艘在大西洋航线上服务的船只采用了帕森斯涡轮机,相信如今的风险并不会比当时更大。当我们回顾涡轮机的发展历程时,注意到水管锅炉在采用之初也曾面临诸多反对,但如今筒形锅炉已从世界各国的所有军舰上消失;涡轮机的情况必定与之相似。
5. 幸运的是,在吴港建造的战列舰和巡洋舰尚处于早期阶段,因此更换发动机并无困难。如果我们错过此次机会,将没有其他军舰可以配备涡轮机,届时我们将不得不等待六到七年才能采用这种发动机。因此,在这些舰船上采用涡轮机是非常可取的,并且基于前述理由,我认为柯蒂斯涡轮机是最合适的。
6. 采用柯蒂斯涡轮机需要发动机成本略有增加,每艘舰不超过20,000日元。我相信总计40,000日元的费用可以从其他在建舰船的预算中调剂出来,而用这笔钱,我们可以为每艘舰配备功率为24,000指示马力的涡轮机;在空间和重量方面,它们不会造成麻烦,并且对船体设计的改动将非常小。
7. 若这些舰船采用涡轮机,则发动机必须从国外订购。必须派遣技术人员与监理人员一同前往,以学习生产方法。派出的代表需要接受海上发动机操作培训,因此他们应是具有主机实际操作经验的工程师。
今后,涡轮机最好能实现国内生产。因此,应在培训人员的同时,做好国内生产的准备。未来的军舰必将使用涡轮机,这一点十分明显,因此,甚至在解决采用涡轮机的技术问题之前,就应着手解决生产问题。
1906年6月1日,日本代表与美国马萨诸塞州昆西市的前河造船公司签订了合同,为"安芸"号和"伊吹"号提供四台主涡轮机和螺旋桨(每艘舰两台),以及仅为"伊吹"号提供真空泵、水泵和专利冷凝器,合同金额为475,000美元。依照宫原的建议(其信件摘要中的第7点),同时提出了获取柯蒂斯涡轮机许可证的提议,并于整整一个月后(7月1日)签订了涵盖生产权的合同,日本海军以100,000美元的费用获得了在国内生产该型涡轮机的权利。
通过采用涡轮机,"伊吹"号的推进特性变化如下:
| 项目 | 1905年7月决定 | 1905年11月决定 |
| :----------- | :------------ | :------------- |
| 发动机类型 | 往复式发动机 | 蒸汽涡轮机 |
| 马力 (HP) | 22,500 | 24,000 |
| 轴马力 (shp) | - | 21,600 |
| 转速 (rpm) | - | 255 |
| 航速 (节) | 21.25 | 22 |
注:
1. 航速增加幅度未如预期,但所有日本资料均确认为22节。因此,增加的1.75节可能指的是过载功率下的航速——见下文。
2. 为获得更优惠价格,决定在战列舰"安芸"号和装甲巡洋舰"伊吹"号上安装相同的涡轮机。
在购买涡轮机大约半年后,"筑波"号的试航于1906年11月24日结束。由于其宫原式锅炉已被证明拥有显著的蒸汽发生备用能力,据计算,"伊吹"号的锅炉可产生约29,000轴马力的蒸汽,对应32,000至33,000指示马力,并且认为有可能毫无困难地达到23节航速。事实上,这被证明是无法实现的,与前河公司的讨论揭示:"即使涡轮机在充足蒸汽供应下能以270转/分钟的转速产生27,000轴马力(24,500指示马力),现有冷凝器设计除合同规定的21,600轴马力外并无额外余量,即使计划扩大冷凝器,航速也无法超过22节"。尽管存在此不足,海军技术部仍提议修改涡轮机喷嘴和冷凝系统,以期将航速提升至22.75节,但这再次被证明是徒劳的。前河公司在1907年2月与驻美日本监理官讨论后进行的唯一修改是更换螺旋桨,但公司仍未承诺航速能超过22节。另一方面,该涡轮机的设计最大过载功率为27,000指示马力,这应足以达到近23节的航速。
"伊吹"号由两台柯蒂斯涡轮机驱动,每台涡轮机封装在一个铸铁圆柱形外壳内,外壳外径为4.27米,总长为5.18米。转子直径为3.66米;轴长度为8.30米,总重量达180吨。外壳内部通过碟形隔板分隔成一系列独立的腔室,每个腔室(或称级)包含七个前进级叶轮和两个倒车级叶轮中的一个。倒车叶轮安装在外壳的后端,在正常前进航行时,它们处于真空状态,以避免因蒸汽摩擦而浪费功率。其结构与前进叶轮相似,但叶片方向当然是相反的。设置了连接每一级与下一级的排水管,以使任何一级的蒸汽能够流入压力较低的下一级,将其部分热能转化为有用功。排气室将蒸汽排入冷凝器,排放由一个小型蒸汽喷射器辅助。由于蒸汽在从一级流向下一级时压力递减而膨胀,叶片的长度以及喷嘴的弧段也随之增加,从而在每一后续级中提供更大的流通面积。压力分布经过精心安排,使得可用蒸汽能量的四分之一在第一级中消耗,其余各级各消耗八分之一。这种布置的目的是尽可能降低外壳内的压力,它要求在第一级使用扩张型喷嘴,但所有其他喷嘴均为平流式。这种布置使得除第一级外的所有前进叶轮都在八级条件下运行。
日本方面认为柯蒂斯设计的优点如下:
1. 叶片数量少,叶片周围间隙大,且叶片机械结构坚固,使得叶片断裂实际上不可能发生。
2. 无需巡航涡轮机即可在降速运行时保持经济性,这是通过在隔板喷嘴开口处使用阀门,在蒸汽流量减少时维持适当的蒸汽压力分布来实现的(尽管存在因转速降低而产生的不可避免的损失)。
3. 外壳内部不承受全蒸汽压力,因为全蒸汽压力仅作用于蒸汽室,而蒸汽室是一个相对较小的铸钢件,涡轮机外壳内的最大压力小于工作压力的三分之一,从而允许使用高蒸汽压力、相对于功率而言较大的涡轮机直径,并减少了膨胀方面的困难。
4. 在给定马力下转速较低,且不牺牲经济性或导致重量过大,允许使用双螺旋桨布置而非三或四螺旋桨,并能获得更高的螺旋桨效率。
5. 没有平衡活塞及其密封装置,从而消除了高压蒸汽的泄漏,并且无需调整即可保持经济性。
涡轮机所需的蒸汽由八台单头式和十台双头式混燃宫原锅炉提供,锅炉配备过热器。在发动机试验期间,测得涡轮机进口处的蒸汽过热温度为华氏22度(高于饱和蒸汽温度)。
正如宫原次郎海军少将在1905年11月22日信中所提议,在吴海军工厂发动机部门工作的海军少佐(工程师)重村某于1907年1月奉命前往美国和英国,以研究生产过程及实船上的涡轮机操作。遗憾的是,他未能获准登临"克里奥尔人"号进行检查,只能以乘客身份体验其机械。另一方面,他得以在巡洋舰"紫水晶"号上研究涡轮机的结构和操作。带着这些详尽的知识,他于1908年6月返回日本,主要负责"伊吹"号发动机的安装工作。他于1909年10月11日成为该舰的总工程师,这大约是在1909年8月12日首次全功率试车两个月之后,而该次试车"伊吹"号未能达到预期航速。当时,在螺旋桨转速252转/分钟、输出27,353制动马力的情况下,最大航速仅为20.865节;在6小时试验中,平均值为27,142制动马力,转速250.2转/分钟,蒸汽消耗率为6.858公斤/马力/小时。
因此,海军技术部指示吴海军工厂,在三菱长崎模型水池进行数次实验后,更换螺旋桨(由前河公司新设计,直径减少了1英尺);扩大涡轮机喷嘴的喉部并增加其高度;减少冷凝器的管数并扩大上部管板的孔面积。在完成这些改进后,重新进行了试车,并在1910年6月23日的全功率试车中取得了以下结果:
结果如图所示
"伊吹"号机舱布局图
弹药库发生导致其沉没的爆炸后约2小时的"筑波"号。爆炸由发射药分解引起。
注释
1 俄国海军力量的被动角色仅在马卡洛夫海军中将替换前任总司令后的很短时间内转变为进攻行动。但在他于1904年4月13日随旗舰"彼得罗巴甫洛夫斯克"号(触"蛟龙丸"布设的两枚水雷沉没,649人丧生)阵亡后,俄国舰队再次退回港内坐等战争结束。
2 这一悲剧发生在联合舰队司令部下令改变航线的前一天。
3 起初误以为舰只是被当时传闻的俄国潜艇发射的鱼雷击中。
4 议会于1902年12月被解散,因为它不愿批准为计划中的装甲舰提供资金的新增土地税。
5 该法律有效期至1907年3月31日,特别会计于1907年11月30日结束,并将1,706,742日元转入普通财政后续使用。
6 "筑波"和"生驹"的造船成本升至约20,220,000日元,"鞍马"和"伊吹"的成本则更高。遗憾的是,作者缺乏关于发动机、武器和行政费用的确切数据,因此无法给出确切的建造成本。读者中如有任何人了解详情,作者恳请其通过致信康威海事出版社分享所知。关于预算和成本的数据基于《海军军备沿革》(Kaigun Gunbi Enkaku)第98页及后续内容。
7 近藤基树海军中将自1900年至1909年担任海军技术部基本设计科科长十年,之后又担任海军船型实验所(Kaigun Kankei Shikensho)所长十三年,在此期间他也作为设计和造船方面的权威为海军技术部服务。
8 遗憾的是,金田的方案并未采用背负式炮塔布局,且其设计因不便操作而被当局否决。据认为,战术家们当时很少关注并忽略了背负式炮塔的潜力。
明治时代(1868–1912)的造船可以概括为一个造船工程师们努力效仿早期设计,但若与范本不同则主要集中于改进武备(即更大口径、更多火炮)的时期,因此实际上不可能领先于其他国家。这是一个模仿而非创新的时期。
9 在这方面,该设计几乎是直接模仿英国的做法,但考虑到过去订购舰只的技术以及派往国外的造船工程师所接受的培训,这是很自然的。
10 小幡文三郎博士(工程师)后来晋升为海军少将。
11 山田(最终军衔为海军少将)在英国受教育,职业生涯之初就在吴工厂造船部门工作。他是一位技艺精湛的工程师,在建造"筑波"和"生驹"之前,他已在小幡领导下建造了巡洋舰"宫古"号和炮舰"宇治"号。他远不止是小幡的助手,如前文提及的八木绫生、白谷长三郎,或铃木仲海、山形浅吉等著名工程师都是他的学生。
12 另一方面,吴厂在修理和改装经验方面处于领先地位,它曾在中日甲午战争中作为联合舰队(当时尚未成为正式称谓)的维修基地,并得到横须贺的协助;在为对俄战争做准备时,许多商船被征用并在吴厂进行改装。此外,战损舰只的紧急修理(如同在中日战争时一样,吴厂主要负责需要进坞的修理)也成为俄日冲突爆发后吴厂的责任。因此,吴厂有信心能够在日本建造首批主力舰。
13 此次人员借调具有双重目的,既让熟练工人在横须贺获得建造大型舰船的经验,也为该厂未来的建造工作做准备。
14 建造这两艘舰需要约10,000吨各种规格的钢材,但在这一点上,相对简单和传统的结构是有利的。
15 小幡在充分考虑各种问题并决定开始建造后,立即前往川崎和三菱公司,考察其设施和能力,意图将这两家船厂作为各种金属结构件的承包商。
16 为了赶上工期,"生驹"号的防护甲板是向三菱长崎造船厂订购的。该甲板在长崎组装,然后拆解运往吴港,最后由三菱长崎的工人在船台上完成安装。
这是民用船厂首次为军舰承担此类工作,三菱长崎视其为莫大荣誉。另一方面,这个例子显示了大型民用船厂的进步,并证明它们很快就能承建大型军舰。
17 过于刻板地模仿英国做法以及经验缺乏都带来了问题,包括:
1. 上将舱室的窗户过高,此设计照搬了英国建造的舰船,而未考虑日本人身材较为矮小。
2. 后甲板经常上浪,因为排水设计很差,尽管不仅艏楼而且该甲板都给出了足够的舷弧。原因在于排水口被设置在舾装件的前方而非后方。
3. 关于一个更严重的缺陷,请参阅关于"生驹"号横摇的章节。
18 长村就他的实验做了讲座,时任海军大佐的财部彪向他讲述了自己的一次经历:财部曾将从英国建造的一艘驱逐舰带回国内。他对前往日本的漫长航程中可能遇到的恶劣天气感到担忧,于是下令将所有能从上层甲板移走的装置,包括吊艇架,都存放在舰体低处,以降低重心G,改善稳性。但离港后舰船横摇得非常厉害,他被迫返航咨询船厂的顶尖专家。他的判断是对的,由于装置从上甲板移到底部,重心G确实下降了,从而增大了稳心高度GM,这种情况会持续到装置归位为止。重新安装后,这艘驱逐舰以"柔和"(长周期)的横摇顺利完成了航程。
这一经验证实了长村的实验,并与他就改善"生驹"号此方面状况所提建议相符。
19 这主要是由于"安芸"号的涡轮机将延迟交付,而让"伊吹"号先完工,可以使其代替更重要的战列舰,作为涡轮机的实验舰。
20 关于火炮身管的来源,日本资料中存在许多矛盾。一些作者判断所有身管均由吴海军工厂制造,另一些则称大部分身管是进口的,但本文作者基于身管和炮闩类型分别在"生驹"号和"伊吹"号上一致的事实(对于后者,福井静夫和庭田这样的权威同意其安装的是进口身管),而"筑波"号和"鞍马"号使用的是改进的日式炮闩,认为一半在国内制造,一半从英国进口。也有迹象表明,炮术部门的生产能力不足以制造主力舰所需的全部身管和炮塔。
21 制造一门火炮身管需要用到长达180公里的钢丝。
22 称为"带状火药"的无烟火药,主要成分是火棉、硝酸和磷酸,并加入硝化甘油以形成带状。
23 在根据华盛顿条约规定被除籍之前,曾对"安芸"号前后炮塔进行约100发炮弹的连续射击,以获取关于身管寿命的精确数据,特别是在极限负载条件下的磨损程度以及对炮口"颤振"(进而影响炮弹散布)的影响;目的是为了能制定出战时对策。
24 这四艘舰双联装炮塔的俯仰范围是-3度到+23度,但实际上+5度是通常的固定装填角,尽管有可能在最高+13度时装填。
25 总共有14座45倍径30.5厘米双联装炮塔和6根备用身管被移交给了日本陆军,其中8座炮塔和所有备用身管未被改装。

