许多工厂的物流输送、包装与装配线体中,配备的机械手、升降台、提升机、卷绕机等设备潜藏一定危险性,需加装安全光栅检测人员或物体,并及时输出停机信号以保障安全。
但在物料或小车频繁进出的场景中,若每次通过都触发设备停机,会严重影响生产效率。为解决此类问题,可利用“Muting”(也称“抑制/静音”)功能,在物体通过的过程中暂时地自动停止安全光幕的安全功能,而在人员通过时仍然能够可靠检测出来,实现“人货分离”。
本期,湾测学院将带您详解“Muting”功能。
湾测四级无盲区安全光栅SG-P系列
Muting功能应用案例
标准IEC 62046:2018中5.7规定,“Muting”功能应能够自动启动和终止,这可以通过使用适当选择和放置的抑制传感器或通过来自机器控制系统的信号来实现,错误的信号、序列或静音传感器或信号的定时不应启动“Muting”功能。
注:当ESPE电敏保护设备如光栅等,在进入“Muting”状态时,光栅的OSSD输出将继续保持。执行“Muting”功能的控制系统部分或部件应具有适当的安全相关性能(SIL或PL,见IEC62061或ISO13849-1),并且不应将保护功能的安全相关性能降低到应用所要求的安全相关性能以下。
当出现以下情形时,不能开启抑制功能:
——保护设备(如光栅)的OSSD输出信号处于断开状态
——保护设备(如光栅)处于锁定状态
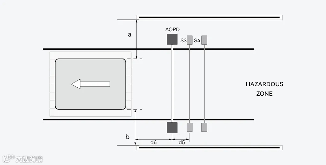
标准IEC 62046:2018中附录D中也根据需求不同,提出“Muting”系统不同的布置方式、时序要求,如四对光电的“L型”布置/两对光电的“T”型布置,可以同时满足物料出入口双向检测的要求:
两对光电的“L”型布置仅满足物料出口单向检测的要求
在了解完基础的“Muting”功能与标准要求后,接下来将探讨该功能的实现方式。
目前,在实现“Muting”功能时,国内外大多仍沿用传统方式,例如通过安全控制器配合逻辑监控来实现,存在接线复杂、编程繁琐等问题。为此,湾测推出“自带”Muting功能的安全光栅,即通过安全光栅+光电传感器的方式即可搭建!
SG-P系列安全光栅凭借其简捷的软件设置,不仅便于客户快速部署“Muting”系统,而且作为国产首款通过UL508、UL61496-1/-2及IEC 61508(SIL 3)功能安全认证的产品,集三重权威认证于一身,可高效满足全球范围内的安全标准要求。
湾测四级无盲区安全光栅SG-P系列
Muting功能应用案例
湾测作为中国民族品牌,始终以“推进工业安全,共创和谐社会”为使命,不断革新技术。集成“Muting”功能的SG-P系列光栅,正是湾测产品理念的集中体现——在确保安全根基的前提下,全力赋能客户生产效率,实现安全与效率双重跃升。



