ANGLE安格集合店是一家集合咖啡、艺术展示、及买手店为一体的生活概念店。项目位于深圳湾一号南区商业区内,建筑面积约300平方米。

一层室内
▽
▽层叠的空间使人们的行驶路线不同于以往的体验。
▽出菜口的设计如同一个精致的展示窗口;厨房则隐藏在了楼梯下方,充分打破了空间原本径深的局限性,提高空间使用率。
▽阶梯链接着餐厅、展览区域及买手店,人们可以在行走的过程中观赏到展品。
▽岩石、胡桃木、红色大理石、靛蓝色皮质的碰撞使空间风格不受当下流行的影响,更持久且经典;而不同的空间层次感凸显了不同材质与自然光之间的融合。
▽在细节处体现出不同石材间的颜色质感及空间造型的碰撞。
二楼买手店
▽








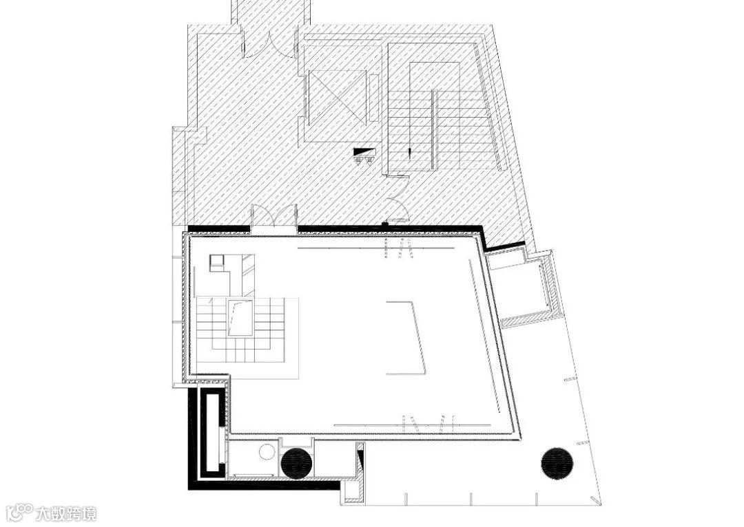
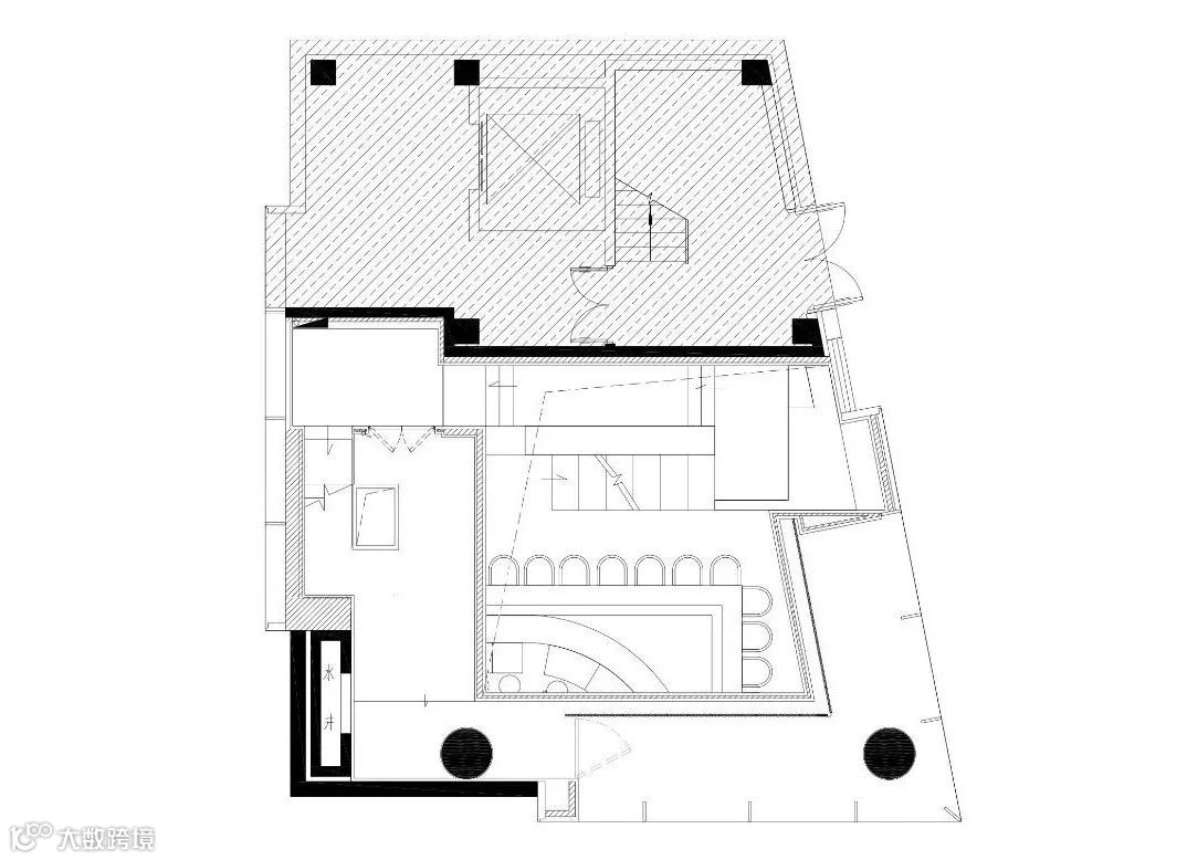
平面图
▽
△一层平面图
△二层平面图
△三层平面图
项目名称:ANGLE 安格集合店
项目地址:中国 深圳 深圳湾一号南区
项目面积:300m²
设计团队:Various Associates 万社设计
主设计师:杨东子、王左千
项目经理:林倩怡
材料团队:何李甜
完成时间:2018.09
摄 影 师:邵峰


