业主:尼泊尔电力局 (Nepal Electricity Authority)
招标公告发布日期:2025年9月9日
采购内容(一):负荷开关(LBS)供应与交付
项目名称:负荷开关(LBS)的供应与交付 Supply and Delivery of Load Break Switch (LBS)
招标编号:ICB/DCSD-082/83-08
投标保证金:28,000.00美元
投标截止日期:2025年10月31日 12:00
开标日期:2025年10月31日 13:00
概念图:
采购清单(1):
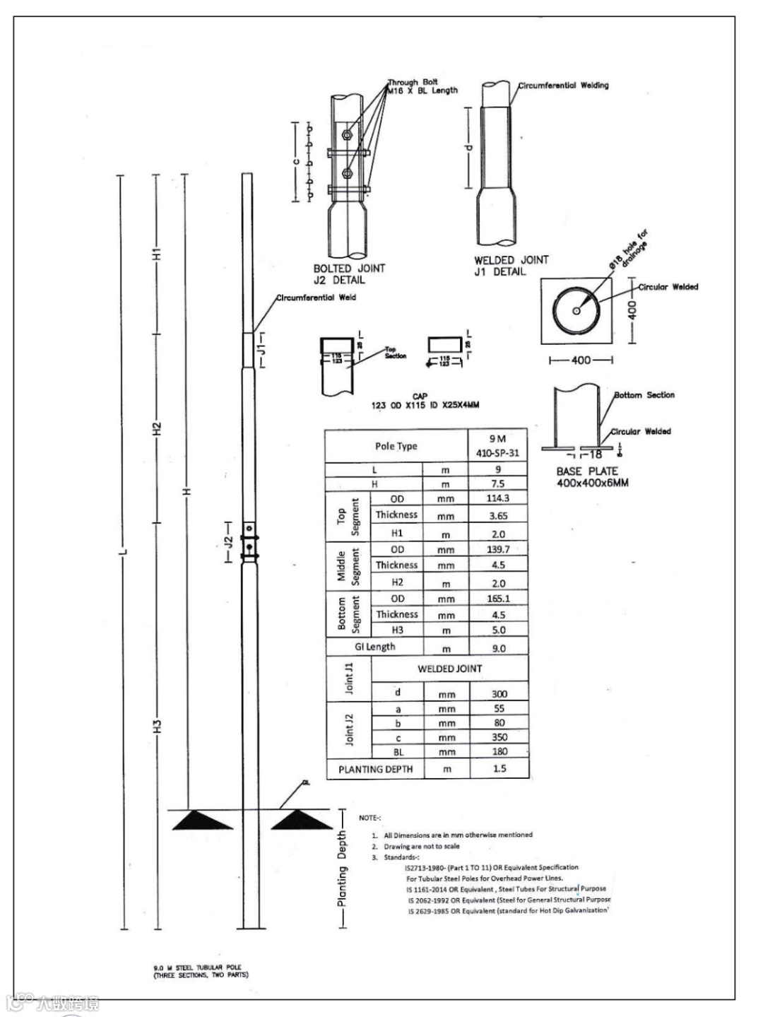
采购内容(二):钢制管状杆供应与交付
项目名称:钢制管状杆的供应与交付 Supply and Delivery of Steel Tubular Poles
招标编号:ICB/DCSD-082/83-01
投标保证金:20,000,000.00尼泊尔卢比
投标截止日期:2025年10月30日 12:00
开标日期:2025年10月30日 13:00
概念图:
采购清单(2):

