

普通的事物包含着最深沉的奥秘......如果一张建筑平面图能够向我们描述些什么,那么应该就是人与人之间的关系,空间中存在能够记录人踪迹的元素,比如墙壁、门窗和楼梯,它们先将人的居住空间分割开来,然后再选择性地将他们组合在一起。
Ordinary things contain the deepest mysteries... If a building plan can tell us something, so it's the relationships between people, and there are elements in the space that record people, such as walls, doors, windows, and stairs, that separate people's living spaces, and then selectively put them together.


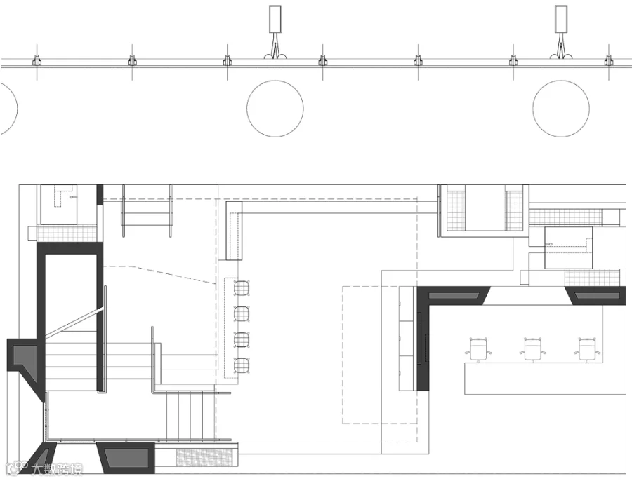
罗宾·埃文斯(Robin Evans)于1978年作下《人物、门和通道》(Figures, Doors and Passages)一文,文中分析了空间平面中的普通元素及其布置是如何与使用者互动的,同时又如何界定着空间的使用方式。事实上,每一处简单的角落或门窗都会在错综复杂的空间关系留下印记,而正是这些关系决定了人们将会如何使用这个空间。如恩为香港彭博(Bloomberg)办公室设计的内部楼梯空间就采用了场域营造中常见的元素——窗户、通道、楼梯和出入口。彭博公司希望能够通过一个楼梯将三层办公空间联系起来,作为内部唯一的纵向通道,促进员工之间的互动和交流。同时,应客户的要求,楼梯的设计在视觉上也连接并呼应了香港的城市环境。项目位于香港彭博公司所在的办公大楼内,周围环绕着会议室、一间录音棚、一个礼堂和一些休息区域。原有的螺旋式楼梯具有强烈的雕塑感,但其结构形式不利于满足每日较大的人流量。项目的挑战性在于,设计师需要在结构的限制下重新设计一个楼梯空间,为彭博的员工创造一段空间层次丰富的旅程。
In his 1978 paper, Figures, Doors and Passages, Robyn Evans analyzed how common elements in a space plane and their placement interact with the user, at the same time, how to define the use of space. In fact, every single corner or window leaves its mark on the intricate spatial relationships that determine how people will use the space. The Interior Stair space designed for Bloomberg offices in Hong Kong uses elements common in the field -- Foshan windows, walkways, staircases and entrances. The company hopes to link the three-story office space with a staircase that will serve as the only vertical passageway inside, facilitating interaction and communication between employees. At the client's request, the stairs are also visually connected and respond to Hong Kong's urban environment. The building, which houses Bloomberg's offices in Hong Kong, is surrounded by a conference room, a recording studio, an auditorium and rest areas. The original stairs has a strong sculptural feel, but its structure is not conducive to meeting the larger daily flow of people. The challenge of the project was to redesign a staircase space within the constraints of the structure, creating a journey of dimensional richness for the Bloomberg staff.

新的楼梯空间容纳了平台、内置座位和能够各角度捕捉到香港城市景观的开窗。如恩采用木盒子的概念重新诠释楼梯的空间形式,刻意避免过分强调维多利亚港的视野(很多香港的企业办公楼都看得到维多利亚港的景观),反而将更多的焦点放在办公室内的活动和其他角度的室外景观上。以木元素为主的楼梯空间内穿插着水磨石地面和铜制的扶栏,人们沿着楼梯行走,透过不同尺度的细分空间和开口,邂逅意料之外的视野。内嵌式的BARRISOL天花板为室内带来了自然光般柔和的照明。
The New Stair space accommodates a terrace, built-in seating and windows that capture the cityscape of Hong Kong from all angles. Using the concept of a wooden box to re-interpret the stairs'spatial form, Ruen deliberately avoids overemphasizing the view of Victoria Harbour, which can be seen in many corporate office buildings in Hong Kong, instead, focus more on activities within the office and other angles of the outdoor landscape. The wooden staircase space, with its terrazzo floors and Copper Balustrades, is designed to allow people to walk along the staircase, with different scales of subdivision and openings that offer unexpected views. The built-in BARRISOL ceiling provides natural light and soft lighting to the Interior.

楼梯空间纵贯三层,如恩为每一层赋予了不同的功能,以适用于对应楼层平面的多样化布局。这段蜿蜒的旅程从25层的前台开始,雕刻式的开口将视野聚焦于维港的风景,大面积的聚集和活动空间、木质围合结构上“挖”出的休息区为这一层的楼梯空间赋予了开放和外向的性格。原有的休息区变成内置的就坐区域;相比于单纯地复原,如恩将这些休息和聚会的功能空间整合起来,用建筑的语言将它们凝聚成一个楼梯空间。细心的人会在休息区内发现许多精致的细节——木制与铜制的面板打开后露出插电板、镜子和小的置物空间,人们在这里停留的时候可以放下手中的文件和手机、或者咖啡,这些细节在不经意间都照顾到了日常办公的需求。
The Stair space runs through the three floors, giving each floor a different function to suit the diversified layout of the corresponding floor plan. The meandering journey begins at the 25th floor reception desk with a sculptural opening that focuses the view on Victoria harbour, the large gathering and activity spaces, the "dug" rest area on the wooden enclosure structure endow the stair space on this floor with an open and extroverted character. The existing rest area becomes a built in seating area; rather than simply recovering, such as by integrating these rest and gathering functions, the language of the building condenses them into a stair space. Careful observers will find many exquisite details in the lounge area -- A wooden and copper panel opens to reveal power plates, mirrors and small spaces, people can put down their papers and cell phones, or coffee, when they stop here. These details inadvertently cater to the needs of the daily work.

在通向第26层的旅程中,人们可以欣赏到不同的景观。考虑到这一层有彭博的录音棚和会议室,适宜更加内向的空间,从而保证声音和视觉不受干扰。空间被分成两个盒体,在入口处可以看到维港的风景,沿着通道可以进入另一端的会议室。应客户的要求,人们从录音棚内也能看到楼梯的结构以及透过楼梯被框定的室外风景,自然成为了录音棚的背景。考虑到这一层的环境更加安静,楼梯结构内设置了面向海景的休息区,让人在繁忙之余能够有片刻冥想静思的空间。
On the journey to the 26th floor, people can enjoy different views. Given that this floor has a Bloomberg recording studio and a conference room, it's appropriate to have a more introverted space so that sound and vision are not disturbed. The space is divided into two boxes, with a view of the harbour from the entrance and a conference room at the other end of the corridor. In response to the client's request, people from the studio can also see the structure of the stairs and through the stairs were framed by the outdoor landscape, naturally became the studio background. Considering the quieter environment on this floor, the stair structure provides a rest area facing the sea, allowing for a moment of meditation during the busy time.

到达第27层后,楼梯空间变得开放而通透,削减了楼梯的实体结构,大面积的开窗和透明玻璃捕捉了更加广阔的室外景观。如恩在休息区内设置了悬挑式的观景平台,从这里可以俯视到下方的楼层,获得奇特的视觉体验。同时也可坐在这里以向窗外眺望,欣赏海港的开阔风景,为这段用楼梯承载的探索之旅划上完美的句号。
After reaching the 27th floor, the stair space becomes open and transparent, reducing the physical structure of the staircase, large area of open windows and transparent glass to capture a broader outdoor landscape. Ruen has set up a cantilevered viewing platform in the lounge area, which overlooks the floor below and offers a fantastic visual experience. It is also a perfect place to sit and look out the window and enjoy the open views of the harbour, marking the end of a journey of discovery supported by a staircase.

通过精心的排列与组合,这些司空见惯的平凡细节被编排成一段饱满的旅程,人们在这段旅程中不经意地相遇、驻留、交谈,为忙碌的工作氛围带来些许诗意和趣味。
Through careful combinatorics, these commonplace details are woven into a rich tapestry of journeys in which people meet, stay, and talk, bringing a touch of poetry and fun to the busy working atmosphere.
平面图:

end


