一扇家门,出可繁华,入可宁静。该项目以现代经典的灰白为主调,使得整体空间时尚大方,外加沉稳色系的家具及暖色调灯光作为点缀,让空间生动而丰富,营造自由舒适的生活空间。

▲
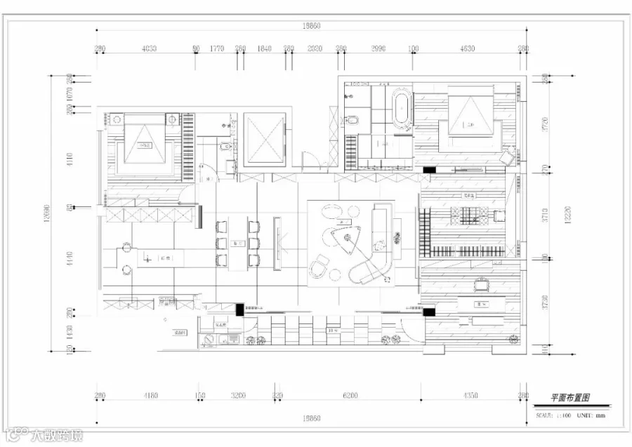
| 平面布局图 |

空间各功能分区清晰可见,合理的布局走线,整体空间通透性及联动性特强,打造宽阔而舒适的空间。
▲
| 客厅 |
干净简洁的灰白色系,宽大的落地窗与光滑质地的地砖,营造出清新自然的光线,倒映出空间的格调,客厅通透明亮。


搭配灰色柔软的沙发,以及熏咖色的休闲椅、茶几,让平淡的空间透射出温度及视觉亮点。

微V形状的沙发与休闲椅,熏橡木色的护墙板及三角形茶几搭配圆脚踏,达到平衡的空间感受,一切简单而纯粹。色块分明,一份宁静的居家风情。


▲
| 餐厅 |
一面悬挂式电视墙,隔开了客厅与餐厅的空间,迎着客厅的光线,让餐厅似沐浴在自然的阳光中。搭配卡翡亚的米咖色餐桌椅,其中主人位的餐椅以跳跃的爱马仕橙色真皮点缀,让就餐氛围更为恰意。


▲
| 厨房 |
灰黑色调的厨房空间,以熏咖色开放柜点缀出简约时尚之感。百叶窗帘作装饰,让自然光随自己的喜爱而调节。岛台式的设计,营造出一处最有温度的生活场域,无论是家人日常生活或朋友聚会时刻,让自然的互动成为最温馨快乐的时刻。
▲
| 茶室 |
闲暇时刻,品味生活的宁静。卡翡亚蓬莱茶桌系列,以简洁的线条,天然实木与厚重麻石的现代设计,融合出宁和的禅意。静心安坐其中,与家人或朋友品茗畅谈人生。


▲
| 卧室 |
卧室的布置采用了柔软、温暖、自在,又不失个性的元素。灯光营造出的情调,尽显舒适休息时间。


卧室中窗边的一抹黄色卡翡亚休闲椅,点缀了空间的视觉亮点,闲适时刻,可欣赏窗外的风景。

▲
| 卫浴间 |
素雅色系的卫浴空间,玻璃推门的使用,外加简约的搭配,让空间显得宽敞而干净。浴室镜墙面竖条纹元素的采用,拉伸了整体视觉感。


简约静谧的居家氛围,在现代简约的设计中回归生活的美好时光。

项目名称|台州路桥绿城玫瑰园
项目类别|精品楼盘装修
户型面积|205㎡
装修风格|现代简约
设计公司|台州鸿洋装饰设计有限公司
主案设计|王世春
摄 影|陈军
选用产品|意大利REX瓷砖法国流金系列产品



最美雅奢空间设计奖
最美雅奢空间设计奖由广州设计周在2017年发起,IFI(国际室内建筑师/设计师团体联盟)全球认证,指定合作单位为DPI进口瓷砖馆,面向擅长“优雅、奢华”风格空间设计领域的设计师或设计机构征集作品,最终经过专家评委评选出“年度最美雅奢空间设计”、“年度优秀雅奢空间设计”两大奖项,并在一年一度的广州设计周颁奖盛典上进行隆重颁奖。


2018最美雅奢空间设计奖
诚邀擅长“优雅、奢华”雅奢风格的您来参评
投稿截止时间:2018年9月30日

长按识别二维码 ,了解更多参评信息。

