案例名称:上峯壹品
案例设计师:高吉春
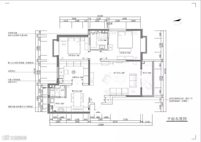
本设计方案,针对原户型狭小的餐厅进行了重点改造,故对用餐区、厨房操作间以及次卫进行重组,以此平衡了门厅、客厅、用餐区的空间比例关系。
1、 经改造,合理规划了作为开放式厨房的使用功能及流线,同时也增强了用餐区的采光,并极力为开放式厨房的舒适在细微的尺度和选材、色彩及灯光营造上均做了细致的考量。
2、 原本书房空间的卧室,几经协商,业主极力要求为自己规划成独立衣帽间,并在柜体内置了单人折叠床(以此满足其它必要的休息考虑)。
3、 通往主卧与次卧不经意的小过道 原本略显狭窄,后续墙体也作了适当的改造。
4、 主卫设计以满足女主人对泡澡这一需求展开布局,合理的改造了门洞的位置,略微错落的地面与壁挂坐便器联系在一起,打破以往功能上的严肃、装饰上植入小鸟元素造型的玻璃吊灯和配画,也是颇为有趣!
5、 卧室设计着重营造“舒适和宁静”,大面积分割的深色软包背景、素灰色壁纸、实木拼花地板,搭配色彩跳跃的地毯,无不给人放松的感觉。
6、 整体设计简洁、现代,色彩沉着有力;地面大胆奔放的汉妮玉更是打破常规空间的分区与局限,恰到好处的融合贯通了空间之间的自由伸展;黑灰色水曲柳实木玄关以简洁的线条彰显着分割与构成并置。







如果您喜欢本案作品,请点击左下角“阅读原文”为设计师投票,他的喜悦将会有您的一份支持和鼓励。

