理性与不羁
“规则就是用来打破的。”
当黑灰简约与复古软装嵌合,看似平平无奇的现代风,但又充满无处不在的细节。
哑光灰地砖搭配无主灯设计,同色系的磨砂艺术漆,冷调的配色恰好中和了西晒带来的炎热感。
不得不夸,设计师的奇妙搭配和屋主独特的艺术眼光。
《理性与不羁》
坐标丨白云·保利珑熙
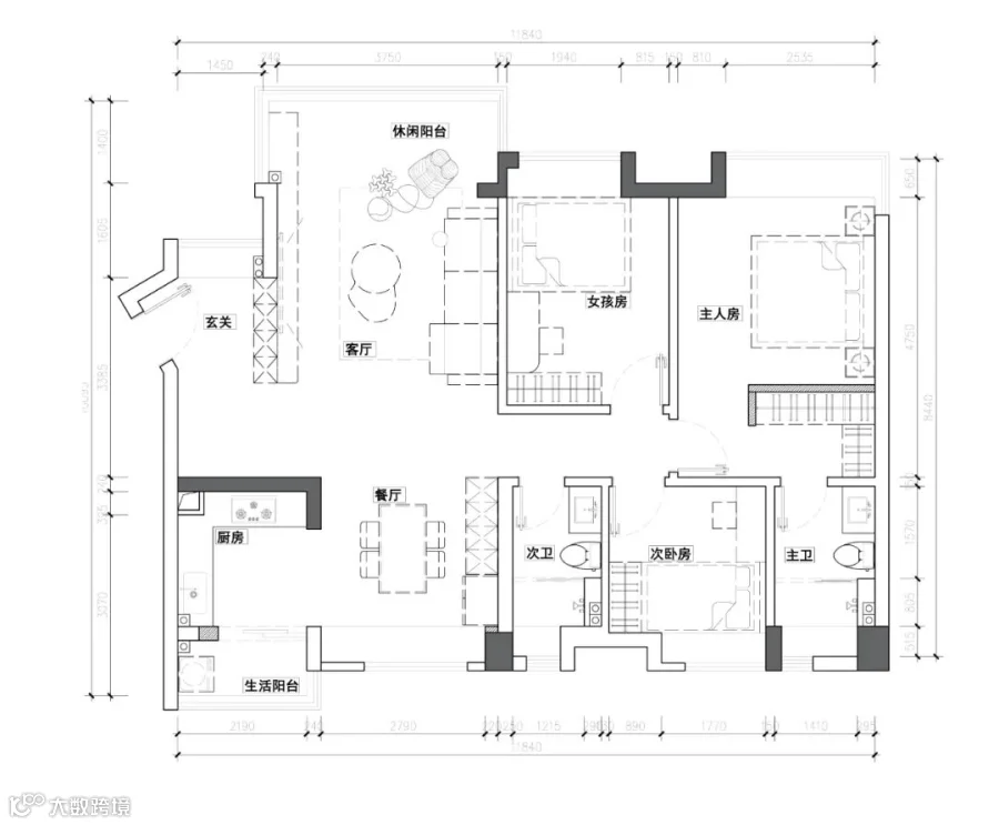
户型丨3室2厅1厨1卫
面积丨113平方米
风格丨现代简约
设计师丨崔春浪
硬装费用丨17.5万
深色不一定庄严肃穆,也可以慵懒不羁,全屋虽然采用了黑灰作为主色调,但是复古调的家具,为沉色的家融入了怀旧氛围感,让家显得沉稳而不是沉闷。
●本案居者:
本案的屋主是一家三口。房屋居住着夫妻二人及即将成年的女儿居住,夫妻二人都是职场精英,女儿也即将就读金融专业,与经常与数字打交道的他们,确实与理性的简约风很适配。
●居者需求:
→整体风格走向:简约、现代、优雅
→主卧增加独立衣帽间功能
→全屋既要保持收纳空间,但不能太过压抑
原始平面图
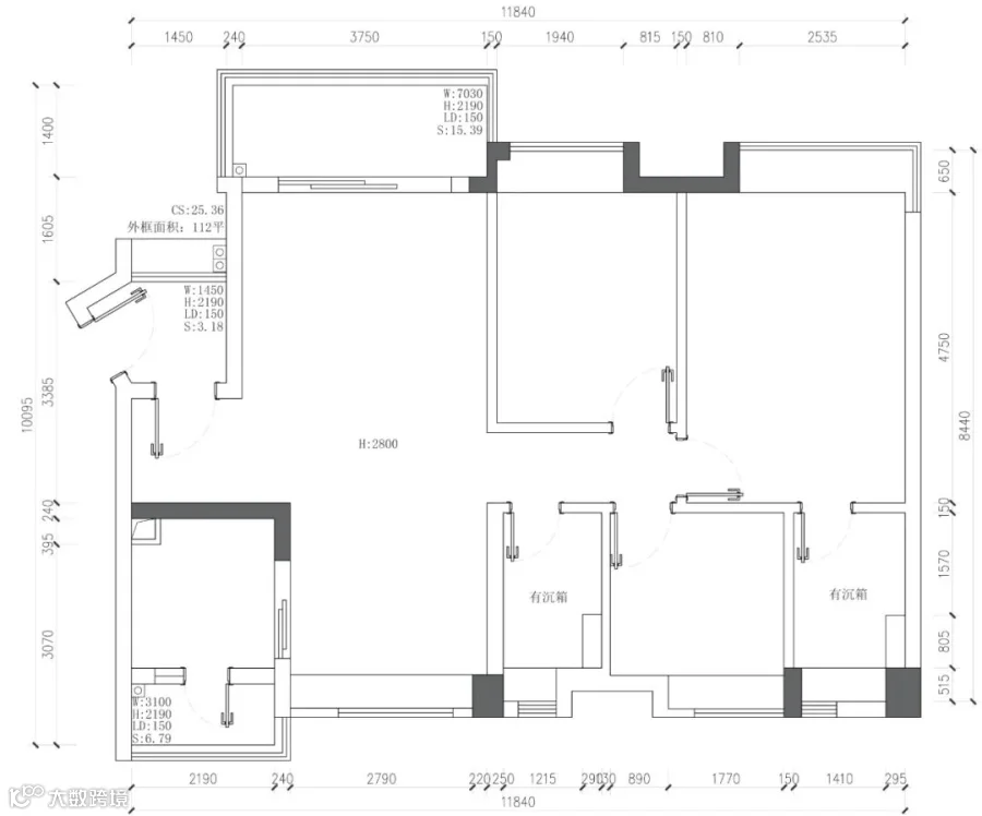
平面布置图
●设计亮点:
→通过布局改动、无主灯设计,让空间视觉效果更宽敞
→全屋各空间风格色调都采用了黑灰色系,搭配中古风软装,统一又不失设计感

这套房子的格调是从玄关开始。
设计师没有做传统的满墙收纳柜,只是在原来的墙体上打造了通顶的储物柜,既满足一家三口的鞋子和杂物收纳需求,又能遮挡入户视线,保证屋主的隐私。
保留窗户的设计,放置了风格一致的衣帽架,同时兼顾了换鞋功能,整个玄关区宽敞明亮。
可移动斗柜放上一幅喜爱的画,既能为家里增添艺术气息,还不伤墙漆。
雾面灰砖通铺客厅、阳台、和餐厅,空间视觉得到了延伸,阳台配上落地玻璃窗,妥妥的一线江景大平层。
客厅电视背景墙增加长短不一的隔板,简约中又带有层次感,无论是摆上配饰还是酒,都能彰显屋主品味。

沙发和茶几选用了中世纪复古风格,油腊皮质充满怀旧感,柔软的坐垫和靠背中和了冷调风格带来的硬朗感。
休闲时间躺在软糯的沙发上,看一场电影,还是欣赏江边的落日,都是一种人生的享受。

卫浴区域则采用同色系的瓷砖上墙,保持了全屋色调风格的整体性,黑白灰搭配耐脏且不容易过时。

高脚餐桌搭配大飘窗,厨房做推拉门设计,五星酒店才有的江景,在家也能实现。
餐边柜不一定要做通顶,半墙也很好看,放上咖啡壶、茶叶和威士忌,这不就是高颜的多功能吧台一个!

L型设计的厨房,特地匹配大长腿屋主定制的台面,清洗、备菜、烹炒都游刃有余。
玻璃推拉门的设计,让厨房空间更显宽阔,多人烹饪也不是问题。

为了不让马桶直接对着床,设计师在卫生间门口打造了L型通顶衣柜,既能保持主卧的隐私性和舒适性,同时打造了一个独立衣帽空间,利用率瞬间提升。
有了独立衣帽间满足收纳功能,主卧不需要再配置额外通顶柜,屋主直接安排了中古斗柜和挂衣架,睡眠空间不仅宽敞
女儿房间利用一面墙打造衣柜,能满足其衣物收纳,护肤品则搭配可移动收纳架,使用更加方便灵活~
客卧则是榻榻米+床尾柜一体化设计,将小空间利用率也能最大化,同时承担了主要的收纳功能,提升了另外两个房间的舒适度。
如果你也喜欢《理性与不羁》的沉稳设计,欢迎后台回复的「设计」,让圣都整装专业设计师为你量屋定制专属的设计方案,并赠送装修避坑指南,让你装修不踩坑,完美呈现理想家!

(装修避坑指南)
#本案设计师
崔春浪
从业年限:10年+
设计理念:设计是我们通向美好的一个朋友,互相陪伴,正向影响,共同进步
擅长风格:现代风,极简风,奶油风、轻奢风
END
球分享
球点赞
球在看

